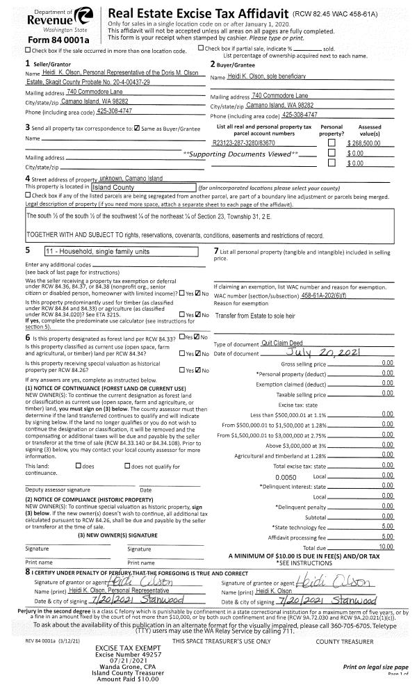
Property
Account |
| Property ID: | 645092 | Abbreviated Legal Description: | CLINTON LOT 19 BLK 5 TGW PT VAC ALLEY FR 05017-0 |
| Geographic ID: | S6380-00-05019-0 | Agent Code: | |
| Type: | Real | | |
| Tax Area: | 720 - APPRAISER-S Whid Schl Dist, Special District, improved & less than 1 acre | Land Use Code | 11 |
| Open Space: | N | DFL | N |
| Historic Property: | N | Remodel Property: | N |
| Multi-Family Redevelopment: | N | | |
| Township: | | Section: | |
| Range: | |
Location |
| Address: | 6485 HARDING AVE CLINTON, WA 98236 | Mapsco: | |
| Neighborhood: | Cycle 4 | Map ID: | 815 |
| Neighborhood CD: | 4 |
Owner |
| Name: | JOBE TTEE, ROBERT A | Owner ID: | 293286 |
| Mailing Address: | SANDRA J BROUILLETTE, TTEE PO BOX 520 FREELAND, WA 98249 | % Ownership: | 100.0000000000% |
| | | Exemptions: | |
Taxes and Assessment Details
Values
| (+) Improvement Homesite Value: | + | $0 | |
| (+) Improvement Non-Homesite Value: | + | $249,175 | |
| (+) Land Homesite Value: | + | $0 | |
| (+) Land Non-Homesite Value: | + | $240,000 | |
| (+) Curr Use (HS): | + | $0 | $0 |
| (+) Curr Use (NHS): | + | $0 | $0 |
| | | -------------------------- | |
| (=) Market Value: | = | $489,175 | |
| (–) Productivity Loss: | – | $0 | |
| | | -------------------------- | |
| (=) Subtotal: | = | $489,175 | |
| (+) Senior Appraised Value: | + | $0 | |
| (+) Non-Senior Appraised Value: | + | $489,175 | |
| | | -------------------------- | |
| (=) Total Appraised Value: | = | $489,175 | |
| (–) Senior Exemption Loss: | – | $0 | |
| (–) Exemption Loss: | – | $0 | |
| | | -------------------------- | |
| (=) Taxable Value: | = | $489,175 | |
Taxing Jurisdiction
| Owner: | JOBE TTEE, ROBERT A | | |
| % Ownership: | 100.0000000000% | | |
| Total Value: | $489,175 | | |
| Tax Area: | 720 - APPRAISER-S Whid Schl Dist, Special District, improved & less than 1 acre |
| CF | Conservation Futures | 0.0316035091 | $489,175 | $489,175 | $15.46 | | |
| FIRE3 | Fire & Rescue Dist #3 S Whidbey GEN | 1.2004855531 | $489,175 | $489,175 | $587.25 | | |
| HOBOND | Hospital BOND | 0.1910887512 | $489,175 | $489,175 | $93.48 | | |
| HOGEN | Hospital GEN | 0.3902502903 | $489,175 | $489,175 | $190.90 | | |
| CE | County Current Expense | 0.3708482477 | $489,175 | $489,175 | $181.41 | | |
| CR | County Roads | 0.4584763726 | $489,175 | $489,175 | $224.28 | | |
| ISLANDEMS | Hospital GEN (EMS) | 0.5000000000 | $489,175 | $489,175 | $244.59 | | |
| LIB | Library Sno-Isle GEN | 0.3153421757 | $489,175 | $489,175 | $154.26 | | |
| PORTWHID | Port of S Whidbey GEN | 0.1094540357 | $489,175 | $489,175 | $53.54 | | |
| SCH206BOND | School 206 BOND | 0.3161759235 | $489,175 | $489,175 | $154.67 | | |
| SCH206MO | School 206 Enrichment | 0.4547169547 | $489,175 | $489,175 | $222.44 | | |
| ST | State School | 1.3035497053 | $489,175 | $489,175 | $637.66 | | |
| ST2 | State School Part 2 | 0.8169543533 | $489,175 | $489,175 | $399.63 | | |
| SWHIDPRBD | P & R S Whidbey BOND | 0.0152817568 | $489,175 | $489,175 | $7.48 | | |
| SWHIDPRBD2 | P & R S Whidbey BOND2 | 0.0138911264 | $489,175 | $489,175 | $6.80 | | |
| SWHIDPRMT | P & R S Whidbey GEN | 0.2053334452 | $489,175 | $489,175 | $100.44 | | |
| | Total Tax Rate: | 6.6934522006 | | | | | |
| | | | | Taxes w/Current Exemptions: | $3,274.29 | | |
| | | | | Taxes w/o Exemptions: | $3,274.29 | | |
Improvement / Building
| Improvement #1: | RESIDENTIAL | State Code: | Y | 1728.0 sqft | Value: | $249,175 |
| Bathrooms: | 3 | Bedrooms: | 3 | | Ceiling: | DRYWALL PAINTED | Cooling: | HEAT PUMP/CONV/V | | Exterior Wall/Cover: | PLY/HARDBOARD T-111 | Floor Covering: | CARPET/VINYL 80-20 | | Floor Structure: | WOOD W/SUBFLOOR | Foundation: | CONCRETE | | Interior Finish: | DRYWALL PAINT | Plumbing Fixture Cnt: | 12 | | Roof Slope: | 12" IN 12" | Roof Structure/Cover: | CJ ASPHALT |
|
| | Type | Description | Class CD | Sub Class CD | Year Built | Area |
| | BAS | BASE/MAIN FLOOR | 3 | 0 | 1996 | 1152.0 |
| | OP1 | OPEN PORCH SLAB | 3 | 0 | 1996 | 255.0 |
| | OWC | OPEN WOOD PORCH W/STEPS/ROOF/C | 3 | 0 | 1996 | 32.0 |
| | UPH | HALF STORY | 3 | 0 | 1996 | 576.0 |
Sketch
Property Image
Land
| 1 | 13 | SQ (06001-08000) | 0.0000 | 0.00 | 0.00 | 0.00 | 1.00 | $240,000 | $0 |
Roll Value History
| 2026 | N/A | N/A | N/A | N/A | N/A |
| 2025 | $249,175 | $240,000 | $0 | $489,175 | $489,175 |
| 2024 | $252,444 | $230,000 | $0 | $482,444 | $482,444 |
| 2023 | $255,711 | $230,000 | $0 | $485,711 | $485,711 |
| 2022 | $234,506 | $210,000 | $0 | $444,506 | $444,506 |
| 2021 | $206,497 | $150,000 | $0 | $356,497 | $356,497 |
| 2020 | $198,639 | $130,000 | $0 | $328,639 | $328,639 |
| 2019 | $142,485 | $150,000 | $0 | $292,485 | $292,485 |
| 2018 | $142,923 | $130,000 | $0 | $272,923 | $272,923 |
| 2017 | $143,801 | $110,000 | $0 | $253,801 | $253,801 |
| 2016 | $145,554 | $85,000 | $0 | $230,554 | $230,554 |
| 2015 | $147,308 | $85,000 | $0 | $232,308 | $232,308 |
| 2014 | $143,546 | $85,000 | $0 | $228,546 | $228,546 |
| 2013 | $145,239 | $85,000 | $0 | $230,239 | $230,239 |
| 2012 | $146,934 | $76,000 | $0 | $222,934 | $222,934 |
| 2011 | $148,628 | $85,000 | $0 | $233,628 | $233,628 |
| 2010 | $154,844 | $85,000 | $0 | $239,844 | $239,844 |
| 2009 | $161,671 | $100,000 | $0 | $261,671 | $261,671 |
| 2008 | $159,725 | $100,000 | $0 | $259,725 | $259,725 |
| 2007 | $161,846 | $100,000 | $0 | $261,846 | $261,846 |
Deed and Sales History
| 1 | 12/02/2020 | QCD | Quit Claim Deed | JOBE, ROBERT A | JOBE TTEE, ROBERT A | | | $0.00 | 46310 | 4506317 |
| 2 | 11/19/2020 | QCD | Quit Claim Deed | JOBE TRUSTEE, ROBERT A | JOBE, ROBERT A | | | $0.00 | 45928 | 4503751 |
| 3 | 03/14/2011 | QCD | Quit Claim Deed | JOBE, ROBERT A | JOBE TRUSTEE, ROBERT A | | | $0.00 | 3921 | 4292580 |
| 4 | 07/06/2010 | QCD | Quit Claim Deed | JOBE, ROBERT A | JOBE, ROBERT A | | | $0.00 | 1665 | 4276663 |
| 5 | 09/08/1998 | QCD | Quit Claim Deed | JOBE, ROBERT A | JOBE, ROBERT A | | | $0.00 | 84507 | 98024498 |
| 6 | 09/08/1998 | WD | Warranty Deed | JOBE, ROBERT A | JOBE, ROBERT A | | | $130,000.00 | 83309 | 98017215 |
| 7 | 07/01/1994 | WD | Warranty Deed | LOCKWOOD, DONALD A | ROBERTSON, BRADLEY E | | | $28,000.00 | 42816 | 94015436 |
| 8 | 04/01/1990 | OTHER | Other - Misc. Documents | IZETT, DON F | IZETT, DON F | | | $0.00 | 63784 | 0 |
| 9 | 03/01/1990 | WD | Warranty Deed | IZETT, DON F | LOCKWOOD, DONALD A | | | $17,750.00 | 1859 | 90005953 |
| 10 | 01/01/1900 | OTHER | Other - Misc. Documents | Unknown | IZETT, DON F | | | $0.00 | 61343 | 86006285 |
| 11 | 01/01/1900 | OTHER | Other - Misc. Documents | ROBERTSON, BRADLEY E | JOBE, ROBERT A | | | $0.00 | 83309 | 98017215 |
Payout Agreement
| No payout information available.. |