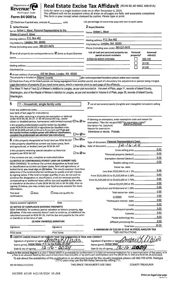
Property
Account |
| Property ID: | 64584 | Abbreviated Legal Description: | 46 - IN NE NW S360' EX W495 OF TR B LAGOON PT TRS REC 30M11 |
| Geographic ID: | R23020-453-2710 | Agent Code: | |
| Type: | Real | | |
| Tax Area: | 312 - APPRAISER-Cpvl Schl Dist, outside Cpvl, improved, greater than 1 acre | Land Use Code | 11 |
| Open Space: | N | DFL | N |
| Historic Property: | N | Remodel Property: | N |
| Multi-Family Redevelopment: | N | | |
| Township: | 30 | Section: | 20 |
| Range: | R2 |
Location |
| Address: | 597 ALDER VIEW LN GREENBANK, WA 98253 | Mapsco: | |
| Neighborhood: | Cycle 3 | Map ID: | 398 |
| Neighborhood CD: | 3 |
Owner |
| Name: | GOLDIN, SHAHAR | Owner ID: | 300188 |
| Mailing Address: | 300 LENORA ST 650 SEATTLE, WA 98121 | % Ownership: | 100.0000000000% |
| | | Exemptions: | |
Taxes and Assessment Details
Values
| (+) Improvement Homesite Value: | + | $0 | |
| (+) Improvement Non-Homesite Value: | + | $19,200 | |
| (+) Land Homesite Value: | + | $0 | |
| (+) Land Non-Homesite Value: | + | $15,000 | |
| (+) Curr Use (HS): | + | $0 | $0 |
| (+) Curr Use (NHS): | + | $0 | $0 |
| | | -------------------------- | |
| (=) Market Value: | = | $34,200 | |
| (–) Productivity Loss: | – | $0 | |
| | | -------------------------- | |
| (=) Subtotal: | = | $34,200 | |
| (+) Senior Appraised Value: | + | $0 | |
| (+) Non-Senior Appraised Value: | + | $34,200 | |
| | | -------------------------- | |
| (=) Total Appraised Value: | = | $34,200 | |
| (–) Senior Exemption Loss: | – | $0 | |
| (–) Exemption Loss: | – | $0 | |
| | | -------------------------- | |
| (=) Taxable Value: | = | $34,200 | |
Taxing Jurisdiction
| Owner: | GOLDIN, SHAHAR | | |
| % Ownership: | 100.0000000000% | | |
| Total Value: | $34,200 | | |
| Tax Area: | 312 - APPRAISER-Cpvl Schl Dist, outside Cpvl, improved, greater than 1 acre |
| CF | Conservation Futures | 0.0316035091 | $34,200 | $34,200 | $1.08 | | |
| CEM2 | Cemetery #2 | 0.0095056933 | $34,200 | $34,200 | $0.33 | | |
| FIRE5 | Fire & Rescue Dist #5 C Whidbey GEN | 1.2008080668 | $34,200 | $34,200 | $41.07 | | |
| FIRE5BOND | Fire & Rescue Dist #5 C Whidbey BOND | 0.1400090713 | $34,200 | $34,200 | $4.79 | | |
| HOBOND | Hospital BOND | 0.1910887512 | $34,200 | $34,200 | $6.54 | | |
| HOGEN | Hospital GEN | 0.3902502903 | $34,200 | $34,200 | $13.35 | | |
| CE | County Current Expense | 0.3708482477 | $34,200 | $34,200 | $12.68 | | |
| CR | County Roads | 0.4584763726 | $34,200 | $34,200 | $15.68 | | |
| ISLANDEMS | Hospital GEN (EMS) | 0.5000000000 | $34,200 | $34,200 | $17.10 | | |
| LIB | Library Sno-Isle GEN | 0.3153421757 | $34,200 | $34,200 | $10.78 | | |
| LIBCAP | Library Sno-Isle BOND (Cap Fac Imp Area) | 0.0543427938 | $34,200 | $34,200 | $1.86 | | |
| POCOUP | Port of Coupeville GEN | 0.1093371703 | $34,200 | $34,200 | $3.74 | | |
| POCOUPIDD | Port of Coupeville IDD | 0.3409740022 | $34,200 | $34,200 | $11.66 | | |
| COUPSDTECH | School 204 CP (TECH) | 0.7545480007 | $34,200 | $34,200 | $25.81 | | |
| SCH204MO | School 204 Enrichment | 0.6716186034 | $34,200 | $34,200 | $22.97 | | |
| ST | State School | 1.3035497053 | $34,200 | $34,200 | $44.58 | | |
| ST2 | State School Part 2 | 0.8169543533 | $34,200 | $34,200 | $27.94 | | |
| | Total Tax Rate: | 7.6592568070 | | | | | |
| | | | | Taxes w/Current Exemptions: | $261.96 | | |
| | | | | Taxes w/o Exemptions: | $261.96 | | |
Improvement / Building
| Improvement #1: | RESIDENTIAL | State Code: | Y | 0.0 sqft | Value: | $19,200 |
Sketch
Property Image
Land
| 1 | 17 | AC (01.01-02.00) | 1.4200 | 61855.20 | 0.00 | 0.00 | 1.00 | $15,000 | $0 |
Roll Value History
| 2026 | N/A | N/A | N/A | N/A | N/A |
| 2025 | $19,200 | $15,000 | $0 | $34,200 | $34,200 |
| 2024 | $19,200 | $15,000 | $0 | $34,200 | $34,200 |
| 2023 | $11,520 | $15,000 | $0 | $26,520 | $26,520 |
| 2022 | $0 | $15,000 | $0 | $15,000 | $15,000 |
| 2021 | $0 | $7,000 | $0 | $7,000 | $7,000 |
| 2020 | $0 | $7,000 | $0 | $7,000 | $7,000 |
| 2019 | $0 | $5,000 | $0 | $5,000 | $5,000 |
| 2018 | $0 | $5,000 | $0 | $5,000 | $5,000 |
| 2017 | $0 | $5,000 | $0 | $5,000 | $5,000 |
| 2016 | $0 | $85,000 | $0 | $85,000 | $85,000 |
| 2015 | $0 | $85,000 | $0 | $85,000 | $85,000 |
| 2014 | $0 | $36,000 | $0 | $36,000 | $36,000 |
| 2013 | $0 | $36,000 | $0 | $36,000 | $36,000 |
| 2012 | $0 | $36,000 | $0 | $36,000 | $36,000 |
| 2011 | $0 | $36,000 | $0 | $36,000 | $36,000 |
| 2010 | $0 | $36,000 | $0 | $36,000 | $36,000 |
| 2009 | $0 | $36,000 | $0 | $36,000 | $36,000 |
| 2008 | $0 | $32,000 | $0 | $32,000 | $32,000 |
| 2007 | $0 | $80,000 | $0 | $80,000 | $80,000 |
Deed and Sales History
| 1 | 07/09/2021 | WD | Warranty Deed | WEAGNER TRUSTEE, EUGENE | GOLDIN, SHAHAR | | | $55,000.00 | 49137 | 4524277 |
|   | |
| 2 | 12/29/1999 | QCD | Quit Claim Deed | WAGNER, EUGENE R | WAGNER FAM LVNG TRUST, EUGENE | | | $0.00 | 108 | 20000745 |
| 3 | 12/01/1978 | OTHER | Other - Misc. Documents | Unknown | WAGNER, EUGENE R | | | $5,500.00 | 90296 | 346262 |
Payout Agreement
| No payout information available.. |