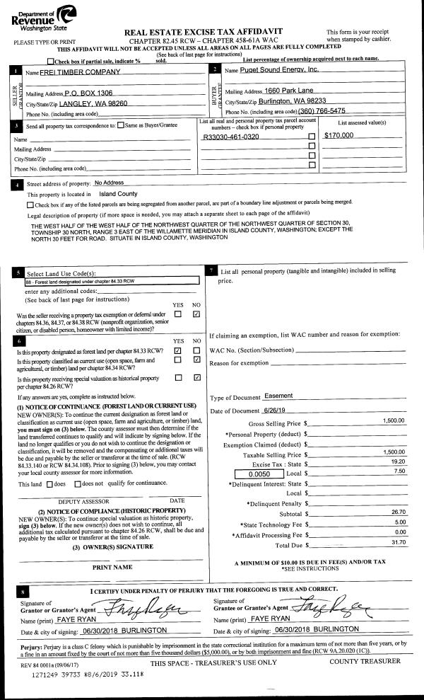
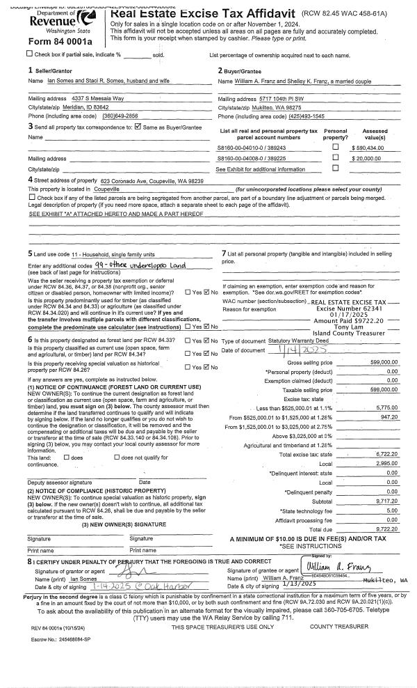
Property
Account |
| Property ID: | 6460 | Abbreviated Legal Description: | 28 R C HILL DC - LOT 15 SHERHILL VISTA (UNREC) DESC BG IP SWCR ENGLE DC N89*E 467.93' S9*E370.42' S17*E 456.49' S85*W123.58' N44*W 162.54'TPB N39*W87.79' S39*W TO HITIDLN SELY TP S35*W FR TPB N35*E TPB |
| Geographic ID: | R13109-129-1020 | Agent Code: | |
| Type: | Real | | |
| Tax Area: | 310 - APPRAISER-Cpvl Schl Dist, outside Cpvl, improved & 1 acre or less | Land Use Code | 11 |
| Open Space: | N | DFL | N |
| Historic Property: | N | Remodel Property: | N |
| Multi-Family Redevelopment: | N | | |
| Township: | 31 | Section: | 09 |
| Range: | R1 |
Location |
| Address: | 698 CATHEDRAL DR COUPEVILLE, WA 98239 | Mapsco: | |
| Neighborhood: | Area 2 Waterfront Westside Residential | Map ID: | 42 |
| Neighborhood CD: | 2WFW01R |
Owner |
| Name: | REID TTEE, SCOTT | Owner ID: | 316007 |
| Mailing Address: | LINDA FLANAGAN FREEBURG TTEE 698 CATHEDRAL DR COUPEVILLE, WA 98239 | % Ownership: | 100.0000000000% |
| | | Exemptions: | |
Taxes and Assessment Details
Values
| (+) Improvement Homesite Value: | + | $0 | |
| (+) Improvement Non-Homesite Value: | + | $584,878 | |
| (+) Land Homesite Value: | + | $0 | |
| (+) Land Non-Homesite Value: | + | $545,500 | |
| (+) Curr Use (HS): | + | $0 | $0 |
| (+) Curr Use (NHS): | + | $0 | $0 |
| | | -------------------------- | |
| (=) Market Value: | = | $1,130,378 | |
| (–) Productivity Loss: | – | $0 | |
| | | -------------------------- | |
| (=) Subtotal: | = | $1,130,378 | |
| (+) Senior Appraised Value: | + | $0 | |
| (+) Non-Senior Appraised Value: | + | $1,130,378 | |
| | | -------------------------- | |
| (=) Total Appraised Value: | = | $1,130,378 | |
| (–) Senior Exemption Loss: | – | $0 | |
| (–) Exemption Loss: | – | $0 | |
| | | -------------------------- | |
| (=) Taxable Value: | = | $1,130,378 | |
Taxing Jurisdiction
| Owner: | REID TTEE, SCOTT | | |
| % Ownership: | 100.0000000000% | | |
| Total Value: | $1,130,378 | | |
| Tax Area: | 310 - APPRAISER-Cpvl Schl Dist, outside Cpvl, improved & 1 acre or less |
| CF | Conservation Futures | 0.0316035091 | $1,130,378 | $1,130,378 | $35.72 | | |
| CEM2 | Cemetery #2 | 0.0095056933 | $1,130,378 | $1,130,378 | $10.75 | | |
| FIRE5 | Fire & Rescue Dist #5 C Whidbey GEN | 1.2008080668 | $1,130,378 | $1,130,378 | $1,357.37 | | |
| FIRE5BOND | Fire & Rescue Dist #5 C Whidbey BOND | 0.1400090713 | $1,130,378 | $1,130,378 | $158.26 | | |
| HOBOND | Hospital BOND | 0.1910887512 | $1,130,378 | $1,130,378 | $216.00 | | |
| HOGEN | Hospital GEN | 0.3902502903 | $1,130,378 | $1,130,378 | $441.13 | | |
| CE | County Current Expense | 0.3708482477 | $1,130,378 | $1,130,378 | $419.20 | | |
| CR | County Roads | 0.4584763726 | $1,130,378 | $1,130,378 | $518.25 | | |
| ISLANDEMS | Hospital GEN (EMS) | 0.5000000000 | $1,130,378 | $1,130,378 | $565.19 | | |
| LIB | Library Sno-Isle GEN | 0.3153421757 | $1,130,378 | $1,130,378 | $356.46 | | |
| LIBCAP | Library Sno-Isle BOND (Cap Fac Imp Area) | 0.0543427938 | $1,130,378 | $1,130,378 | $61.43 | | |
| POCOUP | Port of Coupeville GEN | 0.1093371703 | $1,130,378 | $1,130,378 | $123.59 | | |
| POCOUPIDD | Port of Coupeville IDD | 0.3409740022 | $1,130,378 | $1,130,378 | $385.43 | | |
| COUPSDTECH | School 204 CP (TECH) | 0.7545480007 | $1,130,378 | $1,130,378 | $852.92 | | |
| SCH204MO | School 204 Enrichment | 0.6716186034 | $1,130,378 | $1,130,378 | $759.18 | | |
| ST | State School | 1.3035497053 | $1,130,378 | $1,130,378 | $1,473.50 | | |
| ST2 | State School Part 2 | 0.8169543533 | $1,130,378 | $1,130,378 | $923.47 | | |
| | Total Tax Rate: | 7.6592568070 | | | | | |
| | | | | Taxes w/Current Exemptions: | $8,657.85 | | |
| | | | | Taxes w/o Exemptions: | $8,657.85 | | |
Improvement / Building
| Improvement #1: | RESIDENTIAL | State Code: | Y | 2358.6 sqft | Value: | $584,878 |
| Bathrooms: | 2 | Bedrooms: | 3 | | Ceiling: | DRY WALL SPRAYED | Cooling: | HEAT PUMP/CONV/V | | Exterior Wall/Cover: | WOOD SIDING | Floor Covering: | CARPET/VINYL 80-20 | | Floor Structure: | WOOD W/SUBFLOOR | Foundation: | CONCRETE | | Interior Finish: | DRYWALL PAINT | Plumbing Fixture Cnt: | 12 | | Roof Slope: | 4" IN 12" | Roof Structure/Cover: | CJ ASPHALT |
|
| | Type | Description | Class CD | Sub Class CD | Year Built | Area |
| | BAS | BASE/MAIN FLOOR | 5 | 0 | 1984 | 1932.0 |
| | OP2 | OPEN PORCH W/STEPS | 5 | 0 | 1984 | 187.0 |
| | ENP | ENCLOSED PORCH | 5 | 0 | 1984 | 259.9 |
| | DWN | DOWNSTAIRS LIVING AREA | 5 | 0 | 1984 | 426.6 |
| | AGR | ATTACHED GARAGE | 5 | 0 | 1984 | 432.0 |
| | UTY | STORAGE/UTILITY | 5 | 0 | 1984 | 151.1 |
| | AGR | ATTACHED GARAGE | 5 | 0 | 1984 | 500.5 |
| | UTY | STORAGE/UTILITY | 5 | 0 | 1984 | 129.1 |
| | ENP | ENCLOSED PORCH | 5 | 0 | 1984 | 323.0 |
| | OP4 | OPEN PORCH W/CEILING-ROOF | 5 | 0 | 1984 | 90.0 |
| | UTY | STORAGE/UTILITY | 5 | 0 | 1984 | 740.8 |
Sketch
Property Image
Land
| 1 | HB | HIGH BLUFF | 0.5900 | 25700.40 | 100.00 | 0.00 | 1.00 | $545,500 | $0 |
Roll Value History
| 2026 | N/A | N/A | N/A | N/A | N/A |
| 2025 | $584,878 | $545,500 | $0 | $1,130,378 | $1,130,378 |
| 2024 | $481,675 | $545,500 | $0 | $1,027,175 | $1,027,175 |
| 2023 | $324,188 | $519,750 | $0 | $843,938 | $843,938 |
| 2022 | $299,415 | $495,000 | $0 | $794,415 | $794,415 |
| 2021 | $263,871 | $450,000 | $0 | $713,871 | $713,871 |
| 2020 | $255,108 | $450,000 | $0 | $705,108 | $705,108 |
| 2019 | $197,482 | $500,000 | $0 | $697,482 | $697,482 |
| 2018 | $162,425 | $500,000 | $0 | $662,425 | $662,425 |
| 2017 | $163,580 | $500,000 | $0 | $663,580 | $663,580 |
| 2016 | $166,023 | $500,000 | $0 | $666,023 | $666,023 |
| 2015 | $168,463 | $500,000 | $0 | $668,463 | $668,463 |
| 2014 | $170,905 | $500,000 | $0 | $670,905 | $670,905 |
| 2013 | $173,346 | $459,264 | $0 | $632,610 | $632,610 |
| 2012 | $184,890 | $459,264 | $0 | $644,154 | $644,154 |
| 2011 | $187,316 | $540,402 | $0 | $727,718 | $727,718 |
| 2010 | $198,015 | $540,402 | $0 | $738,417 | $738,417 |
| 2009 | $203,776 | $581,210 | $0 | $784,986 | $784,986 |
| 2008 | $204,179 | $562,661 | $0 | $766,840 | $766,840 |
| 2007 | $206,622 | $426,633 | $0 | $633,255 | $633,255 |
Deed and Sales History
| 1 | 03/24/2025 | QCD | Quit Claim Deed | REID, SCOTT | REID TTEE, SCOTT | | | $0.00 | 62999 | 4583956 |
| 2 | 03/24/2025 | QCD | Quit Claim Deed | REID, SCOTT | REID, SCOTT | | | $0.00 | 62998 | 4583955 |
| 3 | 08/22/2019 | QCD | Quit Claim Deed | FLOHR, LESLIE | REID, SCOTT | | | $0.00 | 39978 | 4469988 |
| 4 | 08/21/2019 | WD | Warranty Deed | STEPHENSON TRUSTEE, THOMAS R | REID, SCOTT | | | $710,000.00 | 39975 | 4469987 |
| 5 | 07/10/2014 | PRD | Personal Representatives Deed | STEPHENSON, THOMAS | STEPHENSON TRUSTEE, THOMAS R | | | $0.00 | 16192 | 4363116 |
| 6 | 07/24/2001 | WD | Warranty Deed | DEKABAN, ANATOLE S | STEPHENSON, THOMAS | | | $320,000.00 | 12951 | 20039073 |
| 7 | 07/24/1998 | QCD | Quit Claim Deed | DEKABAN, ANATOLE | DEKABAN, ANATOLE S | | | $0.00 | 90448 | 99003018 |
| 8 | 09/01/1983 | WD | Warranty Deed | MCGREGOR, CRAIG | DEKABAN, ANATOLE | | | $56,000.00 | 32691 | 415072 |
| 9 | 01/01/1900 | OTHER | Other - Misc. Documents | Unknown | MCGREGOR, CRAIG | | | $0.00 | 0 | 0 |
Payout Agreement
| No payout information available.. |