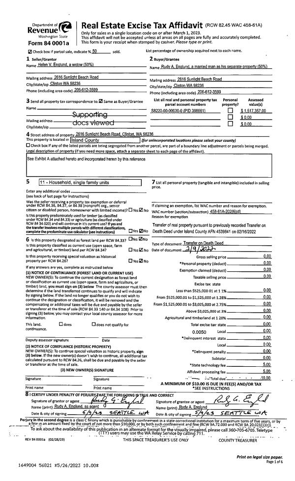
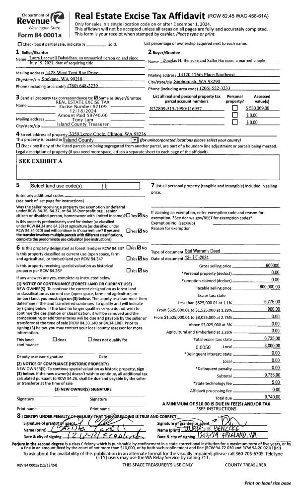
Property
Account |
| Property ID: | 64664 | Abbreviated Legal Description: | 37 - IN NE NW: W165' OF N660' OF E330' OF TR A LAGOON PT TRS 30M11 AF#158873 |
| Geographic ID: | R23020-503-1910 | Agent Code: | |
| Type: | Real | | |
| Tax Area: | 312 - APPRAISER-Cpvl Schl Dist, outside Cpvl, improved, greater than 1 acre | Land Use Code | 11 |
| Open Space: | N | DFL | N |
| Historic Property: | N | Remodel Property: | N |
| Multi-Family Redevelopment: | N | | |
| Township: | 30 | Section: | 20 |
| Range: | R2 |
Location |
| Address: | 538 LAGOON POIN RD GREENBANK, WA 98253 | Mapsco: | |
| Neighborhood: | Cycle 3 | Map ID: | 398 |
| Neighborhood CD: | 3 |
Owner |
| Name: | BEDELL, DOUGLAS | Owner ID: | 307288 |
| Mailing Address: | LAURA M BEDELL PO BOX 334 FREELAND, WA 98249 | % Ownership: | 100.0000000000% |
| | | Exemptions: | |
Taxes and Assessment Details
Values
| (+) Improvement Homesite Value: | + | $0 | |
| (+) Improvement Non-Homesite Value: | + | $45,000 | |
| (+) Land Homesite Value: | + | $0 | |
| (+) Land Non-Homesite Value: | + | $160,000 | |
| (+) Curr Use (HS): | + | $0 | $0 |
| (+) Curr Use (NHS): | + | $0 | $0 |
| | | -------------------------- | |
| (=) Market Value: | = | $205,000 | |
| (–) Productivity Loss: | – | $0 | |
| | | -------------------------- | |
| (=) Subtotal: | = | $205,000 | |
| (+) Senior Appraised Value: | + | $0 | |
| (+) Non-Senior Appraised Value: | + | $205,000 | |
| | | -------------------------- | |
| (=) Total Appraised Value: | = | $205,000 | |
| (–) Senior Exemption Loss: | – | $0 | |
| (–) Exemption Loss: | – | $0 | |
| | | -------------------------- | |
| (=) Taxable Value: | = | $205,000 | |
Taxing Jurisdiction
| Owner: | BEDELL, DOUGLAS | | |
| % Ownership: | 100.0000000000% | | |
| Total Value: | $205,000 | | |
| Tax Area: | 312 - APPRAISER-Cpvl Schl Dist, outside Cpvl, improved, greater than 1 acre |
| CF | Conservation Futures | 0.0316035091 | $205,000 | $205,000 | $6.48 | | |
| CEM2 | Cemetery #2 | 0.0095056933 | $205,000 | $205,000 | $1.95 | | |
| FIRE5 | Fire & Rescue Dist #5 C Whidbey GEN | 1.2008080668 | $205,000 | $205,000 | $246.17 | | |
| FIRE5BOND | Fire & Rescue Dist #5 C Whidbey BOND | 0.1400090713 | $205,000 | $205,000 | $28.70 | | |
| HOBOND | Hospital BOND | 0.1910887512 | $205,000 | $205,000 | $39.17 | | |
| HOGEN | Hospital GEN | 0.3902502903 | $205,000 | $205,000 | $80.00 | | |
| CE | County Current Expense | 0.3708482477 | $205,000 | $205,000 | $76.02 | | |
| CR | County Roads | 0.4584763726 | $205,000 | $205,000 | $93.99 | | |
| ISLANDEMS | Hospital GEN (EMS) | 0.5000000000 | $205,000 | $205,000 | $102.50 | | |
| LIB | Library Sno-Isle GEN | 0.3153421757 | $205,000 | $205,000 | $64.65 | | |
| LIBCAP | Library Sno-Isle BOND (Cap Fac Imp Area) | 0.0543427938 | $205,000 | $205,000 | $11.14 | | |
| POCOUP | Port of Coupeville GEN | 0.1093371703 | $205,000 | $205,000 | $22.41 | | |
| POCOUPIDD | Port of Coupeville IDD | 0.3409740022 | $205,000 | $205,000 | $69.90 | | |
| COUPSDTECH | School 204 CP (TECH) | 0.7545480007 | $205,000 | $205,000 | $154.68 | | |
| SCH204MO | School 204 Enrichment | 0.6716186034 | $205,000 | $205,000 | $137.68 | | |
| ST | State School | 1.3035497053 | $205,000 | $205,000 | $267.23 | | |
| ST2 | State School Part 2 | 0.8169543533 | $205,000 | $205,000 | $167.48 | | |
| | Total Tax Rate: | 7.6592568070 | | | | | |
| | | | | Taxes w/Current Exemptions: | $1,570.15 | | |
| | | | | Taxes w/o Exemptions: | $1,570.15 | | |
Improvement / Building
| Improvement #1: | RESIDENTIAL | State Code: | Y | 0.0 sqft | Value: | $45,000 |
Sketch
Property Image
Land
| 1 | 18 | AC (02.01-03.00) | 2.5000 | 108900.00 | 0.00 | 0.00 | 1.00 | $160,000 | $0 |
Roll Value History
| 2026 | N/A | N/A | N/A | N/A | N/A |
| 2025 | $45,000 | $160,000 | $0 | $205,000 | $205,000 |
| 2024 | $45,000 | $160,000 | $0 | $205,000 | $205,000 |
| 2023 | $0 | $150,000 | $0 | $150,000 | $150,000 |
| 2022 | $0 | $150,000 | $0 | $150,000 | $150,000 |
| 2021 | $0 | $115,000 | $0 | $115,000 | $115,000 |
| 2020 | $0 | $90,000 | $0 | $90,000 | $90,000 |
| 2019 | $0 | $110,000 | $0 | $110,000 | $110,000 |
| 2018 | $0 | $85,000 | $0 | $85,000 | $85,000 |
| 2017 | $0 | $75,000 | $0 | $75,000 | $75,000 |
| 2016 | $0 | $100,000 | $0 | $100,000 | $100,000 |
| 2015 | $0 | $100,000 | $0 | $100,000 | $100,000 |
| 2014 | $0 | $80,000 | $0 | $80,000 | $80,000 |
| 2013 | $0 | $100,000 | $0 | $100,000 | $100,000 |
| 2012 | $0 | $100,000 | $0 | $100,000 | $100,000 |
| 2011 | $0 | $100,000 | $0 | $100,000 | $100,000 |
| 2010 | $0 | $100,000 | $0 | $100,000 | $100,000 |
| 2009 | $0 | $125,000 | $0 | $125,000 | $125,000 |
| 2008 | $0 | $47,500 | $0 | $47,500 | $47,500 |
| 2007 | $0 | $47,500 | $0 | $47,500 | $47,500 |
Deed and Sales History
| 1 | 01/12/2023 | WD | Warranty Deed | THETFORD, THOMAS | BEDELL, DOUGLAS | | | $165,000.00 | 55618 | 4555707 |
| 2 | 06/23/2014 | WD | Warranty Deed | WALL, CRAIG V | THETFORD, THOMAS | | | $45,500.00 | 15735 | 4361283 |
| 3 | 06/21/2006 | WD | Warranty Deed | FLYNN, DENNY L | WALL, CRAIG V | | | $55,000.00 | 62748 | 4174165 |
| 4 | 07/01/1996 | WD | Warranty Deed | TODD, FRANK & | FLYNN, DENNY L | | | $30,450.00 | 62803 | 96013729 |
| 5 | 03/01/1995 | QCD | Quit Claim Deed | ROUSH, CHARLES D | TODD, FRANK & | | | $0.00 | 50977 | 95004706 |
| 6 | 12/01/1993 | WD | Warranty Deed | TODD, FRANK & | ROUSH, CHARLES D | | | $25,000.00 | 34663 | 93024271 |
| 7 | 04/01/1991 | QCD | Quit Claim Deed | THORNTON, JEFFREY D | TODD, FRANK & | | | $0.00 | 11615 | 91006798 |
| 8 | 05/01/1989 | WD | Warranty Deed | NOVAK, EDMOND | THORNTON, JEFFREY D | | | $13,500.00 | 92061 | 89006998 |
| 9 | 01/01/1900 | OTHER | Other - Misc. Documents | Unknown | NOVAK, EDMOND | | | $0.00 | 0 | 0 |
Payout Agreement
| No payout information available.. |