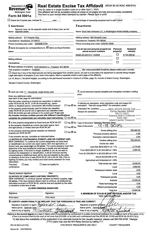
Property
Account |
| Property ID: | 647492 | Abbreviated Legal Description: | PT OF FOLL DESC LY S OF CARP LAKE RD: W1/3 OF E2/3 OF SW SW SE FR 033-2980 |
| Geographic ID: | R23235-008-2970 | Agent Code: | |
| Type: | Real | | |
| Tax Area: | 510 - APPRAISER-Stan/Cam Schl Dist, improved & 1 acre or less | Land Use Code | 11 |
| Open Space: | N | DFL | N |
| Historic Property: | N | Remodel Property: | N |
| Multi-Family Redevelopment: | N | | |
| Township: | 32 | Section: | 35 |
| Range: | R2 |
Location |
| Address: | 573 CARP LAKE RD CAMANO ISLAND, WA 98282 | Mapsco: | |
| Neighborhood: | North Camano | Map ID: | 576 |
| Neighborhood CD: | 06-C |
Owner |
| Name: | CHAPMAN, THOMAS | Owner ID: | 316178 |
| Mailing Address: | ALYSHA BERLEUE 573 W CARP LAKE RD CAMANO ISLAND, WA 98282 | % Ownership: | 100.0000000000% |
| | | Exemptions: | |
Taxes and Assessment Details
Values
| (+) Improvement Homesite Value: | + | $0 | |
| (+) Improvement Non-Homesite Value: | + | $150,654 | |
| (+) Land Homesite Value: | + | $0 | |
| (+) Land Non-Homesite Value: | + | $260,000 | |
| (+) Curr Use (HS): | + | $0 | $0 |
| (+) Curr Use (NHS): | + | $0 | $0 |
| | | -------------------------- | |
| (=) Market Value: | = | $410,654 | |
| (–) Productivity Loss: | – | $0 | |
| | | -------------------------- | |
| (=) Subtotal: | = | $410,654 | |
| (+) Senior Appraised Value: | + | $0 | |
| (+) Non-Senior Appraised Value: | + | $410,654 | |
| | | -------------------------- | |
| (=) Total Appraised Value: | = | $410,654 | |
| (–) Senior Exemption Loss: | – | $0 | |
| (–) Exemption Loss: | – | $0 | |
| | | -------------------------- | |
| (=) Taxable Value: | = | $410,654 | |
Taxing Jurisdiction
| Owner: | CHAPMAN, THOMAS | | |
| % Ownership: | 100.0000000000% | | |
| Total Value: | $410,654 | | |
| Tax Area: | 510 - APPRAISER-Stan/Cam Schl Dist, improved & 1 acre or less |
| CF | Conservation Futures | 0.0316035091 | $410,654 | $410,654 | $12.98 | | |
| EMS1 | Fire & Rescue Dist #1 Camano GEN (EMS) | 0.3677864386 | $410,654 | $410,654 | $151.03 | | |
| FIRE1 | Fire & Rescue Dist #1 Camano GEN | 1.2502910536 | $410,654 | $410,654 | $513.44 | | |
| FIRE1BOND | Fire & Rescue Dist #1 Camano BOND | 0.1570001679 | $410,654 | $410,654 | $64.47 | | |
| CE | County Current Expense | 0.3708482477 | $410,654 | $410,654 | $152.29 | | |
| CR | County Roads | 0.4584763726 | $410,654 | $410,654 | $188.28 | | |
| LCIB | Library Sno-Isle BOND (Camano Island) | 0.0396325772 | $410,654 | $410,654 | $16.28 | | |
| LIB | Library Sno-Isle GEN | 0.3153421757 | $410,654 | $410,654 | $129.50 | | |
| SCH205_401 | School 205-401 Enrichment | 1.2698420524 | $410,654 | $410,654 | $521.47 | | |
| SCH205BOND | School 205-401 BOND | 0.9396497583 | $410,654 | $410,654 | $385.87 | | |
| ST | State School | 1.3035497053 | $410,654 | $410,654 | $535.31 | | |
| ST2 | State School Part 2 | 0.8169543533 | $410,654 | $410,654 | $335.49 | | |
| | Total Tax Rate: | 7.3209764117 | | | | | |
| | | | | Taxes w/Current Exemptions: | $3,006.41 | | |
| | | | | Taxes w/o Exemptions: | $3,006.41 | | |
Improvement / Building
| Improvement #1: | MANUFACTURED HOME | State Code: | Y | 1296.0 sqft | Value: | $150,654 |
| Bathrooms: | 1 | Bedrooms: | 2 | | Ceiling: | PLASTER PAINTED | Cooling: | EVAP NO DUCT | | Exterior Wall/Cover: | VINYL | Floor Covering: | CARPET 100% | | Floor Structure: | SLAB ON GRADE | Foundation: | SLAB | | Heating: | FHA ELECTRIC | Interior Finish: | PLASTER | | Plumbing Fixture Cnt: | 1 | Roof Slope: | FLAT | | Roof Structure/Cover: | CJ ALUMINIUM HEAVY |   |   |
|
| | Type | Description | Class CD | Sub Class CD | Year Built | Area |
| | BAS | BASE/MAIN FLOOR | 4 | 0 | 2025 | 1296.0 |
| | OWP | OPEN WOOD PORCH W/STEPS | 4 | 0 | 2025 | 0.0 |
Sketch
| No sketches available for this property. |
Property Image
Land
| 1 | 16 | AC (00.51-01.00) | 0.9600 | 41817.60 | 0.00 | 0.00 | 1.00 | $260,000 | $0 |
Roll Value History
| 2026 | N/A | N/A | N/A | N/A | N/A |
| 2025 | $150,654 | $260,000 | $0 | $410,654 | $410,654 |
| 2024 | $0 | $140,000 | $0 | $140,000 | $140,000 |
| 2023 | $0 | $110,000 | $0 | $110,000 | $110,000 |
| 2022 | $0 | $50,000 | $0 | $50,000 | $50,000 |
| 2021 | $0 | $40,000 | $0 | $40,000 | $40,000 |
| 2020 | $0 | $40,000 | $0 | $40,000 | $40,000 |
| 2019 | $0 | $80,000 | $0 | $80,000 | $80,000 |
| 2018 | $0 | $70,000 | $0 | $70,000 | $70,000 |
| 2017 | $0 | $70,000 | $0 | $70,000 | $70,000 |
| 2016 | $0 | $75,000 | $0 | $75,000 | $75,000 |
| 2015 | $0 | $59,096 | $0 | $59,096 | $59,096 |
| 2014 | $0 | $59,096 | $0 | $59,096 | $59,096 |
| 2013 | $0 | $59,096 | $0 | $59,096 | $59,096 |
| 2012 | $0 | $59,096 | $0 | $59,096 | $59,096 |
| 2011 | $0 | $61,700 | $0 | $61,700 | $61,700 |
| 2010 | $0 | $61,700 | $0 | $61,700 | $61,700 |
| 2009 | $0 | $80,000 | $0 | $80,000 | $80,000 |
| 2008 | $0 | $89,500 | $0 | $89,500 | $89,500 |
| 2007 | $0 | $89,500 | $0 | $89,500 | $89,500 |
Deed and Sales History
| 1 | 04/18/2025 | WD | Warranty Deed | HOSKINS, JEREMY | CHAPMAN, THOMAS | | | $420,000.00 | 63206 | 4584801 |
| 2 | 04/14/2023 | WD | Warranty Deed | BEZOWSKY, GARY R | HOSKINS, JEREMY | | | $89,900.00 | 56427 | 4558900 |
| 3 | 04/22/2022 | WD | Warranty Deed | ADDICOTT, KENDRA LEE | BEZOWSKY, GARY R | | | $75,000.00 | 52842 | 4544004 |
| 4 | 10/09/2019 | WD | Warranty Deed | WINNIE, STEVEN M | ADDICOTT, KENDRA LEE | | | $35,000.00 | 40849 | 4474160 |
| 5 | 02/21/2013 | WD | Warranty Deed | NORTHWEST PLUS CREDIT UNION | WINNIE, STEVEN M | | | $12,000.00 | 10513 | 4334487 |
|   | |
| 6 | 07/29/2005 | TRUSTEED | Trustee's Deed | LARSON, GLEN W | NORTHWEST PLUS CREDIT UNION, | | | $78,624.00 | 53604 | 4142202 |
| 7 | 05/01/1990 | QCD | Quit Claim Deed | NEW, JAMES C | LARSON, GLEN W | | | $0.00 | 2813 | 90009203 |
| 8 | 07/01/1981 | TRUSTEED | Trustee's Deed | Unknown | NEW, JAMES C | | | $15,000.00 | 12232 | 385655 |
| 9 | 01/01/1900 | OTHER | Other - Misc. Documents | NEW, JAMES C | NEW, JAMES C | | | $0.00 | 12232 | 385655 |
Payout Agreement
| No payout information available.. |