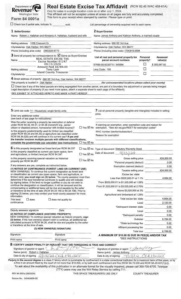
Property
Account |
| Property ID: | 647642 | Abbreviated Legal Description: | LOT 1 OH-SP 6-90.13202.348-1770 V2 SP P238 AF#90009740 TGW & SUB EZ AF#90009741 |
| Geographic ID: | R13202-344-1840 | Agent Code: | |
| Type: | Real | | |
| Tax Area: | 100 - APPRAISER-OH Schl Dist, in OH | Land Use Code | 12 |
| Open Space: | N | DFL | N |
| Historic Property: | N | Remodel Property: | N |
| Multi-Family Redevelopment: | N | | |
| Township: | 32 | Section: | 02 |
| Range: | R1 |
Location |
| Address: | 568 SE 8TH AVE OAK HARBOR, WA 98277 | Mapsco: | |
| Neighborhood: | 12cOH-se 8th av | Map ID: | 88 |
| Neighborhood CD: | 12cOHse8th |
Owner |
| Name: | LOST OAKS, LLC | Owner ID: | 179738 |
| Mailing Address: | 33345 STATE ROUTE 20 OAK HARBOR, WA 98277 | % Ownership: | 100.0000000000% |
| | | Exemptions: | |
Taxes and Assessment Details
Values
| (+) Improvement Homesite Value: | + | $0 | |
| (+) Improvement Non-Homesite Value: | + | $361,848 | |
| (+) Land Homesite Value: | + | $0 | |
| (+) Land Non-Homesite Value: | + | $222,156 | |
| (+) Curr Use (HS): | + | $0 | $0 |
| (+) Curr Use (NHS): | + | $0 | $0 |
| | | -------------------------- | |
| (=) Market Value: | = | $584,004 | |
| (–) Productivity Loss: | – | $0 | |
| | | -------------------------- | |
| (=) Subtotal: | = | $584,004 | |
| (+) Senior Appraised Value: | + | $0 | |
| (+) Non-Senior Appraised Value: | + | $584,004 | |
| | | -------------------------- | |
| (=) Total Appraised Value: | = | $584,004 | |
| (–) Senior Exemption Loss: | – | $0 | |
| (–) Exemption Loss: | – | $0 | |
| | | -------------------------- | |
| (=) Taxable Value: | = | $584,004 | |
Taxing Jurisdiction
| Owner: | LOST OAKS, LLC | | |
| % Ownership: | 100.0000000000% | | |
| Total Value: | $584,004 | | |
| Tax Area: | 100 - APPRAISER-OH Schl Dist, in OH |
| CF | Conservation Futures | 0.0316035091 | $584,004 | $584,004 | $18.46 | | |
| CEM1 | Cemetery #1 | 0.0040320932 | $584,004 | $584,004 | $2.35 | | |
| COH | City of Oak Harbor | 2.3001546061 | $584,004 | $584,004 | $1,343.30 | | |
| OAKBOND | City of Oak Harbor BOND | 0.1926904192 | $584,004 | $584,004 | $112.53 | | |
| HOBOND | Hospital BOND | 0.1910887512 | $584,004 | $584,004 | $111.60 | | |
| HOGEN | Hospital GEN | 0.3902502903 | $584,004 | $584,004 | $227.91 | | |
| CE | County Current Expense | 0.3708482477 | $584,004 | $584,004 | $216.58 | | |
| ISLANDEMS | Hospital GEN (EMS) | 0.5000000000 | $584,004 | $584,004 | $292.00 | | |
| LIB | Library Sno-Isle GEN | 0.3153421757 | $584,004 | $584,004 | $184.16 | | |
| NWHIDPRMT | P & R N Whidbey GEN | 0.2004466701 | $584,004 | $584,004 | $117.06 | | |
| SCH201MO | School 201 Enrichment | 1.8559231640 | $584,004 | $584,004 | $1,083.87 | | |
| ST | State School | 1.3035497053 | $584,004 | $584,004 | $761.28 | | |
| ST2 | State School Part 2 | 0.8169543533 | $584,004 | $584,004 | $477.10 | | |
| | Total Tax Rate: | 8.4728839852 | | | | | |
| | | | | Taxes w/Current Exemptions: | $4,948.20 | | |
| | | | | Taxes w/o Exemptions: | $4,948.20 | | |
Improvement / Building
| Improvement #1: | RESIDENTIAL/COMMERCIAL | State Code: | B4 | 3246.0 sqft | Value: | $361,848 |
| Bathrooms: | 8 | Bedrooms: | 8 | | Ceiling: | DRYWALL PAINTED | Exterior Wall/Cover: | VINYL | | Floor Covering: | CARPET/VINYL 80-20 | Floor Structure: | WOOD W/SUBFLOOR | | Foundation: | CONCRETE | Heating: | FHA GAS | | Interior Finish: | DRYWALL PAINT | Plumbing Fixture Cnt: | 36 | | Roof Slope: | 4" IN 12" | Roof Structure/Cover: | CJ ASPHALT |
|
| | Type | Description | Class CD | Sub Class CD | Year Built | Area |
| | BAS | BASE/MAIN FLOOR | 3 | 0 | 1991 | 1586.0 |
| | OP4 | OPEN PORCH W/CEILING-ROOF | 3 | 0 | 1991 | 144.0 |
| | UPS | UPPER STORY | 3 | 0 | 1991 | 1660.0 |
| | OWP | OPEN WOOD PORCH W/STEPS | 3 | 0 | 1991 | 96.0 |
| | OP1 | OPEN PORCH SLAB | 3 | 0 | 1991 | 27.0 |
| | OP1 | OPEN PORCH SLAB | 3 | 0 | 1991 | 27.0 |
| | OWC | OPEN WOOD PORCH W/STEPS/ROOF/C | 3 | 0 | 1991 | 45.0 |
| | OWC | OPEN WOOD PORCH W/STEPS/ROOF/C | 3 | 0 | 1991 | 45.0 |
| | UTY | STORAGE/UTILITY | 3 | 0 | 1991 | 108.0 |
| | oPV1 | PV/ASPH 2" | 3 | 0 | 1991 | 2600.0 |
Sketch
Property Image
Land
| 1 | 61 | MULTIPLE RESIDENCES | 0.1700 | 7405.20 | 0.00 | 0.00 | 1.00 | $222,156 | $0 |
Roll Value History
| 2026 | N/A | N/A | N/A | N/A | N/A |
| 2025 | $361,848 | $222,156 | $0 | $584,004 | $584,004 |
| 2024 | $366,408 | $222,156 | $0 | $588,564 | $588,564 |
| 2023 | $343,999 | $222,156 | $0 | $566,155 | $566,155 |
| 2022 | $272,860 | $222,156 | $0 | $495,016 | $495,016 |
| 2021 | $271,206 | $222,156 | $0 | $493,362 | $493,362 |
| 2020 | $270,844 | $222,156 | $0 | $493,000 | $493,000 |
| 2019 | $254,484 | $222,156 | $0 | $476,640 | $476,640 |
| 2018 | $254,510 | $250,000 | $0 | $504,510 | $504,510 |
| 2017 | $298,037 | $59,242 | $0 | $357,279 | $357,279 |
| 2016 | $298,037 | $59,242 | $0 | $357,279 | $357,279 |
| 2015 | $298,037 | $43,848 | $0 | $341,885 | $341,885 |
| 2014 | $284,274 | $43,848 | $0 | $328,122 | $328,122 |
| 2013 | $284,274 | $43,848 | $0 | $328,122 | $328,122 |
| 2012 | $284,274 | $43,848 | $0 | $328,122 | $328,122 |
| 2011 | $284,274 | $43,848 | $0 | $328,122 | $328,122 |
| 2010 | $278,733 | $43,848 | $0 | $322,581 | $322,581 |
| 2009 | $281,961 | $63,882 | $0 | $345,843 | $345,843 |
| 2008 | $285,190 | $67,208 | $0 | $352,398 | $352,398 |
| 2007 | $288,418 | $67,208 | $0 | $355,626 | $355,626 |
Deed and Sales History
| 1 | 03/06/2009 | QCD | Quit Claim Deed | FRANSSEN, JOSEPH H | LOST OAKS, LLC, | | | $0.00 | 90492 | 4646047 |
| 2 | 03/30/1999 | QCD | Quit Claim Deed | FRANSSEN, FRANS P | FRANSSEN, JOSEPH H | | | $61,402.00 | 91185 | 99007792 |
| 3 | 01/01/1900 | OTHER | Other - Misc. Documents | Unknown | FRANSSEN, FRANS P | | | $0.00 | 1854 | 90005955 |
Payout Agreement
| No payout information available.. |