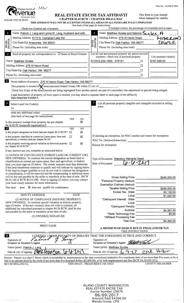
Property
Account |
| Property ID: | 648570 | Abbreviated Legal Description: | LOT 2 SP 86-20.32911.505-4220 V2 SP P244 TGW & SUB EZ AF#91001784 TERM EZ AF#93003359 |
| Geographic ID: | R32911-527-4880 | Agent Code: | |
| Type: | Real | | |
| Tax Area: | 712 - APPRAISER-S Whid Schl Dist, outside Langley, improved, greater than 1 acre | Land Use Code | 11 |
| Open Space: | N | DFL | N |
| Historic Property: | N | Remodel Property: | N |
| Multi-Family Redevelopment: | N | | |
| Township: | 29 | Section: | 11 |
| Range: | R3 |
Location |
| Address: | 4369 BELLELLEN WAY LANGLEY, WA 98260 | Mapsco: | |
| Neighborhood: | Cycle 4 | Map ID: | 761 |
| Neighborhood CD: | 4 |
Owner |
| Name: | WELSH, GORDON L | Owner ID: | 310206 |
| Mailing Address: | SUZANNE B BENSON 4369 BELLELLEN WAY LANGLEY, WA 98260 | % Ownership: | 100.0000000000% |
| | | Exemptions: | |
Taxes and Assessment Details
Values
| (+) Improvement Homesite Value: | + | $0 | |
| (+) Improvement Non-Homesite Value: | + | $549,533 | |
| (+) Land Homesite Value: | + | $0 | |
| (+) Land Non-Homesite Value: | + | $370,000 | |
| (+) Curr Use (HS): | + | $0 | $0 |
| (+) Curr Use (NHS): | + | $0 | $0 |
| | | -------------------------- | |
| (=) Market Value: | = | $919,533 | |
| (–) Productivity Loss: | – | $0 | |
| | | -------------------------- | |
| (=) Subtotal: | = | $919,533 | |
| (+) Senior Appraised Value: | + | $0 | |
| (+) Non-Senior Appraised Value: | + | $919,533 | |
| | | -------------------------- | |
| (=) Total Appraised Value: | = | $919,533 | |
| (–) Senior Exemption Loss: | – | $0 | |
| (–) Exemption Loss: | – | $0 | |
| | | -------------------------- | |
| (=) Taxable Value: | = | $919,533 | |
Taxing Jurisdiction
| Owner: | WELSH, GORDON L | | |
| % Ownership: | 100.0000000000% | | |
| Total Value: | $919,533 | | |
| Tax Area: | 712 - APPRAISER-S Whid Schl Dist, outside Langley, improved, greater than 1 acre |
| CF | Conservation Futures | 0.0316035091 | $919,533 | $919,533 | $29.06 | | |
| FIRE3 | Fire & Rescue Dist #3 S Whidbey GEN | 1.2004855531 | $919,533 | $919,533 | $1,103.89 | | |
| HOBOND | Hospital BOND | 0.1910887512 | $919,533 | $919,533 | $175.71 | | |
| HOGEN | Hospital GEN | 0.3902502903 | $919,533 | $919,533 | $358.85 | | |
| CE | County Current Expense | 0.3708482477 | $919,533 | $919,533 | $341.01 | | |
| CR | County Roads | 0.4584763726 | $919,533 | $919,533 | $421.58 | | |
| ISLANDEMS | Hospital GEN (EMS) | 0.5000000000 | $919,533 | $919,533 | $459.77 | | |
| LIB | Library Sno-Isle GEN | 0.3153421757 | $919,533 | $919,533 | $289.97 | | |
| PORTWHID | Port of S Whidbey GEN | 0.1094540357 | $919,533 | $919,533 | $100.65 | | |
| SCH206BOND | School 206 BOND | 0.3161759235 | $919,533 | $919,533 | $290.73 | | |
| SCH206MO | School 206 Enrichment | 0.4547169547 | $919,533 | $919,533 | $418.13 | | |
| ST | State School | 1.3035497053 | $919,533 | $919,533 | $1,198.66 | | |
| ST2 | State School Part 2 | 0.8169543533 | $919,533 | $919,533 | $751.22 | | |
| SWHIDPRBD | P & R S Whidbey BOND | 0.0152817568 | $919,533 | $919,533 | $14.05 | | |
| SWHIDPRBD2 | P & R S Whidbey BOND2 | 0.0138911264 | $919,533 | $919,533 | $12.77 | | |
| SWHIDPRMT | P & R S Whidbey GEN | 0.2053334452 | $919,533 | $919,533 | $188.81 | | |
| | Total Tax Rate: | 6.6934522006 | | | | | |
| | | | | Taxes w/Current Exemptions: | $6,154.86 | | |
| | | | | Taxes w/o Exemptions: | $6,154.86 | | |
Improvement / Building
| Improvement #1: | RESIDENTIAL | State Code: | Y | 1902.0 sqft | Value: | $549,533 |
| Bathrooms: | 2 | Bedrooms: | 3 | | Ceiling: | DRYWALL PAINTED | Cooling: | HEAT PUMP/CONV/V | | Exterior Wall/Cover: | CEMENT FIBER | Floor Covering: | HARDWOOD/CARP 80-20 | | Floor Structure: | WOOD W/SUBFLOOR | Foundation: | CONCRETE | | Interior Finish: | DRYWALL PAINT | Plumbing Fixture Cnt: | 12 | | Roof Slope: | 4" IN 12" | Roof Structure/Cover: | CJ ASPHALT |
|
| | Type | Description | Class CD | Sub Class CD | Year Built | Area |
| | BAS | BASE/MAIN FLOOR | 4 | 0 | 2019 | 1902.0 |
| | AGR | ATTACHED GARAGE | 4 | 0 | 2019 | 430.0 |
| | UTY | STORAGE/UTILITY | 4 | 0 | 2019 | 105.0 |
| | OP4 | OPEN PORCH W/CEILING-ROOF | 4 | 0 | 2019 | 275.0 |
| | OP4 | OPEN PORCH W/CEILING-ROOF | 4 | 0 | 2019 | 75.0 |
| | UTY | STORAGE/UTILITY | 4 | 0 | 2019 | 364.0 |
Sketch
Property Image
Land
| 1 | 17 | AC (01.01-02.00) | 1.0900 | 47480.40 | 0.00 | 0.00 | 1.00 | $370,000 | $0 |
Roll Value History
| 2026 | N/A | N/A | N/A | N/A | N/A |
| 2025 | $549,533 | $370,000 | $0 | $919,533 | $919,533 |
| 2024 | $553,895 | $360,000 | $0 | $913,895 | $913,895 |
| 2023 | $436,156 | $360,000 | $0 | $796,156 | $796,156 |
| 2022 | $398,077 | $280,000 | $0 | $678,077 | $678,077 |
| 2021 | $347,726 | $260,000 | $0 | $607,726 | $607,726 |
| 2020 | $329,349 | $230,000 | $0 | $559,349 | $559,349 |
| 2019 | $172,039 | $130,000 | $0 | $302,039 | $302,039 |
| 2018 | $4,000 | $130,000 | $0 | $134,000 | $134,000 |
| 2017 | $4,000 | $100,000 | $0 | $104,000 | $104,000 |
| 2016 | $4,000 | $100,000 | $0 | $104,000 | $104,000 |
| 2015 | $4,000 | $80,000 | $0 | $84,000 | $84,000 |
| 2014 | $4,000 | $80,000 | $0 | $84,000 | $84,000 |
| 2013 | $4,000 | $112,500 | $0 | $116,500 | $116,500 |
| 2012 | $4,000 | $112,500 | $0 | $116,500 | $116,500 |
| 2011 | $4,000 | $125,000 | $0 | $129,000 | $129,000 |
| 2010 | $4,000 | $125,000 | $0 | $129,000 | $129,000 |
| 2009 | $4,000 | $155,000 | $0 | $159,000 | $159,000 |
| 2008 | $4,000 | $181,250 | $0 | $185,250 | $185,250 |
| 2007 | $4,000 | $181,250 | $0 | $185,250 | $185,250 |
Deed and Sales History
| 1 | 09/28/2023 | WD | Warranty Deed | WALKER, STEPHANIE | WELSH, GORDON L | | | $1,216,000.00 | 58104 | 4565189 |
| 2 | 04/26/2022 | WD | Warranty Deed | PIERCE, LORI | WALKER, STEPHANIE | | | $1,195,000.00 | 52861 | 4544121 |
| 3 | 08/30/2017 | WD | Warranty Deed | LYONS, GARY A | PIERCE, LORI | | | $169,000.00 | 30992 | 4429731 |
| 4 | 03/09/2005 | WD | Warranty Deed | MARTIN, G T | LYONS, GARY A | | | $129,000.00 | 50971 | 4128133 |
| 5 | 01/01/1997 | DECREE | Divorce Decree/Legal Separation | MARTIN, G T | MARTIN, G T | | | $0.00 | 70166 | 97000610 |
| 6 | 08/01/1990 | WD | Warranty Deed | ROCKWELL, TOWERS | MARTIN, G T | | | $33,000.00 | 4490 | 90014755 |
| 7 | 01/01/1900 | OTHER | Other - Misc. Documents | Unknown | ROCKWELL, TOWERS | | | $0.00 | 63531 | 90000798 |
Payout Agreement
| No payout information available.. |