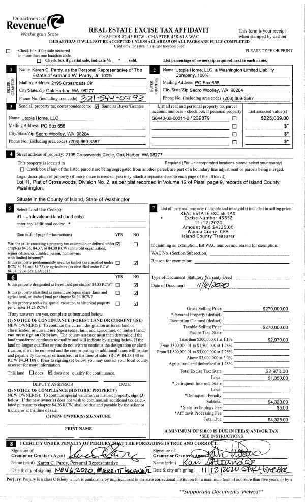
Property
Account |
| Property ID: | 648721 | Abbreviated Legal Description: | LOT 2 SP 4-90.33217.348-1540 V2 SP P246 AF#90013941 TGW EZ COMM BCH AF#96003850 |
| Geographic ID: | R33217-346-1620 | Agent Code: | |
| Type: | Real | | |
| Tax Area: | 512 - APPRAISER-Stan/Cam Schl Dist, improved, greater than 1 acre | Land Use Code | 11 |
| Open Space: | N | DFL | N |
| Historic Property: | N | Remodel Property: | N |
| Multi-Family Redevelopment: | N | | |
| Township: | 32 | Section: | 17 |
| Range: | R3 |
Location |
| Address: | 517 TILLICUM WAY CAMANO ISLAND, WA 98282 | Mapsco: | |
| Neighborhood: | North Camano | Map ID: | 955 |
| Neighborhood CD: | 06-C |
Owner |
| Name: | FORSYTHE, JON C | Owner ID: | 293625 |
| Mailing Address: | KIRSTEN M FORSYTHE 517 TILLICUM WAY CAMANO ISLAND, WA 98282 | % Ownership: | 100.0000000000% |
| | | Exemptions: | |
Taxes and Assessment Details
Values
| (+) Improvement Homesite Value: | + | $0 | |
| (+) Improvement Non-Homesite Value: | + | $1,021,321 | |
| (+) Land Homesite Value: | + | $0 | |
| (+) Land Non-Homesite Value: | + | $900,000 | |
| (+) Curr Use (HS): | + | $0 | $0 |
| (+) Curr Use (NHS): | + | $0 | $0 |
| | | -------------------------- | |
| (=) Market Value: | = | $1,921,321 | |
| (–) Productivity Loss: | – | $0 | |
| | | -------------------------- | |
| (=) Subtotal: | = | $1,921,321 | |
| (+) Senior Appraised Value: | + | $0 | |
| (+) Non-Senior Appraised Value: | + | $1,921,321 | |
| | | -------------------------- | |
| (=) Total Appraised Value: | = | $1,921,321 | |
| (–) Senior Exemption Loss: | – | $0 | |
| (–) Exemption Loss: | – | $0 | |
| | | -------------------------- | |
| (=) Taxable Value: | = | $1,921,321 | |
Taxing Jurisdiction
| Owner: | FORSYTHE, JON C | | |
| % Ownership: | 100.0000000000% | | |
| Total Value: | $1,921,321 | | |
| Tax Area: | 512 - APPRAISER-Stan/Cam Schl Dist, improved, greater than 1 acre |
| CF | Conservation Futures | 0.0316035091 | $1,921,321 | $1,921,321 | $60.72 | | |
| EMS1 | Fire & Rescue Dist #1 Camano GEN (EMS) | 0.3677864386 | $1,921,321 | $1,921,321 | $706.64 | | |
| FIRE1 | Fire & Rescue Dist #1 Camano GEN | 1.2502910536 | $1,921,321 | $1,921,321 | $2,402.21 | | |
| FIRE1BOND | Fire & Rescue Dist #1 Camano BOND | 0.1570001679 | $1,921,321 | $1,921,321 | $301.65 | | |
| CE | County Current Expense | 0.3708482477 | $1,921,321 | $1,921,321 | $712.52 | | |
| CR | County Roads | 0.4584763726 | $1,921,321 | $1,921,321 | $880.88 | | |
| LCIB | Library Sno-Isle BOND (Camano Island) | 0.0396325772 | $1,921,321 | $1,921,321 | $76.15 | | |
| LIB | Library Sno-Isle GEN | 0.3153421757 | $1,921,321 | $1,921,321 | $605.87 | | |
| SCH205_401 | School 205-401 Enrichment | 1.2698420524 | $1,921,321 | $1,921,321 | $2,439.77 | | |
| SCH205BOND | School 205-401 BOND | 0.9396497583 | $1,921,321 | $1,921,321 | $1,805.37 | | |
| ST | State School | 1.3035497053 | $1,921,321 | $1,921,321 | $2,504.54 | | |
| ST2 | State School Part 2 | 0.8169543533 | $1,921,321 | $1,921,321 | $1,569.63 | | |
| | Total Tax Rate: | 7.3209764117 | | | | | |
| | | | | Taxes w/Current Exemptions: | $14,065.95 | | |
| | | | | Taxes w/o Exemptions: | $14,065.95 | | |
Improvement / Building
| Improvement #1: | RESIDENTIAL | State Code: | Y | 3534.1 sqft | Value: | $1,021,321 |
| Bathrooms: | 2.5 | Bedrooms: | 3 | | Ceiling: | DRYWALL PAINTED | Cooling: | FHA AND AC | | Exterior Wall/Cover: | STONE VNER/WOOD FRAM | Floor Covering: | CERAMIC TILE/HWD 40/60 | | Floor Structure: | WOOD W/SUBFLOOR | Foundation: | CONCRETE | | Interior Finish: | DRYWALL PAINT | Plumbing Fixture Cnt: | 15 | | Roof Slope: | 10" IN 12" | Roof Structure/Cover: | CJ ASPHALT |
|
| | Type | Description | Class CD | Sub Class CD | Year Built | Area |
| | BAS | BASE/MAIN FLOOR | 6 | 0 | 2021 | 3534.1 |
| | UTY | STORAGE/UTILITY | 6 | 0 | 2021 | 294.5 |
| | AGR | ATTACHED GARAGE | 6 | 0 | 2021 | 1337.0 |
| | OP4 | OPEN PORCH W/CEILING-ROOF | 6 | 0 | 2021 | 288.0 |
| | OWP | OPEN WOOD PORCH W/STEPS | 6 | 0 | 2021 | 131.8 |
| | OWC | OPEN WOOD PORCH W/STEPS/ROOF/C | 6 | 0 | 2021 | 528.5 |
Sketch
Property Image
Land
| 1 | HB | HIGH BLUFF | 5.3600 | 233481.60 | 138.00 | 0.00 | 1.00 | $900,000 | $0 |
Roll Value History
| 2026 | N/A | N/A | N/A | N/A | N/A |
| 2025 | $1,021,321 | $900,000 | $0 | $1,921,321 | $1,921,321 |
| 2024 | $1,032,043 | $900,000 | $0 | $1,932,043 | $1,932,043 |
| 2023 | $1,050,807 | $850,000 | $0 | $1,900,807 | $1,900,807 |
| 2022 | $925,565 | $750,000 | $0 | $1,675,565 | $1,675,565 |
| 2021 | $570,228 | $600,000 | $0 | $1,170,228 | $1,170,228 |
| 2020 | $0 | $600,000 | $0 | $600,000 | $600,000 |
| 2019 | $0 | $250,000 | $0 | $250,000 | $250,000 |
| 2018 | $0 | $200,000 | $0 | $200,000 | $200,000 |
| 2017 | $0 | $200,000 | $0 | $200,000 | $200,000 |
| 2016 | $0 | $200,000 | $0 | $200,000 | $200,000 |
| 2015 | $0 | $200,000 | $0 | $200,000 | $200,000 |
| 2014 | $0 | $200,000 | $0 | $200,000 | $200,000 |
| 2013 | $0 | $216,796 | $0 | $216,796 | $216,796 |
| 2012 | $0 | $216,796 | $0 | $216,796 | $216,796 |
| 2011 | $0 | $270,745 | $0 | $270,745 | $270,745 |
| 2010 | $0 | $270,745 | $0 | $270,745 | $270,745 |
| 2009 | $0 | $307,065 | $0 | $307,065 | $307,065 |
| 2008 | $0 | $307,065 | $0 | $307,065 | $307,065 |
| 2007 | $0 | $307,065 | $0 | $307,065 | $307,065 |
Deed and Sales History
| 1 | 09/06/2022 | QCD | Quit Claim Deed | FORSYTHE, JON C | EAGLE TREE ESTATES PROPERTY OWNERS ASSOC. | | | $0.00 | 55394 | 4554856 |
| 2 | 02/18/2020 | WD | Warranty Deed | NG, JOHN T | FORSYTHE, JON C | | | $600,000.00 | 42250 | 4482168 |
| 3 | 02/01/1995 | QCD | Quit Claim Deed | NG, JOHN T | NG, JOHN T | | | $0.00 | 60722 | 96003850 |
| 4 | 08/01/1990 | WD | Warranty Deed | WILDER, GROUP I | NG, JOHN T | | | $150,000.00 | 4616 | 90015317 |
| 5 | 01/01/1900 | OTHER | Other - Misc. Documents | Unknown | WILDER, GROUP I | | | $0.00 | 3517 | 90011407 |
Payout Agreement
| No payout information available.. |