Property
Account |
| Property ID: | 6488 | Abbreviated Legal Description: | 29 R C HILL DC - BG SWCR ENGLE DLC N89*E467.93' ALG NLN SD DLC S9*E370.42' S17*E456.49' S85*W123.58' N44*W162.54' N39*W87.79' TPB N39*W92' S41*W TO HITDLN SELY ALG SD LN TP LY S39*W FR TPB N39*E TPB TGW & SUB EZ (LOT 16 SP 70-007 AF#239961 UNREC SHERH |
| Geographic ID: | R13109-136-0950 | Agent Code: | |
| Type: | Real | | |
| Tax Area: | 319 - APPRAISER-Cpvl Schl Dist, outside Cpvl, vacant & 50 acres or less | Land Use Code | 91 |
| Open Space: | N | DFL | N |
| Historic Property: | N | Remodel Property: | N |
| Multi-Family Redevelopment: | N | | |
| Township: | 31 | Section: | 09 |
| Range: | R1 |
Location |
| Address: | | Mapsco: | |
| Neighborhood: | Area 2 Waterfront Westside Residential | Map ID: | 42 |
| Neighborhood CD: | 2WFW01R |
Owner |
| Name: | SIVERTSEN, GREGORY LEE | Owner ID: | 291758 |
| Mailing Address: | KATHLEEN RUTH SIVERTSEN 688 CATHEDRAL DR COUPEVILLE, WA 98239 | % Ownership: | 100.0000000000% |
| | | Exemptions: | |
Taxes and Assessment Details
Values
| (+) Improvement Homesite Value: | + | $0 | |
| (+) Improvement Non-Homesite Value: | + | $0 | |
| (+) Land Homesite Value: | + | $0 | |
| (+) Land Non-Homesite Value: | + | $272,750 | |
| (+) Curr Use (HS): | + | $0 | $0 |
| (+) Curr Use (NHS): | + | $0 | $0 |
| | | -------------------------- | |
| (=) Market Value: | = | $272,750 | |
| (–) Productivity Loss: | – | $0 | |
| | | -------------------------- | |
| (=) Subtotal: | = | $272,750 | |
| (+) Senior Appraised Value: | + | $0 | |
| (+) Non-Senior Appraised Value: | + | $272,750 | |
| | | -------------------------- | |
| (=) Total Appraised Value: | = | $272,750 | |
| (–) Senior Exemption Loss: | – | $0 | |
| (–) Exemption Loss: | – | $0 | |
| | | -------------------------- | |
| (=) Taxable Value: | = | $272,750 | |
Taxing Jurisdiction
| Owner: | SIVERTSEN, GREGORY LEE | | |
| % Ownership: | 100.0000000000% | | |
| Total Value: | $272,750 | | |
| Tax Area: | 319 - APPRAISER-Cpvl Schl Dist, outside Cpvl, vacant & 50 acres or less |
| CF | Conservation Futures | 0.0316035091 | $272,750 | $272,750 | $8.62 | | |
| CEM2 | Cemetery #2 | 0.0095056933 | $272,750 | $272,750 | $2.59 | | |
| HOBOND | Hospital BOND | 0.1910887512 | $272,750 | $272,750 | $52.12 | | |
| HOGEN | Hospital GEN | 0.3902502903 | $272,750 | $272,750 | $106.44 | | |
| CE | County Current Expense | 0.3708482477 | $272,750 | $272,750 | $101.15 | | |
| CR | County Roads | 0.4584763726 | $272,750 | $272,750 | $125.05 | | |
| ISLANDEMS | Hospital GEN (EMS) | 0.5000000000 | $272,750 | $272,750 | $136.38 | | |
| LIB | Library Sno-Isle GEN | 0.3153421757 | $272,750 | $272,750 | $86.01 | | |
| LIBCAP | Library Sno-Isle BOND (Cap Fac Imp Area) | 0.0543427938 | $272,750 | $272,750 | $14.82 | | |
| POCOUP | Port of Coupeville GEN | 0.1093371703 | $272,750 | $272,750 | $29.82 | | |
| POCOUPIDD | Port of Coupeville IDD | 0.3409740022 | $272,750 | $272,750 | $93.00 | | |
| COUPSDTECH | School 204 CP (TECH) | 0.7545480007 | $272,750 | $272,750 | $205.80 | | |
| SCH204MO | School 204 Enrichment | 0.6716186034 | $272,750 | $272,750 | $183.18 | | |
| ST | State School | 1.3035497053 | $272,750 | $272,750 | $355.54 | | |
| ST2 | State School Part 2 | 0.8169543533 | $272,750 | $272,750 | $222.82 | | |
| | Total Tax Rate: | 6.3184396689 | | | | | |
| | | | | Taxes w/Current Exemptions: | $1,723.34 | | |
| | | | | Taxes w/o Exemptions: | $1,723.34 | | |
Improvement / Building
Sketch
| No sketches available for this property. |
Property Image
Land
| 1 | HB | HIGH BLUFF | 0.6500 | 28314.00 | 100.00 | 0.00 | 1.00 | $272,750 | $0 |
Roll Value History
| 2026 | N/A | N/A | N/A | N/A | N/A |
| 2025 | $0 | $272,750 | $0 | $272,750 | $272,750 |
| 2024 | $0 | $272,750 | $0 | $272,750 | $272,750 |
| 2023 | $0 | $259,875 | $0 | $259,875 | $259,875 |
| 2022 | $0 | $247,500 | $0 | $247,500 | $247,500 |
| 2021 | $0 | $300,000 | $0 | $300,000 | $300,000 |
| 2020 | $0 | $300,000 | $0 | $300,000 | $300,000 |
| 2019 | $0 | $400,000 | $0 | $400,000 | $400,000 |
| 2018 | $0 | $400,000 | $0 | $400,000 | $400,000 |
| 2017 | $0 | $400,000 | $0 | $400,000 | $400,000 |
| 2016 | $0 | $350,000 | $0 | $350,000 | $350,000 |
| 2015 | $0 | $350,000 | $0 | $350,000 | $350,000 |
| 2014 | $0 | $350,000 | $0 | $350,000 | $350,000 |
| 2013 | $0 | $331,414 | $0 | $331,414 | $331,414 |
| 2012 | $0 | $331,414 | $0 | $331,414 | $331,414 |
| 2011 | $0 | $331,414 | $0 | $331,414 | $331,414 |
| 2010 | $0 | $331,414 | $0 | $331,414 | $331,414 |
| 2009 | $0 | $356,146 | $0 | $356,146 | $356,146 |
| 2008 | $0 | $323,202 | $0 | $323,202 | $323,202 |
| 2007 | $0 | $222,900 | $0 | $222,900 | $222,900 |
Deed and Sales History
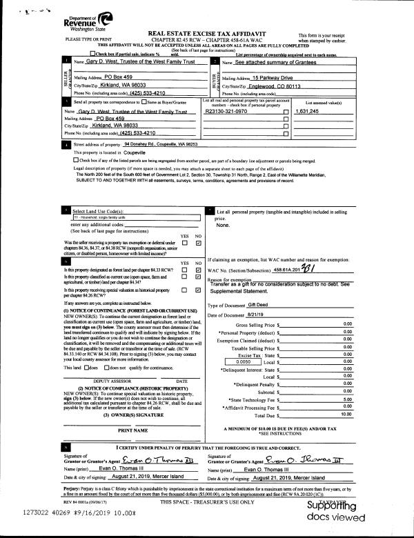
| 1 | 09/10/2019 | WD | Warranty Deed | STEPHENSON TTEE, THOMAS R | SIVERTSEN, GREGORY LEE | | | $300,000.00 | 40252 | 4471320 |
| 2 | 08/21/2019 | QCD | Quit Claim Deed | STEPHENSON, THOMAS | STEPHENSON TTEE, THOMAS R | | | $0.00 | 40251 | 4471318 |
| 3 | 07/31/2001 | WD | Warranty Deed | DEKABAN, ANATOLE S | STEPHENSON, THOMAS | | | $205,000.00 | 12952 | 20039074 |
| 4 | 09/01/1990 | WD | Warranty Deed | MORGAN, SUSAN R | DEKABAN, ANATOLE S | | | $115,000.00 | 5703 | 90019173 |
| 5 | 02/01/1975 | CD | DNU - Correction Deed | Unknown | MORGAN, SUSAN R | | | $0.00 | 54103 | 0 |
Payout Agreement
| No payout information available.. |