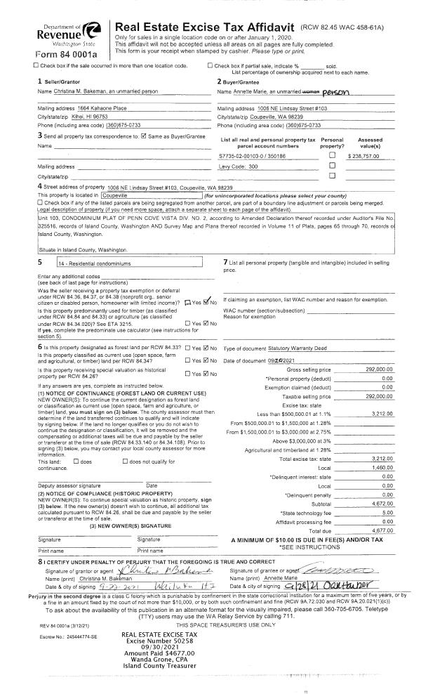
Property
Account |
| Property ID: | 649356 | Abbreviated Legal Description: | LOT 4 SP 24-89.22901.505-0760 V2 SP P252-3 AF#90016226 |
| Geographic ID: | R22901-487-1030 | Agent Code: | |
| Type: | Real | | |
| Tax Area: | 712 - APPRAISER-S Whid Schl Dist, outside Langley, improved, greater than 1 acre | Land Use Code | 11 |
| Open Space: | N | DFL | N |
| Historic Property: | N | Remodel Property: | N |
| Multi-Family Redevelopment: | N | | |
| Township: | 29 | Section: | 01 |
| Range: | R2 |
Location |
| Address: | 2050 ASHER LN FREELAND, WA 98249 | Mapsco: | |
| Neighborhood: | Cycle 3 | Map ID: | 283 |
| Neighborhood CD: | 3 |
Owner |
| Name: | ARTERBURY TTEE, ROGER | Owner ID: | 298627 |
| Mailing Address: | PO BOX 513 CLINTON, WA 98236 | % Ownership: | 100.0000000000% |
| | | Exemptions: | |
Taxes and Assessment Details
Values
| (+) Improvement Homesite Value: | + | $0 | |
| (+) Improvement Non-Homesite Value: | + | $92,411 | |
| (+) Land Homesite Value: | + | $0 | |
| (+) Land Non-Homesite Value: | + | $370,000 | |
| (+) Curr Use (HS): | + | $0 | $0 |
| (+) Curr Use (NHS): | + | $0 | $0 |
| | | -------------------------- | |
| (=) Market Value: | = | $462,411 | |
| (–) Productivity Loss: | – | $0 | |
| | | -------------------------- | |
| (=) Subtotal: | = | $462,411 | |
| (+) Senior Appraised Value: | + | $0 | |
| (+) Non-Senior Appraised Value: | + | $462,411 | |
| | | -------------------------- | |
| (=) Total Appraised Value: | = | $462,411 | |
| (–) Senior Exemption Loss: | – | $0 | |
| (–) Exemption Loss: | – | $0 | |
| | | -------------------------- | |
| (=) Taxable Value: | = | $462,411 | |
Taxing Jurisdiction
| Owner: | ARTERBURY TTEE, ROGER | | |
| % Ownership: | 100.0000000000% | | |
| Total Value: | $462,411 | | |
| Tax Area: | 712 - APPRAISER-S Whid Schl Dist, outside Langley, improved, greater than 1 acre |
| CF | Conservation Futures | 0.0316035091 | $462,411 | $462,411 | $14.61 | | |
| FIRE3 | Fire & Rescue Dist #3 S Whidbey GEN | 1.2004855531 | $462,411 | $462,411 | $555.12 | | |
| HOBOND | Hospital BOND | 0.1910887512 | $462,411 | $462,411 | $88.36 | | |
| HOGEN | Hospital GEN | 0.3902502903 | $462,411 | $462,411 | $180.46 | | |
| CE | County Current Expense | 0.3708482477 | $462,411 | $462,411 | $171.48 | | |
| CR | County Roads | 0.4584763726 | $462,411 | $462,411 | $212.00 | | |
| ISLANDEMS | Hospital GEN (EMS) | 0.5000000000 | $462,411 | $462,411 | $231.21 | | |
| LIB | Library Sno-Isle GEN | 0.3153421757 | $462,411 | $462,411 | $145.82 | | |
| PORTWHID | Port of S Whidbey GEN | 0.1094540357 | $462,411 | $462,411 | $50.61 | | |
| SCH206BOND | School 206 BOND | 0.3161759235 | $462,411 | $462,411 | $146.20 | | |
| SCH206MO | School 206 Enrichment | 0.4547169547 | $462,411 | $462,411 | $210.27 | | |
| ST | State School | 1.3035497053 | $462,411 | $462,411 | $602.78 | | |
| ST2 | State School Part 2 | 0.8169543533 | $462,411 | $462,411 | $377.77 | | |
| SWHIDPRBD | P & R S Whidbey BOND | 0.0152817568 | $462,411 | $462,411 | $7.07 | | |
| SWHIDPRBD2 | P & R S Whidbey BOND2 | 0.0138911264 | $462,411 | $462,411 | $6.42 | | |
| SWHIDPRMT | P & R S Whidbey GEN | 0.2053334452 | $462,411 | $462,411 | $94.95 | | |
| | Total Tax Rate: | 6.6934522006 | | | | | |
| | | | | Taxes w/Current Exemptions: | $3,095.13 | | |
| | | | | Taxes w/o Exemptions: | $3,095.13 | | |
Improvement / Building
| Improvement #1: | MANUFACTURED HOME | State Code: | Y | 1620.0 sqft | Value: | $92,411 |
| Bathrooms: | 2 | Bedrooms: | 3 | | Ceiling: | PLASTER PAINTED | Cooling: | EVAP NO DUCT | | Exterior Wall/Cover: | VINYL | Floor Covering: | CARPET 100% | | Floor Structure: | SLAB ON GRADE | Foundation: | SLAB | | Heating: | FHA ELECTRIC | Interior Finish: | PLASTER | | Plumbing Fixture Cnt: | 1 | Roof Slope: | FLAT | | Roof Structure/Cover: | CJ ALUMINIUM HEAVY |   |   |
|
| | Type | Description | Class CD | Sub Class CD | Year Built | Area |
| | BAS | BASE/MAIN FLOOR | 3 | 0 | 1990 | 1620.0 |
| | oPOL | POLE BARN | 3 | 0 | 1995 | 1008.0 |
Sketch
Property Image
Land
| 1 | 32 | AC (03.01-09.99) | 4.6900 | 204296.40 | 0.00 | 0.00 | 1.00 | $370,000 | $0 |
Roll Value History
| 2026 | N/A | N/A | N/A | N/A | N/A |
| 2025 | $92,411 | $370,000 | $0 | $462,411 | $462,411 |
| 2024 | $95,245 | $350,000 | $0 | $445,245 | $445,245 |
| 2023 | $98,078 | $330,000 | $0 | $428,078 | $428,078 |
| 2022 | $93,284 | $280,000 | $0 | $373,284 | $373,284 |
| 2021 | $87,092 | $230,000 | $0 | $317,092 | $317,092 |
| 2020 | $87,304 | $190,000 | $0 | $277,304 | $277,304 |
| 2019 | $62,428 | $230,000 | $0 | $292,428 | $292,428 |
| 2018 | $64,009 | $210,000 | $0 | $274,009 | $274,009 |
| 2017 | $65,589 | $180,000 | $0 | $245,589 | $245,589 |
| 2016 | $67,170 | $135,000 | $0 | $202,170 | $202,170 |
| 2015 | $68,751 | $135,000 | $0 | $203,751 | $203,751 |
| 2014 | $70,332 | $117,250 | $0 | $187,582 | $187,582 |
| 2013 | $71,945 | $81,676 | $0 | $153,621 | $153,621 |
| 2012 | $73,367 | $81,676 | $0 | $155,043 | $155,043 |
| 2011 | $74,790 | $81,676 | $0 | $156,466 | $156,466 |
| 2010 | $68,980 | $81,676 | $0 | $150,656 | $150,656 |
| 2009 | $72,759 | $117,676 | $0 | $190,435 | $190,435 |
| 2008 | $75,178 | $135,676 | $0 | $210,854 | $210,854 |
| 2007 | $74,872 | $201,280 | $0 | $276,152 | $276,152 |
Deed and Sales History
| 1 | 03/17/2021 | QCD | Quit Claim Deed | ARTERBURY, ROGER D | ARTERBURY TTEE, ROGER | | | $0.00 | 47478 | 4514569 |
| 2 | 09/27/2019 | QCD | Quit Claim Deed | ARTERBURY, ROGER D & HOLLY | ARTERBURY, ROGER D | | | $0.00 | 40482 | 4472407 |
| 3 | 01/01/1991 | OTHER | Other - Misc. Documents | Unknown | ARTERBURY, ROGER D | | | $36,000.00 | 10160 | 0 |
| 4 | 01/01/1991 | WD | Warranty Deed | ASHER, CARL E | ARTERBURY, ROGER D | | | $55,000.00 | 10161 | 91000829 |
| 5 | 08/01/1990 | WD | Warranty Deed | GABELEIN, VERLANE & | ASHER, CARL E | | | $38,500.00 | 5298 | 90017661 |
| 6 | 01/01/1900 | OTHER | Other - Misc. Documents | ARTERBURY, ROGER D | GABELEIN, VERLANE & | | | $0.00 | 63628 | 86016282 |
Payout Agreement
| No payout information available.. |