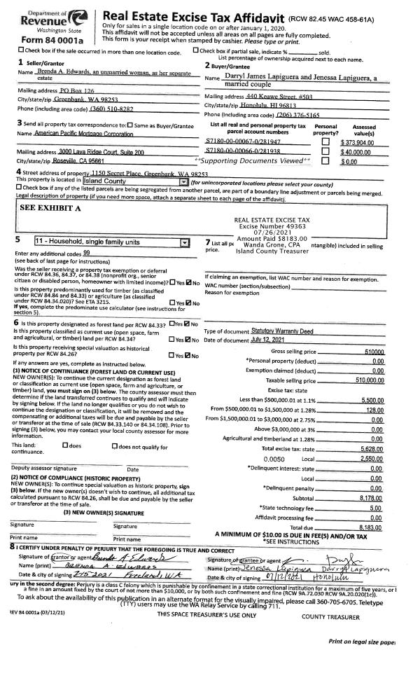
Property
Account |
| Property ID: | 649659 | Abbreviated Legal Description: | LOT 1 SP 86-19.32912.491-0390 & 32911.470-4900 V2 SP P256 AF#90018090 DRAINFIELD LOC 467-4960 AF#90017266 |
| Geographic ID: | R32912-503-0650 | Agent Code: | |
| Type: | Real | | |
| Tax Area: | 710 - APPRAISER-S Whid Schl Dist, outside Langley, improved & 1 acre or less | Land Use Code | 11 |
| Open Space: | N | DFL | N |
| Historic Property: | N | Remodel Property: | N |
| Multi-Family Redevelopment: | N | | |
| Township: | 29 | Section: | 12 |
| Range: | R3 |
Location |
| Address: | 4449 BELLE ISLE ST LANGLEY, WA 98260 | Mapsco: | |
| Neighborhood: | Cycle 4 | Map ID: | 763 |
| Neighborhood CD: | 4 |
Owner |
| Name: | O'BRIEN TRUSTEE, WILLIAM LEO | Owner ID: | 264026 |
| Mailing Address: | 4449 BELLE ISLE ST LANGLEY, WA 98260 | % Ownership: | 100.0000000000% |
| | | Exemptions: | |
Taxes and Assessment Details
Values
| (+) Improvement Homesite Value: | + | $0 | |
| (+) Improvement Non-Homesite Value: | + | $120,560 | |
| (+) Land Homesite Value: | + | $0 | |
| (+) Land Non-Homesite Value: | + | $750,000 | |
| (+) Curr Use (HS): | + | $0 | $0 |
| (+) Curr Use (NHS): | + | $0 | $0 |
| | | -------------------------- | |
| (=) Market Value: | = | $870,560 | |
| (–) Productivity Loss: | – | $0 | |
| | | -------------------------- | |
| (=) Subtotal: | = | $870,560 | |
| (+) Senior Appraised Value: | + | $0 | |
| (+) Non-Senior Appraised Value: | + | $870,560 | |
| | | -------------------------- | |
| (=) Total Appraised Value: | = | $870,560 | |
| (–) Senior Exemption Loss: | – | $0 | |
| (–) Exemption Loss: | – | $0 | |
| | | -------------------------- | |
| (=) Taxable Value: | = | $870,560 | |
Taxing Jurisdiction
| Owner: | O'BRIEN TRUSTEE, WILLIAM LEO | | |
| % Ownership: | 100.0000000000% | | |
| Total Value: | $870,560 | | |
| Tax Area: | 710 - APPRAISER-S Whid Schl Dist, outside Langley, improved & 1 acre or less |
| CF | Conservation Futures | 0.0316035091 | $870,560 | $870,560 | $27.51 | | |
| FIRE3 | Fire & Rescue Dist #3 S Whidbey GEN | 1.2004855531 | $870,560 | $870,560 | $1,045.09 | | |
| HOBOND | Hospital BOND | 0.1910887512 | $870,560 | $870,560 | $166.35 | | |
| HOGEN | Hospital GEN | 0.3902502903 | $870,560 | $870,560 | $339.74 | | |
| CE | County Current Expense | 0.3708482477 | $870,560 | $870,560 | $322.85 | | |
| CR | County Roads | 0.4584763726 | $870,560 | $870,560 | $399.13 | | |
| ISLANDEMS | Hospital GEN (EMS) | 0.5000000000 | $870,560 | $870,560 | $435.28 | | |
| LIB | Library Sno-Isle GEN | 0.3153421757 | $870,560 | $870,560 | $274.52 | | |
| PORTWHID | Port of S Whidbey GEN | 0.1094540357 | $870,560 | $870,560 | $95.29 | | |
| SCH206BOND | School 206 BOND | 0.3161759235 | $870,560 | $870,560 | $275.25 | | |
| SCH206MO | School 206 Enrichment | 0.4547169547 | $870,560 | $870,560 | $395.86 | | |
| ST | State School | 1.3035497053 | $870,560 | $870,560 | $1,134.82 | | |
| ST2 | State School Part 2 | 0.8169543533 | $870,560 | $870,560 | $711.21 | | |
| SWHIDPRBD | P & R S Whidbey BOND | 0.0152817568 | $870,560 | $870,560 | $13.30 | | |
| SWHIDPRBD2 | P & R S Whidbey BOND2 | 0.0138911264 | $870,560 | $870,560 | $12.09 | | |
| SWHIDPRMT | P & R S Whidbey GEN | 0.2053334452 | $870,560 | $870,560 | $178.76 | | |
| | Total Tax Rate: | 6.6934522006 | | | | | |
| | | | | Taxes w/Current Exemptions: | $5,827.05 | | |
| | | | | Taxes w/o Exemptions: | $5,827.05 | | |
Improvement / Building
| Improvement #1: | RESIDENTIAL | State Code: | Y | 576.0 sqft | Value: | $120,560 |
| Bathrooms: | 1 | Bedrooms: | 1 | | Ceiling: | DRYWALL PAINTED | Exterior Wall/Cover: | PLY/HARDBOARD T-111 | | Floor Covering: | SOFTWOOD 100% | Floor Structure: | WOOD W/SUBFLOOR | | Foundation: | CONCRETE | Heating: | BASEBOARD ELECTRIC | | Interior Finish: | DRYWALL PAINT | Plumbing Fixture Cnt: | 6 | | Roof Slope: | 3" IN 12" | Roof Structure/Cover: | ALUM LIGHT |
|
| | Type | Description | Class CD | Sub Class CD | Year Built | Area |
| | BAS | BASE/MAIN FLOOR | 3 | 0 | 2004 | 576.0 |
| | OWR | OPEN WOOD PORCH W/STEPS/ROOF | 3 | 0 | 2004 | 220.0 |
Sketch
Property Image
Land
| 1 | LB | LOW BANK | 0.0000 | 0.00 | 125.00 | 0.00 | 1.00 | $750,000 | $0 |
Roll Value History
| 2026 | N/A | N/A | N/A | N/A | N/A |
| 2025 | $120,560 | $750,000 | $0 | $870,560 | $870,560 |
| 2024 | $124,383 | $750,000 | $0 | $874,383 | $874,383 |
| 2023 | $125,933 | $750,000 | $0 | $875,933 | $875,933 |
| 2022 | $115,439 | $700,000 | $0 | $815,439 | $815,439 |
| 2021 | $101,602 | $700,000 | $0 | $801,602 | $801,602 |
| 2020 | $95,836 | $650,000 | $0 | $745,836 | $745,836 |
| 2019 | $66,211 | $600,000 | $0 | $666,211 | $666,211 |
| 2018 | $66,406 | $600,000 | $0 | $666,406 | $666,406 |
| 2017 | $66,794 | $600,000 | $0 | $666,794 | $666,794 |
| 2016 | $67,571 | $600,000 | $0 | $667,571 | $667,571 |
| 2015 | $68,347 | $600,000 | $0 | $668,347 | $668,347 |
| 2014 | $69,694 | $600,000 | $0 | $669,694 | $669,694 |
| 2013 | $70,408 | $625,725 | $0 | $696,133 | $696,133 |
| 2012 | $71,121 | $625,725 | $0 | $696,846 | $696,846 |
| 2011 | $71,835 | $625,725 | $0 | $697,560 | $697,560 |
| 2010 | $70,395 | $625,725 | $0 | $696,120 | $696,120 |
| 2009 | $74,075 | $674,393 | $0 | $748,468 | $748,468 |
| 2008 | $13,421 | $896,872 | $0 | $910,293 | $910,293 |
| 2007 | $13,573 | $1,085,216 | $0 | $1,098,789 | $1,098,789 |
Deed and Sales History
| 1 | 06/20/2013 | WD | Warranty Deed | O'BRIEN, WILLIAM L | O'BRIEN TRUSTEE, WILLIAM LEO | | | $0.00 | 13195 | 4350186 |
| 2 | 07/01/1996 | QCD | Quit Claim Deed | CORBLEY, JOELLEN R | O'BRIEN, WILLIAM L | | | $30,000.00 | 62704 | 96013212 |
| 3 | 01/01/1900 | OTHER | Other - Misc. Documents | Unknown | CORBLEY, JOELLEN R | | | $0.00 | 10047 | 378074 |
Payout Agreement
| No payout information available.. |