Property
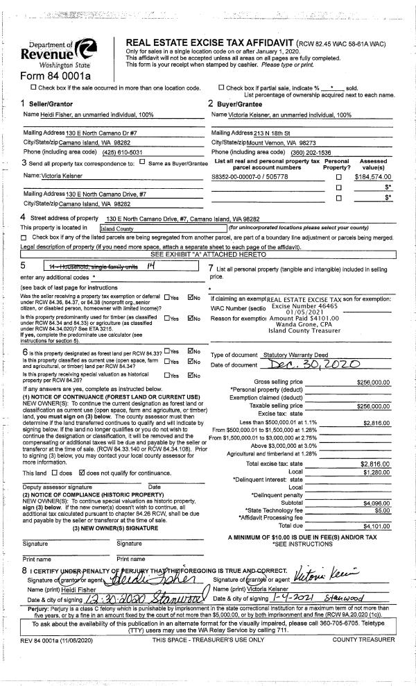
Account |
| Property ID: | 64986 | Abbreviated Legal Description: | 94 - W330'OF E660'OF N/2 N/2 NE SW EX RD |
| Geographic ID: | R23021-246-2190 | Agent Code: | |
| Type: | Real | | |
| Tax Area: | 312 - APPRAISER-Cpvl Schl Dist, outside Cpvl, improved, greater than 1 acre | Land Use Code | 11 |
| Open Space: | N | DFL | N |
| Historic Property: | N | Remodel Property: | N |
| Multi-Family Redevelopment: | N | | |
| Township: | 30 | Section: | 21 |
| Range: | R2 |
Location |
| Address: | 980 REHBERG RD GREENBANK, WA 98253 | Mapsco: | |
| Neighborhood: | Cycle 3 | Map ID: | 400 |
| Neighborhood CD: | 3 |
Owner |
| Name: | CARAVAN, JESSE | Owner ID: | 293355 |
| Mailing Address: | LINDSEY CARAVAN 980 REHBERG RD GREENBANK, WA 98253 | % Ownership: | 100.0000000000% |
| | | Exemptions: | |
Taxes and Assessment Details
Values
| (+) Improvement Homesite Value: | + | $0 | |
| (+) Improvement Non-Homesite Value: | + | $249,078 | |
| (+) Land Homesite Value: | + | $0 | |
| (+) Land Non-Homesite Value: | + | $310,000 | |
| (+) Curr Use (HS): | + | $0 | $0 |
| (+) Curr Use (NHS): | + | $0 | $0 |
| | | -------------------------- | |
| (=) Market Value: | = | $559,078 | |
| (–) Productivity Loss: | – | $0 | |
| | | -------------------------- | |
| (=) Subtotal: | = | $559,078 | |
| (+) Senior Appraised Value: | + | $0 | |
| (+) Non-Senior Appraised Value: | + | $559,078 | |
| | | -------------------------- | |
| (=) Total Appraised Value: | = | $559,078 | |
| (–) Senior Exemption Loss: | – | $0 | |
| (–) Exemption Loss: | – | $0 | |
| | | -------------------------- | |
| (=) Taxable Value: | = | $559,078 | |
Taxing Jurisdiction
| Owner: | CARAVAN, JESSE | | |
| % Ownership: | 100.0000000000% | | |
| Total Value: | $559,078 | | |
| Tax Area: | 312 - APPRAISER-Cpvl Schl Dist, outside Cpvl, improved, greater than 1 acre |
| CF | Conservation Futures | 0.0316035091 | $559,078 | $559,078 | $17.67 | | |
| CEM2 | Cemetery #2 | 0.0095056933 | $559,078 | $559,078 | $5.31 | | |
| FIRE5 | Fire & Rescue Dist #5 C Whidbey GEN | 1.2008080668 | $559,078 | $559,078 | $671.35 | | |
| FIRE5BOND | Fire & Rescue Dist #5 C Whidbey BOND | 0.1400090713 | $559,078 | $559,078 | $78.28 | | |
| HOBOND | Hospital BOND | 0.1910887512 | $559,078 | $559,078 | $106.83 | | |
| HOGEN | Hospital GEN | 0.3902502903 | $559,078 | $559,078 | $218.18 | | |
| CE | County Current Expense | 0.3708482477 | $559,078 | $559,078 | $207.33 | | |
| CR | County Roads | 0.4584763726 | $559,078 | $559,078 | $256.32 | | |
| ISLANDEMS | Hospital GEN (EMS) | 0.5000000000 | $559,078 | $559,078 | $279.54 | | |
| LIB | Library Sno-Isle GEN | 0.3153421757 | $559,078 | $559,078 | $176.30 | | |
| LIBCAP | Library Sno-Isle BOND (Cap Fac Imp Area) | 0.0543427938 | $559,078 | $559,078 | $30.38 | | |
| POCOUP | Port of Coupeville GEN | 0.1093371703 | $559,078 | $559,078 | $61.13 | | |
| POCOUPIDD | Port of Coupeville IDD | 0.3409740022 | $559,078 | $559,078 | $190.63 | | |
| COUPSDTECH | School 204 CP (TECH) | 0.7545480007 | $559,078 | $559,078 | $421.85 | | |
| SCH204MO | School 204 Enrichment | 0.6716186034 | $559,078 | $559,078 | $375.49 | | |
| ST | State School | 1.3035497053 | $559,078 | $559,078 | $728.79 | | |
| ST2 | State School Part 2 | 0.8169543533 | $559,078 | $559,078 | $456.74 | | |
| | Total Tax Rate: | 7.6592568070 | | | | | |
| | | | | Taxes w/Current Exemptions: | $4,282.12 | | |
| | | | | Taxes w/o Exemptions: | $4,282.12 | | |
Improvement / Building
| Improvement #1: | MANUFACTURED HOME | State Code: | Y | 1966.3 sqft | Value: | $249,078 |
| Bathrooms: | 0 | Bedrooms: | 0 | | Ceiling: | PLASTER PAINTED | Cooling: | EVAP NO DUCT | | Exterior Wall/Cover: | VINYL | Floor Covering: | CARPET 100% | | Floor Structure: | SLAB ON GRADE | Foundation: | SLAB | | Heating: | FHA ELECTRIC | Interior Finish: | PLASTER | | Plumbing Fixture Cnt: | 1 | Roof Slope: | FLAT | | Roof Structure/Cover: | CJ ALUMINIUM HEAVY |   |   |
|
| | Type | Description | Class CD | Sub Class CD | Year Built | Area |
| | BAS | BASE/MAIN FLOOR | 5 | 0 | 2001 | 1966.3 |
| | AGR | ATTACHED GARAGE | 3 | 0 | 2001 | 2002.1 |
| | CPD | OPEN CARPORT DIRT FLOOR | 3 | 0 | 2001 | 362.0 |
| | OCP | OPEN CARPORT | 3 | 0 | 2001 | 640.0 |
Sketch
Property Image
Land
| 1 | 18 | AC (02.01-03.00) | 2.2900 | 99752.40 | 0.00 | 0.00 | 1.00 | $310,000 | $0 |
Roll Value History
| 2026 | N/A | N/A | N/A | N/A | N/A |
| 2025 | $249,078 | $310,000 | $0 | $559,078 | $559,078 |
| 2024 | $252,537 | $270,000 | $0 | $522,537 | $522,537 |
| 2023 | $225,614 | $250,000 | $0 | $475,614 | $475,614 |
| 2022 | $209,741 | $240,000 | $0 | $449,741 | $449,741 |
| 2021 | $187,114 | $170,000 | $0 | $357,114 | $357,114 |
| 2020 | $186,256 | $130,000 | $0 | $316,256 | $316,256 |
| 2019 | $138,886 | $200,000 | $0 | $338,886 | $338,886 |
| 2018 | $140,975 | $155,000 | $0 | $295,975 | $295,975 |
| 2017 | $143,047 | $115,000 | $0 | $258,047 | $258,047 |
| 2016 | $145,135 | $120,000 | $0 | $265,135 | $265,135 |
| 2015 | $147,223 | $100,000 | $0 | $247,223 | $247,223 |
| 2014 | $149,312 | $100,000 | $0 | $249,312 | $249,312 |
| 2013 | $157,359 | $100,000 | $0 | $257,359 | $257,359 |
| 2012 | $158,403 | $103,700 | $0 | $262,103 | $262,103 |
| 2011 | $159,447 | $122,000 | $0 | $281,447 | $281,447 |
| 2010 | $166,393 | $122,000 | $0 | $288,393 | $288,393 |
| 2009 | $171,593 | $155,000 | $0 | $326,593 | $326,593 |
| 2008 | $173,369 | $120,476 | $0 | $293,845 | $293,845 |
| 2007 | $156,073 | $120,000 | $0 | $276,073 | $276,073 |
Deed and Sales History
| 1 | 01/29/2020 | WD | Warranty Deed | REHBERG TRUSTEE, PAUL T | CARAVAN, JESSE | | | $350,000.00 | 41970 | 4480497 |
| 2 | 06/29/2017 | QCD | Quit Claim Deed | REHBERG, TOM | REHBERG TRUSTEE, PAUL T | | | $0.00 | 30192 | 4426186 |
| 3 | 06/22/1999 | WD | Warranty Deed | Unknown | REHBERG, TOM | | | $20,000.00 | 92556 | 99015383 |
Payout Agreement
| No payout information available.. |