Property
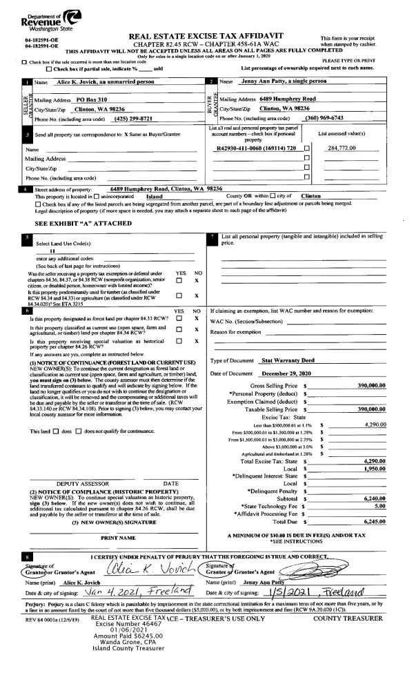
Account |
| Property ID: | 65011 | Abbreviated Legal Description: | 62 - E150' OF W375'OF N170' OF NW SE EX N30' RD INCL 1 SHARE IN WELL |
| Geographic ID: | R23021-255-3000 | Agent Code: | |
| Type: | Real | | |
| Tax Area: | 310 - APPRAISER-Cpvl Schl Dist, outside Cpvl, improved & 1 acre or less | Land Use Code | 11 |
| Open Space: | N | DFL | N |
| Historic Property: | N | Remodel Property: | N |
| Multi-Family Redevelopment: | N | | |
| Township: | 30 | Section: | 21 |
| Range: | R2 |
Location |
| Address: | 1022 REHBERG RD GREENBANK, WA 98253 | Mapsco: | |
| Neighborhood: | Cycle 3 | Map ID: | 401 |
| Neighborhood CD: | 3 |
Owner |
| Name: | POTTS, LOGAN | Owner ID: | 265659 |
| Mailing Address: | 1022 REHBERG RD GREENBANK, WA 98253 | % Ownership: | 100.0000000000% |
| | | Exemptions: | |
Taxes and Assessment Details
Values
| (+) Improvement Homesite Value: | + | $0 | |
| (+) Improvement Non-Homesite Value: | + | $192,555 | |
| (+) Land Homesite Value: | + | $0 | |
| (+) Land Non-Homesite Value: | + | $240,000 | |
| (+) Curr Use (HS): | + | $0 | $0 |
| (+) Curr Use (NHS): | + | $0 | $0 |
| | | -------------------------- | |
| (=) Market Value: | = | $432,555 | |
| (–) Productivity Loss: | – | $0 | |
| | | -------------------------- | |
| (=) Subtotal: | = | $432,555 | |
| (+) Senior Appraised Value: | + | $0 | |
| (+) Non-Senior Appraised Value: | + | $432,555 | |
| | | -------------------------- | |
| (=) Total Appraised Value: | = | $432,555 | |
| (–) Senior Exemption Loss: | – | $0 | |
| (–) Exemption Loss: | – | $0 | |
| | | -------------------------- | |
| (=) Taxable Value: | = | $432,555 | |
Taxing Jurisdiction
| Owner: | POTTS, LOGAN | | |
| % Ownership: | 100.0000000000% | | |
| Total Value: | $432,555 | | |
| Tax Area: | 310 - APPRAISER-Cpvl Schl Dist, outside Cpvl, improved & 1 acre or less |
| CF | Conservation Futures | 0.0316035091 | $432,555 | $432,555 | $13.67 | | |
| CEM2 | Cemetery #2 | 0.0095056933 | $432,555 | $432,555 | $4.11 | | |
| FIRE5 | Fire & Rescue Dist #5 C Whidbey GEN | 1.2008080668 | $432,555 | $432,555 | $519.42 | | |
| FIRE5BOND | Fire & Rescue Dist #5 C Whidbey BOND | 0.1400090713 | $432,555 | $432,555 | $60.56 | | |
| HOBOND | Hospital BOND | 0.1910887512 | $432,555 | $432,555 | $82.66 | | |
| HOGEN | Hospital GEN | 0.3902502903 | $432,555 | $432,555 | $168.80 | | |
| CE | County Current Expense | 0.3708482477 | $432,555 | $432,555 | $160.41 | | |
| CR | County Roads | 0.4584763726 | $432,555 | $432,555 | $198.32 | | |
| ISLANDEMS | Hospital GEN (EMS) | 0.5000000000 | $432,555 | $432,555 | $216.28 | | |
| LIB | Library Sno-Isle GEN | 0.3153421757 | $432,555 | $432,555 | $136.40 | | |
| LIBCAP | Library Sno-Isle BOND (Cap Fac Imp Area) | 0.0543427938 | $432,555 | $432,555 | $23.51 | | |
| POCOUP | Port of Coupeville GEN | 0.1093371703 | $432,555 | $432,555 | $47.29 | | |
| POCOUPIDD | Port of Coupeville IDD | 0.3409740022 | $432,555 | $432,555 | $147.49 | | |
| COUPSDTECH | School 204 CP (TECH) | 0.7545480007 | $432,555 | $432,555 | $326.38 | | |
| SCH204MO | School 204 Enrichment | 0.6716186034 | $432,555 | $432,555 | $290.51 | | |
| ST | State School | 1.3035497053 | $432,555 | $432,555 | $563.86 | | |
| ST2 | State School Part 2 | 0.8169543533 | $432,555 | $432,555 | $353.38 | | |
| | Total Tax Rate: | 7.6592568070 | | | | | |
| | | | | Taxes w/Current Exemptions: | $3,313.05 | | |
| | | | | Taxes w/o Exemptions: | $3,313.05 | | |
Improvement / Building
| Improvement #1: | RESIDENTIAL | State Code: | Y | 1311.6 sqft | Value: | $192,555 |
| Bathrooms: | 1 | Bedrooms: | 3 | | Ceiling: | DRYWALL PAINTED | Exterior Wall/Cover: | WOOD SIDING | | Floor Covering: | CARPET/VINYL 60-40 | Floor Structure: | WOOD W/SUBFLOOR | | Foundation: | CONCRETE | Heating: | BASEBOARD ELECTRIC | | Interior Finish: | DRYWALL PAINT | Plumbing Fixture Cnt: | 6 | | Roof Slope: | 5" IN 12" | Roof Structure/Cover: | CJ ASPHALT |
|
| | Type | Description | Class CD | Sub Class CD | Year Built | Area |
| | BAS | BASE/MAIN FLOOR | 3 | 0 | 1972 | 1311.6 |
| | DGR | DETACHED GARAGE | 3 | 0 | 1972 | 676.0 |
| | UTY | STORAGE/UTILITY | 3 | 0 | 1972 | 1408.0 |
Sketch
Property Image
Land
| 1 | 15 | SQ (12001-21780) | 0.0000 | 0.00 | 0.00 | 0.00 | 1.00 | $240,000 | $0 |
Roll Value History
| 2026 | N/A | N/A | N/A | N/A | N/A |
| 2025 | $192,555 | $240,000 | $0 | $432,555 | $432,555 |
| 2024 | $200,325 | $230,000 | $0 | $430,325 | $430,325 |
| 2023 | $203,887 | $230,000 | $0 | $433,887 | $433,887 |
| 2022 | $187,837 | $200,000 | $0 | $387,837 | $387,837 |
| 2021 | $166,151 | $140,000 | $0 | $306,151 | $306,151 |
| 2020 | $153,766 | $100,000 | $0 | $253,766 | $253,766 |
| 2019 | $85,604 | $160,000 | $0 | $245,604 | $245,604 |
| 2018 | $85,977 | $115,000 | $0 | $200,977 | $200,977 |
| 2017 | $86,710 | $100,000 | $0 | $186,710 | $186,710 |
| 2016 | $88,205 | $85,000 | $0 | $173,205 | $173,205 |
| 2015 | $78,249 | $90,000 | $0 | $168,249 | $168,249 |
| 2014 | $79,553 | $65,000 | $0 | $144,553 | $144,553 |
| 2013 | $80,857 | $70,000 | $0 | $150,857 | $150,857 |
| 2012 | $82,161 | $85,000 | $0 | $167,161 | $167,161 |
| 2011 | $83,465 | $100,000 | $0 | $183,465 | $183,465 |
| 2010 | $89,133 | $100,000 | $0 | $189,133 | $189,133 |
| 2009 | $93,205 | $130,000 | $0 | $223,205 | $223,205 |
| 2008 | $94,600 | $120,000 | $0 | $214,600 | $214,600 |
| 2007 | $89,719 | $120,000 | $0 | $209,719 | $209,719 |
Deed and Sales History
| 1 | 04/10/2014 | WD | Warranty Deed | REHBERG, PAUL | POTTS, LOGAN | | | $153,500.00 | 14917 | 4357936 |
| 2 | 01/17/2014 | QCD | Quit Claim Deed | ROYDS, JASON | REHBERG, PAUL | | | $0.00 | 14115 | 4354420 |
| 3 | 09/02/2011 | WD | Warranty Deed | REHBERG, PAUL | ROYDS, JASON | | | $180,000.00 | 5459 | 4300757 |
| 4 | 08/22/2003 | WD | Warranty Deed | MCLAUGHLIN, PATRICK E | REHBERG, PAUL | | | $95,000.00 | 34416 | 4077337 |
| 5 | 11/01/1984 | WD | Warranty Deed | REHBERG, PAUL T | MCLAUGHLIN, PATRICK E | | | $50,000.00 | 43243 | 84005276 |
| 6 | 01/01/1900 | OTHER | Other - Misc. Documents | Unknown | REHBERG, PAUL T | | | $0.00 | 0 | 0 |
Payout Agreement
| No payout information available.. |