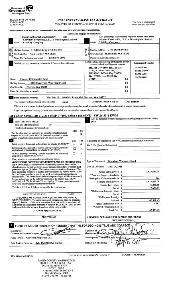
Property
Account |
| Property ID: | 65020 | Abbreviated Legal Description: | 63 - N/2 N/2 NWSW EOF RD: N/2 N/2 NESW;S/2 S/2 SE NW S OF CO RD EX E660' EX PT TO ST OF WASH AF#96010838 |
| Geographic ID: | R23021-256-1650 | Agent Code: | |
| Type: | Real | | |
| Tax Area: | 312 - APPRAISER-Cpvl Schl Dist, outside Cpvl, improved, greater than 1 acre | Land Use Code | 11 |
| Open Space: | N | DFL | N |
| Historic Property: | N | Remodel Property: | N |
| Multi-Family Redevelopment: | N | | |
| Township: | 30 | Section: | 21 |
| Range: | R2 |
Location |
| Address: | 23280 SR525 GREENBANK, WA 98253 | Mapsco: | |
| Neighborhood: | Cycle 3 | Map ID: | 400 |
| Neighborhood CD: | 3 |
Owner |
| Name: | BUEHLER, CARY L | Owner ID: | 285997 |
| Mailing Address: | GREGORY R BUEHLER 23280 SR 525 GREENBANK, WA 98253 | % Ownership: | 100.0000000000% |
| | | Exemptions: | |
Taxes and Assessment Details
Values
| (+) Improvement Homesite Value: | + | $0 | |
| (+) Improvement Non-Homesite Value: | + | $297,589 | |
| (+) Land Homesite Value: | + | $0 | |
| (+) Land Non-Homesite Value: | + | $350,000 | |
| (+) Curr Use (HS): | + | $0 | $0 |
| (+) Curr Use (NHS): | + | $0 | $0 |
| | | -------------------------- | |
| (=) Market Value: | = | $647,589 | |
| (–) Productivity Loss: | – | $0 | |
| | | -------------------------- | |
| (=) Subtotal: | = | $647,589 | |
| (+) Senior Appraised Value: | + | $0 | |
| (+) Non-Senior Appraised Value: | + | $647,589 | |
| | | -------------------------- | |
| (=) Total Appraised Value: | = | $647,589 | |
| (–) Senior Exemption Loss: | – | $0 | |
| (–) Exemption Loss: | – | $0 | |
| | | -------------------------- | |
| (=) Taxable Value: | = | $647,589 | |
Taxing Jurisdiction
| Owner: | BUEHLER, CARY L | | |
| % Ownership: | 100.0000000000% | | |
| Total Value: | $647,589 | | |
| Tax Area: | 312 - APPRAISER-Cpvl Schl Dist, outside Cpvl, improved, greater than 1 acre |
| CF | Conservation Futures | 0.0316035091 | $647,589 | $647,589 | $20.47 | | |
| CEM2 | Cemetery #2 | 0.0095056933 | $647,589 | $647,589 | $6.16 | | |
| FIRE5 | Fire & Rescue Dist #5 C Whidbey GEN | 1.2008080668 | $647,589 | $647,589 | $777.63 | | |
| FIRE5BOND | Fire & Rescue Dist #5 C Whidbey BOND | 0.1400090713 | $647,589 | $647,589 | $90.67 | | |
| HOBOND | Hospital BOND | 0.1910887512 | $647,589 | $647,589 | $123.75 | | |
| HOGEN | Hospital GEN | 0.3902502903 | $647,589 | $647,589 | $252.72 | | |
| CE | County Current Expense | 0.3708482477 | $647,589 | $647,589 | $240.16 | | |
| CR | County Roads | 0.4584763726 | $647,589 | $647,589 | $296.90 | | |
| ISLANDEMS | Hospital GEN (EMS) | 0.5000000000 | $647,589 | $647,589 | $323.79 | | |
| LIB | Library Sno-Isle GEN | 0.3153421757 | $647,589 | $647,589 | $204.21 | | |
| LIBCAP | Library Sno-Isle BOND (Cap Fac Imp Area) | 0.0543427938 | $647,589 | $647,589 | $35.19 | | |
| POCOUP | Port of Coupeville GEN | 0.1093371703 | $647,589 | $647,589 | $70.81 | | |
| POCOUPIDD | Port of Coupeville IDD | 0.3409740022 | $647,589 | $647,589 | $220.81 | | |
| COUPSDTECH | School 204 CP (TECH) | 0.7545480007 | $647,589 | $647,589 | $488.64 | | |
| SCH204MO | School 204 Enrichment | 0.6716186034 | $647,589 | $647,589 | $434.93 | | |
| ST | State School | 1.3035497053 | $647,589 | $647,589 | $844.16 | | |
| ST2 | State School Part 2 | 0.8169543533 | $647,589 | $647,589 | $529.05 | | |
| | Total Tax Rate: | 7.6592568070 | | | | | |
| | | | | Taxes w/Current Exemptions: | $4,960.05 | | |
| | | | | Taxes w/o Exemptions: | $4,960.05 | | |
Improvement / Building
| Improvement #1: | RESIDENTIAL | State Code: | Y | 1400.6 sqft | Value: | $297,589 |
| Bathrooms: | 2 | Bedrooms: | 2 | | Ceiling: | DRYWALL PAINTED | Exterior Wall/Cover: | PLY/HARDBOARD T-111 | | Floor Covering: | HARDWOOD/CARP 60-40 | Floor Structure: | WOOD W/SUBFLOOR | | Foundation: | CONCRETE | Heating: | FHA OIL | | Interior Finish: | DRYWALL PAINT | Plumbing Fixture Cnt: | 9 | | Roof Slope: | 8" IN 12" | Roof Structure/Cover: | CJ ASPHALT |
|
| | Type | Description | Class CD | Sub Class CD | Year Built | Area |
| | BAS | BASE/MAIN FLOOR | 3 | 0 | 1950 | 1400.6 |
| | ATF | ATTIC FINISHED | 3 | 0 | 1950 | 312.0 |
| | OWP | OPEN WOOD PORCH W/STEPS | 3 | 0 | 1950 | 262.7 |
| | OWC | OPEN WOOD PORCH W/STEPS/ROOF/C | 3 | 0 | 1950 | 105.1 |
| | DGR | DETACHED GARAGE | 3 | 0 | 1950 | 576.0 |
| | UTY | STORAGE/UTILITY | 3 | 0 | 1950 | 1320.0 |
| | OCP | OPEN CARPORT | 3 | 0 | 1950 | 484.0 |
| | UTY | STORAGE/UTILITY | 3 | 0 | 1950 | 198.0 |
Sketch
Property Image
Land
| 1 | 32 | AC (03.01-09.99) | 7.1500 | 311454.00 | 0.00 | 0.00 | 1.00 | $350,000 | $0 |
Roll Value History
| 2026 | N/A | N/A | N/A | N/A | N/A |
| 2025 | $297,589 | $350,000 | $0 | $647,589 | $647,589 |
| 2024 | $302,446 | $340,000 | $0 | $642,446 | $642,446 |
| 2023 | $307,305 | $320,000 | $0 | $627,305 | $627,305 |
| 2022 | $282,673 | $260,000 | $0 | $542,673 | $542,673 |
| 2021 | $249,635 | $230,000 | $0 | $479,635 | $479,635 |
| 2020 | $244,013 | $180,000 | $0 | $424,013 | $424,013 |
| 2019 | $177,380 | $230,000 | $0 | $407,380 | $407,380 |
| 2018 | $112,204 | $220,000 | $0 | $332,204 | $332,204 |
| 2017 | $112,988 | $160,000 | $0 | $272,988 | $272,988 |
| 2016 | $114,615 | $165,000 | $0 | $279,615 | $279,615 |
| 2015 | $116,244 | $150,000 | $0 | $266,244 | $266,244 |
| 2014 | $117,871 | $115,000 | $0 | $232,871 | $232,871 |
| 2013 | $115,012 | $109,800 | $0 | $224,812 | $224,812 |
| 2012 | $116,639 | $109,800 | $0 | $226,439 | $226,439 |
| 2011 | $118,268 | $122,000 | $0 | $240,268 | $240,268 |
| 2010 | $130,939 | $122,000 | $0 | $252,939 | $252,939 |
| 2009 | $136,414 | $185,900 | $0 | $322,314 | $322,314 |
| 2008 | $138,801 | $207,563 | $0 | $346,364 | $346,364 |
| 2007 | $134,325 | $185,900 | $0 | $320,225 | $320,225 |
Deed and Sales History
| 1 | 07/11/2018 | WD | Warranty Deed | MCPHEE JTWROS, ELIZABETH M | BUEHLER, CARY L | | | $475,000.00 | 34983 | 4447935 |
|   | |
| 2 | 07/14/2004 | 5 | DNU - Marriage License/Name Change | MCPHEE, ELIZABETH M | MCPHEE JTWROS, ELIZABETH M | | | $0.00 | 43131 | 4106704 |
| 3 | 05/02/2001 | WD | Warranty Deed | TABACH, HENRY R | MCPHEE, ELIZABETH M | | | $208,384.00 | 11915 | 20033426 |
| 4 | 09/01/1996 | WD | Warranty Deed | TABACH, HENRY R | TABACH, HENRY R | | | $5,400.00 | 63697 | 96017941 |
| 5 | 06/01/1996 | OTHER | Other - Misc. Documents | TABACH, HENRY R | TABACH, HENRY R | | | $3,900.00 | 67021 | 96010838 |
| 6 | 01/01/1900 | OTHER | Other - Misc. Documents | Unknown | TABACH, HENRY R | | | $0.00 | 0 | 0 |
Payout Agreement
| No payout information available.. |