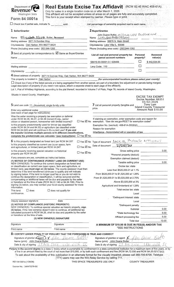
Property
Account |
| Property ID: | 650245 | Abbreviated Legal Description: | SUNNY VIEW FARMS LOT 1 SP 12-90.8245.00-00021-0 V2 S |
| Geographic ID: | S8245-00-00021-1 | Agent Code: | |
| Type: | Real | | |
| Tax Area: | 760 - APPRAISER-S Whid Schl Dist, Special District, improved & less than 1 acre | Land Use Code | 11 |
| Open Space: | N | DFL | N |
| Historic Property: | N | Remodel Property: | N |
| Multi-Family Redevelopment: | N | | |
| Township: | | Section: | |
| Range: | |
Location |
| Address: | 5704 HORSESHOE LN FREELAND, WA 98249 | Mapsco: | |
| Neighborhood: | Cycle 3 | Map ID: | 327 |
| Neighborhood CD: | 3 |
Owner |
| Name: | PAYNE, GARY F & KAROL E | Owner ID: | 101431 |
| Mailing Address: | PO BOX 1234 FREELAND, WA 98249-1234 | % Ownership: | 100.0000000000% |
| | | Exemptions: | |
Taxes and Assessment Details
Values
| (+) Improvement Homesite Value: | + | $0 | |
| (+) Improvement Non-Homesite Value: | + | $265,510 | |
| (+) Land Homesite Value: | + | $0 | |
| (+) Land Non-Homesite Value: | + | $350,000 | |
| (+) Curr Use (HS): | + | $0 | $0 |
| (+) Curr Use (NHS): | + | $0 | $0 |
| | | -------------------------- | |
| (=) Market Value: | = | $615,510 | |
| (–) Productivity Loss: | – | $0 | |
| | | -------------------------- | |
| (=) Subtotal: | = | $615,510 | |
| (+) Senior Appraised Value: | + | $0 | |
| (+) Non-Senior Appraised Value: | + | $615,510 | |
| | | -------------------------- | |
| (=) Total Appraised Value: | = | $615,510 | |
| (–) Senior Exemption Loss: | – | $0 | |
| (–) Exemption Loss: | – | $0 | |
| | | -------------------------- | |
| (=) Taxable Value: | = | $615,510 | |
Taxing Jurisdiction
| Owner: | PAYNE, GARY F & KAROL E | | |
| % Ownership: | 100.0000000000% | | |
| Total Value: | $615,510 | | |
| Tax Area: | 760 - APPRAISER-S Whid Schl Dist, Special District, improved & less than 1 acre |
| CF | Conservation Futures | 0.0316035091 | $615,510 | $615,510 | $19.45 | | |
| FIRE3 | Fire & Rescue Dist #3 S Whidbey GEN | 1.2004855531 | $615,510 | $615,510 | $738.91 | | |
| HOBOND | Hospital BOND | 0.1910887512 | $615,510 | $615,510 | $117.62 | | |
| HOGEN | Hospital GEN | 0.3902502903 | $615,510 | $615,510 | $240.20 | | |
| CE | County Current Expense | 0.3708482477 | $615,510 | $615,510 | $228.26 | | |
| CR | County Roads | 0.4584763726 | $615,510 | $615,510 | $282.20 | | |
| ISLANDEMS | Hospital GEN (EMS) | 0.5000000000 | $615,510 | $615,510 | $307.76 | | |
| LIB | Library Sno-Isle GEN | 0.3153421757 | $615,510 | $615,510 | $194.10 | | |
| PORTWHID | Port of S Whidbey GEN | 0.1094540357 | $615,510 | $615,510 | $67.37 | | |
| SCH206BOND | School 206 BOND | 0.3161759235 | $615,510 | $615,510 | $194.61 | | |
| SCH206MO | School 206 Enrichment | 0.4547169547 | $615,510 | $615,510 | $279.88 | | |
| ST | State School | 1.3035497053 | $615,510 | $615,510 | $802.35 | | |
| ST2 | State School Part 2 | 0.8169543533 | $615,510 | $615,510 | $502.84 | | |
| SWHIDPRBD | P & R S Whidbey BOND | 0.0152817568 | $615,510 | $615,510 | $9.41 | | |
| SWHIDPRBD2 | P & R S Whidbey BOND2 | 0.0138911264 | $615,510 | $615,510 | $8.55 | | |
| SWHIDPRMT | P & R S Whidbey GEN | 0.2053334452 | $615,510 | $615,510 | $126.38 | | |
| | Total Tax Rate: | 6.6934522006 | | | | | |
| | | | | Taxes w/Current Exemptions: | $4,119.89 | | |
| | | | | Taxes w/o Exemptions: | $4,119.89 | | |
Improvement / Building
| Improvement #1: | RESIDENTIAL | State Code: | Y | 1735.2 sqft | Value: | $265,510 |
| Bathrooms: | 2.5 | Bedrooms: | 3 | | Ceiling: | DRYWALL PAINTED | Exterior Wall/Cover: | WOOD SIDING | | Floor Covering: | HARDWOOD/CARP 60-40 | Floor Structure: | WOOD W/SUBFLOOR | | Foundation: | CONCRETE | Heating: | WALL HEAT ELECTRIC | | Interior Finish: | DRYWALL PAINT | Plumbing Fixture Cnt: | 12 | | Roof Slope: | 6" IN 12" | Roof Structure/Cover: | CJ ASPHALT |
|
| | Type | Description | Class CD | Sub Class CD | Year Built | Area |
| | BAS | BASE/MAIN FLOOR | 3 | 0 | 1990 | 1081.2 |
| | BIG | BUILT IN GARAGE | 3 | 0 | 1990 | 620.0 |
| | OWP | OPEN WOOD PORCH W/STEPS | 3 | 0 | 1990 | 565.7 |
| | OWP | OPEN WOOD PORCH W/STEPS | 3 | 0 | 1990 | 220.0 |
| | OWP | OPEN WOOD PORCH W/STEPS | 3 | 0 | 1990 | 160.0 |
| | OWC | OPEN WOOD PORCH W/STEPS/ROOF/C | 3 | 0 | 1990 | 54.0 |
| | DWN | DOWNSTAIRS LIVING AREA | 3 | 0 | 1990 | 654.0 |
Sketch
Property Image
Land
| 1 | 32 | AC (03.01-09.99) | 3.1300 | 0.00 | 0.00 | 0.00 | 1.00 | $350,000 | $0 |
Roll Value History
| 2026 | N/A | N/A | N/A | N/A | N/A |
| 2025 | $265,510 | $350,000 | $0 | $615,510 | $615,510 |
| 2024 | $269,237 | $330,000 | $0 | $599,237 | $599,237 |
| 2023 | $272,964 | $300,000 | $0 | $572,964 | $572,964 |
| 2022 | $250,546 | $280,000 | $0 | $530,546 | $530,546 |
| 2021 | $220,800 | $230,000 | $0 | $450,800 | $450,800 |
| 2020 | $215,225 | $190,000 | $0 | $405,225 | $405,225 |
| 2019 | $144,211 | $230,000 | $0 | $374,211 | $374,211 |
| 2018 | $144,714 | $210,000 | $0 | $354,714 | $354,714 |
| 2017 | $145,714 | $190,000 | $0 | $335,714 | $335,714 |
| 2016 | $147,724 | $140,000 | $0 | $287,724 | $287,724 |
| 2015 | $149,736 | $84,510 | $0 | $234,246 | $234,246 |
| 2014 | $151,748 | $84,510 | $0 | $236,258 | $236,258 |
| 2013 | $155,092 | $84,510 | $0 | $239,602 | $239,602 |
| 2012 | $157,092 | $84,510 | $0 | $241,602 | $241,602 |
| 2011 | $159,092 | $84,510 | $0 | $243,602 | $243,602 |
| 2010 | $165,657 | $84,510 | $0 | $250,167 | $250,167 |
| 2009 | $172,710 | $122,070 | $0 | $294,780 | $294,780 |
| 2008 | $174,896 | $185,302 | $0 | $360,198 | $360,198 |
| 2007 | $172,291 | $185,302 | $0 | $357,593 | $357,593 |
Deed and Sales History
| 1 | 09/01/1995 | WD | Warranty Deed | COURTICE, DANIEL T | PAYNE, GARY F | | | $223,250.00 | 53509 | 95016063 |
| 2 | 08/01/1992 | QCD | Quit Claim Deed | COURTICE, DANIEL T | COURTICE, DANIEL T | | | $0.00 | 23340 | 92016323 |
| 3 | 06/01/1992 | OTHER | Other - Misc. Documents | COURTICE, DANIEL T | COURTICE, DANIEL T | | | $0.00 | 64899 | 92010668 |
| 4 | 10/01/1990 | WD | Warranty Deed | GEDDIS, MICHAEL R | COURTICE, DANIEL T | | | $189,000.00 | 6143 | 90020972 |
| 5 | 01/01/1900 | OTHER | Other - Misc. Documents | Unknown | GEDDIS, MICHAEL R | | | $0.00 | 22976 | 403672 |
Payout Agreement
| No payout information available.. |