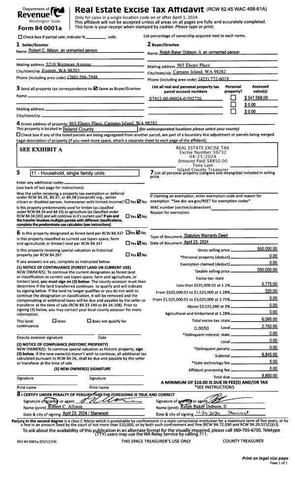
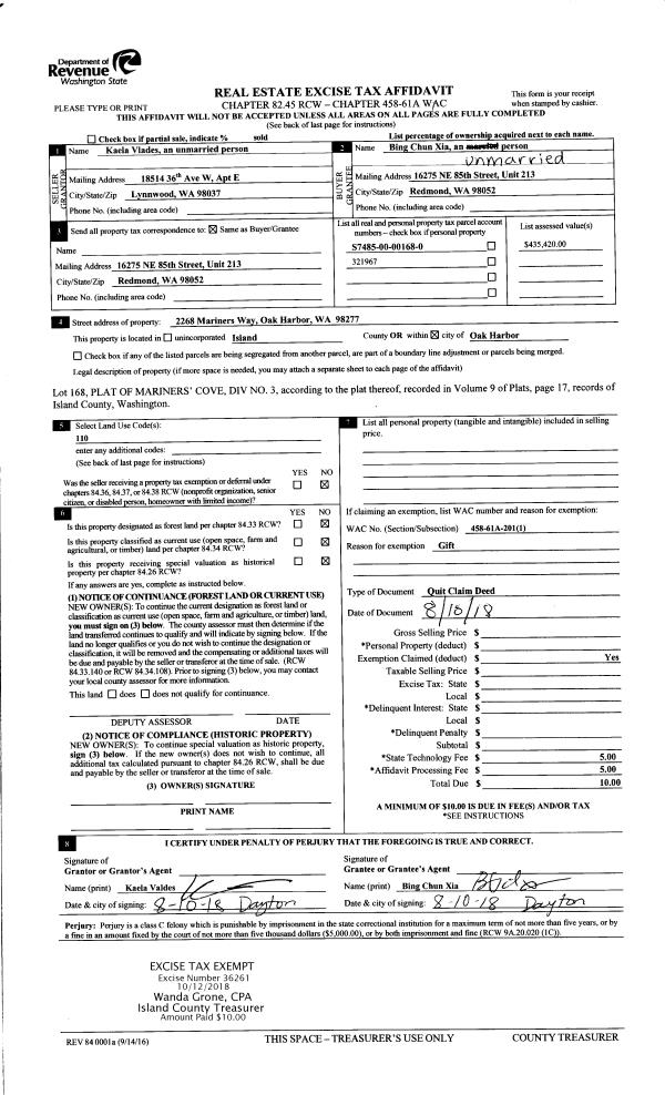
Property
Account |
| Property ID: | 650496 | Abbreviated Legal Description: | WINDWARD CONDOS APT 1A 9.6% INT |
| Geographic ID: | S8466-00-0001A-0 | Agent Code: | |
| Type: | Real | | |
| Tax Area: | 100 - APPRAISER-OH Schl Dist, in OH | Land Use Code | 14 |
| Open Space: | N | DFL | N |
| Historic Property: | N | Remodel Property: | N |
| Multi-Family Redevelopment: | N | | |
| Township: | | Section: | |
| Range: | |
Location |
| Address: | 861 SE REGATTA DR UNIT 103 OAK HARBOR, WA 98277 | Mapsco: | |
| Neighborhood: | 13*OH-windward | Map ID: | 84 |
| Neighborhood CD: | 13*OHwinwd |
Owner |
| Name: | FETTER, CATHY | Owner ID: | 307558 |
| Mailing Address: | MACKENZIE E NEAL 861 SE REGATTA DR UNIT 103 OAK HARBOR, WA 98277 | % Ownership: | 100.0000000000% |
| | | Exemptions: | |
Taxes and Assessment Details
Values
| (+) Improvement Homesite Value: | + | $0 | |
| (+) Improvement Non-Homesite Value: | + | $251,294 | |
| (+) Land Homesite Value: | + | $0 | |
| (+) Land Non-Homesite Value: | + | $110,000 | |
| (+) Curr Use (HS): | + | $0 | $0 |
| (+) Curr Use (NHS): | + | $0 | $0 |
| | | -------------------------- | |
| (=) Market Value: | = | $361,294 | |
| (–) Productivity Loss: | – | $0 | |
| | | -------------------------- | |
| (=) Subtotal: | = | $361,294 | |
| (+) Senior Appraised Value: | + | $0 | |
| (+) Non-Senior Appraised Value: | + | $361,294 | |
| | | -------------------------- | |
| (=) Total Appraised Value: | = | $361,294 | |
| (–) Senior Exemption Loss: | – | $0 | |
| (–) Exemption Loss: | – | $0 | |
| | | -------------------------- | |
| (=) Taxable Value: | = | $361,294 | |
Taxing Jurisdiction
| Owner: | FETTER, CATHY | | |
| % Ownership: | 100.0000000000% | | |
| Total Value: | $361,294 | | |
| Tax Area: | 100 - APPRAISER-OH Schl Dist, in OH |
| CF | Conservation Futures | 0.0316035091 | $361,294 | $361,294 | $11.42 | | |
| CEM1 | Cemetery #1 | 0.0040320932 | $361,294 | $361,294 | $1.46 | | |
| COH | City of Oak Harbor | 2.3001546061 | $361,294 | $361,294 | $831.03 | | |
| OAKBOND | City of Oak Harbor BOND | 0.1926904192 | $361,294 | $361,294 | $69.62 | | |
| HOBOND | Hospital BOND | 0.1910887512 | $361,294 | $361,294 | $69.04 | | |
| HOGEN | Hospital GEN | 0.3902502903 | $361,294 | $361,294 | $141.00 | | |
| CE | County Current Expense | 0.3708482477 | $361,294 | $361,294 | $133.99 | | |
| ISLANDEMS | Hospital GEN (EMS) | 0.5000000000 | $361,294 | $361,294 | $180.65 | | |
| LIB | Library Sno-Isle GEN | 0.3153421757 | $361,294 | $361,294 | $113.93 | | |
| NWHIDPRMT | P & R N Whidbey GEN | 0.2004466701 | $361,294 | $361,294 | $72.42 | | |
| SCH201MO | School 201 Enrichment | 1.8559231640 | $361,294 | $361,294 | $670.53 | | |
| ST | State School | 1.3035497053 | $361,294 | $361,294 | $470.96 | | |
| ST2 | State School Part 2 | 0.8169543533 | $361,294 | $361,294 | $295.16 | | |
| | Total Tax Rate: | 8.4728839852 | | | | | |
| | | | | Taxes w/Current Exemptions: | $3,061.21 | | |
| | | | | Taxes w/o Exemptions: | $3,061.21 | | |
Improvement / Building
| Improvement #1: | RESIDENTIAL | State Code: | Y | 1122.0 sqft | Value: | $251,294 |
| Bathrooms: | 2 | Bedrooms: | 2 | | Ceiling: | DRYWALL PAINTED | Exterior Wall/Cover: | WOOD SIDING | | Floor Covering: | CARPET/VINYL 80-20 | Floor Structure: | WOOD W/SUBFLOOR | | Foundation: | CONCRETE | Heating: | FHA GAS | | Interior Finish: | DRYWALL PAINT | Plumbing Fixture Cnt: | 9 | | Roof Slope: | FLAT | Roof Structure/Cover: | BEAM BUILT-UP ROCK |
|
| | Type | Description | Class CD | Sub Class CD | Year Built | Area |
| | BAS | BASE/MAIN FLOOR | 3 | 0 | 1990 | 1122.0 |
| | BGR | BASEMENT GARAGE | 3 | 0 | 1990 | 636.5 |
| | OWP | OPEN WOOD PORCH W/STEPS | 3 | 0 | 1990 | 88.0 |
| | OWC | OPEN WOOD PORCH W/STEPS/ROOF/C | 3 | 0 | 1990 | 0.0 |
| | oPV1 | PV/ASPH 2" | 3 | 0 | 1990 | 0.0 |
| | oSPS | SPRINKLERS | 3 | 0 | 1990 | 0.0 |
| | oELV | ELEVATOR | 3 | 0 | 1990 | 0.0 |
| | OWC | OPEN WOOD PORCH W/STEPS/ROOF/C | 3 | 0 | 1990 | 0.0 |
| | OP4 | OPEN PORCH W/CEILING-ROOF | 3 | 0 | 1990 | 0.0 |
Sketch
Property Image
Land
| 1 | 61 | MULTIPLE RESIDENCES | 0.0000 | 1210.00 | 0.00 | 0.00 | 1.00 | $110,000 | $0 |
Roll Value History
| 2026 | N/A | N/A | N/A | N/A | N/A |
| 2025 | $251,294 | $110,000 | $0 | $361,294 | $361,294 |
| 2024 | $253,921 | $110,000 | $0 | $363,921 | $363,921 |
| 2023 | $246,041 | $110,000 | $0 | $356,041 | $356,041 |
| 2022 | $228,257 | $110,000 | $0 | $338,257 | $338,257 |
| 2021 | $204,802 | $55,000 | $0 | $259,802 | $259,802 |
| 2020 | $200,038 | $35,000 | $0 | $235,038 | $235,038 |
| 2019 | $151,201 | $100,000 | $0 | $251,201 | $251,201 |
| 2018 | $151,549 | $65,000 | $0 | $216,549 | $216,549 |
| 2017 | $156,022 | $18,755 | $0 | $174,777 | $174,777 |
| 2016 | $157,982 | $18,755 | $0 | $176,737 | $176,737 |
| 2015 | $159,942 | $18,755 | $0 | $178,697 | $178,697 |
| 2014 | $161,903 | $18,755 | $0 | $180,658 | $180,658 |
| 2013 | $163,863 | $18,755 | $0 | $182,618 | $182,618 |
| 2012 | $165,253 | $18,755 | $0 | $184,008 | $184,008 |
| 2011 | $161,483 | $18,755 | $0 | $180,238 | $180,238 |
| 2010 | $161,222 | $33,045 | $0 | $194,267 | $194,267 |
| 2009 | $168,025 | $56,459 | $0 | $224,484 | $224,484 |
| 2008 | $170,007 | $56,459 | $0 | $226,466 | $226,466 |
| 2007 | $171,994 | $56,459 | $0 | $228,453 | $228,453 |
Deed and Sales History
| 1 | 02/06/2023 | QCD | Quit Claim Deed | NEAL, RICHARD | NEAL, MACKENZIE E | | | $0.00 | 55824 | 4556595 |
| 2 | 02/06/2023 | WD | Warranty Deed | GROPP, ANDREW J | FETTER, CATHY | | | $372,000.00 | 55823 | 4556594 |
| 3 | 06/25/2018 | WD | Warranty Deed | GILLISSE, JANE KOETJE | GROPP, ANDREW J | | | $269,000.00 | 34776 | 4447138 |
| 4 | 11/13/2017 | PRD | Personal Representatives Deed | CYR-MUNKS, RHODA L | GILLISSE, JANE KOETJE | | | $0.00 | 31895 | 44334057 |
| 5 | 05/28/1999 | 5 | DNU - Marriage License/Name Change | CYR, RHODA L | CYR-MUNKS, RHODA L | | | $0.00 | 68272 | 0 |
| 6 | 08/19/1998 | WD | Warranty Deed | CYR, RHODA L | CYR, RHODA L | | | $139,500.00 | 83320 | 98017304 |
| 7 | 11/01/1994 | WD | Warranty Deed | O'CONNELL, LENORA W | DUTCHER, LORRAINE Y | | | $67,500.00 | 44595 | 94023646 |
| 8 | 12/01/1990 | WD | Warranty Deed | SAXMAN, CHRISTOPHER | O'CONNELL, LENORA W | | | $79,500.00 | 6518 | 90022632 |
| 9 | 01/01/1900 | OTHER | Other - Misc. Documents | Unknown | SAXMAN, CHRISTOPHER | | | $0.00 | 63802 | 90015365 |
| 10 | 01/01/1900 | OTHER | Other - Misc. Documents | DUTCHER, LORRAINE Y | CYR, RHODA L | | | $0.00 | 83320 | 98017304 |
Payout Agreement
| No payout information available.. |