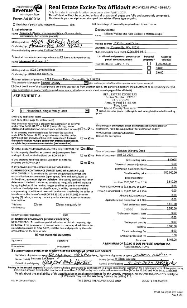
Property
Account |
| Property ID: | 650511 | Abbreviated Legal Description: | WINDWARD CONDOS APT 1B 13.27% INT |
| Geographic ID: | S8466-00-0001B-0 | Agent Code: | |
| Type: | Real | | |
| Tax Area: | 100 - APPRAISER-OH Schl Dist, in OH | Land Use Code | 14 |
| Open Space: | N | DFL | N |
| Historic Property: | N | Remodel Property: | N |
| Multi-Family Redevelopment: | N | | |
| Township: | | Section: | |
| Range: | |
Location |
| Address: | 861 SE REGATTA DR UNIT 102 OAK HARBOR, WA 98277 | Mapsco: | |
| Neighborhood: | 13*OH-windward | Map ID: | 84 |
| Neighborhood CD: | 13*OHwinwd |
Owner |
| Name: | WYVEL, DONALD I | Owner ID: | 267347 |
| Mailing Address: | AUDREY D WYVEL DOUGLAS I WYVEL 861 SE REGATTA DR OAK HARBOR, WA 98277 | % Ownership: | 100.0000000000% |
| | | Exemptions: | |
Taxes and Assessment Details
Values
| (+) Improvement Homesite Value: | + | $0 | |
| (+) Improvement Non-Homesite Value: | + | $285,813 | |
| (+) Land Homesite Value: | + | $0 | |
| (+) Land Non-Homesite Value: | + | $110,000 | |
| (+) Curr Use (HS): | + | $0 | $0 |
| (+) Curr Use (NHS): | + | $0 | $0 |
| | | -------------------------- | |
| (=) Market Value: | = | $395,813 | |
| (–) Productivity Loss: | – | $0 | |
| | | -------------------------- | |
| (=) Subtotal: | = | $395,813 | |
| (+) Senior Appraised Value: | + | $0 | |
| (+) Non-Senior Appraised Value: | + | $395,813 | |
| | | -------------------------- | |
| (=) Total Appraised Value: | = | $395,813 | |
| (–) Senior Exemption Loss: | – | $0 | |
| (–) Exemption Loss: | – | $0 | |
| | | -------------------------- | |
| (=) Taxable Value: | = | $395,813 | |
Taxing Jurisdiction
| Owner: | WYVEL, DONALD I | | |
| % Ownership: | 100.0000000000% | | |
| Total Value: | $395,813 | | |
| Tax Area: | 100 - APPRAISER-OH Schl Dist, in OH |
| CF | Conservation Futures | 0.0316035091 | $395,813 | $395,813 | $12.51 | | |
| CEM1 | Cemetery #1 | 0.0040320932 | $395,813 | $395,813 | $1.60 | | |
| COH | City of Oak Harbor | 2.3001546061 | $395,813 | $395,813 | $910.43 | | |
| OAKBOND | City of Oak Harbor BOND | 0.1926904192 | $395,813 | $395,813 | $76.27 | | |
| HOBOND | Hospital BOND | 0.1910887512 | $395,813 | $395,813 | $75.64 | | |
| HOGEN | Hospital GEN | 0.3902502903 | $395,813 | $395,813 | $154.47 | | |
| CE | County Current Expense | 0.3708482477 | $395,813 | $395,813 | $146.79 | | |
| ISLANDEMS | Hospital GEN (EMS) | 0.5000000000 | $395,813 | $395,813 | $197.91 | | |
| LIB | Library Sno-Isle GEN | 0.3153421757 | $395,813 | $395,813 | $124.82 | | |
| NWHIDPRMT | P & R N Whidbey GEN | 0.2004466701 | $395,813 | $395,813 | $79.34 | | |
| SCH201MO | School 201 Enrichment | 1.8559231640 | $395,813 | $395,813 | $734.60 | | |
| ST | State School | 1.3035497053 | $395,813 | $395,813 | $515.96 | | |
| ST2 | State School Part 2 | 0.8169543533 | $395,813 | $395,813 | $323.36 | | |
| | Total Tax Rate: | 8.4728839852 | | | | | |
| | | | | Taxes w/Current Exemptions: | $3,353.70 | | |
| | | | | Taxes w/o Exemptions: | $3,353.70 | | |
Improvement / Building
| Improvement #1: | RESIDENTIAL | State Code: | Y | 1424.5 sqft | Value: | $285,813 |
| Bathrooms: | 2 | Bedrooms: | 2 | | Ceiling: | DRYWALL PAINTED | Exterior Wall/Cover: | WOOD SIDING | | Floor Covering: | CARPET/VINYL 80-20 | Floor Structure: | WOOD W/SUBFLOOR | | Foundation: | CONCRETE | Heating: | FHA GAS | | Interior Finish: | DRYWALL PAINT | Plumbing Fixture Cnt: | 9 | | Roof Slope: | FLAT | Roof Structure/Cover: | BEAM BUILT-UP ROCK |
|
| | Type | Description | Class CD | Sub Class CD | Year Built | Area |
| | BAS | BASE/MAIN FLOOR | 3 | 0 | 1990 | 1424.5 |
| | BGR | BASEMENT GARAGE | 3 | 0 | 1990 | 636.5 |
| | OWP | OPEN WOOD PORCH W/STEPS | 3 | 0 | 1990 | 63.0 |
| | OWC | OPEN WOOD PORCH W/STEPS/ROOF/C | 3 | 0 | 1990 | 0.0 |
| | oPV1 | PV/ASPH 2" | 3 | 0 | 1990 | 0.0 |
| | oELV | ELEVATOR | 3 | 0 | 1990 | 0.0 |
| | oSPS | SPRINKLERS | 3 | 0 | 1990 | 0.0 |
| | OWC | OPEN WOOD PORCH W/STEPS/ROOF/C | 3 | 0 | 1990 | 0.0 |
| | OWP | OPEN WOOD PORCH W/STEPS | 3 | 0 | 1990 | 63.0 |
Sketch
Property Image
Land
| 1 | 61 | MULTIPLE RESIDENCES | 0.0000 | 1672.00 | 0.00 | 0.00 | 1.00 | $110,000 | $0 |
Roll Value History
| 2026 | N/A | N/A | N/A | N/A | N/A |
| 2025 | $285,813 | $110,000 | $0 | $395,813 | $395,813 |
| 2024 | $288,826 | $110,000 | $0 | $398,826 | $398,826 |
| 2023 | $279,785 | $110,000 | $0 | $389,785 | $389,785 |
| 2022 | $259,382 | $110,000 | $0 | $369,382 | $369,382 |
| 2021 | $232,473 | $55,000 | $0 | $287,473 | $287,473 |
| 2020 | $227,366 | $35,000 | $0 | $262,366 | $262,366 |
| 2019 | $174,311 | $100,000 | $0 | $274,311 | $274,311 |
| 2018 | $174,720 | $65,000 | $0 | $239,720 | $239,720 |
| 2017 | $179,544 | $25,916 | $0 | $205,460 | $205,460 |
| 2016 | $181,789 | $25,916 | $0 | $207,705 | $207,705 |
| 2015 | $184,037 | $25,916 | $0 | $209,953 | $209,953 |
| 2014 | $186,284 | $25,916 | $0 | $212,200 | $212,200 |
| 2013 | $188,530 | $25,916 | $0 | $214,446 | $214,446 |
| 2012 | $193,780 | $25,916 | $0 | $219,696 | $219,696 |
| 2011 | $189,420 | $25,916 | $0 | $215,336 | $215,336 |
| 2010 | $190,469 | $45,662 | $0 | $236,131 | $236,131 |
| 2009 | $198,454 | $78,016 | $0 | $276,470 | $276,470 |
| 2008 | $200,696 | $78,016 | $0 | $278,712 | $278,712 |
| 2007 | $202,942 | $78,016 | $0 | $280,958 | $280,958 |
Deed and Sales History
| 1 | 08/29/2016 | TRUSTEED | Trustee's Deed | WYVEL, DONALD I | WYVEL, DONALD I | | | $0.00 | 26060 | 4406924 |
| 2 | 08/29/2016 | OTHER | Other - Misc. Documents | WYVEL, DONALD I | WYVEL, DONALD I | | | $0.00 | 25942 | |
| 3 | 07/24/2014 | WD | Warranty Deed | BISHOP, ANNE K | WYVEL, DONALD I | | | $199,900.00 | 16230 | 4363224 |
| 4 | 05/01/1993 | QCD | Quit Claim Deed | BISHOP, KENNETH F | BISHOP, ANNE K | | | $0.00 | 31870 | 93009807 |
| 5 | 12/01/1990 | WD | Warranty Deed | SAXMAN, CHRISTOPHER | BISHOP, KENNETH F | | | $109,900.00 | 6645 | 90023186 |
| 6 | 01/01/1900 | OTHER | Other - Misc. Documents | Unknown | SAXMAN, CHRISTOPHER | | | $0.00 | 63802 | 90015365 |
Payout Agreement
| No payout information available.. |