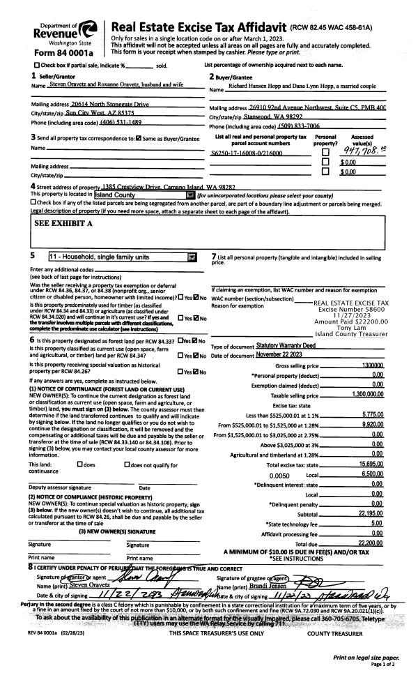
Property
Account |
| Property ID: | 650708 | Abbreviated Legal Description: | LOT 2 OH-SP 5-89.13335.085-0500 & 8435.00-00001-0 V2 SP P267 AF#90021978 |
| Geographic ID: | R13335-085-0490 | Agent Code: | |
| Type: | Real | | |
| Tax Area: | 100 - APPRAISER-OH Schl Dist, in OH | Land Use Code | 17 |
| Open Space: | N | DFL | N |
| Historic Property: | N | Remodel Property: | N |
| Multi-Family Redevelopment: | N | | |
| Township: | 33 | Section: | 35 |
| Range: | R1 |
Location |
| Address: | 100 W WHIDBEY AVE OAK HARBOR, WA 98277 | Mapsco: | |
| Neighborhood: | 4BcOH-whidbey ave | Map ID: | 256 |
| Neighborhood CD: | 4BcOHwhdby |
Owner |
| Name: | ANACORTES CLASS ASSETS LLC | Owner ID: | 190233 |
| Mailing Address: | ROBERT G CONDIE ATTORNEY 2020 A ST SE SUITE 101 AUBURN, WA 98002 | % Ownership: | 100.0000000000% |
| | | Exemptions: | |
Taxes and Assessment Details
Values
| (+) Improvement Homesite Value: | + | $0 | |
| (+) Improvement Non-Homesite Value: | + | $2,445,526 | |
| (+) Land Homesite Value: | + | $0 | |
| (+) Land Non-Homesite Value: | + | $761,864 | |
| (+) Curr Use (HS): | + | $0 | $0 |
| (+) Curr Use (NHS): | + | $0 | $0 |
| | | -------------------------- | |
| (=) Market Value: | = | $3,207,390 | |
| (–) Productivity Loss: | – | $0 | |
| | | -------------------------- | |
| (=) Subtotal: | = | $3,207,390 | |
| (+) Senior Appraised Value: | + | $0 | |
| (+) Non-Senior Appraised Value: | + | $3,207,390 | |
| | | -------------------------- | |
| (=) Total Appraised Value: | = | $3,207,390 | |
| (–) Senior Exemption Loss: | – | $0 | |
| (–) Exemption Loss: | – | $0 | |
| | | -------------------------- | |
| (=) Taxable Value: | = | $3,207,390 | |
Taxing Jurisdiction
| Owner: | ANACORTES CLASS ASSETS LLC | | |
| % Ownership: | 100.0000000000% | | |
| Total Value: | $3,207,390 | | |
| Tax Area: | 100 - APPRAISER-OH Schl Dist, in OH |
| CF | Conservation Futures | 0.0316035091 | $3,207,390 | $3,207,390 | $101.36 | | |
| CEM1 | Cemetery #1 | 0.0040320932 | $3,207,390 | $3,207,390 | $12.93 | | |
| COH | City of Oak Harbor | 2.3001546061 | $3,207,390 | $3,207,390 | $7,377.49 | | |
| OAKBOND | City of Oak Harbor BOND | 0.1926904192 | $3,207,390 | $3,207,390 | $618.03 | | |
| HOBOND | Hospital BOND | 0.1910887512 | $3,207,390 | $3,207,390 | $612.90 | | |
| HOGEN | Hospital GEN | 0.3902502903 | $3,207,390 | $3,207,390 | $1,251.68 | | |
| CE | County Current Expense | 0.3708482477 | $3,207,390 | $3,207,390 | $1,189.45 | | |
| ISLANDEMS | Hospital GEN (EMS) | 0.5000000000 | $3,207,390 | $3,207,390 | $1,603.70 | | |
| LIB | Library Sno-Isle GEN | 0.3153421757 | $3,207,390 | $3,207,390 | $1,011.43 | | |
| NWHIDPRMT | P & R N Whidbey GEN | 0.2004466701 | $3,207,390 | $3,207,390 | $642.91 | | |
| SCH201MO | School 201 Enrichment | 1.8559231640 | $3,207,390 | $3,207,390 | $5,952.67 | | |
| ST | State School | 1.3035497053 | $3,207,390 | $3,207,390 | $4,180.99 | | |
| ST2 | State School Part 2 | 0.8169543533 | $3,207,390 | $3,207,390 | $2,620.29 | | |
| | Total Tax Rate: | 8.4728839852 | | | | | |
| | | | | Taxes w/Current Exemptions: | $27,175.83 | | |
| | | | | Taxes w/o Exemptions: | $27,175.83 | | |
Improvement / Building
| Improvement #1: | COMMERCIAL | State Code: | A1 | 22649.5 sqft | Value: | $2,445,526 |
| Bathrooms: | 0 | Bedrooms: | 0 | | Ceiling: | DRYWALL PAINTED | Exterior Wall/Cover: | WOOD SIDING | | Floor Covering: | CARPET 100% | Floor Structure: | WOOD W/SUBFLOOR | | Foundation: | CONCRETE | Heating: | WALL HEAT ELECTRIC | | Interior Finish: | DRYWALL PAINT | Plumbing Fixture Cnt: | 80 | | Roof Slope: | 4" IN 12" | Roof Structure/Cover: | CJ ASPHALT |
|
| | Type | Description | Class CD | Sub Class CD | Year Built | Area |
| | BAS | BASE/MAIN FLOOR | 3 | 0 | 1987 | 22649.5 |
| | OP1 | OPEN PORCH SLAB | 3 | 0 | 1987 | 5036.0 |
| | OP2 | OPEN PORCH W/STEPS | 3 | 0 | 1987 | 48.0 |
| | OP4 | OPEN PORCH W/CEILING-ROOF | 3 | 0 | 1987 | 1592.0 |
| | oPV1 | PV/ASPH 2" | 3 | 0 | 1987 | 19600.0 |
Sketch
Property Image
Land
| 1 | 64 | PERSONAL BUSINESS | 1.5900 | 69260.40 | 0.00 | 0.00 | 1.00 | $761,864 | $0 |
Roll Value History
| 2026 | N/A | N/A | N/A | N/A | N/A |
| 2025 | $2,445,526 | $761,864 | $0 | $3,207,390 | $3,207,390 |
| 2024 | $2,476,347 | $761,864 | $0 | $3,238,211 | $3,238,211 |
| 2023 | $2,445,526 | $761,864 | $0 | $3,207,390 | $3,207,390 |
| 2022 | $1,871,927 | $761,864 | $0 | $2,633,791 | $2,633,791 |
| 2021 | $1,860,311 | $761,864 | $0 | $2,622,175 | $2,622,175 |
| 2020 | $1,977,010 | $761,864 | $0 | $2,738,874 | $2,738,874 |
| 2019 | $1,934,149 | $692,604 | $0 | $2,626,753 | $2,626,753 |
| 2018 | $1,934,404 | $692,604 | $0 | $2,627,008 | $2,627,008 |
| 2017 | $1,934,911 | $254,184 | $0 | $2,189,095 | $2,189,095 |
| 2016 | $1,935,926 | $254,184 | $0 | $2,190,110 | $2,190,110 |
| 2015 | $1,984,610 | $254,184 | $0 | $2,238,794 | $2,238,794 |
| 2014 | $2,511,519 | $254,184 | $0 | $2,765,703 | $2,765,703 |
| 2013 | $2,511,519 | $254,184 | $0 | $2,765,703 | $2,765,703 |
| 2012 | $2,511,519 | $254,184 | $0 | $2,765,703 | $2,765,703 |
| 2011 | $2,511,519 | $254,184 | $0 | $2,765,703 | $2,765,703 |
| 2010 | $2,623,891 | $254,184 | $0 | $2,878,075 | $2,878,075 |
| 2009 | $2,654,785 | $287,429 | $0 | $2,942,214 | $2,942,214 |
| 2008 | $2,685,678 | $287,429 | $0 | $2,973,107 | $2,973,107 |
| 2007 | $2,716,572 | $287,429 | $0 | $3,004,001 | $3,004,001 |
Deed and Sales History
| 1 | 05/15/2003 | ESTSEPPROP | Establish Separate Property | BROWN, RICKNEY D | ASSETS LLC, ANACORTES CLASS | | | $0.00 | 32091 | 4059465 |
| 2 | 04/01/1991 | DECREE | Divorce Decree/Legal Separation | BROWN, RICK D | BROWN, RICKNEY D | | | $0.00 | 11678 | 91007084 |
| 3 | 01/01/1900 | OTHER | Other - Misc. Documents | Unknown | BROWN, RICK D | | | $0.00 | 53199 | 85012653 |
Payout Agreement
| No payout information available.. |