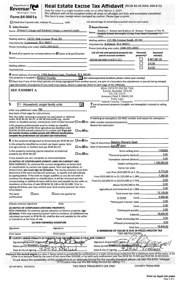
Property
Account |
| Property ID: | 650717 | Abbreviated Legal Description: | LOT 3 OH-SP 5-89.13335.085-0500 & 8435.00-00001-0 V2 SP P267 AF#90021978 (TOWER TRACT) |
| Geographic ID: | R13335-093-0600 | Agent Code: | |
| Type: | Real | | |
| Tax Area: | 100 - APPRAISER-OH Schl Dist, in OH | Land Use Code | 72 |
| Open Space: | N | DFL | N |
| Historic Property: | N | Remodel Property: | N |
| Multi-Family Redevelopment: | N | | |
| Township: | 33 | Section: | 35 |
| Range: | R1 |
Location |
| Address: | NE BARRON ST OAK HARBOR, WA 98277 | Mapsco: | |
| Neighborhood: | 6BcOH-whidbey ave | Map ID: | 256 |
| Neighborhood CD: | 6BcOHwhdby |
Owner |
| Name: | CITY OF OAK HARBOR | Owner ID: | 41501 |
| Mailing Address: | 865 SE BARRINGTON DR OAK HARBOR, WA 98277-3280 | % Ownership: | 100.0000000000% |
| | | Exemptions: | EX |
Taxes and Assessment Details
Property Tax Information as of
10/22/2025
Click on "Statement Details" to expand or collapse a tax statement.
* Please enter a valid date ** Please enter a valid date *
Statement Details |
| 2025 | 40170 | ST - State School | $0.00 | $0.00 | $0.00 | $0.00 | $0.00 | $0.00 |
| 2025 | 40170 | Island County - Island County General Fund | $0.00 | $0.00 | $0.00 | $0.00 | $0.00 | $0.00 |
| 2025 | 40170 | CIOKHRB - City of Oak Harbor | $0.00 | $0.00 | $0.00 | $0.00 | $0.00 | $0.00 |
| 2025 | 40170 | PRKRECNWHDBY - Park & Recreation North Whidbey | $0.00 | $0.00 | $0.00 | $0.00 | $0.00 | $0.00 |
| 2025 | 40170 | SCH201 - School 201 Oak Harbor | $0.00 | $0.00 | $0.00 | $0.00 | $0.00 | $0.00 |
| 2025 | 40170 | CEM1 - Cemetery #1 North Whidbey | $0.00 | $0.00 | $0.00 | $0.00 | $0.00 | $0.00 |
| 2025 | 40170 | LIB - Library Sno-Isle Regional | $0.00 | $0.00 | $0.00 | $0.00 | $0.00 | $0.00 |
| 2025 | 40170 | HOSPEMS - Whidbey Health EMS Island County | $0.00 | $0.00 | $0.00 | $0.00 | $0.00 | $0.00 |
| 2025 | 40170 | HOSP - Whidbey Health | $0.00 | $0.00 | $0.00 | $0.00 | $0.00 | $0.00 |
| 2025 | 40170 | CF - Island County Conservation Futures | $0.00 | $0.00 | $0.00 | $0.00 | $0.00 | $0.00 |
| 2025 | 40170 | TOTAL: | $0.00 | $0.00 | $0.00 | $0.00 | $0.00 | $0.00 |
|
| 2025 | 40170 | $0.00 | $0.00 | $0.00 | $0.00 | $0.00 | $0.00 |
Statement Details |
| 2016 | 40839 | WDBYCNV - Whidbey Conservation District | $0.00 | $0.00 | $0.00 | $0.00 | $0.00 | $0.00 |
| 2016 | 40839 | TOTAL: | $0.00 | $0.00 | $0.00 | $0.00 | $0.00 | $0.00 |
|
| 2016 | 40839 | $0.00 | $0.00 | $0.00 | $0.00 | $0.00 | $0.00 |
Values
| (+) Improvement Homesite Value: | + | $0 | |
| (+) Improvement Non-Homesite Value: | + | $43,727 | |
| (+) Land Homesite Value: | + | $0 | |
| (+) Land Non-Homesite Value: | + | $36,590 | |
| (+) Curr Use (HS): | + | $0 | $0 |
| (+) Curr Use (NHS): | + | $0 | $0 |
| | | -------------------------- | |
| (=) Market Value: | = | $80,317 | |
| (–) Productivity Loss: | – | $0 | |
| | | -------------------------- | |
| (=) Subtotal: | = | $80,317 | |
| (+) Senior Appraised Value: | + | $0 | |
| (+) Non-Senior Appraised Value: | + | $80,317 | |
| | | -------------------------- | |
| (=) Total Appraised Value: | = | $80,317 | |
| (–) Senior Exemption Loss: | – | $0 | |
| (–) Exemption Loss: | – | $80,317 | |
| | | -------------------------- | |
| (=) Taxable Value: | = | $0 | |
Taxing Jurisdiction
| Owner: | CITY OF OAK HARBOR | | |
| % Ownership: | 100.0000000000% | | |
| Total Value: | $80,317 | | |
| Tax Area: | 100 - APPRAISER-OH Schl Dist, in OH |
| CF | Conservation Futures | 0.0316035091 | $80,317 | $0 | $0.00 | | |
| CEM1 | Cemetery #1 | 0.0040320932 | $80,317 | $0 | $0.00 | | |
| COH | City of Oak Harbor | 2.3001546061 | $80,317 | $0 | $0.00 | | |
| OAKBOND | City of Oak Harbor BOND | 0.1926904192 | $80,317 | $0 | $0.00 | | |
| HOBOND | Hospital BOND | 0.1910887512 | $80,317 | $0 | $0.00 | | |
| HOGEN | Hospital GEN | 0.3902502903 | $80,317 | $0 | $0.00 | | |
| CE | County Current Expense | 0.3708482477 | $80,317 | $0 | $0.00 | | |
| ISLANDEMS | Hospital GEN (EMS) | 0.5000000000 | $80,317 | $0 | $0.00 | | |
| LIB | Library Sno-Isle GEN | 0.3153421757 | $80,317 | $0 | $0.00 | | |
| NWHIDPRMT | P & R N Whidbey GEN | 0.2004466701 | $80,317 | $0 | $0.00 | | |
| SCH201MO | School 201 Enrichment | 1.8559231640 | $80,317 | $0 | $0.00 | | |
| ST | State School | 1.3035497053 | $80,317 | $0 | $0.00 | | |
| ST2 | State School Part 2 | 0.8169543533 | $80,317 | $0 | $0.00 | | |
| | Total Tax Rate: | 8.4728839852 | | | | | |
| | | | | Taxes w/Current Exemptions: | $0.00 | | |
| | | | | Taxes w/o Exemptions: | $680.53 | | |
Improvement / Building
| Improvement #1: | MISC | State Code: | Y | 0.0 sqft | Value: | $43,727 |
| | Type | Description | Class CD | Sub Class CD | Year Built | Area |
| | oSTR | STRUCTURE/OTHER FEAT | 3 | 0 | 1990 | 324.0 |
| | oLOF | STORAGE LOFT | 3 | 0 | 1990 | 144.0 |
Sketch
Property Image
Land
| 1 | 64 | PERSONAL BUSINESS | 0.0600 | 2613.60 | 0.00 | 0.00 | 1.00 | $36,590 | $0 |
Roll Value History
| 2026 | N/A | N/A | N/A | N/A | N/A |
| 2025 | $43,727 | $36,590 | $0 | $80,317 | $0 |
| 2024 | $43,727 | $36,590 | $0 | $80,317 | $0 |
| 2023 | $43,727 | $36,590 | $0 | $80,317 | $0 |
| 2022 | $43,727 | $36,590 | $0 | $80,317 | $0 |
| 2021 | $43,727 | $36,590 | $0 | $80,317 | $0 |
| 2020 | $43,727 | $36,590 | $0 | $80,317 | $0 |
| 2019 | $43,727 | $28,750 | $0 | $72,477 | $0 |
| 2018 | $43,727 | $26,136 | $0 | $69,863 | $0 |
| 2017 | $43,727 | $40,000 | $0 | $83,727 | $0 |
| 2016 | $43,727 | $40,000 | $0 | $83,727 | $0 |
| 2015 | $43,727 | $43,200 | $0 | $86,927 | $0 |
| 2014 | $43,727 | $43,200 | $0 | $86,927 | $0 |
| 2013 | $43,727 | $43,200 | $0 | $86,927 | $0 |
| 2012 | $43,727 | $44,739 | $0 | $88,466 | $0 |
| 2011 | $43,727 | $44,739 | $0 | $88,466 | $0 |
| 2010 | $43,727 | $44,739 | $0 | $88,466 | $0 |
| 2009 | $43,898 | $50,652 | $0 | $94,550 | $0 |
| 2008 | $44,070 | $50,652 | $0 | $94,722 | $0 |
| 2007 | $44,241 | $50,652 | $0 | $94,893 | $0 |
Deed and Sales History
| 1 | 02/01/1994 | QCD | Quit Claim Deed | BROWN, RICKNEY D | CITY, OF O | | | $0.00 | 41293 | 94008061 |
| 2 | 04/01/1991 | DECREE | Divorce Decree/Legal Separation | BROWN, RICK D | BROWN, RICKNEY D | | | $0.00 | 11678 | 91007084 |
| 3 | 01/01/1900 | OTHER | Other - Misc. Documents | Unknown | BROWN, RICK D | | | $0.00 | 53199 | 85012653 |
Payout Agreement
| No payout information available.. |