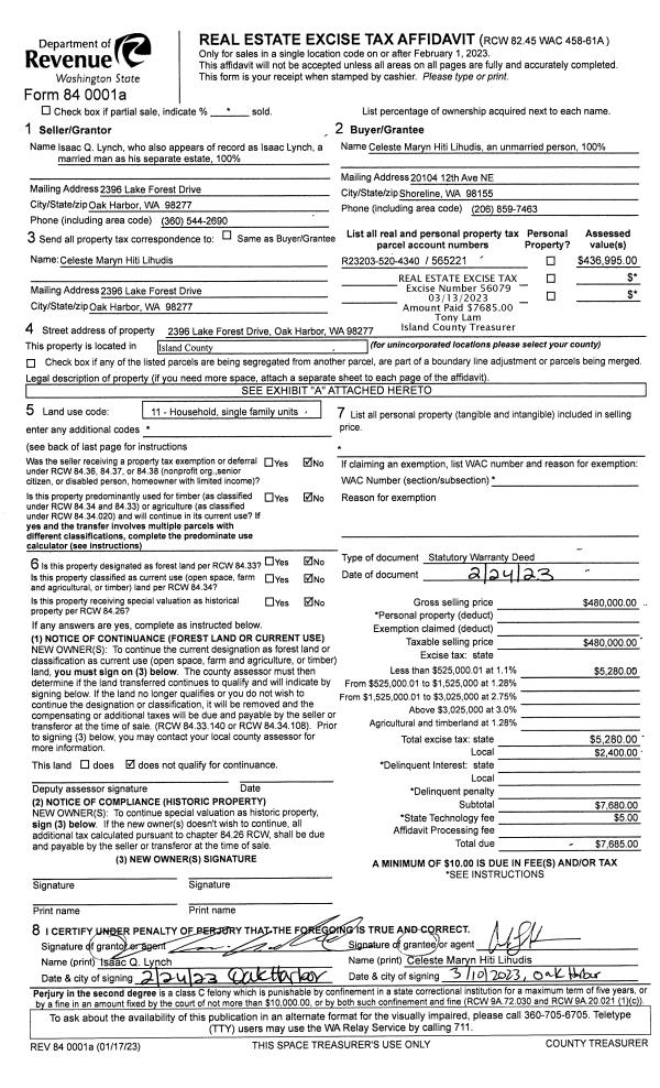
Property
Account |
| Property ID: | 650897 | Abbreviated Legal Description: | PARK PLACE CONDOS UNIT D3 1/44 INT |
| Geographic ID: | S7665-04-000D3-0 | Agent Code: | |
| Type: | Real | | |
| Tax Area: | 100 - APPRAISER-OH Schl Dist, in OH | Land Use Code | 14 |
| Open Space: | N | DFL | N |
| Historic Property: | N | Remodel Property: | N |
| Multi-Family Redevelopment: | N | | |
| Township: | | Section: | |
| Range: | |
Location |
| Address: | 537 NE ELLIS WAY BLDG D, UNIT 201 OAK HARBOR, WA 98277 | Mapsco: | |
| Neighborhood: | 4B*OH-park place | Map ID: | 256 |
| Neighborhood CD: | 4B*OHpkpla |
Owner |
| Name: | 3809 PROPERTIES D 201, LLC | Owner ID: | 307014 |
| Mailing Address: | PO BOX 73 CLINTON, WA 98236 | % Ownership: | 100.0000000000% |
| | | Exemptions: | |
Taxes and Assessment Details
Values
| (+) Improvement Homesite Value: | + | $0 | |
| (+) Improvement Non-Homesite Value: | + | $148,621 | |
| (+) Land Homesite Value: | + | $0 | |
| (+) Land Non-Homesite Value: | + | $90,000 | |
| (+) Curr Use (HS): | + | $0 | $0 |
| (+) Curr Use (NHS): | + | $0 | $0 |
| | | -------------------------- | |
| (=) Market Value: | = | $238,621 | |
| (–) Productivity Loss: | – | $0 | |
| | | -------------------------- | |
| (=) Subtotal: | = | $238,621 | |
| (+) Senior Appraised Value: | + | $0 | |
| (+) Non-Senior Appraised Value: | + | $238,621 | |
| | | -------------------------- | |
| (=) Total Appraised Value: | = | $238,621 | |
| (–) Senior Exemption Loss: | – | $0 | |
| (–) Exemption Loss: | – | $0 | |
| | | -------------------------- | |
| (=) Taxable Value: | = | $238,621 | |
Taxing Jurisdiction
| Owner: | 3809 PROPERTIES D 201, LLC | | |
| % Ownership: | 100.0000000000% | | |
| Total Value: | $238,621 | | |
| Tax Area: | 100 - APPRAISER-OH Schl Dist, in OH |
| CF | Conservation Futures | 0.0316035091 | $238,621 | $238,621 | $7.54 | | |
| CEM1 | Cemetery #1 | 0.0040320932 | $238,621 | $238,621 | $0.96 | | |
| COH | City of Oak Harbor | 2.3001546061 | $238,621 | $238,621 | $548.87 | | |
| OAKBOND | City of Oak Harbor BOND | 0.1926904192 | $238,621 | $238,621 | $45.98 | | |
| HOBOND | Hospital BOND | 0.1910887512 | $238,621 | $238,621 | $45.60 | | |
| HOGEN | Hospital GEN | 0.3902502903 | $238,621 | $238,621 | $93.12 | | |
| CE | County Current Expense | 0.3708482477 | $238,621 | $238,621 | $88.49 | | |
| ISLANDEMS | Hospital GEN (EMS) | 0.5000000000 | $238,621 | $238,621 | $119.31 | | |
| LIB | Library Sno-Isle GEN | 0.3153421757 | $238,621 | $238,621 | $75.25 | | |
| NWHIDPRMT | P & R N Whidbey GEN | 0.2004466701 | $238,621 | $238,621 | $47.83 | | |
| SCH201MO | School 201 Enrichment | 1.8559231640 | $238,621 | $238,621 | $442.86 | | |
| ST | State School | 1.3035497053 | $238,621 | $238,621 | $311.05 | | |
| ST2 | State School Part 2 | 0.8169543533 | $238,621 | $238,621 | $194.94 | | |
| | Total Tax Rate: | 8.4728839852 | | | | | |
| | | | | Taxes w/Current Exemptions: | $2,021.80 | | |
| | | | | Taxes w/o Exemptions: | $2,021.80 | | |
Improvement / Building
| Improvement #1: | RESIDENTIAL | State Code: | A1 | 875.6 sqft | Value: | $148,621 |
| Bathrooms: | 2 | Bedrooms: | 2 | | Ceiling: | DRYWALL PAINTED | Exterior Wall/Cover: | PLY/HARDBOARD T-111 | | Floor Covering: | CARPET/VINYL 80-20 | Floor Structure: | WOOD W/SUBFLOOR | | Foundation: | CONCRETE | Heating: | WALL HEAT ELECTRIC | | Interior Finish: | DRYWALL PAINT | Plumbing Fixture Cnt: | 9 | | Roof Slope: | 4" IN 12" | Roof Structure/Cover: | CJ ASPHALT |
|
| | Type | Description | Class CD | Sub Class CD | Year Built | Area |
| | BAS | BASE/MAIN FLOOR | 3 | 0 | 1991 | 875.6 |
| | OWP | OPEN WOOD PORCH W/STEPS | 3 | 0 | 1991 | 60.0 |
| | UTY | STORAGE/UTILITY | 3 | 0 | 1991 | 6.0 |
| | OWP | OPEN WOOD PORCH W/STEPS | 3 | 0 | 1991 | 59.4 |
| | COMA | Common Area Improvement | 3 | 0 | 1991 | 0.0 |
Sketch
Property Image
Land
| 1 | 61 | MULTIPLE RESIDENCES | 0.0000 | 2000.00 | 0.00 | 0.00 | 1.00 | $90,000 | $0 |
Roll Value History
| 2026 | N/A | N/A | N/A | N/A | N/A |
| 2025 | $148,621 | $90,000 | $0 | $238,621 | $238,621 |
| 2024 | $150,582 | $90,000 | $0 | $240,582 | $240,582 |
| 2023 | $152,542 | $90,000 | $0 | $242,542 | $242,542 |
| 2022 | $140,010 | $100,000 | $0 | $240,010 | $240,010 |
| 2021 | $123,431 | $70,000 | $0 | $193,431 | $193,431 |
| 2020 | $115,294 | $65,000 | $0 | $180,294 | $180,294 |
| 2019 | $79,879 | $85,000 | $0 | $164,879 | $164,879 |
| 2018 | $80,154 | $65,000 | $0 | $145,154 | $145,154 |
| 2017 | $95,230 | $15,000 | $0 | $110,230 | $110,230 |
| 2016 | $96,529 | $15,000 | $0 | $111,529 | $111,529 |
| 2015 | $66,323 | $15,000 | $0 | $81,323 | $81,323 |
| 2014 | $84,004 | $27,640 | $0 | $111,644 | $111,644 |
| 2013 | $85,105 | $27,640 | $0 | $112,745 | $112,745 |
| 2012 | $87,304 | $27,640 | $0 | $114,944 | $114,944 |
| 2011 | $87,304 | $27,640 | $0 | $114,944 | $114,944 |
| 2010 | $87,542 | $27,640 | $0 | $115,182 | $115,182 |
| 2009 | $91,284 | $48,000 | $0 | $139,284 | $139,284 |
| 2008 | $91,776 | $60,000 | $0 | $151,776 | $151,776 |
| 2007 | $92,843 | $60,000 | $0 | $152,843 | $152,843 |
Deed and Sales History
| 1 | 12/19/2022 | WD | Warranty Deed | OLIPHANT, DREW | 3809 PROPERTIES D 201, LLC | | | $0.00 | 55443 | 4555022 |
| 2 | 12/20/2022 | WD | Warranty Deed | OLIPHANT, H ELAINE | OLIPHANT, DREW | | | $0.00 | 55426 | 4555013 |
| 3 | 03/21/2006 | PRD | Personal Representatives Deed | OLIPHANT, H ELAINE | OLIPHANT, H ELAINE | | | $0.00 | 61240 | 4165722 |
| 4 | 10/29/2003 | 5 | DNU - Marriage License/Name Change | BOLLERUD, JACK | OLIPHANT, H ELAINE | | | $0.00 | 34908 | 4081117 |
| 5 | 09/29/2003 | WD | Warranty Deed | FAHRENKAMP, CORY D | BOLLERUD, JACK | | | $81,500.00 | 34529 | 4078231 |
| 6 | 11/26/2001 | WD | Warranty Deed | COCHRAN, JIMMY R | FAHRENKAMP, CORY D | | | $75,000.00 | 14536 | 4004297 |
| 7 | 12/01/1993 | WD | Warranty Deed | KONOPIK, JAMES A | COCHRAN, JIMMY R | | | $68,500.00 | 35138 | 93026741 |
| 8 | 01/01/1991 | WD | Warranty Deed | ISLAND, CONST & | KONOPIK, JAMES A | | | $56,250.00 | 10446 | 91002035 |
| 9 | 01/01/1900 | OTHER | Other - Misc. Documents | Unknown | ISLAND, CONST & | | | $0.00 | 1133 | 90003700 |
Payout Agreement
| No payout information available.. |