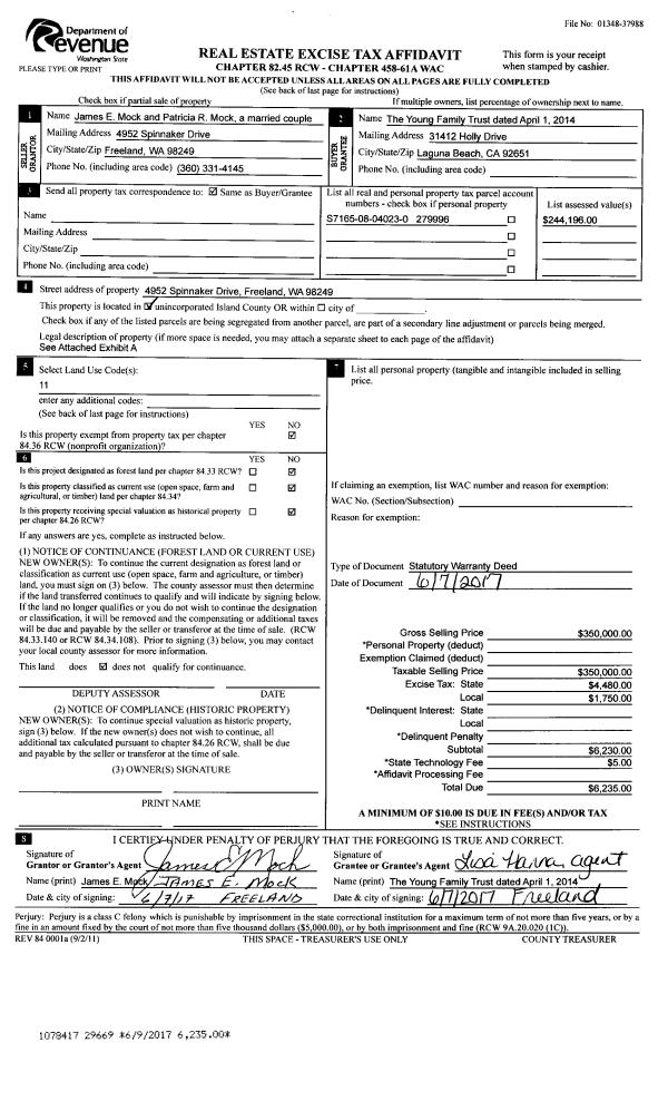
Property
Account |
| Property ID: | 650995 | Abbreviated Legal Description: | PARK PLACE CONDOS UNIT G1 1/44 INT |
| Geographic ID: | S7665-07-000G1-0 | Agent Code: | |
| Type: | Real | | |
| Tax Area: | 100 - APPRAISER-OH Schl Dist, in OH | Land Use Code | 14 |
| Open Space: | N | DFL | N |
| Historic Property: | N | Remodel Property: | N |
| Multi-Family Redevelopment: | N | | |
| Township: | | Section: | |
| Range: | |
Location |
| Address: | 537 NE ELLIS WAY BLDG A, UNIT 101 OAK HARBOR, WA 98277 | Mapsco: | |
| Neighborhood: | 4B*OH-park place | Map ID: | 256 |
| Neighborhood CD: | 4B*OHpkpla |
Owner |
| Name: | HARTO, JOSHUA | Owner ID: | 300619 |
| Mailing Address: | JOCELYNN LEIGH VALENCIA 537 NE ELLIS WAY #A101 OAK HARBOR, WA 98277 | % Ownership: | 100.0000000000% |
| | | Exemptions: | |
Taxes and Assessment Details
Values
| (+) Improvement Homesite Value: | + | $0 | |
| (+) Improvement Non-Homesite Value: | + | $175,377 | |
| (+) Land Homesite Value: | + | $0 | |
| (+) Land Non-Homesite Value: | + | $90,000 | |
| (+) Curr Use (HS): | + | $0 | $0 |
| (+) Curr Use (NHS): | + | $0 | $0 |
| | | -------------------------- | |
| (=) Market Value: | = | $265,377 | |
| (–) Productivity Loss: | – | $0 | |
| | | -------------------------- | |
| (=) Subtotal: | = | $265,377 | |
| (+) Senior Appraised Value: | + | $0 | |
| (+) Non-Senior Appraised Value: | + | $265,377 | |
| | | -------------------------- | |
| (=) Total Appraised Value: | = | $265,377 | |
| (–) Senior Exemption Loss: | – | $0 | |
| (–) Exemption Loss: | – | $0 | |
| | | -------------------------- | |
| (=) Taxable Value: | = | $265,377 | |
Taxing Jurisdiction
| Owner: | HARTO, JOSHUA | | |
| % Ownership: | 100.0000000000% | | |
| Total Value: | $265,377 | | |
| Tax Area: | 100 - APPRAISER-OH Schl Dist, in OH |
| CF | Conservation Futures | 0.0316035091 | $265,377 | $265,377 | $8.39 | | |
| CEM1 | Cemetery #1 | 0.0040320932 | $265,377 | $265,377 | $1.07 | | |
| COH | City of Oak Harbor | 2.3001546061 | $265,377 | $265,377 | $610.41 | | |
| OAKBOND | City of Oak Harbor BOND | 0.1926904192 | $265,377 | $265,377 | $51.14 | | |
| HOBOND | Hospital BOND | 0.1910887512 | $265,377 | $265,377 | $50.71 | | |
| HOGEN | Hospital GEN | 0.3902502903 | $265,377 | $265,377 | $103.56 | | |
| CE | County Current Expense | 0.3708482477 | $265,377 | $265,377 | $98.41 | | |
| ISLANDEMS | Hospital GEN (EMS) | 0.5000000000 | $265,377 | $265,377 | $132.69 | | |
| LIB | Library Sno-Isle GEN | 0.3153421757 | $265,377 | $265,377 | $83.68 | | |
| NWHIDPRMT | P & R N Whidbey GEN | 0.2004466701 | $265,377 | $265,377 | $53.19 | | |
| SCH201MO | School 201 Enrichment | 1.8559231640 | $265,377 | $265,377 | $492.52 | | |
| ST | State School | 1.3035497053 | $265,377 | $265,377 | $345.93 | | |
| ST2 | State School Part 2 | 0.8169543533 | $265,377 | $265,377 | $216.80 | | |
| | Total Tax Rate: | 8.4728839852 | | | | | |
| | | | | Taxes w/Current Exemptions: | $2,248.50 | | |
| | | | | Taxes w/o Exemptions: | $2,248.50 | | |
Improvement / Building
| Improvement #1: | RESIDENTIAL | State Code: | A1 | 1086.0 sqft | Value: | $175,377 |
| Bathrooms: | 2 | Bedrooms: | 2 | | Ceiling: | DRYWALL PAINTED | Exterior Wall/Cover: | PLY/HARDBOARD T-111 | | Floor Covering: | VINYL/HARDWOOD 20-80 | Floor Structure: | WOOD W/SUBFLOOR | | Foundation: | CONCRETE | Heating: | WALL HEAT ELECTRIC | | Interior Finish: | DRYWALL PAINT | Plumbing Fixture Cnt: | 9 | | Roof Slope: | 4" IN 12" | Roof Structure/Cover: | CJ ASPHALT |
|
| | Type | Description | Class CD | Sub Class CD | Year Built | Area |
| | BAS | BASE/MAIN FLOOR | 3 | 0 | 1991 | 1086.0 |
| | OP1 | OPEN PORCH SLAB | 3 | 0 | 1991 | 18.0 |
| | UTY | STORAGE/UTILITY | 3 | 0 | 1991 | 7.5 |
| | OWP | OPEN WOOD PORCH W/STEPS | 3 | 0 | 1991 | 50.0 |
| | COMA | Common Area Improvement | 3 | 0 | 1991 | 0.0 |
Sketch
Property Image
Land
| 1 | 61 | MULTIPLE RESIDENCES | 0.0000 | 2000.00 | 0.00 | 0.00 | 1.00 | $90,000 | $0 |
Roll Value History
| 2026 | N/A | N/A | N/A | N/A | N/A |
| 2025 | $175,377 | $90,000 | $0 | $265,377 | $265,377 |
| 2024 | $177,693 | $90,000 | $0 | $267,693 | $267,693 |
| 2023 | $180,009 | $90,000 | $0 | $270,009 | $270,009 |
| 2022 | $165,202 | $100,000 | $0 | $265,202 | $265,202 |
| 2021 | $145,620 | $70,000 | $0 | $215,620 | $215,620 |
| 2020 | $143,499 | $65,000 | $0 | $208,499 | $208,499 |
| 2019 | $101,359 | $85,000 | $0 | $186,359 | $186,359 |
| 2018 | $101,669 | $65,000 | $0 | $166,669 | $166,669 |
| 2017 | $103,901 | $15,000 | $0 | $118,901 | $118,901 |
| 2016 | $105,319 | $15,000 | $0 | $120,319 | $51,919 |
| 2015 | $72,364 | $15,000 | $0 | $87,364 | $27,364 |
| 2014 | $91,655 | $27,640 | $0 | $119,295 | $69,295 |
| 2013 | $92,856 | $27,640 | $0 | $120,496 | $70,298 |
| 2012 | $92,646 | $27,640 | $0 | $120,286 | $120,286 |
| 2011 | $92,646 | $27,640 | $0 | $120,286 | $51,450 |
| 2010 | $93,703 | $27,640 | $0 | $121,343 | $48,537 |
| 2009 | $97,709 | $48,000 | $0 | $145,709 | $145,709 |
| 2008 | $101,960 | $60,000 | $0 | $161,960 | $161,960 |
| 2007 | $103,146 | $60,000 | $0 | $163,146 | $163,146 |
Deed and Sales History
| 1 | 08/03/2021 | WD | Warranty Deed | HUCKABY, TONYA DALE | HARTO, JOSHUA | | | $245,000.00 | 49528 | 4526259 |
| 2 | 10/08/2019 | WD | Warranty Deed | HUSKEY, SHANE D | HUCKABY, TONYA DALE | | | $200,000.00 | 40625 | 4473076 |
| 3 | 07/24/2017 | WD | Warranty Deed | RHOADES, DONNA | HUSKEY, SHANE D | | | $176,500.00 | 30413 | 4427221 |
| 4 | 11/29/2010 | BARGSLD | Bargain And Sale Deed | FEDERAL NATIONAL MORTGAGE ASSOCIATION | RHOADES, DONNA | | | $0.00 | 2982 | 4285928 |
| 5 | 07/28/2009 | TRUSTEED | Trustee's Deed | SIMPSON, LAURA E | FEDERAL NATIONAL MORTGAGE ASSO | | | $151,884.00 | 91778 | 4257716 |
| 6 | 04/26/2004 | ESTSEPPROP | Establish Separate Property | SIMPSON, LAURA E | SIMPSON, LAURA E | | | $0.00 | 41700 | 4098604 |
| 7 | 04/23/2004 | WD | Warranty Deed | MISKEL, EPIFANIA L | SIMPSON, LAURA E | | | $92,500.00 | 41701 | 4098605 |
| 8 | 04/01/1994 | WD | Warranty Deed | MORGAN, WILLIAM P | MISKEL, EPIFANIA L | | | $75,900.00 | 41560 | 94009502 |
| 9 | 04/01/1991 | WD | Warranty Deed | ISLAND, CONST & | MORGAN, WILLIAM P | | | $63,750.00 | 11114 | 91004720 |
| 10 | 01/01/1900 | OTHER | Other - Misc. Documents | Unknown | ISLAND, CONST & | | | $0.00 | 1133 | 90003700 |
Payout Agreement
| No payout information available.. |