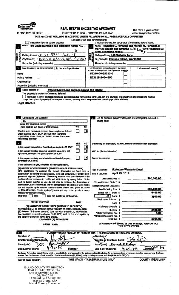
Property
Account |
| Property ID: | 651075 | Abbreviated Legal Description: | PARK PLACE CONDOS UNIT I-1 1/44 INT |
| Geographic ID: | S7665-09-000I1-0 | Agent Code: | |
| Type: | Real | | |
| Tax Area: | 100 - APPRAISER-OH Schl Dist, in OH | Land Use Code | 14 |
| Open Space: | N | DFL | N |
| Historic Property: | N | Remodel Property: | N |
| Multi-Family Redevelopment: | N | | |
| Township: | | Section: | |
| Range: | |
Location |
| Address: | 447 NE ELLIS WAY BLDG B, UNIT 101 OAK HARBOR, WA 98277 | Mapsco: | |
| Neighborhood: | 4B*OH-park place | Map ID: | 256 |
| Neighborhood CD: | 4B*OHpkpla |
Owner |
| Name: | NUTTERS GREAT ADVENTURES, LLC | Owner ID: | 284150 |
| Mailing Address: | C/O NORMAN E NUTTER 1004 COMMERCIAL AVE PMB 508 ANACORTES, WA 98221 | % Ownership: | 100.0000000000% |
| | | Exemptions: | |
Taxes and Assessment Details
Values
| (+) Improvement Homesite Value: | + | $0 | |
| (+) Improvement Non-Homesite Value: | + | $147,727 | |
| (+) Land Homesite Value: | + | $0 | |
| (+) Land Non-Homesite Value: | + | $90,000 | |
| (+) Curr Use (HS): | + | $0 | $0 |
| (+) Curr Use (NHS): | + | $0 | $0 |
| | | -------------------------- | |
| (=) Market Value: | = | $237,727 | |
| (–) Productivity Loss: | – | $0 | |
| | | -------------------------- | |
| (=) Subtotal: | = | $237,727 | |
| (+) Senior Appraised Value: | + | $0 | |
| (+) Non-Senior Appraised Value: | + | $237,727 | |
| | | -------------------------- | |
| (=) Total Appraised Value: | = | $237,727 | |
| (–) Senior Exemption Loss: | – | $0 | |
| (–) Exemption Loss: | – | $0 | |
| | | -------------------------- | |
| (=) Taxable Value: | = | $237,727 | |
Taxing Jurisdiction
| Owner: | NUTTERS GREAT ADVENTURES, LLC | | |
| % Ownership: | 100.0000000000% | | |
| Total Value: | $237,727 | | |
| Tax Area: | 100 - APPRAISER-OH Schl Dist, in OH |
| CF | Conservation Futures | 0.0316035091 | $237,727 | $237,727 | $7.51 | | |
| CEM1 | Cemetery #1 | 0.0040320932 | $237,727 | $237,727 | $0.96 | | |
| COH | City of Oak Harbor | 2.3001546061 | $237,727 | $237,727 | $546.81 | | |
| OAKBOND | City of Oak Harbor BOND | 0.1926904192 | $237,727 | $237,727 | $45.81 | | |
| HOBOND | Hospital BOND | 0.1910887512 | $237,727 | $237,727 | $45.43 | | |
| HOGEN | Hospital GEN | 0.3902502903 | $237,727 | $237,727 | $92.77 | | |
| CE | County Current Expense | 0.3708482477 | $237,727 | $237,727 | $88.16 | | |
| ISLANDEMS | Hospital GEN (EMS) | 0.5000000000 | $237,727 | $237,727 | $118.86 | | |
| LIB | Library Sno-Isle GEN | 0.3153421757 | $237,727 | $237,727 | $74.97 | | |
| NWHIDPRMT | P & R N Whidbey GEN | 0.2004466701 | $237,727 | $237,727 | $47.65 | | |
| SCH201MO | School 201 Enrichment | 1.8559231640 | $237,727 | $237,727 | $441.20 | | |
| ST | State School | 1.3035497053 | $237,727 | $237,727 | $309.89 | | |
| ST2 | State School Part 2 | 0.8169543533 | $237,727 | $237,727 | $194.21 | | |
| | Total Tax Rate: | 8.4728839852 | | | | | |
| | | | | Taxes w/Current Exemptions: | $2,014.23 | | |
| | | | | Taxes w/o Exemptions: | $2,014.23 | | |
Improvement / Building
| Improvement #1: | RESIDENTIAL | State Code: | A1 | 875.6 sqft | Value: | $147,727 |
| Bathrooms: | 2 | Bedrooms: | 2 | | Ceiling: | DRYWALL PAINTED | Exterior Wall/Cover: | PLY/HARDBOARD T-111 | | Floor Covering: | CARPET/VINYL 80-20 | Floor Structure: | WOOD W/SUBFLOOR | | Foundation: | CONCRETE | Heating: | WALL HEAT ELECTRIC | | Interior Finish: | DRYWALL PAINT | Plumbing Fixture Cnt: | 9 | | Roof Slope: | 4" IN 12" | Roof Structure/Cover: | CJ ASPHALT |
|
| | Type | Description | Class CD | Sub Class CD | Year Built | Area |
| | BAS | BASE/MAIN FLOOR | 3 | 0 | 1991 | 875.6 |
| | OP1 | OPEN PORCH SLAB | 3 | 0 | 1991 | 36.0 |
| | UTY | STORAGE/UTILITY | 3 | 0 | 1991 | 6.0 |
| | OWP | OPEN WOOD PORCH W/STEPS | 3 | 0 | 1991 | 59.4 |
| | COMA | Common Area Improvement | 3 | 0 | 1991 | 0.0 |
Sketch
Property Image
Land
| 1 | 61 | MULTIPLE RESIDENCES | 0.0000 | 2000.00 | 0.00 | 0.00 | 1.00 | $90,000 | $0 |
Roll Value History
| 2026 | N/A | N/A | N/A | N/A | N/A |
| 2025 | $147,727 | $90,000 | $0 | $237,727 | $237,727 |
| 2024 | $149,676 | $90,000 | $0 | $239,676 | $239,676 |
| 2023 | $151,624 | $90,000 | $0 | $241,624 | $241,624 |
| 2022 | $139,169 | $100,000 | $0 | $239,169 | $239,169 |
| 2021 | $122,690 | $70,000 | $0 | $192,690 | $192,690 |
| 2020 | $113,343 | $65,000 | $0 | $178,343 | $178,343 |
| 2019 | $78,529 | $85,000 | $0 | $163,529 | $163,529 |
| 2018 | $78,799 | $65,000 | $0 | $143,799 | $143,799 |
| 2017 | $93,621 | $15,000 | $0 | $108,621 | $108,621 |
| 2016 | $94,898 | $15,000 | $0 | $109,898 | $109,898 |
| 2015 | $65,202 | $15,000 | $0 | $80,202 | $80,202 |
| 2014 | $82,585 | $27,640 | $0 | $110,225 | $110,225 |
| 2013 | $83,667 | $27,640 | $0 | $111,307 | $111,307 |
| 2012 | $85,829 | $27,640 | $0 | $113,469 | $113,469 |
| 2011 | $85,829 | $27,640 | $0 | $113,469 | $113,469 |
| 2010 | $86,073 | $27,640 | $0 | $113,713 | $113,713 |
| 2009 | $89,752 | $48,000 | $0 | $137,752 | $137,752 |
| 2008 | $88,621 | $60,000 | $0 | $148,621 | $148,621 |
| 2007 | $89,651 | $60,000 | $0 | $149,651 | $149,651 |
Deed and Sales History
| 1 | 03/02/2018 | WD | Warranty Deed | DEININGER, JULIE M | NUTTERS GREAT ADVENTURES, LLC | | | $530,000.00 | 33195 | 4440350 |
|   | |
| 2 | 05/08/2003 | DECREE | Divorce Decree/Legal Separation | DEININGER, DANIEL E | DEININGER, JULIE M | | | $0.00 | 32469 | 4062560 |
| 3 | 10/01/1993 | WD | Warranty Deed | JOMAA, ABDUL R | DEININGER, DANIEL E | | | $65,000.00 | 33963 | 93020645 |
| 4 | 02/01/1991 | WD | Warranty Deed | ISLAND, CONST & | JOMAA, ABDUL R | | | $58,750.00 | 10547 | 91002516 |
| 5 | 01/01/1900 | OTHER | Other - Misc. Documents | Unknown | ISLAND, CONST & | | | $0.00 | 1133 | 90003700 |
Payout Agreement
| No payout information available.. |