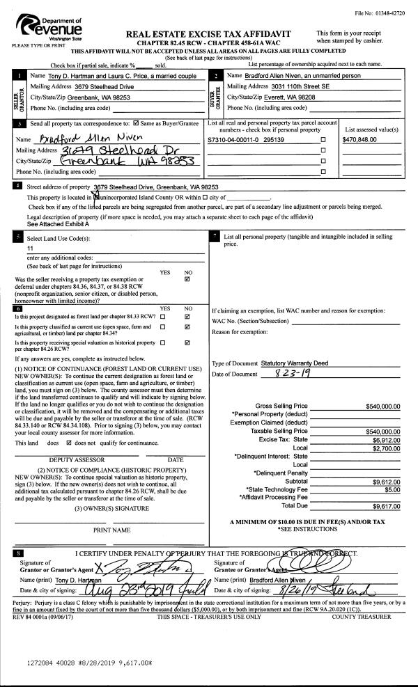
Property
Account |
| Property ID: | 651360 | Abbreviated Legal Description: | OLYMPIC HTS LOT 7 |
| Geographic ID: | S7603-00-00007-0 | Agent Code: | |
| Type: | Real | | |
| Tax Area: | 710 - APPRAISER-S Whid Schl Dist, outside Langley, improved & 1 acre or less | Land Use Code | 11 |
| Open Space: | N | DFL | N |
| Historic Property: | N | Remodel Property: | N |
| Multi-Family Redevelopment: | N | | |
| Township: | | Section: | |
| Range: | |
Location |
| Address: | 1494 OLYMPIC HEIGHTS LN FREELAND, WA 98249 | Mapsco: | |
| Neighborhood: | Cycle 3 | Map ID: | 330 |
| Neighborhood CD: | 3 |
Owner |
| Name: | TWETER, DAVID A | Owner ID: | 290679 |
| Mailing Address: | LISA M TWETER 1494 OLYMPIC HEIGHTS LN FREELAND, WA 98249 | % Ownership: | 100.0000000000% |
| | | Exemptions: | |
Taxes and Assessment Details
Values
| (+) Improvement Homesite Value: | + | $0 | |
| (+) Improvement Non-Homesite Value: | + | $432,503 | |
| (+) Land Homesite Value: | + | $0 | |
| (+) Land Non-Homesite Value: | + | $320,000 | |
| (+) Curr Use (HS): | + | $0 | $0 |
| (+) Curr Use (NHS): | + | $0 | $0 |
| | | -------------------------- | |
| (=) Market Value: | = | $752,503 | |
| (–) Productivity Loss: | – | $0 | |
| | | -------------------------- | |
| (=) Subtotal: | = | $752,503 | |
| (+) Senior Appraised Value: | + | $0 | |
| (+) Non-Senior Appraised Value: | + | $752,503 | |
| | | -------------------------- | |
| (=) Total Appraised Value: | = | $752,503 | |
| (–) Senior Exemption Loss: | – | $0 | |
| (–) Exemption Loss: | – | $0 | |
| | | -------------------------- | |
| (=) Taxable Value: | = | $752,503 | |
Taxing Jurisdiction
| Owner: | TWETER, DAVID A | | |
| % Ownership: | 100.0000000000% | | |
| Total Value: | $752,503 | | |
| Tax Area: | 710 - APPRAISER-S Whid Schl Dist, outside Langley, improved & 1 acre or less |
| CF | Conservation Futures | 0.0316035091 | $752,503 | $752,503 | $23.78 | | |
| FIRE3 | Fire & Rescue Dist #3 S Whidbey GEN | 1.2004855531 | $752,503 | $752,503 | $903.37 | | |
| HOBOND | Hospital BOND | 0.1910887512 | $752,503 | $752,503 | $143.79 | | |
| HOGEN | Hospital GEN | 0.3902502903 | $752,503 | $752,503 | $293.66 | | |
| CE | County Current Expense | 0.3708482477 | $752,503 | $752,503 | $279.06 | | |
| CR | County Roads | 0.4584763726 | $752,503 | $752,503 | $345.00 | | |
| ISLANDEMS | Hospital GEN (EMS) | 0.5000000000 | $752,503 | $752,503 | $376.25 | | |
| LIB | Library Sno-Isle GEN | 0.3153421757 | $752,503 | $752,503 | $237.30 | | |
| PORTWHID | Port of S Whidbey GEN | 0.1094540357 | $752,503 | $752,503 | $82.36 | | |
| SCH206BOND | School 206 BOND | 0.3161759235 | $752,503 | $752,503 | $237.92 | | |
| SCH206MO | School 206 Enrichment | 0.4547169547 | $752,503 | $752,503 | $342.18 | | |
| ST | State School | 1.3035497053 | $752,503 | $752,503 | $980.93 | | |
| ST2 | State School Part 2 | 0.8169543533 | $752,503 | $752,503 | $614.76 | | |
| SWHIDPRBD | P & R S Whidbey BOND | 0.0152817568 | $752,503 | $752,503 | $11.50 | | |
| SWHIDPRBD2 | P & R S Whidbey BOND2 | 0.0138911264 | $752,503 | $752,503 | $10.45 | | |
| SWHIDPRMT | P & R S Whidbey GEN | 0.2053334452 | $752,503 | $752,503 | $154.51 | | |
| | Total Tax Rate: | 6.6934522006 | | | | | |
| | | | | Taxes w/Current Exemptions: | $5,036.82 | | |
| | | | | Taxes w/o Exemptions: | $5,036.82 | | |
Improvement / Building
| Improvement #1: | RESIDENTIAL | State Code: | Y | 2402.2 sqft | Value: | $432,503 |
| Bathrooms: | 2.5 | Bedrooms: | 3 | | Ceiling: | DRYWALL PAINTED | Cooling: | HEAT PUMP/CONV/V | | Exterior Wall/Cover: | WOOD SIDING | Floor Covering: | HARDWOOD/CARP 20-80 | | Floor Structure: | WOOD W/SUBFLOOR | Foundation: | CONCRETE | | Interior Finish: | DRYWALL PAINT | Plumbing Fixture Cnt: | 12 | | Roof Slope: | 8" IN 12" | Roof Structure/Cover: | CJ CONCRETE TILE |
|
| | Type | Description | Class CD | Sub Class CD | Year Built | Area |
| | BAS | BASE/MAIN FLOOR | 4 | 0 | 1991 | 2402.2 |
| | OP1 | OPEN PORCH SLAB | 4 | 0 | 1991 | 18.0 |
| | AGR | ATTACHED GARAGE | 4 | 0 | 1991 | 520.0 |
| | OWP | OPEN WOOD PORCH W/STEPS | 4 | 0 | 1991 | 1113.7 |
| | OWC | OPEN WOOD PORCH W/STEPS/ROOF/C | 4 | 0 | 1991 | 28.0 |
Sketch
Property Image
Land
| 1 | 15 | SQ (12001-21780) | 0.0000 | 0.00 | 0.00 | 0.00 | 1.00 | $320,000 | $0 |
Roll Value History
| 2026 | N/A | N/A | N/A | N/A | N/A |
| 2025 | $432,503 | $320,000 | $0 | $752,503 | $752,503 |
| 2024 | $438,328 | $300,000 | $0 | $738,328 | $738,328 |
| 2023 | $444,153 | $300,000 | $0 | $744,153 | $744,153 |
| 2022 | $407,465 | $290,000 | $0 | $697,465 | $697,465 |
| 2021 | $346,295 | $190,000 | $0 | $536,295 | $536,295 |
| 2020 | $338,072 | $160,000 | $0 | $498,072 | $498,072 |
| 2019 | $235,042 | $190,000 | $0 | $425,042 | $425,042 |
| 2018 | $235,833 | $160,000 | $0 | $395,833 | $395,833 |
| 2017 | $236,934 | $125,000 | $0 | $361,934 | $361,934 |
| 2016 | $240,093 | $125,000 | $0 | $365,093 | $365,093 |
| 2015 | $243,253 | $125,000 | $0 | $368,253 | $368,253 |
| 2014 | $246,413 | $125,000 | $0 | $371,413 | $371,413 |
| 2013 | $242,028 | $125,000 | $0 | $367,028 | $367,028 |
| 2012 | $245,137 | $140,250 | $0 | $385,387 | $385,387 |
| 2011 | $248,246 | $165,000 | $0 | $413,246 | $413,246 |
| 2010 | $262,171 | $165,000 | $0 | $427,171 | $427,171 |
| 2009 | $273,703 | $203,000 | $0 | $476,703 | $476,703 |
| 2008 | $277,449 | $223,000 | $0 | $500,449 | $500,449 |
| 2007 | $280,765 | $154,500 | $0 | $435,265 | $435,265 |
Deed and Sales History
| 1 | 06/27/2019 | WD | Warranty Deed | GORDON, CHERYL M | TWETER, DAVID A | | | $653,000.00 | 39247 | 4466528 |
| 2 | 05/14/2003 | QCD | Quit Claim Deed | GORDON, CHERYL M | GORDON, CHERYL M | | | $0.00 | 32976 | 4066267 |
| 3 | 05/14/2003 | 5 | DNU - Marriage License/Name Change | THOMPSON, CHERYL M | GORDON, CHERYL M | | | $0.00 | 32079 | 4059415 |
| 4 | 03/01/1996 | WD | Warranty Deed | ELLIOT, ROBERT S | THOMPSON, CHERYL M | | | $262,900.00 | 60806 | 96004258 |
| 5 | 09/01/1991 | WD | Warranty Deed | TARA, CONSTRUCTION I | ELLIOT, ROBERT S | | | $239,000.00 | 13809 | 91016253 |
| 6 | 01/01/1900 | OTHER | Other - Misc. Documents | Unknown | TARA, CONSTRUCTION I | | | $0.00 | 5430 | 90018151 |
Payout Agreement
| No payout information available.. |