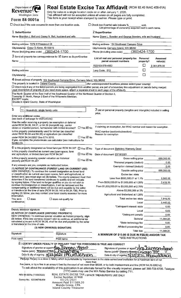
Property
Account |
| Property ID: | 651468 | Abbreviated Legal Description: | WILKINSON TRACE - PRD LOT 1 |
| Geographic ID: | S8463-00-00001-0 | Agent Code: | |
| Type: | Real | | |
| Tax Area: | 710 - APPRAISER-S Whid Schl Dist, outside Langley, improved & 1 acre or less | Land Use Code | 11 |
| Open Space: | N | DFL | N |
| Historic Property: | N | Remodel Property: | N |
| Multi-Family Redevelopment: | N | | |
| Township: | | Section: | |
| Range: | |
Location |
| Address: | 4336 MEANDER LN LANGLEY, WA 98260 | Mapsco: | |
| Neighborhood: | Cycle 4 | Map ID: | 761 |
| Neighborhood CD: | 4 |
Owner |
| Name: | JENA, KRISTI EVE | Owner ID: | 297423 |
| Mailing Address: | DOUGLAS KURT JENA 4336 MEANDER LN LANGLEY, WA 98260 | % Ownership: | 100.0000000000% |
| | | Exemptions: | |
Taxes and Assessment Details
Values
| (+) Improvement Homesite Value: | + | $0 | |
| (+) Improvement Non-Homesite Value: | + | $533,093 | |
| (+) Land Homesite Value: | + | $0 | |
| (+) Land Non-Homesite Value: | + | $280,000 | |
| (+) Curr Use (HS): | + | $0 | $0 |
| (+) Curr Use (NHS): | + | $0 | $0 |
| | | -------------------------- | |
| (=) Market Value: | = | $813,093 | |
| (–) Productivity Loss: | – | $0 | |
| | | -------------------------- | |
| (=) Subtotal: | = | $813,093 | |
| (+) Senior Appraised Value: | + | $0 | |
| (+) Non-Senior Appraised Value: | + | $813,093 | |
| | | -------------------------- | |
| (=) Total Appraised Value: | = | $813,093 | |
| (–) Senior Exemption Loss: | – | $0 | |
| (–) Exemption Loss: | – | $0 | |
| | | -------------------------- | |
| (=) Taxable Value: | = | $813,093 | |
Taxing Jurisdiction
| Owner: | JENA, KRISTI EVE | | |
| % Ownership: | 100.0000000000% | | |
| Total Value: | $813,093 | | |
| Tax Area: | 710 - APPRAISER-S Whid Schl Dist, outside Langley, improved & 1 acre or less |
| CF | Conservation Futures | 0.0316035091 | $813,093 | $813,093 | $25.70 | | |
| FIRE3 | Fire & Rescue Dist #3 S Whidbey GEN | 1.2004855531 | $813,093 | $813,093 | $976.11 | | |
| HOBOND | Hospital BOND | 0.1910887512 | $813,093 | $813,093 | $155.37 | | |
| HOGEN | Hospital GEN | 0.3902502903 | $813,093 | $813,093 | $317.31 | | |
| CE | County Current Expense | 0.3708482477 | $813,093 | $813,093 | $301.53 | | |
| CR | County Roads | 0.4584763726 | $813,093 | $813,093 | $372.78 | | |
| ISLANDEMS | Hospital GEN (EMS) | 0.5000000000 | $813,093 | $813,093 | $406.55 | | |
| LIB | Library Sno-Isle GEN | 0.3153421757 | $813,093 | $813,093 | $256.40 | | |
| PORTWHID | Port of S Whidbey GEN | 0.1094540357 | $813,093 | $813,093 | $89.00 | | |
| SCH206BOND | School 206 BOND | 0.3161759235 | $813,093 | $813,093 | $257.08 | | |
| SCH206MO | School 206 Enrichment | 0.4547169547 | $813,093 | $813,093 | $369.73 | | |
| ST | State School | 1.3035497053 | $813,093 | $813,093 | $1,059.91 | | |
| ST2 | State School Part 2 | 0.8169543533 | $813,093 | $813,093 | $664.26 | | |
| SWHIDPRBD | P & R S Whidbey BOND | 0.0152817568 | $813,093 | $813,093 | $12.43 | | |
| SWHIDPRBD2 | P & R S Whidbey BOND2 | 0.0138911264 | $813,093 | $813,093 | $11.29 | | |
| SWHIDPRMT | P & R S Whidbey GEN | 0.2053334452 | $813,093 | $813,093 | $166.96 | | |
| | Total Tax Rate: | 6.6934522006 | | | | | |
| | | | | Taxes w/Current Exemptions: | $5,442.41 | | |
| | | | | Taxes w/o Exemptions: | $5,442.41 | | |
Improvement / Building
| Improvement #1: | RESIDENTIAL | State Code: | Y | 2210.0 sqft | Value: | $533,093 |
| Bathrooms: | 2 | Bedrooms: | 3 | | Ceiling: | DRYWALL PAINTED | Cooling: | HEAT PUMP/CONV/V | | Exterior Wall/Cover: | CEMENT FIBER | Floor Covering: | CARPET/VINYL 60-40 | | Floor Structure: | WOOD W/SUBFLOOR | Foundation: | CONCRETE | | Interior Finish: | DRYWALL PAINT | Plumbing Fixture Cnt: | 12 | | Roof Slope: | 4" IN 12" | Roof Structure/Cover: | CJ ALUMINIUM HEAVY |
|
| | Type | Description | Class CD | Sub Class CD | Year Built | Area |
| | BAS | BASE/MAIN FLOOR | 4 | 0 | 2021 | 2210.0 |
| | AGR | ATTACHED GARAGE | 4 | 0 | 2021 | 636.0 |
| | OWP | OPEN WOOD PORCH W/STEPS | 4 | 0 | 2021 | 98.0 |
| | OWP | OPEN WOOD PORCH W/STEPS | 4 | 0 | 2021 | 350.0 |
Sketch
Property Image
Land
| 1 | 16 | AC (00.51-01.00) | 0.6627 | 28867.21 | 0.00 | 0.00 | 1.00 | $280,000 | $0 |
Roll Value History
| 2026 | N/A | N/A | N/A | N/A | N/A |
| 2025 | $533,093 | $280,000 | $0 | $813,093 | $813,093 |
| 2024 | $538,690 | $270,000 | $0 | $808,690 | $808,690 |
| 2023 | $548,485 | $260,000 | $0 | $808,485 | $808,485 |
| 2022 | $506,796 | $240,000 | $0 | $746,796 | $746,796 |
| 2021 | $0 | $110,000 | $0 | $110,000 | $110,000 |
| 2020 | $0 | $100,000 | $0 | $100,000 | $100,000 |
| 2019 | $0 | $100,000 | $0 | $100,000 | $100,000 |
| 2018 | $0 | $80,000 | $0 | $80,000 | $80,000 |
| 2017 | $0 | $80,000 | $0 | $80,000 | $80,000 |
| 2016 | $0 | $80,000 | $0 | $80,000 | $80,000 |
| 2015 | $0 | $81,000 | $0 | $81,000 | $81,000 |
| 2014 | $0 | $81,000 | $0 | $81,000 | $81,000 |
| 2013 | $0 | $81,000 | $0 | $81,000 | $81,000 |
| 2012 | $0 | $81,000 | $0 | $81,000 | $81,000 |
| 2011 | $0 | $81,000 | $0 | $81,000 | $81,000 |
| 2010 | $0 | $81,000 | $0 | $81,000 | $81,000 |
| 2009 | $0 | $130,000 | $0 | $130,000 | $130,000 |
| 2008 | $0 | $64,000 | $0 | $64,000 | $64,000 |
| 2007 | $0 | $64,000 | $0 | $64,000 | $64,000 |
Deed and Sales History
| 1 | 12/17/2020 | WD | Warranty Deed | WARDLE TRUSTEE, ARLYN | JENA, KRISTI EVE | | | $131,500.00 | 46199 | 4505773 |
| 2 | 04/06/2011 | WD | Warranty Deed | WARDLE, ARLYN L / JOANNE I | WARDLE TRUSTEE, ARLYN | | | $0.00 | 4129 | 4293667 |
| 3 | 01/01/1992 | WD | Warranty Deed | SHAFFER, ROGER | WARDLE, ARLYN L | | | $49,900.00 | 20275 | 92001123 |
| 4 | 01/01/1900 | OTHER | Other - Misc. Documents | Unknown | SHAFFER, ROGER | | | $0.00 | 92394 | 89008203 |
Payout Agreement
| No payout information available.. |