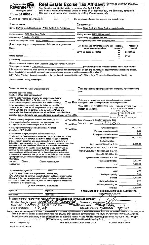
Property
Account |
| Property ID: | 651850 | Abbreviated Legal Description: | KIMBALL HTS #5 LOT 3 |
| Geographic ID: | S7275-05-00003-0 | Agent Code: | |
| Type: | Real | | |
| Tax Area: | 100 - APPRAISER-OH Schl Dist, in OH | Land Use Code | 11 |
| Open Space: | N | DFL | N |
| Historic Property: | N | Remodel Property: | N |
| Multi-Family Redevelopment: | N | | |
| Township: | | Section: | |
| Range: | |
Location |
| Address: | 375 SW MUZZALL ST OAK HARBOR, WA 98277 | Mapsco: | |
| Neighborhood: | Cycle 1 | Map ID: | 92 |
| Neighborhood CD: | 1 |
Owner |
| Name: | WALKER, ZACHARY G | Owner ID: | 288787 |
| Mailing Address: | KELSIE N WALKER 375 SW MUZZALL ST OAK HARBOR, WA 98277 | % Ownership: | 100.0000000000% |
| | | Exemptions: | |
Taxes and Assessment Details
Values
| (+) Improvement Homesite Value: | + | $0 | |
| (+) Improvement Non-Homesite Value: | + | $327,012 | |
| (+) Land Homesite Value: | + | $0 | |
| (+) Land Non-Homesite Value: | + | $190,000 | |
| (+) Curr Use (HS): | + | $0 | $0 |
| (+) Curr Use (NHS): | + | $0 | $0 |
| | | -------------------------- | |
| (=) Market Value: | = | $517,012 | |
| (–) Productivity Loss: | – | $0 | |
| | | -------------------------- | |
| (=) Subtotal: | = | $517,012 | |
| (+) Senior Appraised Value: | + | $0 | |
| (+) Non-Senior Appraised Value: | + | $517,012 | |
| | | -------------------------- | |
| (=) Total Appraised Value: | = | $517,012 | |
| (–) Senior Exemption Loss: | – | $0 | |
| (–) Exemption Loss: | – | $0 | |
| | | -------------------------- | |
| (=) Taxable Value: | = | $517,012 | |
Taxing Jurisdiction
| Owner: | WALKER, ZACHARY G | | |
| % Ownership: | 100.0000000000% | | |
| Total Value: | $517,012 | | |
| Tax Area: | 100 - APPRAISER-OH Schl Dist, in OH |
| CF | Conservation Futures | 0.0316035091 | $517,012 | $517,012 | $16.34 | | |
| CEM1 | Cemetery #1 | 0.0040320932 | $517,012 | $517,012 | $2.08 | | |
| COH | City of Oak Harbor | 2.3001546061 | $517,012 | $517,012 | $1,189.21 | | |
| OAKBOND | City of Oak Harbor BOND | 0.1926904192 | $517,012 | $517,012 | $99.62 | | |
| HOBOND | Hospital BOND | 0.1910887512 | $517,012 | $517,012 | $98.80 | | |
| HOGEN | Hospital GEN | 0.3902502903 | $517,012 | $517,012 | $201.76 | | |
| CE | County Current Expense | 0.3708482477 | $517,012 | $517,012 | $191.73 | | |
| ISLANDEMS | Hospital GEN (EMS) | 0.5000000000 | $517,012 | $517,012 | $258.51 | | |
| LIB | Library Sno-Isle GEN | 0.3153421757 | $517,012 | $517,012 | $163.04 | | |
| NWHIDPRMT | P & R N Whidbey GEN | 0.2004466701 | $517,012 | $517,012 | $103.63 | | |
| SCH201MO | School 201 Enrichment | 1.8559231640 | $517,012 | $517,012 | $959.53 | | |
| ST | State School | 1.3035497053 | $517,012 | $517,012 | $673.95 | | |
| ST2 | State School Part 2 | 0.8169543533 | $517,012 | $517,012 | $422.38 | | |
| | Total Tax Rate: | 8.4728839852 | | | | | |
| | | | | Taxes w/Current Exemptions: | $4,380.58 | | |
| | | | | Taxes w/o Exemptions: | $4,380.58 | | |
Improvement / Building
| Improvement #1: | RESIDENTIAL | State Code: | Y | 1960.0 sqft | Value: | $327,012 |
| Bathrooms: | 2.5 | Bedrooms: | 3 | | Ceiling: | DRYWALL PAINTED | Exterior Wall/Cover: | CEMENT FIBER | | Floor Covering: | HARDWOOD/CARP 20-80 | Floor Structure: | WOOD W/SUBFLOOR | | Foundation: | CONCRETE | Heating: | FHA GAS | | Interior Finish: | DRYWALL PAINT | Plumbing Fixture Cnt: | 12 | | Roof Slope: | 5" IN 12" | Roof Structure/Cover: | CJ ASPHALT |
|
| | Type | Description | Class CD | Sub Class CD | Year Built | Area |
| | BAS | BASE/MAIN FLOOR | 3 | 0 | 1992 | 1124.0 |
| | OP3 | OPEN PORCH W/ROOF | 3 | 0 | 1992 | 24.0 |
| | AGR | ATTACHED GARAGE | 3 | 0 | 1992 | 240.0 |
| | BIG | BUILT IN GARAGE | 3 | 0 | 1992 | 180.0 |
| | UPS | UPPER STORY | 3 | 0 | 1992 | 836.0 |
| | OWP | OPEN WOOD PORCH W/STEPS | 3 | 0 | 1992 | 526.0 |
| | ENP | ENCLOSED PORCH | 3 | 0 | 1992 | 216.0 |
Sketch
Property Image
Land
| 1 | 14 | SQ (08001-12000) | 0.0000 | 0.00 | 0.00 | 0.00 | 1.00 | $190,000 | $0 |
Roll Value History
| 2026 | N/A | N/A | N/A | N/A | N/A |
| 2025 | $327,012 | $190,000 | $0 | $517,012 | $517,012 |
| 2024 | $331,246 | $180,000 | $0 | $511,246 | $511,246 |
| 2023 | $318,546 | $190,000 | $0 | $508,546 | $508,546 |
| 2022 | $292,273 | $180,000 | $0 | $472,273 | $472,273 |
| 2021 | $257,493 | $120,000 | $0 | $377,493 | $377,493 |
| 2020 | $251,087 | $100,000 | $0 | $351,087 | $351,087 |
| 2019 | $189,518 | $150,000 | $0 | $339,518 | $339,518 |
| 2018 | $190,116 | $130,000 | $0 | $320,116 | $320,116 |
| 2017 | $186,179 | $110,000 | $0 | $296,179 | $296,179 |
| 2016 | $188,507 | $90,000 | $0 | $278,507 | $278,507 |
| 2015 | $190,835 | $70,000 | $0 | $260,835 | $260,835 |
| 2014 | $193,162 | $55,000 | $0 | $248,162 | $248,162 |
| 2013 | $195,489 | $55,000 | $0 | $250,489 | $250,489 |
| 2012 | $197,817 | $60,000 | $0 | $257,817 | $257,817 |
| 2011 | $203,030 | $50,000 | $0 | $253,030 | $253,030 |
| 2010 | $214,181 | $50,000 | $0 | $264,181 | $264,181 |
| 2009 | $223,171 | $60,000 | $0 | $283,171 | $283,171 |
| 2008 | $225,680 | $68,000 | $0 | $293,680 | $293,680 |
| 2007 | $228,280 | $68,000 | $0 | $296,280 | $296,280 |
Deed and Sales History
| 1 | 02/01/2019 | BARGSLD | Bargain And Sale Deed | BRECKENRIDGE PROPERTY FUND 2016, LLC | WALKER, ZACHARY G | | | $350,000.00 | 37600 | 4459342 |
| 2 | 05/01/2018 | TRUSTEED | Trustee's Deed | BROWN, HARLEY J | BRECKENRIDGE PROPERTY FUND 2016, LLC | | | $0.00 | 33939 | 4443673 |
| 3 | 02/09/2010 | WD | Warranty Deed | HARRISON, CHRISTOPHER M | BROWN, HARLEY J | | | $289,900.00 | 296 | 4268572 |
| 4 | 04/01/2005 | WD | Warranty Deed | SHELTON, JOHANNA H | HARRISON, CHRISTOPHER M | | | $282,000.00 | 51487 | 4130851 |
| 5 | 08/01/1997 | WD | Warranty Deed | SHELTON, JOHANNA H | SHELTON, JOHANNA H | | | $50,000.00 | 72779 | 97013272 |
| 6 | 01/01/1993 | WD | Warranty Deed | ISLAND, PACIFIC C | SHELTON, JOHANNA H | | | $165,900.00 | 30060 | 93000320 |
| 7 | 10/01/1990 | WD | Warranty Deed | K, - H | ISLAND, PACIFIC C | | | $35,930.00 | 6087 | 90020712 |
| 8 | 01/01/1900 | OTHER | Other - Misc. Documents | Unknown | K, - H | | | $0.00 | 93494 | 89011730 |
Payout Agreement
| No payout information available.. |