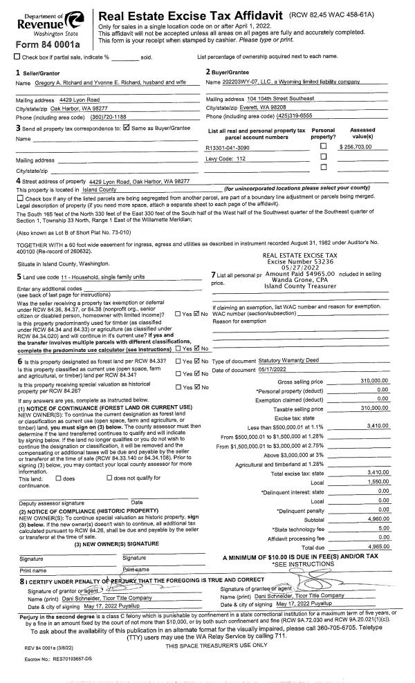
Property
Account |
| Property ID: | 652403 | Abbreviated Legal Description: | PT FOLL DESC LY W OF CAMANO HILL RD: BG SECR SEC 1 N1425.30' TPB N244' W973.51' S9*E247.69' E933.70' TPB EX RD R/W TGW EZ (PT TR 38 V5 SUR P9 AF#362770) EX PT TO IS CO AF#4150656 |
| Geographic ID: | R23101-155-4900 | Agent Code: | |
| Type: | Real | | |
| Tax Area: | 512 - APPRAISER-Stan/Cam Schl Dist, improved, greater than 1 acre | Land Use Code | 11 |
| Open Space: | N | DFL | N |
| Historic Property: | N | Remodel Property: | N |
| Multi-Family Redevelopment: | N | | |
| Township: | 31 | Section: | 01 |
| Range: | R2 |
Location |
| Address: | 287 ROCKY MOUNTAIN HIGH RD CAMANO ISLAND, WA 98282 | Mapsco: | |
| Neighborhood: | Cycle 5 | Map ID: | 450 |
| Neighborhood CD: | 5 |
Owner |
| Name: | SLOAN, SHELDON | Owner ID: | 268152 |
| Mailing Address: | MARILOU E FINBERG-SLOAN 287 ROCKY MOUNTAIN HIGH RD CAMANO ISLAND, WA 98282 | % Ownership: | 100.0000000000% |
| | | Exemptions: | |
Taxes and Assessment Details
Values
| (+) Improvement Homesite Value: | + | $0 | |
| (+) Improvement Non-Homesite Value: | + | $410,249 | |
| (+) Land Homesite Value: | + | $0 | |
| (+) Land Non-Homesite Value: | + | $410,000 | |
| (+) Curr Use (HS): | + | $0 | $0 |
| (+) Curr Use (NHS): | + | $0 | $0 |
| | | -------------------------- | |
| (=) Market Value: | = | $820,249 | |
| (–) Productivity Loss: | – | $0 | |
| | | -------------------------- | |
| (=) Subtotal: | = | $820,249 | |
| (+) Senior Appraised Value: | + | $0 | |
| (+) Non-Senior Appraised Value: | + | $820,249 | |
| | | -------------------------- | |
| (=) Total Appraised Value: | = | $820,249 | |
| (–) Senior Exemption Loss: | – | $0 | |
| (–) Exemption Loss: | – | $0 | |
| | | -------------------------- | |
| (=) Taxable Value: | = | $820,249 | |
Taxing Jurisdiction
| Owner: | SLOAN, SHELDON | | |
| % Ownership: | 100.0000000000% | | |
| Total Value: | $820,249 | | |
| Tax Area: | 512 - APPRAISER-Stan/Cam Schl Dist, improved, greater than 1 acre |
| CF | Conservation Futures | 0.0316035091 | $820,249 | $820,249 | $25.92 | | |
| EMS1 | Fire & Rescue Dist #1 Camano GEN (EMS) | 0.3677864386 | $820,249 | $820,249 | $301.68 | | |
| FIRE1 | Fire & Rescue Dist #1 Camano GEN | 1.2502910536 | $820,249 | $820,249 | $1,025.55 | | |
| FIRE1BOND | Fire & Rescue Dist #1 Camano BOND | 0.1570001679 | $820,249 | $820,249 | $128.78 | | |
| CE | County Current Expense | 0.3708482477 | $820,249 | $820,249 | $304.19 | | |
| CR | County Roads | 0.4584763726 | $820,249 | $820,249 | $376.06 | | |
| LCIB | Library Sno-Isle BOND (Camano Island) | 0.0396325772 | $820,249 | $820,249 | $32.51 | | |
| LIB | Library Sno-Isle GEN | 0.3153421757 | $820,249 | $820,249 | $258.66 | | |
| SCH205_401 | School 205-401 Enrichment | 1.2698420524 | $820,249 | $820,249 | $1,041.59 | | |
| SCH205BOND | School 205-401 BOND | 0.9396497583 | $820,249 | $820,249 | $770.75 | | |
| ST | State School | 1.3035497053 | $820,249 | $820,249 | $1,069.24 | | |
| ST2 | State School Part 2 | 0.8169543533 | $820,249 | $820,249 | $670.11 | | |
| | Total Tax Rate: | 7.3209764117 | | | | | |
| | | | | Taxes w/Current Exemptions: | $6,005.04 | | |
| | | | | Taxes w/o Exemptions: | $6,005.04 | | |
Improvement / Building
| Improvement #1: | RESIDENTIAL | State Code: | Y | 1886.7 sqft | Value: | $410,249 |
| Bathrooms: | 2 | Bedrooms: | 2 | | Ceiling: | DRYWALL PAINTED | Cooling: | HEAT PUMP/CONV/V | | Exterior Wall/Cover: | CEMENT FIBER | Floor Covering: | CARPET/VINYL 80-20 | | Floor Structure: | WOOD W/SUBFLOOR | Foundation: | CONCRETE | | Interior Finish: | DRYWALL PAINT | Plumbing Fixture Cnt: | 10 | | Roof Slope: | 4" IN 12" | Roof Structure/Cover: | CJ ASPHALT |
|
| | Type | Description | Class CD | Sub Class CD | Year Built | Area |
| | BAS | BASE/MAIN FLOOR | 4 | 0 | 1991 | 1886.7 |
| | AGR | ATTACHED GARAGE | 4 | 0 | 1991 | 602.6 |
| | OWP | OPEN WOOD PORCH W/STEPS | 4 | 0 | 1991 | 660.3 |
| | OWP | OPEN WOOD PORCH W/STEPS | 4 | 0 | 1991 | 68.0 |
| | OWC | OPEN WOOD PORCH W/STEPS/ROOF/C | 4 | 0 | 1991 | 44.4 |
| | ENP | ENCLOSED PORCH | 4 | 0 | 1991 | 157.4 |
| | oPOL | POLE BARN | 4 | 0 | 1991 | 0.0 |
Sketch
Property Image
Land
| 1 | 32 | AC (03.01-09.99) | 3.9900 | 0.00 | 0.00 | 0.00 | 1.00 | $410,000 | $0 |
Roll Value History
| 2026 | N/A | N/A | N/A | N/A | N/A |
| 2025 | $410,249 | $410,000 | $0 | $820,249 | $820,249 |
| 2024 | $415,100 | $390,000 | $0 | $805,100 | $805,100 |
| 2023 | $419,949 | $380,000 | $0 | $799,949 | $799,949 |
| 2022 | $386,183 | $350,000 | $0 | $736,183 | $736,183 |
| 2021 | $326,474 | $210,000 | $0 | $536,474 | $536,474 |
| 2020 | $318,699 | $200,000 | $0 | $518,699 | $518,699 |
| 2019 | $239,907 | $250,000 | $0 | $489,907 | $489,907 |
| 2018 | $240,578 | $220,000 | $0 | $460,578 | $460,578 |
| 2017 | $241,804 | $170,000 | $0 | $411,804 | $411,804 |
| 2016 | $244,490 | $150,000 | $0 | $394,490 | $394,490 |
| 2015 | $224,670 | $159,600 | $0 | $384,270 | $384,270 |
| 2014 | $197,391 | $159,600 | $0 | $356,991 | $356,991 |
| 2013 | $199,722 | $119,700 | $0 | $319,422 | $319,422 |
| 2012 | $202,053 | $159,600 | $0 | $361,653 | $361,653 |
| 2011 | $204,383 | $199,500 | $0 | $403,883 | $403,883 |
| 2010 | $207,273 | $199,500 | $0 | $406,773 | $406,773 |
| 2009 | $221,343 | $239,400 | $0 | $460,743 | $460,743 |
| 2008 | $223,149 | $313,215 | $0 | $536,364 | $536,364 |
| 2007 | $265,534 | $162,747 | $0 | $428,281 | $428,281 |
Deed and Sales History
| 1 | 10/08/2014 | WD | Warranty Deed | HERZOG TRUSTEE, ESTHER M | SLOAN, SHELDON | | | $395,000.00 | 17293 | 4367411 |
| 2 | 03/14/2013 | QCD | Quit Claim Deed | HERZOG, ESTHER M | HERZOG TRUSTEE, ESTHER M | | | $0.00 | 10830 | 4336550 |
| 3 | 06/15/2007 | QCD | Quit Claim Deed | HERZOG TRUSTEES, ESTHER M | HERZOG, ESTHER M | | | $0.00 | 72009 | 4204885 |
| 4 | 09/29/2005 | QCD | Quit Claim Deed | HERZOG, ESTHER M | HERZOG TRUSTEES, ESTHER M | | | $2,442.00 | 55185 | 4150656 |
| 5 | 01/01/1991 | OTHER | Other - Misc. Documents | HERZOG, ESTHER M | HERZOG, ESTHER M | | | $0.00 | 64046 | 0 |
| 6 | 05/01/1990 | QCD | Quit Claim Deed | Unknown | HERZOG, ESTHER M | | | $0.00 | 4251 | 90013992 |
Payout Agreement
| No payout information available.. |