Property
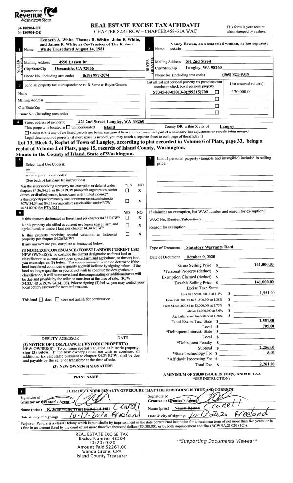
Account |
| Property ID: | 653652 | Abbreviated Legal Description: | REPLACES 310-0050 IN SW NW: BG PT WLN SEC 14 755'S OF NWCR SW NW E150' S166'M/L WLY TO WLN N151' M/L TPB EX CO RDS FR PT 323-0130 & 314-0060 |
| Geographic ID: | R23114-310-0080 | Agent Code: | |
| Type: | Real | | |
| Tax Area: | 510 - APPRAISER-Stan/Cam Schl Dist, improved & 1 acre or less | Land Use Code | 11 |
| Open Space: | N | DFL | N |
| Historic Property: | N | Remodel Property: | N |
| Multi-Family Redevelopment: | N | | |
| Township: | 31 | Section: | 14 |
| Range: | R2 |
Location |
| Address: | 957 S WEST CAMANO DR CAMANO ISLAND, WA 98282 | Mapsco: | |
| Neighborhood: | Cycle 5 | Map ID: | 483 |
| Neighborhood CD: | 5 |
Owner |
| Name: | DEWITT, STACY | Owner ID: | 317518 |
| Mailing Address: | 957 SW CAMANO DR CAMANO ISLAND, WA 98282 | % Ownership: | 100.0000000000% |
| | | Exemptions: | |
Taxes and Assessment Details
Values
| (+) Improvement Homesite Value: | + | $0 | |
| (+) Improvement Non-Homesite Value: | + | $408,196 | |
| (+) Land Homesite Value: | + | $0 | |
| (+) Land Non-Homesite Value: | + | $250,000 | |
| (+) Curr Use (HS): | + | $0 | $0 |
| (+) Curr Use (NHS): | + | $0 | $0 |
| | | -------------------------- | |
| (=) Market Value: | = | $658,196 | |
| (–) Productivity Loss: | – | $0 | |
| | | -------------------------- | |
| (=) Subtotal: | = | $658,196 | |
| (+) Senior Appraised Value: | + | $0 | |
| (+) Non-Senior Appraised Value: | + | $658,196 | |
| | | -------------------------- | |
| (=) Total Appraised Value: | = | $658,196 | |
| (–) Senior Exemption Loss: | – | $0 | |
| (–) Exemption Loss: | – | $0 | |
| | | -------------------------- | |
| (=) Taxable Value: | = | $658,196 | |
Taxing Jurisdiction
| Owner: | DEWITT, STACY | | |
| % Ownership: | 100.0000000000% | | |
| Total Value: | $658,196 | | |
| Tax Area: | 510 - APPRAISER-Stan/Cam Schl Dist, improved & 1 acre or less |
| CF | Conservation Futures | 0.0316035091 | $658,196 | $658,196 | $20.80 | | |
| EMS1 | Fire & Rescue Dist #1 Camano GEN (EMS) | 0.3677864386 | $658,196 | $658,196 | $242.08 | | |
| FIRE1 | Fire & Rescue Dist #1 Camano GEN | 1.2502910536 | $658,196 | $658,196 | $822.94 | | |
| FIRE1BOND | Fire & Rescue Dist #1 Camano BOND | 0.1570001679 | $658,196 | $658,196 | $103.34 | | |
| CE | County Current Expense | 0.3708482477 | $658,196 | $658,196 | $244.09 | | |
| CR | County Roads | 0.4584763726 | $658,196 | $658,196 | $301.77 | | |
| LCIB | Library Sno-Isle BOND (Camano Island) | 0.0396325772 | $658,196 | $658,196 | $26.09 | | |
| LIB | Library Sno-Isle GEN | 0.3153421757 | $658,196 | $658,196 | $207.56 | | |
| SCH205_401 | School 205-401 Enrichment | 1.2698420524 | $658,196 | $658,196 | $835.80 | | |
| SCH205BOND | School 205-401 BOND | 0.9396497583 | $658,196 | $658,196 | $618.47 | | |
| ST | State School | 1.3035497053 | $658,196 | $658,196 | $857.99 | | |
| ST2 | State School Part 2 | 0.8169543533 | $658,196 | $658,196 | $537.72 | | |
| | Total Tax Rate: | 7.3209764117 | | | | | |
| | | | | Taxes w/Current Exemptions: | $4,818.65 | | |
| | | | | Taxes w/o Exemptions: | $4,818.65 | | |
Improvement / Building
| Improvement #1: | RESIDENTIAL | State Code: | Y | 1680.0 sqft | Value: | $408,196 |
| Bathrooms: | 2 | Bedrooms: | 2 | | Ceiling: | TONGUE & GROOVE | Cooling: | HEAT PUMP/CONV/V | | Exterior Wall/Cover: | WOOD SIDING | Floor Covering: | VINYL 100% | | Floor Structure: | WOOD W/SUBFLOOR | Foundation: | SLAB/CONCRETE | | Interior Finish: | DRYWALL PAINT | Plumbing Fixture Cnt: | 12 | | Roof Slope: | 8" IN 12" | Roof Structure/Cover: | CJ ALUMINIUM HEAVY |
|
| | Type | Description | Class CD | Sub Class CD | Year Built | Area |
| | BAS | BASE/MAIN FLOOR | 3 | 0 | 1900 | 1600.0 |
| | AGR | ATTACHED GARAGE | 3 | 0 | 1900 | 1100.0 |
| | ENP | ENCLOSED PORCH | 3 | 0 | 1900 | 128.0 |
| | LOF | LOFT | 3 | 0 | 1900 | 80.0 |
| | OP3 | OPEN PORCH W/ROOF | 3 | 0 | 1900 | 160.0 |
| | OP4 | OPEN PORCH W/CEILING-ROOF | 3 | 0 | 1900 | 63.0 |
Sketch
Property Image
Land
| 1 | 16 | AC (00.51-01.00) | 0.5400 | 23522.40 | 0.00 | 0.00 | 1.00 | $250,000 | $0 |
Roll Value History
| 2026 | N/A | N/A | N/A | N/A | N/A |
| 2025 | $408,196 | $250,000 | $0 | $658,196 | $658,196 |
| 2024 | $411,515 | $230,000 | $0 | $641,515 | $641,515 |
| 2023 | $414,833 | $230,000 | $0 | $644,833 | $644,833 |
| 2022 | $378,636 | $210,000 | $0 | $588,636 | $588,636 |
| 2021 | $236,924 | $150,000 | $0 | $386,924 | $386,924 |
| 2020 | $230,640 | $120,000 | $0 | $350,640 | $350,640 |
| 2019 | $167,927 | $160,000 | $0 | $327,927 | $327,927 |
| 2018 | $14,836 | $120,000 | $0 | $134,836 | $134,836 |
| 2017 | $14,836 | $100,000 | $0 | $114,836 | $114,836 |
| 2016 | $14,836 | $100,000 | $0 | $114,836 | $114,836 |
| 2015 | $23,497 | $65,000 | $0 | $88,497 | $88,497 |
| 2014 | $23,497 | $65,000 | $0 | $88,497 | $88,497 |
| 2013 | $23,497 | $41,600 | $0 | $65,097 | $65,097 |
| 2012 | $23,497 | $41,600 | $0 | $65,097 | $65,097 |
| 2011 | $23,497 | $52,000 | $0 | $75,497 | $75,497 |
| 2010 | $23,977 | $52,000 | $0 | $75,977 | $75,977 |
| 2009 | $23,977 | $75,000 | $0 | $98,977 | $98,977 |
| 2008 | $23,977 | $95,000 | $0 | $118,977 | $118,977 |
| 2007 | $19,036 | $99,941 | $0 | $118,977 | $118,977 |
Deed and Sales History
| 1 | 07/22/2025 | WD | Warranty Deed | ELLISON, DAVID | DEWITT, STACY | | | $750,000.00 | 64274 | 4588796 |
| 2 | 07/21/2025 | LACPROBATE | Lack of Probate | SLUSHER, CHRISTINE | ELLISON, DAVID | | | $0.00 | 64273 | 4588795 |
| 3 | 09/03/2021 | WD | Warranty Deed | JOHNSON, DENNIS L | SLUSHER, CHRISTINE | | | $600,000.00 | 49990 | 4528847 |
| 4 | 08/09/2018 | WD | Warranty Deed | MCKENZIE, MIKE | JOHNSON, DENNIS L | | | $300,000.00 | 35422 | 4449794 |
| 5 | 05/19/2014 | WD | Warranty Deed | BOSTIAN, LAURA E | MCKENZIE, MIKE | | | $45,000.00 | 15360 | 4359697 |
| 6 | 01/29/2004 | 5 | DNU - Marriage License/Name Change | BOSTAIN, LAWRENCE O | BOSTAIN, LAURA E | | | $0.00 | 70151 | 0 |
| 7 | 02/01/1991 | OTHER | Other - Misc. Documents | Unknown | BOSTAIN, LAWRENCE O | | | $0.00 | 64057 | 90023108 |
Payout Agreement
| No payout information available.. |