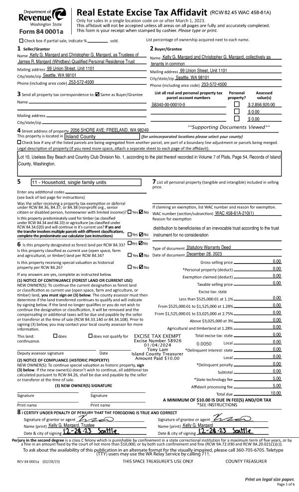
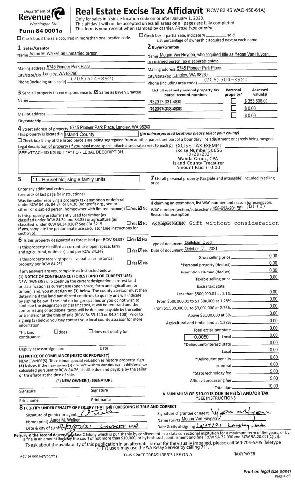
Property
Account |
| Property ID: | 653769 | Abbreviated Legal Description: | LOT 1 L-SP 90-5.33034.195-0950 V2 SP P277-8 AF#91001380 |
| Geographic ID: | R33034-168-0920 | Agent Code: | |
| Type: | Real | | |
| Tax Area: | 700 - APPRAISER-S Whid Schl Dist, in town of Langley | Land Use Code | 11 |
| Open Space: | N | DFL | N |
| Historic Property: | N | Remodel Property: | N |
| Multi-Family Redevelopment: | N | | |
| Township: | 30 | Section: | 34 |
| Range: | R3 |
Location |
| Address: | 31 DE BRUYN AVE LANGLEY, WA 98260 | Mapsco: | |
| Neighborhood: | City of Langley | Map ID: | 912 |
| Neighborhood CD: | 04-L |
Owner |
| Name: | HARDING TTEE, RAYMOND C | Owner ID: | 309881 |
| Mailing Address: | LORINDA A HAMAN TTEE PO BOX 1648 LANGLEY, WA 98260 | % Ownership: | 100.0000000000% |
| | | Exemptions: | |
Taxes and Assessment Details
Values
| (+) Improvement Homesite Value: | + | $0 | |
| (+) Improvement Non-Homesite Value: | + | $182,734 | |
| (+) Land Homesite Value: | + | $0 | |
| (+) Land Non-Homesite Value: | + | $380,000 | |
| (+) Curr Use (HS): | + | $0 | $0 |
| (+) Curr Use (NHS): | + | $0 | $0 |
| | | -------------------------- | |
| (=) Market Value: | = | $562,734 | |
| (–) Productivity Loss: | – | $0 | |
| | | -------------------------- | |
| (=) Subtotal: | = | $562,734 | |
| (+) Senior Appraised Value: | + | $0 | |
| (+) Non-Senior Appraised Value: | + | $562,734 | |
| | | -------------------------- | |
| (=) Total Appraised Value: | = | $562,734 | |
| (–) Senior Exemption Loss: | – | $0 | |
| (–) Exemption Loss: | – | $0 | |
| | | -------------------------- | |
| (=) Taxable Value: | = | $562,734 | |
Taxing Jurisdiction
| Owner: | HARDING TTEE, RAYMOND C | | |
| % Ownership: | 100.0000000000% | | |
| Total Value: | $562,734 | | |
| Tax Area: | 700 - APPRAISER-S Whid Schl Dist, in town of Langley |
| CF | Conservation Futures | 0.0316035091 | $562,734 | $562,734 | $17.78 | | |
| LANG | City of Langley | 1.0093520762 | $562,734 | $562,734 | $568.00 | | |
| LANGBOND | City of Langley BOND | 1.0326110892 | $562,734 | $562,734 | $581.09 | | |
| FIRE3 | Fire & Rescue Dist #3 S Whidbey GEN | 1.2004855531 | $562,734 | $562,734 | $675.55 | | |
| HOBOND | Hospital BOND | 0.1910887512 | $562,734 | $562,734 | $107.53 | | |
| HOGEN | Hospital GEN | 0.3902502903 | $562,734 | $562,734 | $219.61 | | |
| CE | County Current Expense | 0.3708482477 | $562,734 | $562,734 | $208.69 | | |
| ISLANDEMS | Hospital GEN (EMS) | 0.5000000000 | $562,734 | $562,734 | $281.37 | | |
| LIB | Library Sno-Isle GEN | 0.3153421757 | $562,734 | $562,734 | $177.45 | | |
| PORTWHID | Port of S Whidbey GEN | 0.1094540357 | $562,734 | $562,734 | $61.59 | | |
| SCH206BOND | School 206 BOND | 0.3161759235 | $562,734 | $562,734 | $177.92 | | |
| SCH206MO | School 206 Enrichment | 0.4547169547 | $562,734 | $562,734 | $255.88 | | |
| ST | State School | 1.3035497053 | $562,734 | $562,734 | $733.55 | | |
| ST2 | State School Part 2 | 0.8169543533 | $562,734 | $562,734 | $459.73 | | |
| SWHIDPRBD | P & R S Whidbey BOND | 0.0152817568 | $562,734 | $562,734 | $8.60 | | |
| SWHIDPRBD2 | P & R S Whidbey BOND2 | 0.0138911264 | $562,734 | $562,734 | $7.82 | | |
| SWHIDPRMT | P & R S Whidbey GEN | 0.2053334452 | $562,734 | $562,734 | $115.55 | | |
| | Total Tax Rate: | 8.2769389934 | | | | | |
| | | | | Taxes w/Current Exemptions: | $4,657.71 | | |
| | | | | Taxes w/o Exemptions: | $4,657.71 | | |
Improvement / Building
| Improvement #1: | RESIDENTIAL | State Code: | Y | 1351.1 sqft | Value: | $182,734 |
| Bathrooms: | 0.75 | Bedrooms: | 2 | | Ceiling: | PLYWOOD PAINTED | Exterior Wall/Cover: | WOOD SIDING | | Floor Covering: | HARDWOOD/CARP 20-80 | Floor Structure: | WOOD W/SUBFLOOR | | Foundation: | CONCRETE | Heating: | B/B HOT WATER-OIL | | Interior Finish: | DRYWALL PAINT | Plumbing Fixture Cnt: | 6 | | Roof Slope: | 6" IN 12" | Roof Structure/Cover: | CJ WOOD SHAKES |
|
| | Type | Description | Class CD | Sub Class CD | Year Built | Area |
| | BAS | BASE/MAIN FLOOR | 3 | 0 | 1895 | 1351.1 |
| | OWP | OPEN WOOD PORCH W/STEPS | 3 | 0 | 1895 | 25.0 |
| | OWC | OPEN WOOD PORCH W/STEPS/ROOF/C | 3 | 0 | 1895 | 105.0 |
| | oHAY | HAY SHED | 3 | 0 | 1895 | 0.0 |
| | UTY | STORAGE/UTILITY | 3 | 0 | 1895 | 221.0 |
| | DGR | DETACHED GARAGE | 3 | 0 | 1895 | 768.0 |
Sketch
Property Image
Land
| 1 | 32 | AC (03.01-09.99) | 5.5400 | 0.00 | 0.00 | 0.00 | 1.00 | $380,000 | $0 |
Roll Value History
| 2026 | N/A | N/A | N/A | N/A | N/A |
| 2025 | $182,734 | $380,000 | $0 | $562,734 | $562,734 |
| 2024 | $186,023 | $380,000 | $0 | $566,023 | $566,023 |
| 2023 | $189,312 | $380,000 | $0 | $569,312 | $569,312 |
| 2022 | $174,504 | $290,000 | $0 | $464,504 | $464,504 |
| 2021 | $154,468 | $230,000 | $0 | $384,468 | $384,468 |
| 2020 | $109,743 | $220,000 | $0 | $329,743 | $329,743 |
| 2019 | $80,662 | $250,000 | $0 | $330,662 | $330,662 |
| 2018 | $81,050 | $210,000 | $0 | $291,050 | $291,050 |
| 2017 | $81,822 | $210,000 | $0 | $291,822 | $291,822 |
| 2016 | $83,374 | $165,000 | $0 | $248,374 | $248,374 |
| 2015 | $84,930 | $150,000 | $0 | $234,930 | $234,930 |
| 2014 | $56,382 | $149,580 | $0 | $205,962 | $205,962 |
| 2013 | $57,878 | $149,580 | $0 | $207,458 | $207,458 |
| 2012 | $59,374 | $149,580 | $0 | $208,954 | $208,954 |
| 2011 | $60,871 | $149,580 | $0 | $210,451 | $210,451 |
| 2010 | $71,850 | $149,580 | $0 | $221,430 | $221,430 |
| 2009 | $75,644 | $243,760 | $0 | $319,404 | $319,404 |
| 2008 | $77,596 | $277,886 | $0 | $355,482 | $355,482 |
| 2007 | $79,324 | $277,886 | $0 | $357,210 | $357,210 |
Deed and Sales History
| 1 | 08/21/2023 | WD | Warranty Deed | HAMAN, LORINDA | HARDING TTEE, RAYMOND C | | | $0.00 | 57828 | 4564160 |
| 2 | 04/09/2021 | QCD | Quit Claim Deed | HAMAN, LORINDA A | HAMAN, LORINDA | | | $0.00 | 47974 | 4517612 |
| 3 | 02/22/2021 | WD | Warranty Deed | HAMAN, RAYMOND | HAMAN, LORINDA A | | | $0.00 | 47161 | 4512413 |
| 4 | 02/22/2021 | TRUSTEED | Trustee's Deed | HAMAN, RAYMOND | HAMAN, LORINDA A | | | $0.00 | 47160 | 4512412 |
| 5 | 07/14/2009 | PRD | Personal Representatives Deed | HAMAN, RAYMOND | HAMAN, RAYMOND | | | $0.00 | 91583 | 4256233 |
| 6 | 01/01/1900 | OTHER | Other - Misc. Documents | Unknown | HAMAN, RAYMOND | | | $0.00 | 0 | 0 |
Payout Agreement
| No payout information available.. |