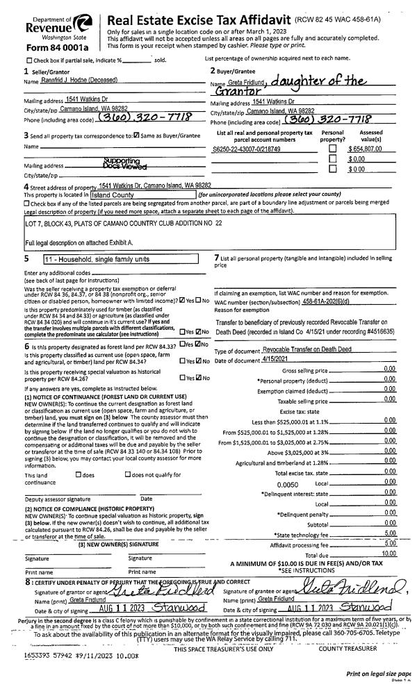
Property
Account |
| Property ID: | 653821 | Abbreviated Legal Description: | LOT 2 SP 64-90.33218.093-3760 V2 SP P275-6 AF#91001360 |
| Geographic ID: | R33218-072-3730 | Agent Code: | |
| Type: | Real | | |
| Tax Area: | 512 - APPRAISER-Stan/Cam Schl Dist, improved, greater than 1 acre | Land Use Code | 11 |
| Open Space: | N | DFL | N |
| Historic Property: | N | Remodel Property: | N |
| Multi-Family Redevelopment: | N | | |
| Township: | 32 | Section: | 18 |
| Range: | R3 |
Location |
| Address: | 1252 ARROWHEAD RD CAMANO ISLAND, WA 98282 | Mapsco: | |
| Neighborhood: | North Camano | Map ID: | 957 |
| Neighborhood CD: | 06-C |
Owner |
| Name: | ODELL, RHONDA L | Owner ID: | 307374 |
| Mailing Address: | JAMES C ODELL 1252 ARROWHEAD RD CAMANO ISLAND, WA 98282 | % Ownership: | 100.0000000000% |
| | | Exemptions: | |
Taxes and Assessment Details
Values
| (+) Improvement Homesite Value: | + | $0 | |
| (+) Improvement Non-Homesite Value: | + | $614,921 | |
| (+) Land Homesite Value: | + | $0 | |
| (+) Land Non-Homesite Value: | + | $380,000 | |
| (+) Curr Use (HS): | + | $0 | $0 |
| (+) Curr Use (NHS): | + | $0 | $0 |
| | | -------------------------- | |
| (=) Market Value: | = | $994,921 | |
| (–) Productivity Loss: | – | $0 | |
| | | -------------------------- | |
| (=) Subtotal: | = | $994,921 | |
| (+) Senior Appraised Value: | + | $0 | |
| (+) Non-Senior Appraised Value: | + | $994,921 | |
| | | -------------------------- | |
| (=) Total Appraised Value: | = | $994,921 | |
| (–) Senior Exemption Loss: | – | $0 | |
| (–) Exemption Loss: | – | $0 | |
| | | -------------------------- | |
| (=) Taxable Value: | = | $994,921 | |
Taxing Jurisdiction
| Owner: | ODELL, RHONDA L | | |
| % Ownership: | 100.0000000000% | | |
| Total Value: | $994,921 | | |
| Tax Area: | 512 - APPRAISER-Stan/Cam Schl Dist, improved, greater than 1 acre |
| CF | Conservation Futures | 0.0316035091 | $994,921 | $994,921 | $31.44 | | |
| EMS1 | Fire & Rescue Dist #1 Camano GEN (EMS) | 0.3677864386 | $994,921 | $994,921 | $365.92 | | |
| FIRE1 | Fire & Rescue Dist #1 Camano GEN | 1.2502910536 | $994,921 | $994,921 | $1,243.94 | | |
| FIRE1BOND | Fire & Rescue Dist #1 Camano BOND | 0.1570001679 | $994,921 | $994,921 | $156.20 | | |
| CE | County Current Expense | 0.3708482477 | $994,921 | $994,921 | $368.96 | | |
| CR | County Roads | 0.4584763726 | $994,921 | $994,921 | $456.15 | | |
| LCIB | Library Sno-Isle BOND (Camano Island) | 0.0396325772 | $994,921 | $994,921 | $39.43 | | |
| LIB | Library Sno-Isle GEN | 0.3153421757 | $994,921 | $994,921 | $313.74 | | |
| SCH205_401 | School 205-401 Enrichment | 1.2698420524 | $994,921 | $994,921 | $1,263.39 | | |
| SCH205BOND | School 205-401 BOND | 0.9396497583 | $994,921 | $994,921 | $934.88 | | |
| ST | State School | 1.3035497053 | $994,921 | $994,921 | $1,296.93 | | |
| ST2 | State School Part 2 | 0.8169543533 | $994,921 | $994,921 | $812.81 | | |
| | Total Tax Rate: | 7.3209764117 | | | | | |
| | | | | Taxes w/Current Exemptions: | $7,283.79 | | |
| | | | | Taxes w/o Exemptions: | $7,283.79 | | |
Improvement / Building
| Improvement #1: | RESIDENTIAL | State Code: | Y | 949.0 sqft | Value: | $207,056 |
| Bathrooms: | 1 | Bedrooms: | 2 | | Ceiling: | DRYWALL PAINTED | Exterior Wall/Cover: | WOOD SIDING | | Floor Covering: | HARDWOOD/CARP 80-20 | Floor Structure: | WOOD W/SUBFLOOR | | Foundation: | CONCRETE | Heating: | FHA GAS | | Interior Finish: | DRYWALL PAINT | Plumbing Fixture Cnt: | 8 | | Roof Slope: | 6" IN 12" | Roof Structure/Cover: | CJ ASPHALT |
|
| | Type | Description | Class CD | Sub Class CD | Year Built | Area |
| | BAS | BASE/MAIN FLOOR | 3 | 0 | 1923 | 949.0 |
| | OWP | OPEN WOOD PORCH W/STEPS | 3 | 0 | 1923 | 120.0 |
| | DGR | DETACHED GARAGE | 3 | 0 | 1923 | 864.0 |
| | UTY | STORAGE/UTILITY | 3 | 0 | 1923 | 160.0 |
| Improvement #2: | RESIDENTIAL | State Code: | Y | 1544.0 sqft | Value: | $407,865 |
| Bathrooms: | 2 | Bedrooms: | 3 | | Ceiling: | DRYWALL PAINTED | Cooling: | HEAT PUMP/CONV/V | | Exterior Wall/Cover: | CEMENT FIBER | Floor Covering: | HARDWOOD 100% | | Floor Structure: | WOOD W/SUBFLOOR | Foundation: | CONCRETE | | Interior Finish: | DRYWALL PAINT | Plumbing Fixture Cnt: | 11 | | Roof Slope: | FLAT | Roof Structure/Cover: | BEAM ALUMINUM HEAVY |
|
| | Type | Description | Class CD | Sub Class CD | Year Built | Area |
| | BAS | BASE/MAIN FLOOR | 4 | 0 | 2018 | 1544.0 |
| | OWC | OPEN WOOD PORCH W/STEPS/ROOF/C | 4 | 0 | 2018 | 432.0 |
| | OCP | OPEN CARPORT | 4 | 0 | 2018 | 432.0 |
Sketch
Property Image
Land
| 1 | 32 | AC (03.01-09.99) | 4.2300 | 0.00 | 0.00 | 0.00 | 1.00 | $380,000 | $0 |
Roll Value History
| 2026 | N/A | N/A | N/A | N/A | N/A |
| 2025 | $614,921 | $380,000 | $0 | $994,921 | $994,921 |
| 2024 | $621,090 | $390,000 | $0 | $1,011,090 | $1,011,090 |
| 2023 | $627,260 | $380,000 | $0 | $1,007,260 | $1,007,260 |
| 2022 | $499,143 | $350,000 | $0 | $849,143 | $849,143 |
| 2021 | $438,325 | $240,000 | $0 | $678,325 | $678,325 |
| 2020 | $427,276 | $200,000 | $0 | $627,276 | $627,276 |
| 2019 | $314,571 | $240,000 | $0 | $554,571 | $554,571 |
| 2018 | $127,350 | $220,000 | $0 | $347,350 | $347,350 |
| 2017 | $90,209 | $200,000 | $0 | $290,209 | $290,209 |
| 2016 | $74,923 | $180,000 | $0 | $254,923 | $254,923 |
| 2015 | $75,959 | $169,200 | $0 | $245,159 | $245,159 |
| 2014 | $76,996 | $169,200 | $0 | $246,196 | $246,196 |
| 2013 | $78,032 | $126,900 | $0 | $204,932 | $204,932 |
| 2012 | $79,069 | $135,360 | $0 | $214,429 | $214,429 |
| 2011 | $80,105 | $169,200 | $0 | $249,305 | $249,305 |
| 2010 | $85,404 | $169,200 | $0 | $254,604 | $254,604 |
| 2009 | $88,107 | $211,500 | $0 | $299,607 | $299,607 |
| 2008 | $89,502 | $211,500 | $0 | $301,002 | $301,002 |
| 2007 | $90,908 | $211,500 | $0 | $302,408 | $302,408 |
Deed and Sales History
| 1 | 01/23/2023 | WD | Warranty Deed | TAYLOR, AMY | ODELL, RHONDA L | | | $1,240,000.00 | 55699 | 4556118 |
| 2 | 06/09/2020 | QCD | Quit Claim Deed | TAYLOR, JEFFREY | TAYLOR, AMY | | | $0.00 | 43390 | 4488990 |
| 3 | 08/22/2016 | WD | Warranty Deed | NORGAARD, STEVEN M | TAYLOR, JEFFREY | | | $305,000.00 | 25985 | 4406574 |
| 4 | 02/01/1991 | WD | Warranty Deed | BROWNELL, DAVID D | NORGAARD, STEVEN M | | | $114,000.00 | 10430 | 91001975 |
| 5 | 01/01/1900 | OTHER | Other - Misc. Documents | Unknown | BROWNELL, DAVID D | | | $0.00 | 4555 | 90015005 |
Payout Agreement
| No payout information available.. |