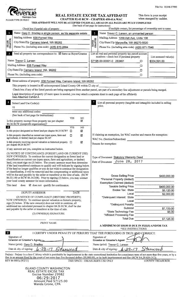
Property
Account |
| Property ID: | 653885 | Abbreviated Legal Description: | UTSALADY HTS #2 - PRD LOT 54 |
| Geographic ID: | S8353-02-00054-0 | Agent Code: | |
| Type: | Real | | |
| Tax Area: | 510 - APPRAISER-Stan/Cam Schl Dist, improved & 1 acre or less | Land Use Code | 11 |
| Open Space: | N | DFL | N |
| Historic Property: | N | Remodel Property: | N |
| Multi-Family Redevelopment: | N | | |
| Township: | | Section: | |
| Range: | |
Location |
| Address: | 24 CHATHAM PLACE CAMANO ISLAND, WA 98282 | Mapsco: | |
| Neighborhood: | North Camano | Map ID: | 559 |
| Neighborhood CD: | 06-C |
Owner |
| Name: | PALM, H DOUGLAS | Owner ID: | 280058 |
| Mailing Address: | DEBORAH S LYMAN-PALM 24 CHATHAM PLACE CAMANO ISLAND, WA 98282 | % Ownership: | 100.0000000000% |
| | | Exemptions: | |
Taxes and Assessment Details
Values
| (+) Improvement Homesite Value: | + | $0 | |
| (+) Improvement Non-Homesite Value: | + | $475,228 | |
| (+) Land Homesite Value: | + | $0 | |
| (+) Land Non-Homesite Value: | + | $430,000 | |
| (+) Curr Use (HS): | + | $0 | $0 |
| (+) Curr Use (NHS): | + | $0 | $0 |
| | | -------------------------- | |
| (=) Market Value: | = | $905,228 | |
| (–) Productivity Loss: | – | $0 | |
| | | -------------------------- | |
| (=) Subtotal: | = | $905,228 | |
| (+) Senior Appraised Value: | + | $0 | |
| (+) Non-Senior Appraised Value: | + | $905,228 | |
| | | -------------------------- | |
| (=) Total Appraised Value: | = | $905,228 | |
| (–) Senior Exemption Loss: | – | $0 | |
| (–) Exemption Loss: | – | $0 | |
| | | -------------------------- | |
| (=) Taxable Value: | = | $905,228 | |
Taxing Jurisdiction
| Owner: | PALM, H DOUGLAS | | |
| % Ownership: | 100.0000000000% | | |
| Total Value: | $905,228 | | |
| Tax Area: | 510 - APPRAISER-Stan/Cam Schl Dist, improved & 1 acre or less |
| CF | Conservation Futures | 0.0316035091 | $905,228 | $905,228 | $28.61 | | |
| EMS1 | Fire & Rescue Dist #1 Camano GEN (EMS) | 0.3677864386 | $905,228 | $905,228 | $332.93 | | |
| FIRE1 | Fire & Rescue Dist #1 Camano GEN | 1.2502910536 | $905,228 | $905,228 | $1,131.80 | | |
| FIRE1BOND | Fire & Rescue Dist #1 Camano BOND | 0.1570001679 | $905,228 | $905,228 | $142.12 | | |
| CE | County Current Expense | 0.3708482477 | $905,228 | $905,228 | $335.70 | | |
| CR | County Roads | 0.4584763726 | $905,228 | $905,228 | $415.03 | | |
| LCIB | Library Sno-Isle BOND (Camano Island) | 0.0396325772 | $905,228 | $905,228 | $35.88 | | |
| LIB | Library Sno-Isle GEN | 0.3153421757 | $905,228 | $905,228 | $285.46 | | |
| SCH205_401 | School 205-401 Enrichment | 1.2698420524 | $905,228 | $905,228 | $1,149.50 | | |
| SCH205BOND | School 205-401 BOND | 0.9396497583 | $905,228 | $905,228 | $850.60 | | |
| ST | State School | 1.3035497053 | $905,228 | $905,228 | $1,180.01 | | |
| ST2 | State School Part 2 | 0.8169543533 | $905,228 | $905,228 | $739.53 | | |
| | Total Tax Rate: | 7.3209764117 | | | | | |
| | | | | Taxes w/Current Exemptions: | $6,627.17 | | |
| | | | | Taxes w/o Exemptions: | $6,627.17 | | |
Improvement / Building
| Improvement #1: | RESIDENTIAL | State Code: | Y | 2289.0 sqft | Value: | $475,228 |
| Bathrooms: | 2 | Bedrooms: | 3 | | Ceiling: | DRYWALL PAINTED | Cooling: | HEAT PUMP/CONV/V | | Exterior Wall/Cover: | WOOD SIDING | Floor Covering: | HARDWOOD/CARP 20-80 | | Floor Structure: | WOOD W/SUBFLOOR | Foundation: | CONCRETE | | Interior Finish: | DRYWALL PAINT | Plumbing Fixture Cnt: | 12 | | Roof Slope: | 8" IN 12" | Roof Structure/Cover: | CJ ASPHALT |
|
| | Type | Description | Class CD | Sub Class CD | Year Built | Area |
| | BAS | BASE/MAIN FLOOR | 4 | 0 | 1992 | 2289.0 |
| | OP4 | OPEN PORCH W/CEILING-ROOF | 4 | 0 | 1992 | 154.6 |
| | AGR | ATTACHED GARAGE | 4 | 0 | 1992 | 765.2 |
| | OWP | OPEN WOOD PORCH W/STEPS | 4 | 0 | 1992 | 787.6 |
Sketch
Property Image
Land
| 1 | 16 | AC (00.51-01.00) | 0.0000 | 0.00 | 0.00 | 0.00 | 1.00 | $430,000 | $0 |
Roll Value History
| 2026 | N/A | N/A | N/A | N/A | N/A |
| 2025 | $475,228 | $430,000 | $0 | $905,228 | $905,228 |
| 2024 | $480,939 | $430,000 | $0 | $910,939 | $910,939 |
| 2023 | $486,646 | $430,000 | $0 | $916,646 | $916,646 |
| 2022 | $425,157 | $290,000 | $0 | $715,157 | $715,157 |
| 2021 | $374,196 | $200,000 | $0 | $574,196 | $574,196 |
| 2020 | $364,844 | $190,000 | $0 | $554,844 | $554,844 |
| 2019 | $271,624 | $230,000 | $0 | $501,624 | $501,624 |
| 2018 | $272,419 | $200,000 | $0 | $472,419 | $472,419 |
| 2017 | $273,992 | $180,000 | $0 | $453,992 | $453,992 |
| 2016 | $265,327 | $135,000 | $0 | $400,327 | $400,327 |
| 2015 | $268,378 | $100,000 | $0 | $368,378 | $368,378 |
| 2014 | $271,427 | $100,000 | $0 | $371,427 | $371,427 |
| 2013 | $274,477 | $100,000 | $0 | $374,477 | $374,477 |
| 2012 | $277,526 | $108,000 | $0 | $385,526 | $385,526 |
| 2011 | $280,576 | $135,000 | $0 | $415,576 | $415,576 |
| 2010 | $310,148 | $135,000 | $0 | $445,148 | $445,148 |
| 2009 | $330,929 | $200,000 | $0 | $530,929 | $530,929 |
| 2008 | $335,180 | $120,000 | $0 | $455,180 | $455,180 |
| 2007 | $339,459 | $120,000 | $0 | $459,459 | $459,459 |
Deed and Sales History
| 1 | 05/16/2017 | WD | Warranty Deed | GO, HARRY Y | PALM, H DOUGLAS | | | $485,010.00 | 29440 | 4423155 |
| 2 | 05/31/2005 | WD | Warranty Deed | THORNTON, HAROLD/JOANNA B | GO, HARRY Y | | | $445,000.00 | 52568 | 4136408 |
| 3 | 03/01/1998 | WD | Warranty Deed | CRAIK, DOUGLAS E | THORNTON, HAROLD/JOANNA B | | | $292,500.00 | 80921 | 98005257 |
| 4 | 09/01/1992 | WD | Warranty Deed | MEDINA, DEVELOPMENT C | CRAIK, DOUGLAS E | | | $260,000.00 | 23808 | 92018462 |
| 5 | 04/01/1992 | WD | Warranty Deed | UTSALADY, HEIGHTS | MEDINA, DEVELOPMENT C | | | $58,500.00 | 21274 | 92006181 |
| 6 | 01/01/1900 | OTHER | Other - Misc. Documents | Unknown | UTSALADY, HEIGHTS | | | $0.00 | 90220 | 89000782 |
Payout Agreement
| No payout information available.. |