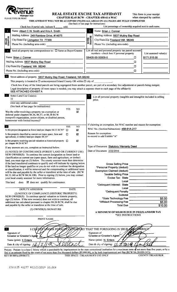
Property
Account |
| Property ID: | 653956 | Abbreviated Legal Description: | WHIDBEY SHORES W/2 OF LOT 60 & ALL LOT 61 |
| Geographic ID: | S8425-00-00060-0 | Agent Code: | |
| Type: | Real | | |
| Tax Area: | 710 - APPRAISER-S Whid Schl Dist, outside Langley, improved & 1 acre or less | Land Use Code | 11 |
| Open Space: | N | DFL | N |
| Historic Property: | N | Remodel Property: | N |
| Multi-Family Redevelopment: | N | | |
| Township: | | Section: | |
| Range: | |
Location |
| Address: | 3239 FOX SPIT RD LANGLEY, WA 98260 | Mapsco: | |
| Neighborhood: | Cycle 3 | Map ID: | 372 |
| Neighborhood CD: | 3 |
Owner |
| Name: | MORGAN, MARGARET M | Owner ID: | 295557 |
| Mailing Address: | GREGORY A MORGAN 3239 FOX SPIT RD LANGLEY, WA 98260 | % Ownership: | 100.0000000000% |
| | | Exemptions: | |
Taxes and Assessment Details
Values
| (+) Improvement Homesite Value: | + | $0 | |
| (+) Improvement Non-Homesite Value: | + | $379,463 | |
| (+) Land Homesite Value: | + | $0 | |
| (+) Land Non-Homesite Value: | + | $310,000 | |
| (+) Curr Use (HS): | + | $0 | $0 |
| (+) Curr Use (NHS): | + | $0 | $0 |
| | | -------------------------- | |
| (=) Market Value: | = | $689,463 | |
| (–) Productivity Loss: | – | $0 | |
| | | -------------------------- | |
| (=) Subtotal: | = | $689,463 | |
| (+) Senior Appraised Value: | + | $0 | |
| (+) Non-Senior Appraised Value: | + | $689,463 | |
| | | -------------------------- | |
| (=) Total Appraised Value: | = | $689,463 | |
| (–) Senior Exemption Loss: | – | $0 | |
| (–) Exemption Loss: | – | $0 | |
| | | -------------------------- | |
| (=) Taxable Value: | = | $689,463 | |
Taxing Jurisdiction
| Owner: | MORGAN, MARGARET M | | |
| % Ownership: | 100.0000000000% | | |
| Total Value: | $689,463 | | |
| Tax Area: | 710 - APPRAISER-S Whid Schl Dist, outside Langley, improved & 1 acre or less |
| CF | Conservation Futures | 0.0316035091 | $689,463 | $689,463 | $21.79 | | |
| FIRE3 | Fire & Rescue Dist #3 S Whidbey GEN | 1.2004855531 | $689,463 | $689,463 | $827.69 | | |
| HOBOND | Hospital BOND | 0.1910887512 | $689,463 | $689,463 | $131.75 | | |
| HOGEN | Hospital GEN | 0.3902502903 | $689,463 | $689,463 | $269.06 | | |
| CE | County Current Expense | 0.3708482477 | $689,463 | $689,463 | $255.69 | | |
| CR | County Roads | 0.4584763726 | $689,463 | $689,463 | $316.10 | | |
| ISLANDEMS | Hospital GEN (EMS) | 0.5000000000 | $689,463 | $689,463 | $344.73 | | |
| LIB | Library Sno-Isle GEN | 0.3153421757 | $689,463 | $689,463 | $217.42 | | |
| PORTWHID | Port of S Whidbey GEN | 0.1094540357 | $689,463 | $689,463 | $75.46 | | |
| SCH206BOND | School 206 BOND | 0.3161759235 | $689,463 | $689,463 | $217.99 | | |
| SCH206MO | School 206 Enrichment | 0.4547169547 | $689,463 | $689,463 | $313.51 | | |
| ST | State School | 1.3035497053 | $689,463 | $689,463 | $898.75 | | |
| ST2 | State School Part 2 | 0.8169543533 | $689,463 | $689,463 | $563.26 | | |
| SWHIDPRBD | P & R S Whidbey BOND | 0.0152817568 | $689,463 | $689,463 | $10.54 | | |
| SWHIDPRBD2 | P & R S Whidbey BOND2 | 0.0138911264 | $689,463 | $689,463 | $9.58 | | |
| SWHIDPRMT | P & R S Whidbey GEN | 0.2053334452 | $689,463 | $689,463 | $141.57 | | |
| | Total Tax Rate: | 6.6934522006 | | | | | |
| | | | | Taxes w/Current Exemptions: | $4,614.89 | | |
| | | | | Taxes w/o Exemptions: | $4,614.89 | | |
Improvement / Building
| Improvement #1: | RESIDENTIAL | State Code: | Y | 2450.3 sqft | Value: | $379,463 |
| Bathrooms: | 2.5 | Bedrooms: | 3 | | Ceiling: | DRYWALL PAINTED | Cooling: | HEAT PUMP/CONV/V | | Exterior Wall/Cover: | WOOD SIDING | Floor Covering: | VINYL TILE/CARP 20-80 | | Floor Structure: | WOOD W/SUBFLOOR | Foundation: | CONCRETE | | Interior Finish: | DRYWALL PAINT | Plumbing Fixture Cnt: | 14 | | Roof Slope: | 6" IN 12" | Roof Structure/Cover: | CJ ASPHALT |
|
| | Type | Description | Class CD | Sub Class CD | Year Built | Area |
| | BAS | BASE/MAIN FLOOR | 4 | 0 | 2000 | 1490.3 |
| | UB8 | BASEMENT UNFINISHED 8" | 4 | 0 | 2000 | 963.5 |
| | UPS | UPPER STORY | 4 | 0 | 2000 | 704.0 |
| | OWP | OPEN WOOD PORCH W/STEPS | 4 | 0 | 2000 | 40.0 |
| | OWP | OPEN WOOD PORCH W/STEPS | 4 | 0 | 2000 | 84.0 |
| | OWP | OPEN WOOD PORCH W/STEPS | 4 | 0 | 2000 | 1109.6 |
| | OWC | OPEN WOOD PORCH W/STEPS/ROOF/C | 4 | 0 | 2000 | 60.0 |
| | LOF | LOFT | 4 | 0 | 2000 | 256.0 |
Sketch
Property Image
Land
| 1 | 14 | SQ (08001-12000) | 0.0000 | 0.00 | 0.00 | 0.00 | 1.00 | $310,000 | $0 |
Roll Value History
| 2026 | N/A | N/A | N/A | N/A | N/A |
| 2025 | $379,463 | $310,000 | $0 | $689,463 | $689,463 |
| 2024 | $384,944 | $310,000 | $0 | $694,944 | $694,944 |
| 2023 | $390,422 | $310,000 | $0 | $700,422 | $700,422 |
| 2022 | $358,487 | $350,000 | $0 | $708,487 | $708,487 |
| 2021 | $316,045 | $300,000 | $0 | $616,045 | $616,045 |
| 2020 | $308,454 | $200,000 | $0 | $508,454 | $508,454 |
| 2019 | $226,017 | $200,000 | $0 | $426,017 | $426,017 |
| 2018 | $226,768 | $200,000 | $0 | $426,768 | $426,768 |
| 2017 | $228,189 | $150,000 | $0 | $378,189 | $378,189 |
| 2016 | $231,191 | $150,000 | $0 | $381,191 | $381,191 |
| 2015 | $234,193 | $85,000 | $0 | $319,193 | $319,193 |
| 2014 | $237,195 | $85,000 | $0 | $322,195 | $322,195 |
| 2013 | $241,877 | $85,000 | $0 | $326,877 | $326,877 |
| 2012 | $244,880 | $107,100 | $0 | $351,980 | $351,980 |
| 2011 | $247,881 | $126,000 | $0 | $373,881 | $373,881 |
| 2010 | $257,111 | $140,000 | $0 | $397,111 | $397,111 |
| 2009 | $268,090 | $235,000 | $0 | $503,090 | $503,090 |
| 2008 | $271,504 | $235,000 | $0 | $506,504 | $506,504 |
| 2007 | $272,895 | $210,000 | $0 | $482,895 | $482,895 |
Deed and Sales History
| 1 | 08/06/2020 | WD | Warranty Deed | FULLWILER, ANITA M | MORGAN, MARGARET M | | | $620,000.00 | 44151 | 4493321 |
|   | |
| 2 | 12/20/2019 | EZ | Easement | FULLWILER, ANITA M | PUGET SOUND ENERGY | | | $3,791.00 | 41834 | 4479548 |
| 3 | 11/01/2018 | OTHER | Other - Misc. Documents | REBER, ANITA M | FULLWILER, ANITA M | | | | 87914 | |
| 4 | 09/20/2011 | PRD | Personal Representatives Deed | REBER, GERALD B | REBER, ANITA M | | | $0.00 | 5766 | 4302488 |
| 5 | 05/06/1998 | WD | Warranty Deed | REBER, GERALD B | REBER, GERALD B | | | $277,500.00 | 81885 | 98009967 |
| 6 | 09/01/1993 | WD | Warranty Deed | WIELTSCHNIG, MICHAEL D | RICHLIN, JOHN P | | | $52,425.00 | 33923 | 93020423 |
| 7 | 02/01/1991 | OTHER | Other - Misc. Documents | Unknown | MEL, CORP | | | $0.00 | 64077 | 91001843 |
| 8 | 08/01/1990 | WD | Warranty Deed | MEL, CORP | WIELTSCHNIG, MICHAEL D | | | $42,000.00 | 5381 | 90017978 |
| 9 | 01/01/1900 | OTHER | Other - Misc. Documents | RICHLIN, JOHN P | REBER, GERALD B | | | $0.00 | 81885 | 98009967 |
Payout Agreement
| No payout information available.. |