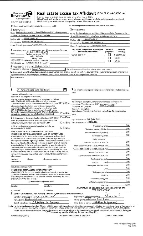
Property
Account |
| Property ID: | 65422 | Abbreviated Legal Description: | 85 - IN GL2: BG SECR SEC 21 N TO E/4 CR W1324.98' N1304 .08' TO CLN RD N23*E48.89' TPB N19*E159.67' N43*E38.56 S80*E27.44' S30*E136.99' S38*E TP ON SLN GL2 WLY ALG SD SLN TP S23*W FR TPB N23*E TPB TGW R/USE PRIV RD & BCH TR A |
| Geographic ID: | R23021-399-4150 | Agent Code: | |
| Type: | Real | | |
| Tax Area: | 310 - APPRAISER-Cpvl Schl Dist, outside Cpvl, improved & 1 acre or less | Land Use Code | 11 |
| Open Space: | N | DFL | N |
| Historic Property: | N | Remodel Property: | N |
| Multi-Family Redevelopment: | N | | |
| Township: | 30 | Section: | 21 |
| Range: | R2 |
Location |
| Address: | 1130 HARBORTOP TERRACE GREENBANK, WA 98253 | Mapsco: | |
| Neighborhood: | Cycle 3 | Map ID: | 403 |
| Neighborhood CD: | 3 |
Owner |
| Name: | BREEDEN, BETTY A | Owner ID: | 83611 |
| Mailing Address: | 1061 THELMA WAY GRANTS PASS, OR 97527 | % Ownership: | 100.0000000000% |
| | | Exemptions: | |
Taxes and Assessment Details
Values
| (+) Improvement Homesite Value: | + | $0 | |
| (+) Improvement Non-Homesite Value: | + | $215,556 | |
| (+) Land Homesite Value: | + | $0 | |
| (+) Land Non-Homesite Value: | + | $260,000 | |
| (+) Curr Use (HS): | + | $0 | $0 |
| (+) Curr Use (NHS): | + | $0 | $0 |
| | | -------------------------- | |
| (=) Market Value: | = | $475,556 | |
| (–) Productivity Loss: | – | $0 | |
| | | -------------------------- | |
| (=) Subtotal: | = | $475,556 | |
| (+) Senior Appraised Value: | + | $0 | |
| (+) Non-Senior Appraised Value: | + | $475,556 | |
| | | -------------------------- | |
| (=) Total Appraised Value: | = | $475,556 | |
| (–) Senior Exemption Loss: | – | $0 | |
| (–) Exemption Loss: | – | $0 | |
| | | -------------------------- | |
| (=) Taxable Value: | = | $475,556 | |
Taxing Jurisdiction
| Owner: | BREEDEN, BETTY A | | |
| % Ownership: | 100.0000000000% | | |
| Total Value: | $475,556 | | |
| Tax Area: | 310 - APPRAISER-Cpvl Schl Dist, outside Cpvl, improved & 1 acre or less |
| CF | Conservation Futures | 0.0316035091 | $475,556 | $475,556 | $15.03 | | |
| CEM2 | Cemetery #2 | 0.0095056933 | $475,556 | $475,556 | $4.52 | | |
| FIRE5 | Fire & Rescue Dist #5 C Whidbey GEN | 1.2008080668 | $475,556 | $475,556 | $571.05 | | |
| FIRE5BOND | Fire & Rescue Dist #5 C Whidbey BOND | 0.1400090713 | $475,556 | $475,556 | $66.58 | | |
| HOBOND | Hospital BOND | 0.1910887512 | $475,556 | $475,556 | $90.87 | | |
| HOGEN | Hospital GEN | 0.3902502903 | $475,556 | $475,556 | $185.59 | | |
| CE | County Current Expense | 0.3708482477 | $475,556 | $475,556 | $176.36 | | |
| CR | County Roads | 0.4584763726 | $475,556 | $475,556 | $218.03 | | |
| ISLANDEMS | Hospital GEN (EMS) | 0.5000000000 | $475,556 | $475,556 | $237.78 | | |
| LIB | Library Sno-Isle GEN | 0.3153421757 | $475,556 | $475,556 | $149.96 | | |
| LIBCAP | Library Sno-Isle BOND (Cap Fac Imp Area) | 0.0543427938 | $475,556 | $475,556 | $25.84 | | |
| POCOUP | Port of Coupeville GEN | 0.1093371703 | $475,556 | $475,556 | $52.00 | | |
| POCOUPIDD | Port of Coupeville IDD | 0.3409740022 | $475,556 | $475,556 | $162.15 | | |
| COUPSDTECH | School 204 CP (TECH) | 0.7545480007 | $475,556 | $475,556 | $358.83 | | |
| SCH204MO | School 204 Enrichment | 0.6716186034 | $475,556 | $475,556 | $319.39 | | |
| ST | State School | 1.3035497053 | $475,556 | $475,556 | $619.91 | | |
| ST2 | State School Part 2 | 0.8169543533 | $475,556 | $475,556 | $388.51 | | |
| | Total Tax Rate: | 7.6592568070 | | | | | |
| | | | | Taxes w/Current Exemptions: | $3,642.40 | | |
| | | | | Taxes w/o Exemptions: | $3,642.40 | | |
Improvement / Building
| Improvement #1: | RESIDENTIAL | State Code: | Y | 1397.6 sqft | Value: | $215,556 |
| Bathrooms: | 2 | Bedrooms: | 2 | | Ceiling: | BEAM PAINTED | Cooling: | HEAT PUMP/CONV/V | | Exterior Wall/Cover: | PLY/HARDBOARD T-111 | Floor Covering: | VINYL 100% | | Floor Structure: | WOOD W/SUBFLOOR | Foundation: | CONCRETE | | Interior Finish: | DRYWALL PAINT | Plumbing Fixture Cnt: | 9 | | Roof Slope: | 12" IN 12" | Roof Structure/Cover: | BEAM ALUMINUM HEAVY |
|
| | Type | Description | Class CD | Sub Class CD | Year Built | Area |
| | BAS | BASE/MAIN FLOOR | 3 | 0 | 1970 | 1253.6 |
| | OWP | OPEN WOOD PORCH W/STEPS | 3 | 0 | 1970 | 274.0 |
| | OWP | OPEN WOOD PORCH W/STEPS | 3 | 0 | 1970 | 36.2 |
| | LOF | LOFT | 3 | 0 | 1970 | 144.0 |
Sketch
Property Image
Land
| 1 | 16 | AC (00.51-01.00) | 0.0000 | 0.00 | 0.00 | 0.00 | 1.00 | $260,000 | $0 |
Roll Value History
| 2026 | N/A | N/A | N/A | N/A | N/A |
| 2025 | $215,556 | $260,000 | $0 | $475,556 | $475,556 |
| 2024 | $215,070 | $240,000 | $0 | $455,070 | $455,070 |
| 2023 | $172,550 | $240,000 | $0 | $412,550 | $412,550 |
| 2022 | $145,722 | $240,000 | $0 | $385,722 | $385,722 |
| 2021 | $128,443 | $140,000 | $0 | $268,443 | $268,443 |
| 2020 | $125,347 | $135,000 | $0 | $260,347 | $260,347 |
| 2019 | $84,356 | $190,000 | $0 | $274,356 | $274,356 |
| 2018 | $84,653 | $150,000 | $0 | $234,653 | $234,653 |
| 2017 | $79,690 | $135,000 | $0 | $214,690 | $214,690 |
| 2016 | $80,796 | $135,000 | $0 | $215,796 | $215,796 |
| 2015 | $81,904 | $125,000 | $0 | $206,904 | $206,904 |
| 2014 | $83,011 | $110,000 | $0 | $193,011 | $193,011 |
| 2013 | $82,124 | $113,050 | $0 | $195,174 | $195,174 |
| 2012 | $83,232 | $113,050 | $0 | $196,282 | $196,282 |
| 2011 | $84,338 | $133,000 | $0 | $217,338 | $217,338 |
| 2010 | $92,837 | $133,000 | $0 | $225,837 | $225,837 |
| 2009 | $96,856 | $160,000 | $0 | $256,856 | $256,856 |
| 2008 | $98,039 | $156,000 | $0 | $254,039 | $254,039 |
| 2007 | $95,402 | $156,000 | $0 | $251,402 | $251,402 |
Deed and Sales History
| 1 | 02/15/2005 | WD | Warranty Deed | NICHOLLS, DEBRA | BREEDEN, BETTY A | | | $240,000.00 | 50725 | 4126636 |
| 2 | 04/11/2003 | 5 | DNU - Marriage License/Name Change | NICHOLLS, DEBRA | NICHOLLS, DEBRA | | | $0.00 | 41333 | 4096345 |
| 3 | 05/13/1999 | WD | Warranty Deed | TUBBS, KENNETH A | NICHOLLS, DEBRA | | | $149,950.00 | 92194 | 99013556 |
| 4 | 09/01/1994 | QCD | Quit Claim Deed | TUBBS, KENNETH A | TUBBS, KENNETH A | | | $0.00 | 44145 | 94021379 |
| 5 | 07/01/1987 | WD | Warranty Deed | HADAWAY, EVELYN N | TUBBS, KENNETH A | | | $59,500.00 | 71928 | 87008928 |
| 6 | 01/01/1900 | OTHER | Other - Misc. Documents | Unknown | HADAWAY, EVELYN N | | | $0.00 | 0 | 0 |
Payout Agreement
| No payout information available.. |