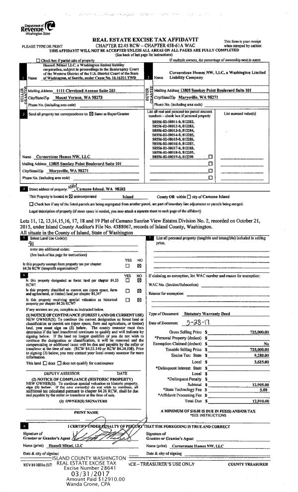
Property
Account |
| Property ID: | 654232 | Abbreviated Legal Description: | UTSALADY HTS #2 - PRD LOT 55 |
| Geographic ID: | S8353-02-00055-0 | Agent Code: | |
| Type: | Real | | |
| Tax Area: | 510 - APPRAISER-Stan/Cam Schl Dist, improved & 1 acre or less | Land Use Code | 11 |
| Open Space: | N | DFL | N |
| Historic Property: | N | Remodel Property: | N |
| Multi-Family Redevelopment: | N | | |
| Township: | | Section: | |
| Range: | |
Location |
| Address: | 20 CHATHAM PLACE CAMANO ISLAND, WA 98282 | Mapsco: | |
| Neighborhood: | North Camano | Map ID: | 559 |
| Neighborhood CD: | 06-C |
Owner |
| Name: | CLAWSON, TYLER | Owner ID: | 282811 |
| Mailing Address: | RONDA J CLAWSON 20 CHATHAM PLACE CAMANO ISLAND, WA 98282 | % Ownership: | 100.0000000000% |
| | | Exemptions: | |
Taxes and Assessment Details
Values
| (+) Improvement Homesite Value: | + | $0 | |
| (+) Improvement Non-Homesite Value: | + | $502,205 | |
| (+) Land Homesite Value: | + | $0 | |
| (+) Land Non-Homesite Value: | + | $350,000 | |
| (+) Curr Use (HS): | + | $0 | $0 |
| (+) Curr Use (NHS): | + | $0 | $0 |
| | | -------------------------- | |
| (=) Market Value: | = | $852,205 | |
| (–) Productivity Loss: | – | $0 | |
| | | -------------------------- | |
| (=) Subtotal: | = | $852,205 | |
| (+) Senior Appraised Value: | + | $0 | |
| (+) Non-Senior Appraised Value: | + | $852,205 | |
| | | -------------------------- | |
| (=) Total Appraised Value: | = | $852,205 | |
| (–) Senior Exemption Loss: | – | $0 | |
| (–) Exemption Loss: | – | $0 | |
| | | -------------------------- | |
| (=) Taxable Value: | = | $852,205 | |
Taxing Jurisdiction
| Owner: | CLAWSON, TYLER | | |
| % Ownership: | 100.0000000000% | | |
| Total Value: | $852,205 | | |
| Tax Area: | 510 - APPRAISER-Stan/Cam Schl Dist, improved & 1 acre or less |
| CF | Conservation Futures | 0.0316035091 | $852,205 | $852,205 | $26.93 | | |
| EMS1 | Fire & Rescue Dist #1 Camano GEN (EMS) | 0.3677864386 | $852,205 | $852,205 | $313.43 | | |
| FIRE1 | Fire & Rescue Dist #1 Camano GEN | 1.2502910536 | $852,205 | $852,205 | $1,065.50 | | |
| FIRE1BOND | Fire & Rescue Dist #1 Camano BOND | 0.1570001679 | $852,205 | $852,205 | $133.80 | | |
| CE | County Current Expense | 0.3708482477 | $852,205 | $852,205 | $316.04 | | |
| CR | County Roads | 0.4584763726 | $852,205 | $852,205 | $390.72 | | |
| LCIB | Library Sno-Isle BOND (Camano Island) | 0.0396325772 | $852,205 | $852,205 | $33.78 | | |
| LIB | Library Sno-Isle GEN | 0.3153421757 | $852,205 | $852,205 | $268.74 | | |
| SCH205_401 | School 205-401 Enrichment | 1.2698420524 | $852,205 | $852,205 | $1,082.17 | | |
| SCH205BOND | School 205-401 BOND | 0.9396497583 | $852,205 | $852,205 | $800.77 | | |
| ST | State School | 1.3035497053 | $852,205 | $852,205 | $1,110.89 | | |
| ST2 | State School Part 2 | 0.8169543533 | $852,205 | $852,205 | $696.21 | | |
| | Total Tax Rate: | 7.3209764117 | | | | | |
| | | | | Taxes w/Current Exemptions: | $6,238.98 | | |
| | | | | Taxes w/o Exemptions: | $6,238.98 | | |
Improvement / Building
| Improvement #1: | RESIDENTIAL | State Code: | Y | 2476.1 sqft | Value: | $502,205 |
| Bathrooms: | 2.5 | Bedrooms: | 3 | | Ceiling: | DRYWALL PAINTED | Exterior Wall/Cover: | CEMENT FIBER | | Floor Covering: | HARDWOOD/CARP 60-40 | Floor Structure: | WOOD W/SUBFLOOR | | Foundation: | CONCRETE | Heating: | FHA GAS | | Interior Finish: | DRYWALL PAINT | Plumbing Fixture Cnt: | 14 | | Roof Slope: | 5" IN 12" | Roof Structure/Cover: | CJ ASPHALT |
|
| | Type | Description | Class CD | Sub Class CD | Year Built | Area |
| | BAS | BASE/MAIN FLOOR | 4 | 0 | 2004 | 1470.7 |
| | AGR | ATTACHED GARAGE | 4 | 0 | 2004 | 303.8 |
| | BIG | BUILT IN GARAGE | 4 | 0 | 2004 | 200.2 |
| | UPS | UPPER STORY | 4 | 0 | 2004 | 1005.4 |
| | BAW | BALCONY WOOD RAIL | 4 | 0 | 2004 | 40.8 |
| | OWP | OPEN WOOD PORCH W/STEPS | 4 | 0 | 2004 | 200.0 |
| | OWC | OPEN WOOD PORCH W/STEPS/ROOF/C | 4 | 0 | 2004 | 36.5 |
| | OWC | OPEN WOOD PORCH W/STEPS/ROOF/C | 4 | 0 | 2004 | 70.0 |
Sketch
Property Image
Land
| 1 | 16 | AC (00.51-01.00) | 0.0000 | 0.00 | 0.00 | 0.00 | 1.00 | $350,000 | $0 |
Roll Value History
| 2026 | N/A | N/A | N/A | N/A | N/A |
| 2025 | $502,205 | $350,000 | $0 | $852,205 | $852,205 |
| 2024 | $508,029 | $300,000 | $0 | $808,029 | $808,029 |
| 2023 | $513,850 | $290,000 | $0 | $803,850 | $803,850 |
| 2022 | $368,740 | $280,000 | $0 | $648,740 | $648,740 |
| 2021 | $324,453 | $130,000 | $0 | $454,453 | $454,453 |
| 2020 | $316,270 | $130,000 | $0 | $446,270 | $446,270 |
| 2019 | $243,837 | $170,000 | $0 | $413,837 | $413,837 |
| 2018 | $244,536 | $150,000 | $0 | $394,536 | $394,536 |
| 2017 | $245,972 | $120,000 | $0 | $365,972 | $365,972 |
| 2016 | $253,632 | $115,000 | $0 | $368,632 | $368,632 |
| 2015 | $256,481 | $100,000 | $0 | $356,481 | $356,481 |
| 2014 | $259,331 | $85,000 | $0 | $344,331 | $344,331 |
| 2013 | $262,181 | $85,000 | $0 | $347,181 | $347,181 |
| 2012 | $265,030 | $66,400 | $0 | $331,430 | $331,430 |
| 2011 | $267,882 | $83,000 | $0 | $350,882 | $350,882 |
| 2010 | $325,400 | $83,000 | $0 | $408,400 | $408,400 |
| 2009 | $342,208 | $120,000 | $0 | $462,208 | $462,208 |
| 2008 | $342,451 | $110,000 | $0 | $452,451 | $452,451 |
| 2007 | $346,114 | $110,000 | $0 | $456,114 | $456,114 |
Deed and Sales History
| 1 | 10/16/2017 | BARGSLD | Bargain And Sale Deed | BANC OF AMERICA FUNDING CORP 2007-4 | CLAWSON, TYLER | | | $379,500.00 | 31815 | 4433602 |
| 2 | 04/07/2017 | TRUSTEED | Trustee's Deed | HOFSTAD, JEFFREY J | BANC OF AMERICA FUNDING CORP 2007-4 | | | $424,949.00 | 28823 | 4420459 |
| 3 | 04/11/2014 | DECREE | Divorce Decree/Legal Separation | HOFSTAD, JEFFERY J | HOFSTAD, JEFFREY J | | | $0.00 | 14896 | 4357884 |
| 4 | 01/25/2005 | WD | Warranty Deed | ALLGOOD, DAVID S | HOFSTAD, JEFFERY J | | | $350,000.00 | 50480 | 4125031 |
| 5 | 04/01/2002 | WD | Warranty Deed | MARSHALL, TED W | ALLGOOD, DAVID S | | | $65,000.00 | 21330 | 4016462 |
| 6 | 03/01/1995 | QCD | Quit Claim Deed | MARSHALL, TED W | MARSHALL, TED W | | | $0.00 | 51081 | 95006828 |
| 7 | 03/01/1995 | WD | Warranty Deed | HORNOR, E G | MARSHALL, TED W | | | $50,000.00 | 51080 | 95006827 |
| 8 | 07/01/1993 | WD | Warranty Deed | FORD, HOWARD E | HORNOR, E G | | | $54,000.00 | 32717 | 93014054 |
| 9 | 07/01/1992 | WD | Warranty Deed | UTSALADY, HEIGHTS | FORD, HOWARD E | | | $40,000.00 | 22803 | 92013667 |
| 10 | 01/01/1900 | OTHER | Other - Misc. Documents | Unknown | UTSALADY, HEIGHTS | | | $0.00 | 90220 | 89000782 |
Payout Agreement
| No payout information available.. |