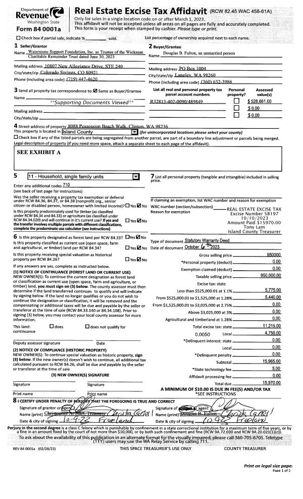
Property
Account |
| Property ID: | 654571 | Abbreviated Legal Description: | UTSALADY HTS #2 - PRD LOT 66 |
| Geographic ID: | S8353-02-00066-0 | Agent Code: | |
| Type: | Real | | |
| Tax Area: | 510 - APPRAISER-Stan/Cam Schl Dist, improved & 1 acre or less | Land Use Code | 11 |
| Open Space: | N | DFL | N |
| Historic Property: | N | Remodel Property: | N |
| Multi-Family Redevelopment: | N | | |
| Township: | | Section: | |
| Range: | |
Location |
| Address: | 871 MARSHALL RD CAMANO ISLAND, WA 98282 | Mapsco: | |
| Neighborhood: | North Camano | Map ID: | 559 |
| Neighborhood CD: | 06-C |
Owner |
| Name: | DEIGNAN, CHARLES F / MIYOKO | Owner ID: | 158359 |
| Mailing Address: | 871 MARSHALL DR CAMANO ISLAND, WA 98282-8723 | % Ownership: | 100.0000000000% |
| | | Exemptions: | |
Taxes and Assessment Details
Values
| (+) Improvement Homesite Value: | + | $0 | |
| (+) Improvement Non-Homesite Value: | + | $459,441 | |
| (+) Land Homesite Value: | + | $0 | |
| (+) Land Non-Homesite Value: | + | $350,000 | |
| (+) Curr Use (HS): | + | $0 | $0 |
| (+) Curr Use (NHS): | + | $0 | $0 |
| | | -------------------------- | |
| (=) Market Value: | = | $809,441 | |
| (–) Productivity Loss: | – | $0 | |
| | | -------------------------- | |
| (=) Subtotal: | = | $809,441 | |
| (+) Senior Appraised Value: | + | $0 | |
| (+) Non-Senior Appraised Value: | + | $809,441 | |
| | | -------------------------- | |
| (=) Total Appraised Value: | = | $809,441 | |
| (–) Senior Exemption Loss: | – | $0 | |
| (–) Exemption Loss: | – | $0 | |
| | | -------------------------- | |
| (=) Taxable Value: | = | $809,441 | |
Taxing Jurisdiction
| Owner: | DEIGNAN, CHARLES F / MIYOKO | | |
| % Ownership: | 100.0000000000% | | |
| Total Value: | $809,441 | | |
| Tax Area: | 510 - APPRAISER-Stan/Cam Schl Dist, improved & 1 acre or less |
| CF | Conservation Futures | 0.0316035091 | $809,441 | $809,441 | $25.58 | | |
| EMS1 | Fire & Rescue Dist #1 Camano GEN (EMS) | 0.3677864386 | $809,441 | $809,441 | $297.70 | | |
| FIRE1 | Fire & Rescue Dist #1 Camano GEN | 1.2502910536 | $809,441 | $809,441 | $1,012.04 | | |
| FIRE1BOND | Fire & Rescue Dist #1 Camano BOND | 0.1570001679 | $809,441 | $809,441 | $127.08 | | |
| CE | County Current Expense | 0.3708482477 | $809,441 | $809,441 | $300.18 | | |
| CR | County Roads | 0.4584763726 | $809,441 | $809,441 | $371.11 | | |
| LCIB | Library Sno-Isle BOND (Camano Island) | 0.0396325772 | $809,441 | $809,441 | $32.08 | | |
| LIB | Library Sno-Isle GEN | 0.3153421757 | $809,441 | $809,441 | $255.25 | | |
| SCH205_401 | School 205-401 Enrichment | 1.2698420524 | $809,441 | $809,441 | $1,027.86 | | |
| SCH205BOND | School 205-401 BOND | 0.9396497583 | $809,441 | $809,441 | $760.59 | | |
| ST | State School | 1.3035497053 | $809,441 | $809,441 | $1,055.15 | | |
| ST2 | State School Part 2 | 0.8169543533 | $809,441 | $809,441 | $661.28 | | |
| | Total Tax Rate: | 7.3209764117 | | | | | |
| | | | | Taxes w/Current Exemptions: | $5,925.90 | | |
| | | | | Taxes w/o Exemptions: | $5,925.90 | | |
Improvement / Building
| Improvement #1: | RESIDENTIAL | State Code: | Y | 2594.7 sqft | Value: | $459,441 |
| Bathrooms: | 2.5 | Bedrooms: | 4 | | Ceiling: | DRYWALL PAINTED | Cooling: | HEAT PUMP/CONV/V | | Exterior Wall/Cover: | PLY/HARDBOARD T-111 | Floor Covering: | HARDWOOD/CARP 20-80 | | Floor Structure: | WOOD W/SUBFLOOR | Foundation: | CONCRETE | | Interior Finish: | DRYWALL PAINT | Plumbing Fixture Cnt: | 13 | | Roof Slope: | 6" IN 12" | Roof Structure/Cover: | CJ ASPHALT |
|
| | Type | Description | Class CD | Sub Class CD | Year Built | Area |
| | BAS | BASE/MAIN FLOOR | 4 | 0 | 1995 | 1474.7 |
| | OP4 | OPEN PORCH W/CEILING-ROOF | 4 | 0 | 1995 | 161.7 |
| | AGR | ATTACHED GARAGE | 4 | 0 | 1995 | 155.4 |
| | BIG | BUILT IN GARAGE | 4 | 0 | 1995 | 680.8 |
| | UPS | UPPER STORY | 4 | 0 | 1995 | 1120.0 |
| | OWP | OPEN WOOD PORCH W/STEPS | 4 | 0 | 1995 | 446.6 |
Sketch
Property Image
Land
| 1 | 16 | AC (00.51-01.00) | 0.0000 | 0.00 | 0.00 | 0.00 | 1.00 | $350,000 | $0 |
Roll Value History
| 2026 | N/A | N/A | N/A | N/A | N/A |
| 2025 | $459,441 | $350,000 | $0 | $809,441 | $809,441 |
| 2024 | $465,239 | $300,000 | $0 | $765,239 | $765,239 |
| 2023 | $471,037 | $290,000 | $0 | $761,037 | $761,037 |
| 2022 | $410,781 | $280,000 | $0 | $690,781 | $690,781 |
| 2021 | $361,755 | $130,000 | $0 | $491,755 | $491,755 |
| 2020 | $353,016 | $130,000 | $0 | $483,016 | $483,016 |
| 2019 | $265,091 | $170,000 | $0 | $435,091 | $435,091 |
| 2018 | $265,907 | $150,000 | $0 | $415,907 | $415,907 |
| 2017 | $253,576 | $120,000 | $0 | $373,576 | $373,576 |
| 2016 | $257,460 | $115,000 | $0 | $372,460 | $372,460 |
| 2015 | $260,561 | $100,000 | $0 | $360,561 | $360,561 |
| 2014 | $263,664 | $85,000 | $0 | $348,664 | $348,664 |
| 2013 | $266,766 | $85,000 | $0 | $351,766 | $351,766 |
| 2012 | $269,868 | $66,400 | $0 | $336,268 | $336,268 |
| 2011 | $272,970 | $83,000 | $0 | $355,970 | $355,970 |
| 2010 | $318,972 | $103,230 | $0 | $422,202 | $422,202 |
| 2009 | $340,082 | $190,000 | $0 | $530,082 | $530,082 |
| 2008 | $344,286 | $90,000 | $0 | $434,286 | $434,286 |
| 2007 | $348,492 | $90,000 | $0 | $438,492 | $438,492 |
Deed and Sales History
| 1 | 12/01/1997 | WD | Warranty Deed | BRAYTON, TERRY A | DEIGNAN, CHARLES F | | | $289,000.00 | 74433 | 97021268 |
| 2 | 12/01/1994 | WD | Warranty Deed | UTSALADY, HEIGHTS J | BRAYTON, TERRY A | | | $49,500.00 | 44944 | 94025187 |
| 3 | 01/01/1900 | OTHER | Other - Misc. Documents | Unknown | UTSALADY, HEIGHTS J | | | $0.00 | 90220 | 89000782 |
Payout Agreement
| No payout information available.. |