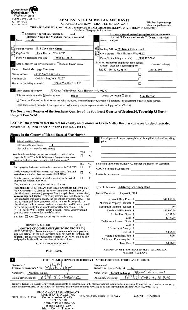
Property
Account |
| Property ID: | 654633 | Abbreviated Legal Description: | UTSALADY HTS #2 - PRD LOT 72 |
| Geographic ID: | S8353-02-00072-0 | Agent Code: | |
| Type: | Real | | |
| Tax Area: | 510 - APPRAISER-Stan/Cam Schl Dist, improved & 1 acre or less | Land Use Code | 11 |
| Open Space: | N | DFL | N |
| Historic Property: | N | Remodel Property: | N |
| Multi-Family Redevelopment: | N | | |
| Township: | | Section: | |
| Range: | |
Location |
| Address: | 919 MARSHALL RD CAMANO ISLAND, WA 98282 | Mapsco: | |
| Neighborhood: | North Camano | Map ID: | 559 |
| Neighborhood CD: | 06-C |
Owner |
| Name: | SHIRLEY, CHARLES | Owner ID: | 286187 |
| Mailing Address: | KELSEY RUTLEDGE PO BOX 1207 STANWOOD, WA 98292 | % Ownership: | 100.0000000000% |
| | | Exemptions: | |
Taxes and Assessment Details
Values
| (+) Improvement Homesite Value: | + | $0 | |
| (+) Improvement Non-Homesite Value: | + | $391,627 | |
| (+) Land Homesite Value: | + | $0 | |
| (+) Land Non-Homesite Value: | + | $430,000 | |
| (+) Curr Use (HS): | + | $0 | $0 |
| (+) Curr Use (NHS): | + | $0 | $0 |
| | | -------------------------- | |
| (=) Market Value: | = | $821,627 | |
| (–) Productivity Loss: | – | $0 | |
| | | -------------------------- | |
| (=) Subtotal: | = | $821,627 | |
| (+) Senior Appraised Value: | + | $0 | |
| (+) Non-Senior Appraised Value: | + | $821,627 | |
| | | -------------------------- | |
| (=) Total Appraised Value: | = | $821,627 | |
| (–) Senior Exemption Loss: | – | $0 | |
| (–) Exemption Loss: | – | $0 | |
| | | -------------------------- | |
| (=) Taxable Value: | = | $821,627 | |
Taxing Jurisdiction
| Owner: | SHIRLEY, CHARLES | | |
| % Ownership: | 100.0000000000% | | |
| Total Value: | $821,627 | | |
| Tax Area: | 510 - APPRAISER-Stan/Cam Schl Dist, improved & 1 acre or less |
| CF | Conservation Futures | 0.0316035091 | $821,627 | $821,627 | $25.97 | | |
| EMS1 | Fire & Rescue Dist #1 Camano GEN (EMS) | 0.3677864386 | $821,627 | $821,627 | $302.18 | | |
| FIRE1 | Fire & Rescue Dist #1 Camano GEN | 1.2502910536 | $821,627 | $821,627 | $1,027.27 | | |
| FIRE1BOND | Fire & Rescue Dist #1 Camano BOND | 0.1570001679 | $821,627 | $821,627 | $129.00 | | |
| CE | County Current Expense | 0.3708482477 | $821,627 | $821,627 | $304.70 | | |
| CR | County Roads | 0.4584763726 | $821,627 | $821,627 | $376.70 | | |
| LCIB | Library Sno-Isle BOND (Camano Island) | 0.0396325772 | $821,627 | $821,627 | $32.56 | | |
| LIB | Library Sno-Isle GEN | 0.3153421757 | $821,627 | $821,627 | $259.09 | | |
| SCH205_401 | School 205-401 Enrichment | 1.2698420524 | $821,627 | $821,627 | $1,043.34 | | |
| SCH205BOND | School 205-401 BOND | 0.9396497583 | $821,627 | $821,627 | $772.04 | | |
| ST | State School | 1.3035497053 | $821,627 | $821,627 | $1,071.03 | | |
| ST2 | State School Part 2 | 0.8169543533 | $821,627 | $821,627 | $671.23 | | |
| | Total Tax Rate: | 7.3209764117 | | | | | |
| | | | | Taxes w/Current Exemptions: | $6,015.11 | | |
| | | | | Taxes w/o Exemptions: | $6,015.11 | | |
Improvement / Building
| Improvement #1: | RESIDENTIAL | State Code: | Y | 2606.5 sqft | Value: | $391,627 |
| Bathrooms: | 2.5 | Bedrooms: | 3 | | Ceiling: | DRYWALL PAINTED | Exterior Wall/Cover: | CEMENT FIBER | | Floor Covering: | HARDWOOD/CARP 20-80 | Floor Structure: | WOOD W/SUBFLOOR | | Foundation: | CONCRETE | Heating: | FHA GAS | | Interior Finish: | DRYWALL PAINT | Plumbing Fixture Cnt: | 11 | | Roof Slope: | 5" IN 12" | Roof Structure/Cover: | CJ ASPHALT |
|
| | Type | Description | Class CD | Sub Class CD | Year Built | Area |
| | BAS | BASE/MAIN FLOOR | 3 | 0 | 1996 | 1557.9 |
| | OP4 | OPEN PORCH W/CEILING-ROOF | 3 | 0 | 1996 | 147.9 |
| | AGR | ATTACHED GARAGE | 3 | 0 | 1996 | 540.5 |
| | OWP | OPEN WOOD PORCH W/STEPS | 3 | 0 | 1996 | 250.8 |
| | DWN | DOWNSTAIRS LIVING AREA | 3 | 0 | 1996 | 1048.6 |
Sketch
Property Image
Land
| 1 | 16 | AC (00.51-01.00) | 0.0000 | 0.00 | 0.00 | 0.00 | 1.00 | $430,000 | $0 |
Roll Value History
| 2026 | N/A | N/A | N/A | N/A | N/A |
| 2025 | $391,627 | $430,000 | $0 | $821,627 | $821,627 |
| 2024 | $396,275 | $430,000 | $0 | $826,275 | $826,275 |
| 2023 | $400,925 | $430,000 | $0 | $830,925 | $830,925 |
| 2022 | $356,741 | $290,000 | $0 | $646,741 | $646,741 |
| 2021 | $313,886 | $200,000 | $0 | $513,886 | $513,886 |
| 2020 | $306,439 | $190,000 | $0 | $496,439 | $496,439 |
| 2019 | $240,766 | $230,000 | $0 | $470,766 | $470,766 |
| 2018 | $241,455 | $150,000 | $0 | $391,455 | $391,455 |
| 2017 | $242,826 | $120,000 | $0 | $362,826 | $362,826 |
| 2016 | $243,465 | $115,000 | $0 | $358,465 | $358,465 |
| 2015 | $228,416 | $100,000 | $0 | $328,416 | $328,416 |
| 2014 | $231,201 | $85,000 | $0 | $316,201 | $316,201 |
| 2013 | $233,987 | $85,000 | $0 | $318,987 | $318,987 |
| 2012 | $236,771 | $66,400 | $0 | $303,171 | $303,171 |
| 2011 | $239,557 | $83,000 | $0 | $322,557 | $322,557 |
| 2010 | $249,927 | $83,000 | $0 | $332,927 | $332,927 |
| 2009 | $260,657 | $120,000 | $0 | $380,657 | $380,657 |
| 2008 | $263,838 | $110,000 | $0 | $373,838 | $373,838 |
| 2007 | $266,978 | $110,000 | $0 | $376,978 | $376,978 |
Deed and Sales History
| 1 | 07/24/2018 | WD | Warranty Deed | THALHEIMER SR, DERICK S | SHIRLEY, CHARLES | | | $483,000.00 | 35185 | 4448791 |
| 2 | 05/28/2015 | WD | Warranty Deed | PHILLIPS, RICHARD / CYNTHIA L | THALHEIMER SR, DERICK S | | | $365,000.00 | 19747 | 4379198 |
| 3 | 04/01/1997 | WD | Warranty Deed | G, A P | PHILLIPS, RICHARD/CYNTHIA L | | | $194,000.00 | 71212 | 97005442 |
| 4 | 03/01/1996 | WD | Warranty Deed | NELSON, AND B | G, A P | | | $45,000.00 | 60937 | 96004912 |
| 5 | 03/01/1996 | WD | Warranty Deed | G, A P | G, A P | | | $0.00 | 64302 | 96020990 |
| 6 | 02/01/1995 | OTHER | Other - Misc. Documents | NELSON, AND B | NELSON, AND B | | | $0.00 | 66266 | 95002439 |
| 7 | 01/01/1994 | WD | Warranty Deed | UTSALADY, HEIGHTS | NELSON, AND B | | | $37,600.00 | 40262 | 94001587 |
| 8 | 01/01/1900 | OTHER | Other - Misc. Documents | Unknown | UTSALADY, HEIGHTS | | | $0.00 | 90220 | 89000782 |
Payout Agreement
| No payout information available.. |