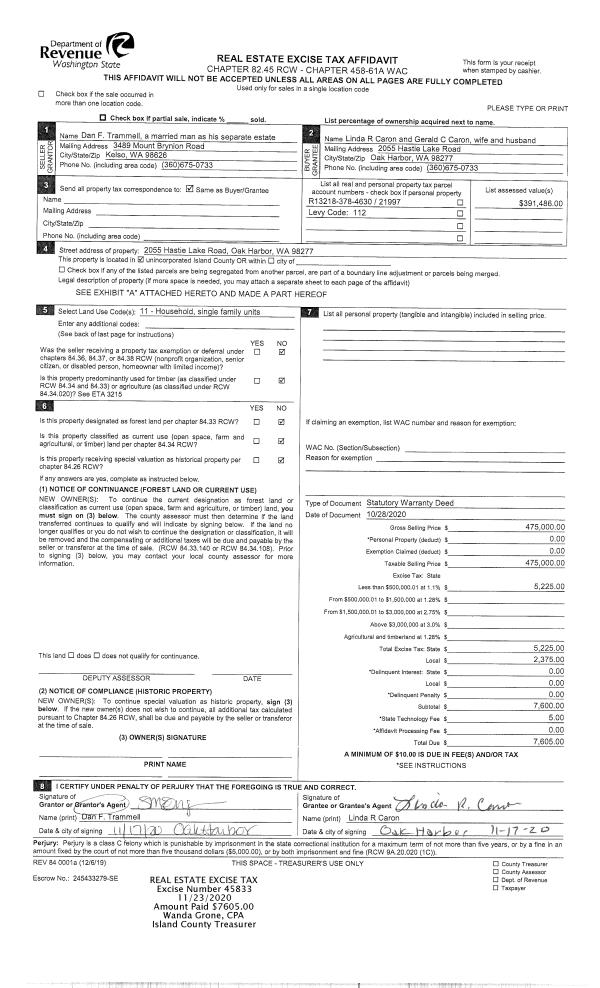
Property
Account |
| Property ID: | 654875 | Abbreviated Legal Description: | 1990 GLENRIVER 27X52 VIN# GR3885XY TPO &009378 |
| Geographic ID: | M918500000330 | Agent Code: | |
| Type: | Mobile Home | | |
| Tax Area: | 710 - APPRAISER-S Whid Schl Dist, outside Langley, improved & 1 acre or less | Land Use Code | 11 |
| Open Space: | N | DFL | N |
| Historic Property: | N | Remodel Property: | N |
| Multi-Family Redevelopment: | N | | |
| Township: | | Section: | |
| Range: | |
Location |
| Address: | 4920 WHEEL DR LANGLEY, WA 98260 | Mapsco: | |
| Neighborhood: | Cycle 4 | Map ID: | 735 |
| Neighborhood CD: | 4 |
Owner |
| Name: | PACK, CARLIE R / CATHERINE | Owner ID: | 162939 |
| Mailing Address: | 4920 WHEEL DR LANGLEY, WA 98260-9776 | % Ownership: | 100.0000000000% |
| | | Exemptions: | |
Taxes and Assessment Details
Values
| (+) Improvement Homesite Value: | + | $0 | |
| (+) Improvement Non-Homesite Value: | + | $133,833 | |
| (+) Land Homesite Value: | + | $0 | |
| (+) Land Non-Homesite Value: | + | $0 | |
| (+) Curr Use (HS): | + | $0 | $0 |
| (+) Curr Use (NHS): | + | $0 | $0 |
| | | -------------------------- | |
| (=) Market Value: | = | $133,833 | |
| (–) Productivity Loss: | – | $0 | |
| | | -------------------------- | |
| (=) Subtotal: | = | $133,833 | |
| (+) Senior Appraised Value: | + | $0 | |
| (+) Non-Senior Appraised Value: | + | $133,833 | |
| | | -------------------------- | |
| (=) Total Appraised Value: | = | $133,833 | |
| (–) Senior Exemption Loss: | – | $0 | |
| (–) Exemption Loss: | – | $0 | |
| | | -------------------------- | |
| (=) Taxable Value: | = | $133,833 | |
Taxing Jurisdiction
| Owner: | PACK, CARLIE R / CATHERINE | | |
| % Ownership: | 100.0000000000% | | |
| Total Value: | $133,833 | | |
| Tax Area: | 710 - APPRAISER-S Whid Schl Dist, outside Langley, improved & 1 acre or less |
| CF | Conservation Futures | 0.0316035091 | $133,833 | $133,833 | $4.23 | | |
| FIRE3 | Fire & Rescue Dist #3 S Whidbey GEN | 1.2004855531 | $133,833 | $133,833 | $160.66 | | |
| HOBOND | Hospital BOND | 0.1910887512 | $133,833 | $133,833 | $25.57 | | |
| HOGEN | Hospital GEN | 0.3902502903 | $133,833 | $133,833 | $52.23 | | |
| CE | County Current Expense | 0.3708482477 | $133,833 | $133,833 | $49.63 | | |
| CR | County Roads | 0.4584763726 | $133,833 | $133,833 | $61.36 | | |
| ISLANDEMS | Hospital GEN (EMS) | 0.5000000000 | $133,833 | $133,833 | $66.92 | | |
| LIB | Library Sno-Isle GEN | 0.3153421757 | $133,833 | $133,833 | $42.20 | | |
| PORTWHID | Port of S Whidbey GEN | 0.1094540357 | $133,833 | $133,833 | $14.65 | | |
| SCH206BOND | School 206 BOND | 0.3161759235 | $133,833 | $133,833 | $42.31 | | |
| SCH206MO | School 206 Enrichment | 0.4547169547 | $133,833 | $133,833 | $60.86 | | |
| ST | State School | 1.3035497053 | $133,833 | $133,833 | $174.46 | | |
| ST2 | State School Part 2 | 0.8169543533 | $133,833 | $133,833 | $109.34 | | |
| SWHIDPRBD | P & R S Whidbey BOND | 0.0152817568 | $133,833 | $133,833 | $2.05 | | |
| SWHIDPRBD2 | P & R S Whidbey BOND2 | 0.0138911264 | $133,833 | $133,833 | $1.86 | | |
| SWHIDPRMT | P & R S Whidbey GEN | 0.2053334452 | $133,833 | $133,833 | $27.48 | | |
| | Total Tax Rate: | 6.6934522006 | | | | | |
| | | | | Taxes w/Current Exemptions: | $895.81 | | |
| | | | | Taxes w/o Exemptions: | $895.81 | | |
Improvement / Building
| Improvement #1: | MANUFACTURED HOME | State Code: | Y | 1352.0 sqft | Value: | $133,833 |
| Bathrooms: | 2 | Bedrooms: | 3 | | Ceiling: | PLASTER PAINTED | Cooling: | EVAP NO DUCT | | Exterior Wall/Cover: | VINYL | Floor Covering: | CARPET 100% | | Floor Structure: | SLAB ON GRADE | Foundation: | SLAB | | Heating: | FHA ELECTRIC | Interior Finish: | PLASTER | | Plumbing Fixture Cnt: | 1 | Roof Slope: | FLAT | | Roof Structure/Cover: | CJ ALUMINIUM HEAVY |   |   |
|
| | Type | Description | Class CD | Sub Class CD | Year Built | Area |
| | BAS | BASE/MAIN FLOOR | 4 | 0 | 1990 | 1352.0 |
| | OCP | OPEN CARPORT | 4 | 0 | 1990 | 360.0 |
| | OWR | OPEN WOOD PORCH W/STEPS/ROOF | 4 | 0 | 1990 | 80.0 |
Sketch
Property Image
Land
No land segments exist for this property.
Roll Value History
| 2026 | N/A | N/A | N/A | N/A | N/A |
| 2025 | $133,833 | $0 | $0 | $133,833 | $133,833 |
| 2024 | $137,769 | $0 | $0 | $137,769 | $137,769 |
| 2023 | $87,287 | $0 | $0 | $87,287 | $87,287 |
| 2022 | $80,139 | $0 | $0 | $80,139 | $80,139 |
| 2021 | $71,590 | $0 | $0 | $71,590 | $71,590 |
| 2020 | $57,456 | $0 | $0 | $57,456 | $57,456 |
| 2019 | $46,720 | $0 | $0 | $46,720 | $46,720 |
| 2018 | $48,181 | $0 | $0 | $48,181 | $48,181 |
| 2017 | $49,640 | $0 | $0 | $49,640 | $49,640 |
| 2016 | $51,100 | $0 | $0 | $51,100 | $51,100 |
| 2015 | $52,560 | $0 | $0 | $52,560 | $52,560 |
| 2014 | $59,293 | $0 | $0 | $59,293 | $59,293 |
| 2013 | $60,851 | $0 | $0 | $60,851 | $60,851 |
| 2012 | $62,409 | $0 | $0 | $62,409 | $62,409 |
| 2011 | $63,967 | $0 | $0 | $63,967 | $63,967 |
| 2010 | $65,777 | $0 | $0 | $65,777 | $65,777 |
| 2009 | $69,431 | $0 | $0 | $69,431 | $69,431 |
| 2008 | $69,864 | $0 | $0 | $69,864 | $69,864 |
| 2007 | $53,455 | $0 | $0 | $53,455 | $53,455 |
Deed and Sales History
| 1 | 08/01/1990 | OTHER | Other - Misc. Documents | Unknown | PACK, CARLIE R | | | $55,815.00 | 11111111 | 0 |
Payout Agreement
| No payout information available.. |