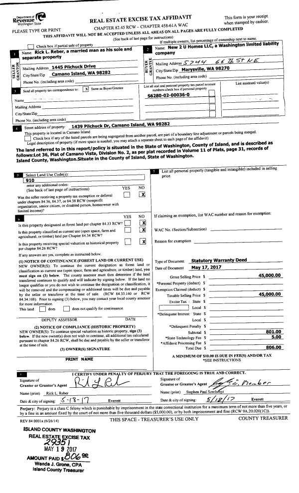
Property
Account |
| Property ID: | 654955 | Abbreviated Legal Description: | BIRCH TREE CONDO UNIT 5B 3.125% INT |
| Geographic ID: | S6137-00-0005B-0 | Agent Code: | |
| Type: | Real | | |
| Tax Area: | 100 - APPRAISER-OH Schl Dist, in OH | Land Use Code | 14 |
| Open Space: | N | DFL | N |
| Historic Property: | N | Remodel Property: | N |
| Multi-Family Redevelopment: | N | | |
| Township: | | Section: | |
| Range: | |
Location |
| Address: | 1250 SW HELLER ST UNIT H2 OAK HARBOR, WA 98277 | Mapsco: | |
| Neighborhood: | 11*OH-birchtree | Map ID: | 90 |
| Neighborhood CD: | 11*OHbrcht |
Owner |
| Name: | BYERS, JANELLE | Owner ID: | 306811 |
| Mailing Address: | 1250 SW HELLER ST UNIT H2 OAK HARBOR, WA 98277 | % Ownership: | 100.0000000000% |
| | | Exemptions: | |
Taxes and Assessment Details
Values
| (+) Improvement Homesite Value: | + | $0 | |
| (+) Improvement Non-Homesite Value: | + | $234,145 | |
| (+) Land Homesite Value: | + | $0 | |
| (+) Land Non-Homesite Value: | + | $120,000 | |
| (+) Curr Use (HS): | + | $0 | $0 |
| (+) Curr Use (NHS): | + | $0 | $0 |
| | | -------------------------- | |
| (=) Market Value: | = | $354,145 | |
| (–) Productivity Loss: | – | $0 | |
| | | -------------------------- | |
| (=) Subtotal: | = | $354,145 | |
| (+) Senior Appraised Value: | + | $0 | |
| (+) Non-Senior Appraised Value: | + | $354,145 | |
| | | -------------------------- | |
| (=) Total Appraised Value: | = | $354,145 | |
| (–) Senior Exemption Loss: | – | $0 | |
| (–) Exemption Loss: | – | $0 | |
| | | -------------------------- | |
| (=) Taxable Value: | = | $354,145 | |
Taxing Jurisdiction
| Owner: | BYERS, JANELLE | | |
| % Ownership: | 100.0000000000% | | |
| Total Value: | $354,145 | | |
| Tax Area: | 100 - APPRAISER-OH Schl Dist, in OH |
| CF | Conservation Futures | 0.0316035091 | $354,145 | $354,145 | $11.19 | | |
| CEM1 | Cemetery #1 | 0.0040320932 | $354,145 | $354,145 | $1.43 | | |
| COH | City of Oak Harbor | 2.3001546061 | $354,145 | $354,145 | $814.59 | | |
| OAKBOND | City of Oak Harbor BOND | 0.1926904192 | $354,145 | $354,145 | $68.24 | | |
| HOBOND | Hospital BOND | 0.1910887512 | $354,145 | $354,145 | $67.67 | | |
| HOGEN | Hospital GEN | 0.3902502903 | $354,145 | $354,145 | $138.21 | | |
| CE | County Current Expense | 0.3708482477 | $354,145 | $354,145 | $131.33 | | |
| ISLANDEMS | Hospital GEN (EMS) | 0.5000000000 | $354,145 | $354,145 | $177.07 | | |
| LIB | Library Sno-Isle GEN | 0.3153421757 | $354,145 | $354,145 | $111.68 | | |
| NWHIDPRMT | P & R N Whidbey GEN | 0.2004466701 | $354,145 | $354,145 | $70.99 | | |
| SCH201MO | School 201 Enrichment | 1.8559231640 | $354,145 | $354,145 | $657.27 | | |
| ST | State School | 1.3035497053 | $354,145 | $354,145 | $461.65 | | |
| ST2 | State School Part 2 | 0.8169543533 | $354,145 | $354,145 | $289.32 | | |
| | Total Tax Rate: | 8.4728839852 | | | | | |
| | | | | Taxes w/Current Exemptions: | $3,000.64 | | |
| | | | | Taxes w/o Exemptions: | $3,000.64 | | |
Improvement / Building
| Improvement #1: | RESIDENTIAL | State Code: | Y | 1361.0 sqft | Value: | $234,145 |
| Bathrooms: | 2.5 | Bedrooms: | 3 | | Ceiling: | DRYWALL PAINTED | Exterior Wall/Cover: | CEMENT FIBER | | Floor Covering: | CARPET/VINYL 80-20 | Floor Structure: | WOOD W/SUBFLOOR | | Foundation: | CONCRETE | Heating: | FHA GAS | | Interior Finish: | DRYWALL PAINT | Plumbing Fixture Cnt: | 11 | | Roof Slope: | 8" IN 12" | Roof Structure/Cover: | CJ ASPHALT |
|
| | Type | Description | Class CD | Sub Class CD | Year Built | Area |
| | BAS | BASE/MAIN FLOOR | 3 | 0 | 1991 | 635.0 |
| | AGR | ATTACHED GARAGE | 3 | 0 | 1991 | 276.0 |
| | UPS | UPPER STORY | 3 | 0 | 1991 | 726.0 |
| | OWP | OPEN WOOD PORCH W/STEPS | 3 | 0 | 1991 | 88.0 |
| | OWC | OPEN WOOD PORCH W/STEPS/ROOF/C | 3 | 0 | 1991 | 49.0 |
| | oPV1 | PV/ASPH 2" | 3 | 0 | 1991 | 0.0 |
Sketch
Property Image
Land
| 1 | 61 | MULTIPLE RESIDENCES | 0.0817 | 3557.31 | 0.00 | 0.00 | 1.00 | $120,000 | $0 |
Roll Value History
| 2026 | N/A | N/A | N/A | N/A | N/A |
| 2025 | $234,145 | $120,000 | $0 | $354,145 | $354,145 |
| 2024 | $237,015 | $120,000 | $0 | $357,015 | $357,015 |
| 2023 | $228,405 | $120,000 | $0 | $348,405 | $348,405 |
| 2022 | $209,516 | $120,000 | $0 | $329,516 | $329,516 |
| 2021 | $184,583 | $65,000 | $0 | $249,583 | $249,583 |
| 2020 | $179,484 | $53,000 | $0 | $232,484 | $232,484 |
| 2019 | $126,760 | $90,000 | $0 | $216,760 | $216,760 |
| 2018 | $127,137 | $65,000 | $0 | $192,137 | $192,137 |
| 2017 | $112,124 | $55,851 | $0 | $167,975 | $167,975 |
| 2016 | $113,636 | $55,851 | $0 | $169,487 | $169,487 |
| 2015 | $115,146 | $55,851 | $0 | $170,997 | $170,997 |
| 2014 | $116,657 | $55,851 | $0 | $172,508 | $172,508 |
| 2013 | $118,168 | $55,851 | $0 | $174,019 | $174,019 |
| 2012 | $115,361 | $55,851 | $0 | $171,212 | $171,212 |
| 2011 | $115,361 | $55,851 | $0 | $171,212 | $171,212 |
| 2010 | $123,171 | $55,851 | $0 | $179,022 | $179,022 |
| 2009 | $128,329 | $69,034 | $0 | $197,363 | $197,363 |
| 2008 | $129,797 | $69,034 | $0 | $198,831 | $198,831 |
| 2007 | $131,265 | $69,034 | $0 | $200,299 | $200,299 |
Deed and Sales History
| 1 | 11/21/2022 | WD | Warranty Deed | NORMAN, JODY-LEE | BYERS, JANELLE | | | $355,000.00 | 55284 | 4554395 |
| 2 | 02/21/2019 | WD | Warranty Deed | MARTIN, BRANDON W | NORMAN, JODY-LEE | | | $237,500.00 | 37665 | 4459615 |
| 3 | 05/09/2016 | WD | Warranty Deed | SAKAMOTO, BRYCE YOSHIO | MARTIN, BRANDON W | | | $215,000.00 | 24384 | 4399616 |
| 4 | 05/07/2007 | WD | Warranty Deed | GAGNON, RODRIC R | SAKAMOTO, BRYCE YOSHIO | | | $214,000.00 | 71557 | 4201734 |
| 5 | 05/11/2005 | WD | Warranty Deed | EISENHOUR, BRIAN J | GAGNON, RODRIC R | | | $149,500.00 | 52120 | 4134200 |
| 6 | 06/21/2002 | WD | Warranty Deed | EISENHOUR, BRIAN J | EISENHOUR, BRIAN J | | | $117,500.00 | 22602 | 4024908 |
| 7 | 04/01/2002 | WD | Warranty Deed | CROXSON, ROBERT D | EISENHOUR, BRIAN J | | | $117,500.00 | 22548 | 4024522 |
| 8 | 08/01/1994 | WD | Warranty Deed | WOOD, TIMOTHY E | CROXSON, ROBERT D | | | $111,000.00 | 43427 | 94018252 |
| 9 | 07/01/1993 | WD | Warranty Deed | CAVE, KENNETH L | WOOD, TIMOTHY E | | | $94,500.00 | 32779 | 93014384 |
| 10 | 01/01/1900 | OTHER | Other - Misc. Documents | Unknown | CAVE, KENNETH L | | | $0.00 | 3904 | 376594 |
Payout Agreement
| No payout information available.. |