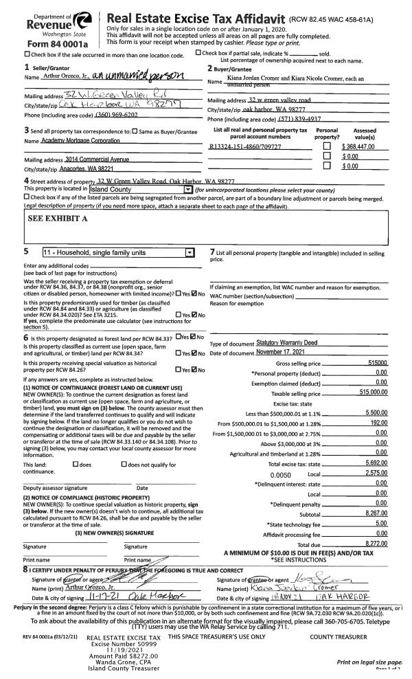
Property
Account |
| Property ID: | 656267 | Abbreviated Legal Description: | IN GL 3: BG SWCR GL 3 N88*E 375' N1*W53.10'TPB N1*W125' N88*E TO ML SLY ALG ML 125' M/L TP N88*E OF TPB S88*W TPB TGW & SUB EZS FR 009-0550 & 015-0540 |
| Geographic ID: | R32901-011-0500 | Agent Code: | |
| Type: | Real | | |
| Tax Area: | 710 - APPRAISER-S Whid Schl Dist, outside Langley, improved & 1 acre or less | Land Use Code | 11 |
| Open Space: | N | DFL | N |
| Historic Property: | N | Remodel Property: | N |
| Multi-Family Redevelopment: | N | | |
| Township: | 29 | Section: | 01 |
| Range: | R3 |
Location |
| Address: | 5173 WITTER BEACH PLACE LANGLEY, WA 98260 | Mapsco: | |
| Neighborhood: | Cycle 4 | Map ID: | 717 |
| Neighborhood CD: | 4 |
Owner |
| Name: | NOLAN, SEAN P | Owner ID: | 277161 |
| Mailing Address: | LARA NOLAN 5173 WITTER BEACH PLACE LANGLEY, WA 98260 | % Ownership: | 100.0000000000% |
| | | Exemptions: | |
Taxes and Assessment Details
Values
| (+) Improvement Homesite Value: | + | $0 | |
| (+) Improvement Non-Homesite Value: | + | $720,701 | |
| (+) Land Homesite Value: | + | $0 | |
| (+) Land Non-Homesite Value: | + | $775,000 | |
| (+) Curr Use (HS): | + | $0 | $0 |
| (+) Curr Use (NHS): | + | $0 | $0 |
| | | -------------------------- | |
| (=) Market Value: | = | $1,495,701 | |
| (–) Productivity Loss: | – | $0 | |
| | | -------------------------- | |
| (=) Subtotal: | = | $1,495,701 | |
| (+) Senior Appraised Value: | + | $0 | |
| (+) Non-Senior Appraised Value: | + | $1,495,701 | |
| | | -------------------------- | |
| (=) Total Appraised Value: | = | $1,495,701 | |
| (–) Senior Exemption Loss: | – | $0 | |
| (–) Exemption Loss: | – | $0 | |
| | | -------------------------- | |
| (=) Taxable Value: | = | $1,495,701 | |
Taxing Jurisdiction
| Owner: | NOLAN, SEAN P | | |
| % Ownership: | 100.0000000000% | | |
| Total Value: | $1,495,701 | | |
| Tax Area: | 710 - APPRAISER-S Whid Schl Dist, outside Langley, improved & 1 acre or less |
| CF | Conservation Futures | 0.0316035091 | $1,495,701 | $1,495,701 | $47.27 | | |
| FIRE3 | Fire & Rescue Dist #3 S Whidbey GEN | 1.2004855531 | $1,495,701 | $1,495,701 | $1,795.57 | | |
| HOBOND | Hospital BOND | 0.1910887512 | $1,495,701 | $1,495,701 | $285.81 | | |
| HOGEN | Hospital GEN | 0.3902502903 | $1,495,701 | $1,495,701 | $583.70 | | |
| CE | County Current Expense | 0.3708482477 | $1,495,701 | $1,495,701 | $554.68 | | |
| CR | County Roads | 0.4584763726 | $1,495,701 | $1,495,701 | $685.74 | | |
| ISLANDEMS | Hospital GEN (EMS) | 0.5000000000 | $1,495,701 | $1,495,701 | $747.85 | | |
| LIB | Library Sno-Isle GEN | 0.3153421757 | $1,495,701 | $1,495,701 | $471.66 | | |
| PORTWHID | Port of S Whidbey GEN | 0.1094540357 | $1,495,701 | $1,495,701 | $163.71 | | |
| SCH206BOND | School 206 BOND | 0.3161759235 | $1,495,701 | $1,495,701 | $472.90 | | |
| SCH206MO | School 206 Enrichment | 0.4547169547 | $1,495,701 | $1,495,701 | $680.12 | | |
| ST | State School | 1.3035497053 | $1,495,701 | $1,495,701 | $1,949.72 | | |
| ST2 | State School Part 2 | 0.8169543533 | $1,495,701 | $1,495,701 | $1,221.92 | | |
| SWHIDPRBD | P & R S Whidbey BOND | 0.0152817568 | $1,495,701 | $1,495,701 | $22.86 | | |
| SWHIDPRBD2 | P & R S Whidbey BOND2 | 0.0138911264 | $1,495,701 | $1,495,701 | $20.78 | | |
| SWHIDPRMT | P & R S Whidbey GEN | 0.2053334452 | $1,495,701 | $1,495,701 | $307.12 | | |
| | Total Tax Rate: | 6.6934522006 | | | | | |
| | | | | Taxes w/Current Exemptions: | $10,011.41 | | |
| | | | | Taxes w/o Exemptions: | $10,011.41 | | |
Improvement / Building
| Improvement #1: | RESIDENTIAL | State Code: | Y | 3462.0 sqft | Value: | $720,701 |
| Bathrooms: | 2.5 | Bedrooms: | 2 | | Ceiling: | TONGUE & GROOVE | Exterior Wall/Cover: | SHINGLE | | Floor Covering: | HARDWOOD/CARP 80-20 | Floor Structure: | WOOD W/SUBFLOOR | | Foundation: | CONCRETE | Heating: | WALL HEAT ELECTRIC | | Interior Finish: | DRYWALL PAINT | Plumbing Fixture Cnt: | 15 | | Roof Slope: | 5" IN 12" | Roof Structure/Cover: | CJ ASPHALT |
|
| | Type | Description | Class CD | Sub Class CD | Year Built | Area |
| | BAS | BASE/MAIN FLOOR | 5 | 0 | 1962 | 1762.0 |
| | OP1 | OPEN PORCH SLAB | 5 | 0 | 1962 | 144.0 |
| | OP1 | OPEN PORCH SLAB | 5 | 0 | 1962 | 248.0 |
| | AGR | ATTACHED GARAGE | 5 | 0 | 1962 | 525.0 |
| | BIG | BUILT IN GARAGE | 5 | 0 | 1962 | 416.0 |
| | UPS | UPPER STORY | 5 | 0 | 1962 | 868.0 |
| | OWP | OPEN WOOD PORCH W/STEPS | 5 | 0 | 1962 | 1714.0 |
| | OWC | OPEN WOOD PORCH W/STEPS/ROOF/C | 5 | 0 | 1962 | 72.0 |
| | UPH | HALF STORY | 5 | 0 | 1962 | 416.0 |
| | UPH | HALF STORY | 5 | 0 | 1962 | 416.0 |
Sketch
Property Image
Land
| 1 | LB | LOW BANK | 0.8800 | 38332.80 | 125.00 | 0.00 | 1.00 | $775,000 | $0 |
Roll Value History
| 2026 | N/A | N/A | N/A | N/A | N/A |
| 2025 | $720,701 | $775,000 | $0 | $1,495,701 | $1,495,701 |
| 2024 | $729,357 | $775,000 | $0 | $1,504,357 | $1,504,357 |
| 2023 | $738,013 | $775,000 | $0 | $1,513,013 | $1,513,013 |
| 2022 | $676,111 | $750,000 | $0 | $1,426,111 | $1,426,111 |
| 2021 | $594,749 | $700,000 | $0 | $1,294,749 | $1,294,749 |
| 2020 | $553,486 | $650,000 | $0 | $1,203,486 | $1,203,486 |
| 2019 | $470,902 | $600,000 | $0 | $1,070,902 | $1,070,902 |
| 2018 | $472,282 | $600,000 | $0 | $1,072,282 | $1,072,282 |
| 2017 | $475,045 | $650,000 | $0 | $1,125,045 | $1,125,045 |
| 2016 | $480,569 | $650,000 | $0 | $1,130,569 | $1,130,569 |
| 2015 | $486,092 | $650,000 | $0 | $1,136,092 | $1,136,092 |
| 2014 | $352,732 | $900,000 | $0 | $1,252,732 | $1,252,732 |
| 2013 | $357,434 | $949,016 | $0 | $1,306,450 | $1,306,450 |
| 2012 | $362,137 | $949,016 | $0 | $1,311,153 | $1,311,153 |
| 2011 | $366,841 | $949,016 | $0 | $1,315,857 | $1,315,857 |
| 2010 | $379,554 | $949,016 | $0 | $1,328,570 | $1,328,570 |
| 2009 | $396,191 | $1,084,590 | $0 | $1,480,781 | $1,480,781 |
| 2008 | $400,758 | $1,084,590 | $0 | $1,485,348 | $1,485,348 |
| 2007 | $405,590 | $1,085,216 | $0 | $1,490,806 | $1,490,806 |
Deed and Sales History
| 1 | 10/11/2016 | WD | Warranty Deed | WANDLER, STEVE R | NOLAN, SEAN P | | | $1,120,000.00 | 26510 | 4409174 |
| 2 | 02/04/2002 | WD | Warranty Deed | NOVACK, EDWARD J | WANDLER, STEVE R | | | $565,000.00 | 20517 | 4010677 |
| 3 | 06/01/1997 | QCD | Quit Claim Deed | NOVACK, EDWARD J | NOVACK, EDWARD J | | | $0.00 | 72863 | 97013503 |
| 4 | 03/01/1991 | OTHER | Other - Misc. Documents | NOVACK, EDWARD J | NOVACK, EDWARD J | | | $0.00 | 64098 | 91002683 |
Payout Agreement
| No payout information available.. |