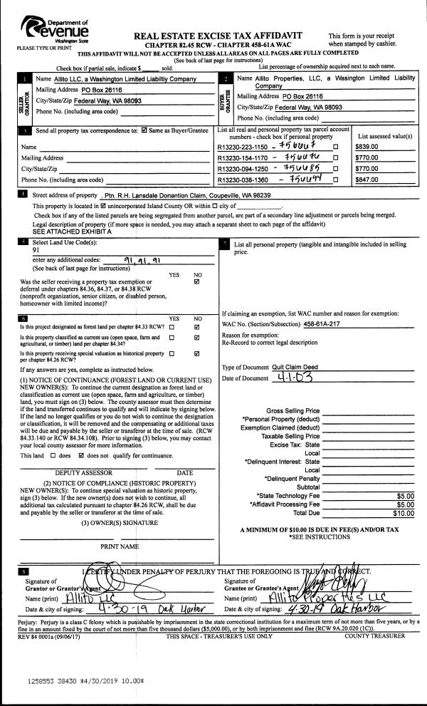
Property
Account |
| Property ID: | 65645 | Abbreviated Legal Description: | 78 - S/2 NW NW LY ELY OF ST HWY EX CO RD EX S20' EX PT TO ST OF WASH AF#96012410 |
| Geographic ID: | R23021-432-1090 | Agent Code: | |
| Type: | Real | | |
| Tax Area: | 312 - APPRAISER-Cpvl Schl Dist, outside Cpvl, improved, greater than 1 acre | Land Use Code | 11 |
| Open Space: | N | DFL | N |
| Historic Property: | N | Remodel Property: | N |
| Multi-Family Redevelopment: | N | | |
| Township: | 30 | Section: | 21 |
| Range: | R2 |
Location |
| Address: | | Mapsco: | |
| Neighborhood: | Cycle 3 | Map ID: | 402 |
| Neighborhood CD: | 3 |
Owner |
| Name: | TOMANDL, MARK | Owner ID: | 289608 |
| Mailing Address: | AUTUMN PETERSON 3495 RESORT RD GREENBANK, WA 98253 | % Ownership: | 100.0000000000% |
| | | Exemptions: | |
Taxes and Assessment Details
Values
| (+) Improvement Homesite Value: | + | $0 | |
| (+) Improvement Non-Homesite Value: | + | $656,702 | |
| (+) Land Homesite Value: | + | $0 | |
| (+) Land Non-Homesite Value: | + | $350,000 | |
| (+) Curr Use (HS): | + | $0 | $0 |
| (+) Curr Use (NHS): | + | $0 | $0 |
| | | -------------------------- | |
| (=) Market Value: | = | $1,006,702 | |
| (–) Productivity Loss: | – | $0 | |
| | | -------------------------- | |
| (=) Subtotal: | = | $1,006,702 | |
| (+) Senior Appraised Value: | + | $0 | |
| (+) Non-Senior Appraised Value: | + | $1,006,702 | |
| | | -------------------------- | |
| (=) Total Appraised Value: | = | $1,006,702 | |
| (–) Senior Exemption Loss: | – | $0 | |
| (–) Exemption Loss: | – | $0 | |
| | | -------------------------- | |
| (=) Taxable Value: | = | $1,006,702 | |
Taxing Jurisdiction
| Owner: | TOMANDL, MARK | | |
| % Ownership: | 100.0000000000% | | |
| Total Value: | $1,006,702 | | |
| Tax Area: | 312 - APPRAISER-Cpvl Schl Dist, outside Cpvl, improved, greater than 1 acre |
| CF | Conservation Futures | 0.0316035091 | $1,006,702 | $1,006,702 | $31.82 | | |
| CEM2 | Cemetery #2 | 0.0095056933 | $1,006,702 | $1,006,702 | $9.57 | | |
| FIRE5 | Fire & Rescue Dist #5 C Whidbey GEN | 1.2008080668 | $1,006,702 | $1,006,702 | $1,208.86 | | |
| FIRE5BOND | Fire & Rescue Dist #5 C Whidbey BOND | 0.1400090713 | $1,006,702 | $1,006,702 | $140.95 | | |
| HOBOND | Hospital BOND | 0.1910887512 | $1,006,702 | $1,006,702 | $192.37 | | |
| HOGEN | Hospital GEN | 0.3902502903 | $1,006,702 | $1,006,702 | $392.87 | | |
| CE | County Current Expense | 0.3708482477 | $1,006,702 | $1,006,702 | $373.33 | | |
| CR | County Roads | 0.4584763726 | $1,006,702 | $1,006,702 | $461.55 | | |
| ISLANDEMS | Hospital GEN (EMS) | 0.5000000000 | $1,006,702 | $1,006,702 | $503.35 | | |
| LIB | Library Sno-Isle GEN | 0.3153421757 | $1,006,702 | $1,006,702 | $317.46 | | |
| LIBCAP | Library Sno-Isle BOND (Cap Fac Imp Area) | 0.0543427938 | $1,006,702 | $1,006,702 | $54.71 | | |
| POCOUP | Port of Coupeville GEN | 0.1093371703 | $1,006,702 | $1,006,702 | $110.07 | | |
| POCOUPIDD | Port of Coupeville IDD | 0.3409740022 | $1,006,702 | $1,006,702 | $343.26 | | |
| COUPSDTECH | School 204 CP (TECH) | 0.7545480007 | $1,006,702 | $1,006,702 | $759.60 | | |
| SCH204MO | School 204 Enrichment | 0.6716186034 | $1,006,702 | $1,006,702 | $676.12 | | |
| ST | State School | 1.3035497053 | $1,006,702 | $1,006,702 | $1,312.29 | | |
| ST2 | State School Part 2 | 0.8169543533 | $1,006,702 | $1,006,702 | $822.43 | | |
| | Total Tax Rate: | 7.6592568070 | | | | | |
| | | | | Taxes w/Current Exemptions: | $7,710.61 | | |
| | | | | Taxes w/o Exemptions: | $7,710.61 | | |
Improvement / Building
| Improvement #1: | RESIDENTIAL | State Code: | Y | 2786.0 sqft | Value: | $656,702 |
| Bathrooms: | 2.5 | Bedrooms: | 4 | | Ceiling: | DRYWALL PAINTED | Exterior Wall/Cover: | WOOD SIDING | | Floor Covering: | HARDWOOD 100% | Floor Structure: | WOOD W/SUBFLOOR | | Foundation: | CONCRETE | Heating: | BASEBOARD ELECTRIC | | Interior Finish: | DRYWALL PAINT | Plumbing Fixture Cnt: | 14 | | Roof Slope: | 6" IN 12" | Roof Structure/Cover: | CJ ALUMINIUM HEAVY |
|
| | Type | Description | Class CD | Sub Class CD | Year Built | Area |
| | BAS | BASE/MAIN FLOOR | 4 | 0 | 2021 | 1480.2 |
| | UPH | HALF STORY | 4 | 0 | 2021 | 1305.8 |
| | OWC | OPEN WOOD PORCH W/STEPS/ROOF/C | 4 | 0 | 2021 | 340.0 |
| | OP4 | OPEN PORCH W/CEILING-ROOF | 4 | 0 | 2021 | 102.5 |
| | UTY | STORAGE/UTILITY | 4 | 0 | 2021 | 864.1 |
Sketch
Property Image
Land
| 1 | 32 | AC (03.01-09.99) | 8.0200 | 349351.20 | 0.00 | 0.00 | 1.00 | $350,000 | $0 |
Roll Value History
| 2026 | N/A | N/A | N/A | N/A | N/A |
| 2025 | $656,702 | $350,000 | $0 | $1,006,702 | $1,006,702 |
| 2024 | $673,934 | $340,000 | $0 | $1,013,934 | $1,013,934 |
| 2023 | $681,011 | $320,000 | $0 | $1,001,011 | $1,001,011 |
| 2022 | $627,890 | $260,000 | $0 | $887,890 | $887,890 |
| 2021 | $557,117 | $230,000 | $0 | $787,117 | $787,117 |
| 2020 | $12,000 | $130,000 | $0 | $142,000 | $142,000 |
| 2019 | $0 | $135,000 | $0 | $135,000 | $135,000 |
| 2018 | $0 | $85,000 | $0 | $85,000 | $85,000 |
| 2017 | $0 | $100,000 | $0 | $100,000 | $100,000 |
| 2016 | $0 | $100,000 | $0 | $100,000 | $100,000 |
| 2015 | $0 | $130,000 | $0 | $130,000 | $130,000 |
| 2014 | $0 | $100,000 | $0 | $100,000 | $100,000 |
| 2013 | $0 | $104,260 | $0 | $104,260 | $104,260 |
| 2012 | $0 | $104,260 | $0 | $104,260 | $104,260 |
| 2011 | $0 | $104,260 | $0 | $104,260 | $104,260 |
| 2010 | $0 | $104,260 | $0 | $104,260 | $104,260 |
| 2009 | $0 | $176,440 | $0 | $176,440 | $176,440 |
| 2008 | $0 | $180,600 | $0 | $180,600 | $180,600 |
| 2007 | $0 | $160,400 | $0 | $160,400 | $160,400 |
Deed and Sales History
| 1 | 05/02/2019 | WD | Warranty Deed | BERGER JTWROS, JONATHAN FREDERIC | TOMANDL, MARK | | | $125,000.00 | 38351 | 4462654 |
| 2 | 10/17/2017 | WD | Warranty Deed | DOTSON JR, JOHN L | BERGER JTWROS, JONATHAN FREDERIC | | | $60,000.00 | 31932 | 4434250 |
| 3 | 03/01/1996 | WD | Warranty Deed | DOTSON, JOHN L | DOTSON, JOHN L | | | $5,000.00 | 62491 | 96012410 |
| 4 | 02/01/1988 | QCD | Quit Claim Deed | BUCHANAN, ROD M | DOTSON, JOHN L | | | $0.00 | 80512 | 88002106 |
| 5 | 10/01/1982 | OTHER | Other - Misc. Documents | BUCHANAN, ROD M | BUCHANAN, ROD M | | | $0.00 | 59701 | 0 |
| 6 | 08/01/1980 | EXECUTORD | Executor Deed | MICKELSON, SCOTT W | BUCHANAN, ROD M | | | $28,207.00 | 2805 | 372779 |
| 7 | 04/01/1980 | EXECUTORD | Executor Deed | BRAUN, CALVIN W | MICKELSON, SCOTT W | | | $35,000.00 | 1378 | 367980 |
| 8 | 01/01/1900 | OTHER | Other - Misc. Documents | Unknown | BRAUN, CALVIN W | | | $0.00 | 0 | 0 |
Payout Agreement
| No payout information available.. |