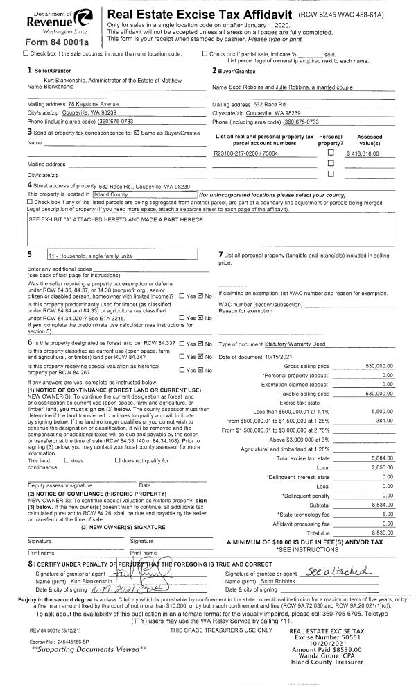
Property
Account |
| Property ID: | 657024 | Abbreviated Legal Description: | LOT 2 SPR #27-90.32925.470.4250 FINAL SITE PLAN AF#91003255 |
| Geographic ID: | R32925-464-4300 | Agent Code: | |
| Type: | Real | | |
| Tax Area: | 720 - APPRAISER-S Whid Schl Dist, Special District, improved & less than 1 acre | Land Use Code | 25 |
| Open Space: | N | DFL | N |
| Historic Property: | N | Remodel Property: | N |
| Multi-Family Redevelopment: | N | | |
| Township: | 29 | Section: | 25 |
| Range: | R3 |
Location |
| Address: | 6448 HARDING AVE CLINTON, WA 98236 | Mapsco: | |
| Neighborhood: | 44cCL-central ave | Map ID: | 815 |
| Neighborhood CD: | 44cCLcentr |
Owner |
| Name: | RACICOT PROPERTY, LLC | Owner ID: | 294069 |
| Mailing Address: | PO BOX 1614 LANGLEY, WA 98260 | % Ownership: | 100.0000000000% |
| | | Exemptions: | |
Taxes and Assessment Details
Values
| (+) Improvement Homesite Value: | + | $0 | |
| (+) Improvement Non-Homesite Value: | + | $132,734 | |
| (+) Land Homesite Value: | + | $0 | |
| (+) Land Non-Homesite Value: | + | $250,000 | |
| (+) Curr Use (HS): | + | $0 | $0 |
| (+) Curr Use (NHS): | + | $0 | $0 |
| | | -------------------------- | |
| (=) Market Value: | = | $382,734 | |
| (–) Productivity Loss: | – | $0 | |
| | | -------------------------- | |
| (=) Subtotal: | = | $382,734 | |
| (+) Senior Appraised Value: | + | $0 | |
| (+) Non-Senior Appraised Value: | + | $382,734 | |
| | | -------------------------- | |
| (=) Total Appraised Value: | = | $382,734 | |
| (–) Senior Exemption Loss: | – | $0 | |
| (–) Exemption Loss: | – | $0 | |
| | | -------------------------- | |
| (=) Taxable Value: | = | $382,734 | |
Taxing Jurisdiction
| Owner: | RACICOT PROPERTY, LLC | | |
| % Ownership: | 100.0000000000% | | |
| Total Value: | $382,734 | | |
| Tax Area: | 720 - APPRAISER-S Whid Schl Dist, Special District, improved & less than 1 acre |
| CF | Conservation Futures | 0.0316035091 | $382,734 | $382,734 | $12.10 | | |
| FIRE3 | Fire & Rescue Dist #3 S Whidbey GEN | 1.2004855531 | $382,734 | $382,734 | $459.47 | | |
| HOBOND | Hospital BOND | 0.1910887512 | $382,734 | $382,734 | $73.14 | | |
| HOGEN | Hospital GEN | 0.3902502903 | $382,734 | $382,734 | $149.36 | | |
| CE | County Current Expense | 0.3708482477 | $382,734 | $382,734 | $141.94 | | |
| CR | County Roads | 0.4584763726 | $382,734 | $382,734 | $175.47 | | |
| ISLANDEMS | Hospital GEN (EMS) | 0.5000000000 | $382,734 | $382,734 | $191.37 | | |
| LIB | Library Sno-Isle GEN | 0.3153421757 | $382,734 | $382,734 | $120.69 | | |
| PORTWHID | Port of S Whidbey GEN | 0.1094540357 | $382,734 | $382,734 | $41.89 | | |
| SCH206BOND | School 206 BOND | 0.3161759235 | $382,734 | $382,734 | $121.01 | | |
| SCH206MO | School 206 Enrichment | 0.4547169547 | $382,734 | $382,734 | $174.04 | | |
| ST | State School | 1.3035497053 | $382,734 | $382,734 | $498.91 | | |
| ST2 | State School Part 2 | 0.8169543533 | $382,734 | $382,734 | $312.68 | | |
| SWHIDPRBD | P & R S Whidbey BOND | 0.0152817568 | $382,734 | $382,734 | $5.85 | | |
| SWHIDPRBD2 | P & R S Whidbey BOND2 | 0.0138911264 | $382,734 | $382,734 | $5.32 | | |
| SWHIDPRMT | P & R S Whidbey GEN | 0.2053334452 | $382,734 | $382,734 | $78.59 | | |
| | Total Tax Rate: | 6.6934522006 | | | | | |
| | | | | Taxes w/Current Exemptions: | $2,561.83 | | |
| | | | | Taxes w/o Exemptions: | $2,561.83 | | |
Improvement / Building
| Improvement #1: | COMMERCIAL | State Code: | F1 | 1807.7 sqft | Value: | $132,734 |
| Bathrooms: | 0 | Bedrooms: | 0 | | Ceiling: | PAINT OPEN FLOOR BAS | Exterior Wall/Cover: | WD/WD OR STEEL STUDS | | Floor Covering: | SOFTWOOD 100% | Floor Structure: | WOOD ON WOOD JOIST | | Foundation: | CONCRETE | Heating: | SPACE HEATERS | | Interior Finish: | MANUFACTURING (LIGHT) | Plumbing Fixture Cnt: | 1 | | Roof Structure/Cover: | METAL/OPEN WOOD |   |   |
|
| | Type | Description | Class CD | Sub Class CD | Year Built | Area |
| | BAS | BASE/MAIN FLOOR | 3 | 0 | 1992 | 1318.2 |
| | UTY | STORAGE/UTILITY | 3 | 0 | 1992 | 62.5 |
| | OWP | OPEN WOOD PORCH W/STEPS | 3 | 0 | 1992 | 18.0 |
| | OWP | OPEN WOOD PORCH W/STEPS | 3 | 0 | 1992 | 20.0 |
| | CPD | OPEN CARPORT DIRT FLOOR | 3 | 0 | 1992 | 220.0 |
| | AGR | ATTACHED GARAGE | 3 | 0 | 1992 | 712.0 |
| | UPS | UPPER STORY | 3 | 0 | 1992 | 489.5 |
Sketch
Property Image
Land
| 1 | 15 | SQ (12001-21780) | 0.4600 | 20037.60 | 0.00 | 0.00 | 1.00 | $250,000 | $0 |
Roll Value History
| 2026 | N/A | N/A | N/A | N/A | N/A |
| 2025 | $132,734 | $250,000 | $0 | $382,734 | $382,734 |
| 2024 | $142,357 | $230,000 | $0 | $372,357 | $372,357 |
| 2023 | $151,772 | $210,000 | $0 | $361,772 | $361,772 |
| 2022 | $124,806 | $150,000 | $0 | $274,806 | $274,806 |
| 2021 | $124,337 | $150,000 | $0 | $274,337 | $274,337 |
| 2020 | $81,486 | $135,000 | $0 | $216,486 | $216,486 |
| 2019 | $95,838 | $180,000 | $0 | $275,838 | $275,838 |
| 2018 | $95,843 | $130,000 | $0 | $225,843 | $225,843 |
| 2017 | $95,843 | $200,376 | $0 | $296,219 | $296,219 |
| 2016 | $95,862 | $200,376 | $0 | $296,238 | $296,238 |
| 2015 | $102,693 | $200,376 | $0 | $303,069 | $303,069 |
| 2014 | $90,382 | $183,091 | $0 | $273,473 | $273,473 |
| 2013 | $90,382 | $183,091 | $0 | $273,473 | $273,473 |
| 2012 | $90,382 | $183,091 | $0 | $273,473 | $273,473 |
| 2011 | $90,382 | $183,091 | $0 | $273,473 | $273,473 |
| 2010 | $96,474 | $183,091 | $0 | $279,565 | $279,565 |
| 2009 | $99,090 | $201,301 | $0 | $300,391 | $300,391 |
| 2008 | $101,514 | $201,301 | $0 | $302,815 | $302,815 |
| 2007 | $105,572 | $201,301 | $0 | $306,873 | $306,873 |
Deed and Sales History
| 1 | 04/28/2020 | WD | Warranty Deed | FISHER, THOMAS & MARY | RACICOT PROPERTY, LLC | | | $310,000.00 | 42891 | 4485875 |
| 2 | 03/01/1991 | WD | Warranty Deed | HASSRICK, MATTHEW & | FISHER, THOMAS & | | | $40,000.00 | 11015 | 91004339 |
| 3 | 01/01/1900 | OTHER | Other - Misc. Documents | Unknown | HASSRICK, MATTHEW & | | | $0.00 | 82295 | 88008621 |
Payout Agreement
| No payout information available.. |