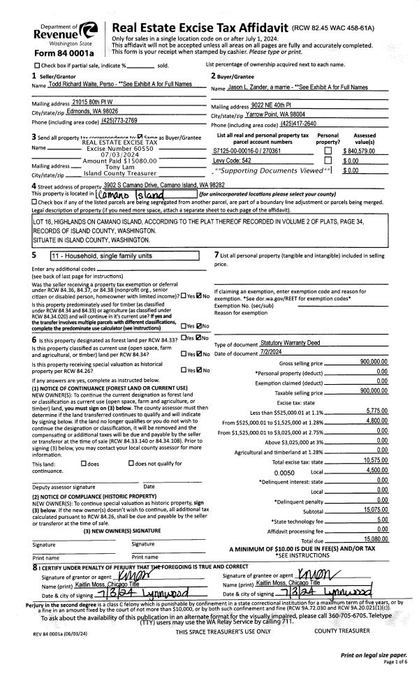
Property
Account |
| Property ID: | 657104 | Abbreviated Legal Description: | SEAVIEW #9 LOT 7 |
| Geographic ID: | S8135-09-00007-0 | Agent Code: | |
| Type: | Real | | |
| Tax Area: | 110 - APPRAISER-OH Schl Dist, outside OH, improved & 1 acre or less | Land Use Code | 11 |
| Open Space: | N | DFL | N |
| Historic Property: | N | Remodel Property: | N |
| Multi-Family Redevelopment: | N | | |
| Township: | | Section: | |
| Range: | |
Location |
| Address: | 2141 TILBURY LN OAK HARBOR, WA 98277 | Mapsco: | |
| Neighborhood: | Cycle 1 | Map ID: | 106 |
| Neighborhood CD: | 1 |
Owner |
| Name: | GUNA TRUSTEE, RAYMOND A | Owner ID: | 251765 |
| Mailing Address: | LACEY J PEARMAN GUNA TRUSTEE GUNA FAMILY LIVING TRUST 2141 TILBURY LANE OAK HARBOR, WA 98277 | % Ownership: | 100.0000000000% |
| | | Exemptions: | |
Taxes and Assessment Details
Values
| (+) Improvement Homesite Value: | + | $0 | |
| (+) Improvement Non-Homesite Value: | + | $401,782 | |
| (+) Land Homesite Value: | + | $0 | |
| (+) Land Non-Homesite Value: | + | $230,000 | |
| (+) Curr Use (HS): | + | $0 | $0 |
| (+) Curr Use (NHS): | + | $0 | $0 |
| | | -------------------------- | |
| (=) Market Value: | = | $631,782 | |
| (–) Productivity Loss: | – | $0 | |
| | | -------------------------- | |
| (=) Subtotal: | = | $631,782 | |
| (+) Senior Appraised Value: | + | $0 | |
| (+) Non-Senior Appraised Value: | + | $631,782 | |
| | | -------------------------- | |
| (=) Total Appraised Value: | = | $631,782 | |
| (–) Senior Exemption Loss: | – | $0 | |
| (–) Exemption Loss: | – | $0 | |
| | | -------------------------- | |
| (=) Taxable Value: | = | $631,782 | |
Taxing Jurisdiction
| Owner: | GUNA TRUSTEE, RAYMOND A | | |
| % Ownership: | 100.0000000000% | | |
| Total Value: | $631,782 | | |
| Tax Area: | 110 - APPRAISER-OH Schl Dist, outside OH, improved & 1 acre or less |
| CF | Conservation Futures | 0.0316035091 | $631,782 | $631,782 | $19.97 | | |
| CEM1 | Cemetery #1 | 0.0040320932 | $631,782 | $631,782 | $2.55 | | |
| FIRE2 | Fire & Rescue Dist #2 N Whidbey GEN | 0.5475949600 | $631,782 | $631,782 | $345.96 | | |
| HOBOND | Hospital BOND | 0.1910887512 | $631,782 | $631,782 | $120.73 | | |
| HOGEN | Hospital GEN | 0.3902502903 | $631,782 | $631,782 | $246.55 | | |
| CE | County Current Expense | 0.3708482477 | $631,782 | $631,782 | $234.30 | | |
| CR | County Roads | 0.4584763726 | $631,782 | $631,782 | $289.66 | | |
| ISLANDEMS | Hospital GEN (EMS) | 0.5000000000 | $631,782 | $631,782 | $315.89 | | |
| LIB | Library Sno-Isle GEN | 0.3153421757 | $631,782 | $631,782 | $199.23 | | |
| NWHIDPRMT | P & R N Whidbey GEN | 0.2004466701 | $631,782 | $631,782 | $126.64 | | |
| SCH201MO | School 201 Enrichment | 1.8559231640 | $631,782 | $631,782 | $1,172.54 | | |
| ST | State School | 1.3035497053 | $631,782 | $631,782 | $823.56 | | |
| ST2 | State School Part 2 | 0.8169543533 | $631,782 | $631,782 | $516.14 | | |
| | Total Tax Rate: | 6.9861102925 | | | | | |
| | | | | Taxes w/Current Exemptions: | $4,413.72 | | |
| | | | | Taxes w/o Exemptions: | $4,413.72 | | |
Improvement / Building
| Improvement #1: | RESIDENTIAL | State Code: | Y | 2436.3 sqft | Value: | $401,782 |
| Bathrooms: | 3 | Bedrooms: | 3 | | Ceiling: | DRYWALL PAINTED | Exterior Wall/Cover: | PLY/HARDBOARD T-111 | | Floor Covering: | CARPET/VINYL 80-20 | Floor Structure: | WOOD W/SUBFLOOR | | Foundation: | CONCRETE | Heating: | FHA GAS | | Interior Finish: | DRYWALL PAINT | Plumbing Fixture Cnt: | 15 | | Roof Slope: | 5" IN 12" | Roof Structure/Cover: | CJ ASPHALT |
|
| | Type | Description | Class CD | Sub Class CD | Year Built | Area |
| | BAS | BASE/MAIN FLOOR | 3 | 0 | 1992 | 2436.3 |
| | OP1 | OPEN PORCH SLAB | 3 | 0 | 1992 | 190.0 |
| | OP4 | OPEN PORCH W/CEILING-ROOF | 3 | 0 | 1992 | 72.0 |
| | AGR | ATTACHED GARAGE | 3 | 0 | 1992 | 750.0 |
| | OWP | OPEN WOOD PORCH W/STEPS | 3 | 0 | 1992 | 578.8 |
Sketch
Property Image
Land
| 1 | 15 | SQ (12001-21780) | 0.0000 | 0.00 | 0.00 | 0.00 | 1.00 | $230,000 | $0 |
Roll Value History
| 2026 | N/A | N/A | N/A | N/A | N/A |
| 2025 | $401,782 | $230,000 | $0 | $631,782 | $631,782 |
| 2024 | $406,727 | $200,000 | $0 | $606,727 | $606,727 |
| 2023 | $391,893 | $200,000 | $0 | $591,893 | $591,893 |
| 2022 | $359,339 | $200,000 | $0 | $559,339 | $559,339 |
| 2021 | $316,363 | $150,000 | $0 | $466,363 | $466,363 |
| 2020 | $308,196 | $110,000 | $0 | $418,196 | $418,196 |
| 2019 | $235,871 | $150,000 | $0 | $385,871 | $385,871 |
| 2018 | $236,579 | $140,000 | $0 | $376,579 | $376,579 |
| 2017 | $214,493 | $120,000 | $0 | $334,493 | $334,493 |
| 2016 | $217,174 | $110,000 | $0 | $327,174 | $327,174 |
| 2015 | $215,300 | $75,000 | $0 | $290,300 | $290,300 |
| 2014 | $218,131 | $68,000 | $0 | $286,131 | $286,131 |
| 2013 | $220,964 | $55,250 | $0 | $276,214 | $276,214 |
| 2012 | $223,797 | $55,250 | $0 | $279,047 | $279,047 |
| 2011 | $237,239 | $65,000 | $0 | $302,239 | $302,239 |
| 2010 | $249,491 | $65,000 | $0 | $314,491 | $314,491 |
| 2009 | $260,081 | $67,000 | $0 | $327,081 | $327,081 |
| 2008 | $263,545 | $75,000 | $0 | $338,545 | $338,545 |
| 2007 | $267,144 | $75,000 | $0 | $342,144 | $342,144 |
Deed and Sales History
| 1 | 08/31/2010 | WD | Warranty Deed | GEISENHOFF, JOHN F | GUNA TRUSTEE, RAYMOND A | | | $317,900.00 | 2369 | 4281454 |
| 2 | 08/02/2002 | WD | Warranty Deed | STANFORD, DOUGLAS H | GEISENHOFF, JOHN F | | | $245,000.00 | 23162 | 4028285 |
| 3 | 09/01/1992 | WD | Warranty Deed | SELLGREN, & C | STANFORD, DOUGLAS H | | | $180,000.00 | 23610 | 92017433 |
| 4 | 01/01/1900 | OTHER | Other - Misc. Documents | Unknown | SELLGREN, & C | | | $0.00 | 2169 | 90007099 |
Payout Agreement
| No payout information available.. |