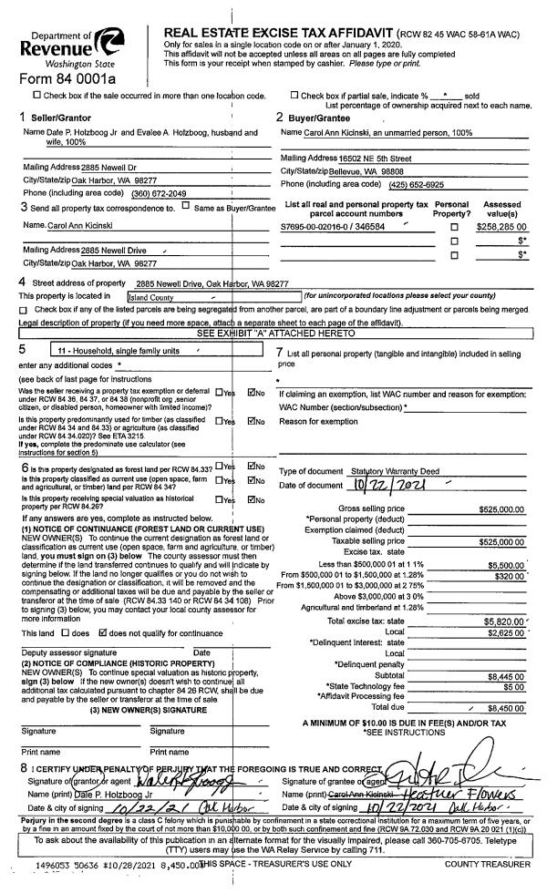
Property
Account |
| Property ID: | 657159 | Abbreviated Legal Description: | LOT 2 SP 48-90.32902.353-4540 V2 SP P280 AF#91003243 |
| Geographic ID: | R32902-337-4510 | Agent Code: | |
| Type: | Real | | |
| Tax Area: | 712 - APPRAISER-S Whid Schl Dist, outside Langley, improved, greater than 1 acre | Land Use Code | 11 |
| Open Space: | N | DFL | N |
| Historic Property: | N | Remodel Property: | N |
| Multi-Family Redevelopment: | N | | |
| Township: | 29 | Section: | 02 |
| Range: | R3 |
Location |
| Address: | 4912 FALLON PLACE LANGLEY, WA 98260 | Mapsco: | |
| Neighborhood: | Cycle 4 | Map ID: | 722 |
| Neighborhood CD: | 4 |
Owner |
| Name: | BURNETT TTEE, MARY R | Owner ID: | 298849 |
| Mailing Address: | 20 YANKEE HILL OAKLAND, CA 94618 | % Ownership: | 100.0000000000% |
| | | Exemptions: | |
Taxes and Assessment Details
Values
| (+) Improvement Homesite Value: | + | $0 | |
| (+) Improvement Non-Homesite Value: | + | $887,418 | |
| (+) Land Homesite Value: | + | $0 | |
| (+) Land Non-Homesite Value: | + | $370,000 | |
| (+) Curr Use (HS): | + | $0 | $0 |
| (+) Curr Use (NHS): | + | $0 | $0 |
| | | -------------------------- | |
| (=) Market Value: | = | $1,257,418 | |
| (–) Productivity Loss: | – | $0 | |
| | | -------------------------- | |
| (=) Subtotal: | = | $1,257,418 | |
| (+) Senior Appraised Value: | + | $0 | |
| (+) Non-Senior Appraised Value: | + | $1,257,418 | |
| | | -------------------------- | |
| (=) Total Appraised Value: | = | $1,257,418 | |
| (–) Senior Exemption Loss: | – | $0 | |
| (–) Exemption Loss: | – | $0 | |
| | | -------------------------- | |
| (=) Taxable Value: | = | $1,257,418 | |
Taxing Jurisdiction
| Owner: | BURNETT TTEE, MARY R | | |
| % Ownership: | 100.0000000000% | | |
| Total Value: | $1,257,418 | | |
| Tax Area: | 712 - APPRAISER-S Whid Schl Dist, outside Langley, improved, greater than 1 acre |
| CF | Conservation Futures | 0.0316035091 | $1,257,418 | $1,257,418 | $39.74 | | |
| FIRE3 | Fire & Rescue Dist #3 S Whidbey GEN | 1.2004855531 | $1,257,418 | $1,257,418 | $1,509.51 | | |
| HOBOND | Hospital BOND | 0.1910887512 | $1,257,418 | $1,257,418 | $240.28 | | |
| HOGEN | Hospital GEN | 0.3902502903 | $1,257,418 | $1,257,418 | $490.71 | | |
| CE | County Current Expense | 0.3708482477 | $1,257,418 | $1,257,418 | $466.31 | | |
| CR | County Roads | 0.4584763726 | $1,257,418 | $1,257,418 | $576.50 | | |
| ISLANDEMS | Hospital GEN (EMS) | 0.5000000000 | $1,257,418 | $1,257,418 | $628.71 | | |
| LIB | Library Sno-Isle GEN | 0.3153421757 | $1,257,418 | $1,257,418 | $396.52 | | |
| PORTWHID | Port of S Whidbey GEN | 0.1094540357 | $1,257,418 | $1,257,418 | $137.63 | | |
| SCH206BOND | School 206 BOND | 0.3161759235 | $1,257,418 | $1,257,418 | $397.57 | | |
| SCH206MO | School 206 Enrichment | 0.4547169547 | $1,257,418 | $1,257,418 | $571.77 | | |
| ST | State School | 1.3035497053 | $1,257,418 | $1,257,418 | $1,639.11 | | |
| ST2 | State School Part 2 | 0.8169543533 | $1,257,418 | $1,257,418 | $1,027.25 | | |
| SWHIDPRBD | P & R S Whidbey BOND | 0.0152817568 | $1,257,418 | $1,257,418 | $19.22 | | |
| SWHIDPRBD2 | P & R S Whidbey BOND2 | 0.0138911264 | $1,257,418 | $1,257,418 | $17.47 | | |
| SWHIDPRMT | P & R S Whidbey GEN | 0.2053334452 | $1,257,418 | $1,257,418 | $258.19 | | |
| | Total Tax Rate: | 6.6934522006 | | | | | |
| | | | | Taxes w/Current Exemptions: | $8,416.49 | | |
| | | | | Taxes w/o Exemptions: | $8,416.49 | | |
Improvement / Building
| Improvement #1: | RESIDENTIAL | State Code: | Y | 2285.0 sqft | Value: | $616,456 |
| Bathrooms: | 2 | Bedrooms: | 3 | | Ceiling: | DRYWALL PAINTED | Cooling: | HEAT PUMP/CONV/V | | Exterior Wall/Cover: | STUCCO | Floor Covering: | CERAMIC TILE/HWD 40/60 | | Floor Structure: | WOOD W/SUBFLOOR | Foundation: | CONCRETE | | Interior Finish: | DRYWALL PAINT | Plumbing Fixture Cnt: | 9 | | Roof Slope: | 12" IN 12" | Roof Structure/Cover: | CJ ASPHALT |
|
| | Type | Description | Class CD | Sub Class CD | Year Built | Area |
| | BAS | BASE/MAIN FLOOR | 5 | 0 | 2006 | 1472.0 |
| | UPS | UPPER STORY | 5 | 0 | 2006 | 813.0 |
| | OWP | OPEN WOOD PORCH W/STEPS | 5 | 0 | 2006 | 60.0 |
| | ENP | ENCLOSED PORCH | 5 | 0 | 2006 | 273.0 |
| Improvement #2: | RESIDENTIAL | State Code: | Y | 522.0 sqft | Value: | $270,962 |
| Bathrooms: | 1 | Bedrooms: | 0 | | Ceiling: | DRYWALL PAINTED | Exterior Wall/Cover: | STUCCO | | Floor Covering: | CERAMIC TILE/HWD 40/60 | Floor Structure: | SLAB ABOVE GRADE | | Foundation: | SLAB/CONCRETE | Heating: | WALL HEAT ELECTRIC | | Interior Finish: | DRYWALL PAINT | Plumbing Fixture Cnt: | 7 | | Roof Slope: | 18" IN 12" | Roof Structure/Cover: | CJ ASPHALT |
|
| | Type | Description | Class CD | Sub Class CD | Year Built | Area |
| | BIG | BUILT IN GARAGE | 4 | 0 | 2006 | 1050.0 |
| | UTY | STORAGE/UTILITY | 4 | 0 | 2006 | 120.0 |
| | BAS | BASE/MAIN FLOOR | 4 | 0 | 2006 | 522.0 |
Sketch
Property Image
Land
| 1 | 17 | AC (01.01-02.00) | 1.6300 | 71002.80 | 0.00 | 0.00 | 1.00 | $370,000 | $0 |
Roll Value History
| 2026 | N/A | N/A | N/A | N/A | N/A |
| 2025 | $887,418 | $370,000 | $0 | $1,257,418 | $1,257,418 |
| 2024 | $894,876 | $360,000 | $0 | $1,254,876 | $1,254,876 |
| 2023 | $902,828 | $360,000 | $0 | $1,262,828 | $1,262,828 |
| 2022 | $823,835 | $280,000 | $0 | $1,103,835 | $1,103,835 |
| 2021 | $611,383 | $260,000 | $0 | $871,383 | $871,383 |
| 2020 | $416,489 | $230,000 | $0 | $646,489 | $646,489 |
| 2019 | $318,794 | $260,000 | $0 | $578,794 | $578,794 |
| 2018 | $319,701 | $230,000 | $0 | $549,701 | $549,701 |
| 2017 | $321,510 | $190,000 | $0 | $511,510 | $511,510 |
| 2016 | $325,133 | $180,000 | $0 | $505,133 | $505,133 |
| 2015 | $328,756 | $180,000 | $0 | $508,756 | $508,756 |
| 2014 | $254,313 | $180,000 | $0 | $434,313 | $434,313 |
| 2013 | $257,542 | $180,000 | $0 | $437,542 | $437,542 |
| 2012 | $260,774 | $180,000 | $0 | $440,774 | $440,774 |
| 2011 | $264,003 | $200,000 | $0 | $464,003 | $464,003 |
| 2010 | $310,843 | $200,000 | $0 | $510,843 | $510,843 |
| 2009 | $323,927 | $200,000 | $0 | $523,927 | $523,927 |
| 2008 | $325,027 | $255,200 | $0 | $580,227 | $580,227 |
| 2007 | $288,355 | $255,200 | $0 | $543,555 | $543,555 |
Deed and Sales History
| 1 | 04/09/2021 | WD | Warranty Deed | ROLSTAD, GAYE | BURNETT TTEE, MARY R | | | $1,891,000.00 | 47728 | 4516290 |
| 2 | 08/26/2003 | ESTSEPPROP | Establish Separate Property | ROLSTAD, GAYE | ROLSTAD, GAYE | | | $0.00 | 34024 | 4074525 |
| 3 | 08/18/2003 | TRUSTEED | Trustee's Deed | BANK OF NEW YORK, | ROLSTAD, GAYE | | | $319,900.00 | 34023 | 4074524 |
| 4 | 03/21/2003 | TRUSTEED | Trustee's Deed | BUNCH, ALICE M | BANK OF NEW YORK, | | | $374,152.00 | 31404 | 4053848 |
| 5 | 08/21/2000 | WD | Warranty Deed | DEMARAY, KEVIN & | BUNCH, ALICE M | | | $390,000.00 | 3262 | 20015291 |
| 6 | 01/01/1993 | WD | Warranty Deed | FALLON, TOM | NW, EXCHANGE & | | | $0.00 | 30379 | 93001957 |
| 7 | 01/01/1993 | WD | Warranty Deed | NW, EXCHANGE & | DEMARAY, KEVIN & | | | $85,000.00 | 30380 | 93001958 |
| 8 | 01/01/1900 | OTHER | Other - Misc. Documents | Unknown | FALLON, TOM | | | $0.00 | 2115 | 90006878 |
Payout Agreement
| No payout information available.. |