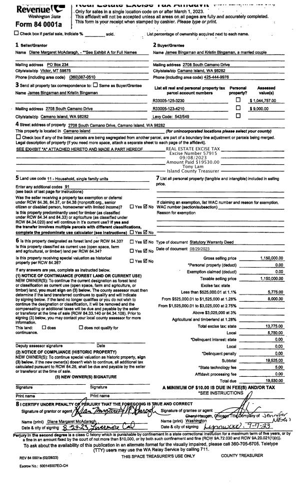
Property
Account |
| Property ID: | 657373 | Abbreviated Legal Description: | LOT 1 SP 23-90.33119.021-3390 V2 SP P281 AF#91003396 |
| Geographic ID: | R33119-024-3120 | Agent Code: | |
| Type: | Real | | |
| Tax Area: | 512 - APPRAISER-Stan/Cam Schl Dist, improved, greater than 1 acre | Land Use Code | 11 |
| Open Space: | N | DFL | N |
| Historic Property: | N | Remodel Property: | N |
| Multi-Family Redevelopment: | N | | |
| Township: | 31 | Section: | 19 |
| Range: | R3 |
Location |
| Address: | 230 TERESA ST CAMANO ISLAND, WA 98282 | Mapsco: | |
| Neighborhood: | Cycle 5 | Map ID: | 930 |
| Neighborhood CD: | 5 |
Owner |
| Name: | NELSON TTEE, DANIEL ANDREW | Owner ID: | 307343 |
| Mailing Address: | DEBRA LYNN NELSON TTEE 230 TERESA ST CAMANO ISLAND, WA 98282 | % Ownership: | 100.0000000000% |
| | | Exemptions: | |
Taxes and Assessment Details
Values
| (+) Improvement Homesite Value: | + | $0 | |
| (+) Improvement Non-Homesite Value: | + | $461,537 | |
| (+) Land Homesite Value: | + | $0 | |
| (+) Land Non-Homesite Value: | + | $320,000 | |
| (+) Curr Use (HS): | + | $0 | $0 |
| (+) Curr Use (NHS): | + | $0 | $0 |
| | | -------------------------- | |
| (=) Market Value: | = | $781,537 | |
| (–) Productivity Loss: | – | $0 | |
| | | -------------------------- | |
| (=) Subtotal: | = | $781,537 | |
| (+) Senior Appraised Value: | + | $0 | |
| (+) Non-Senior Appraised Value: | + | $781,537 | |
| | | -------------------------- | |
| (=) Total Appraised Value: | = | $781,537 | |
| (–) Senior Exemption Loss: | – | $0 | |
| (–) Exemption Loss: | – | $0 | |
| | | -------------------------- | |
| (=) Taxable Value: | = | $781,537 | |
Taxing Jurisdiction
| Owner: | NELSON TTEE, DANIEL ANDREW | | |
| % Ownership: | 100.0000000000% | | |
| Total Value: | $781,537 | | |
| Tax Area: | 512 - APPRAISER-Stan/Cam Schl Dist, improved, greater than 1 acre |
| CF | Conservation Futures | 0.0316035091 | $781,537 | $781,537 | $24.70 | | |
| EMS1 | Fire & Rescue Dist #1 Camano GEN (EMS) | 0.3677864386 | $781,537 | $781,537 | $287.44 | | |
| FIRE1 | Fire & Rescue Dist #1 Camano GEN | 1.2502910536 | $781,537 | $781,537 | $977.15 | | |
| FIRE1BOND | Fire & Rescue Dist #1 Camano BOND | 0.1570001679 | $781,537 | $781,537 | $122.70 | | |
| CE | County Current Expense | 0.3708482477 | $781,537 | $781,537 | $289.83 | | |
| CR | County Roads | 0.4584763726 | $781,537 | $781,537 | $358.32 | | |
| LCIB | Library Sno-Isle BOND (Camano Island) | 0.0396325772 | $781,537 | $781,537 | $30.97 | | |
| LIB | Library Sno-Isle GEN | 0.3153421757 | $781,537 | $781,537 | $246.45 | | |
| SCH205_401 | School 205-401 Enrichment | 1.2698420524 | $781,537 | $781,537 | $992.43 | | |
| SCH205BOND | School 205-401 BOND | 0.9396497583 | $781,537 | $781,537 | $734.37 | | |
| ST | State School | 1.3035497053 | $781,537 | $781,537 | $1,018.77 | | |
| ST2 | State School Part 2 | 0.8169543533 | $781,537 | $781,537 | $638.48 | | |
| | Total Tax Rate: | 7.3209764117 | | | | | |
| | | | | Taxes w/Current Exemptions: | $5,721.61 | | |
| | | | | Taxes w/o Exemptions: | $5,721.61 | | |
Improvement / Building
| Improvement #1: | RESIDENTIAL | State Code: | Y | 1965.7 sqft | Value: | $311,942 |
| Bathrooms: | 2 | Bedrooms: | 2 | | Ceiling: | DRYWALL PAINTED | Exterior Wall/Cover: | PLY/HARDBOARD T-111 | | Floor Covering: | HARDWOOD 100% | Floor Structure: | WOOD W/SUBFLOOR | | Foundation: | CONCRETE | Heating: | WALL HEAT ELECTRIC | | Interior Finish: | DRYWALL PAINT | Plumbing Fixture Cnt: | 9 | | Roof Slope: | 3" IN 12" | Roof Structure/Cover: | CJ ASPHALT |
|
| | Type | Description | Class CD | Sub Class CD | Year Built | Area |
| | BAS | BASE/MAIN FLOOR | 3 | 0 | 1991 | 1189.7 |
| | UPS | UPPER STORY | 3 | 0 | 1991 | 776.0 |
| | OWP | OPEN WOOD PORCH W/STEPS | 3 | 0 | 1991 | 28.0 |
| | OWR | OPEN WOOD PORCH W/STEPS/ROOF | 3 | 0 | 1991 | 242.0 |
| | OWR | OPEN WOOD PORCH W/STEPS/ROOF | 3 | 0 | 1991 | 210.8 |
| | ENP | ENCLOSED PORCH | 3 | 0 | 1991 | 395.9 |
| | oWDD | WOOD DECK | 3 | 0 | 1991 | 0.0 |
| Improvement #2: | RESIDENTIAL | State Code: | Y | 440.0 sqft | Value: | $149,595 |
| Bathrooms: | 1 | Bedrooms: | 0 | | Ceiling: | DRYWALL PAINTED | Exterior Wall/Cover: | VINYL | | Floor Covering: | VINYL 100% | Floor Structure: | WOOD W/SUBFLOOR | | Foundation: | CONCRETE | Heating: | WALL HEAT ELECTRIC | | Interior Finish: | DRYWALL PAINT | Plumbing Fixture Cnt: | 5 | | Roof Slope: | 5" IN 12" | Roof Structure/Cover: | CJ ALUMINIUM HEAVY |
|
| | Type | Description | Class CD | Sub Class CD | Year Built | Area |
| | BAS | BASE/MAIN FLOOR | 3 | 0 | 2023 | 440.0 |
| | BIG | BUILT IN GARAGE | 3 | 0 | 2023 | 528.0 |
Sketch
Property Image
Land
| 1 | 17 | AC (01.01-02.00) | 1.2500 | 54450.00 | 0.00 | 0.00 | 1.00 | $320,000 | $0 |
Roll Value History
| 2026 | N/A | N/A | N/A | N/A | N/A |
| 2025 | $461,537 | $320,000 | $0 | $781,537 | $781,537 |
| 2024 | $468,186 | $310,000 | $0 | $778,186 | $778,186 |
| 2023 | $408,698 | $290,000 | $0 | $698,698 | $698,698 |
| 2022 | $335,724 | $260,000 | $0 | $595,724 | $595,724 |
| 2021 | $276,641 | $200,000 | $0 | $476,641 | $476,641 |
| 2020 | $270,221 | $200,000 | $0 | $470,221 | $470,221 |
| 2019 | $206,831 | $250,000 | $0 | $456,831 | $456,831 |
| 2018 | $207,464 | $210,000 | $0 | $417,464 | $417,464 |
| 2017 | $207,112 | $150,000 | $0 | $357,112 | $357,112 |
| 2016 | $209,633 | $120,000 | $0 | $329,633 | $329,633 |
| 2015 | $209,558 | $82,584 | $0 | $292,142 | $292,142 |
| 2014 | $212,047 | $82,584 | $0 | $294,631 | $294,631 |
| 2013 | $214,535 | $82,584 | $0 | $297,119 | $297,119 |
| 2012 | $217,021 | $82,584 | $0 | $299,605 | $299,605 |
| 2011 | $219,509 | $103,230 | $0 | $322,739 | $322,739 |
| 2010 | $227,089 | $103,230 | $0 | $330,319 | $330,319 |
| 2009 | $250,434 | $100,000 | $0 | $350,434 | $350,434 |
| 2008 | $253,285 | $130,000 | $0 | $383,285 | $383,285 |
| 2007 | $253,485 | $130,000 | $0 | $383,485 | $383,485 |
Deed and Sales History
| 1 | 12/27/2022 | QCD | Quit Claim Deed | NELSON, DANIEL A | NELSON TTEE, DANIEL ANDREW | | | $0.00 | 55664 | 4555904 |
| 2 | 01/01/1900 | OTHER | Other - Misc. Documents | Unknown | NELSON, DANIEL A | | | $0.00 | 2342 | 90007642 |
Payout Agreement
| No payout information available.. |