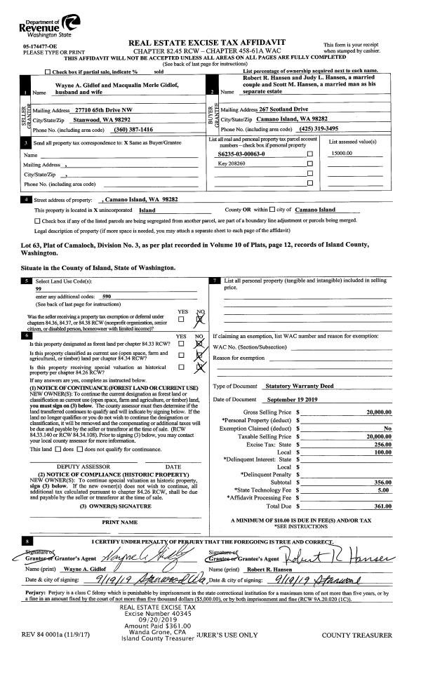
Property
Account |
| Property ID: | 65789 | Abbreviated Legal Description: | 90 - N/2 OF N660' OF W660' OF GL2 EX W20' |
| Geographic ID: | R23021-507-3050 | Agent Code: | |
| Type: | Real | | |
| Tax Area: | 312 - APPRAISER-Cpvl Schl Dist, outside Cpvl, improved, greater than 1 acre | Land Use Code | 11 |
| Open Space: | N | DFL | N |
| Historic Property: | N | Remodel Property: | N |
| Multi-Family Redevelopment: | N | | |
| Township: | 30 | Section: | 21 |
| Range: | R2 |
Location |
| Address: | 3621 MEERKERK LN GREENBANK, WA 98253 | Mapsco: | |
| Neighborhood: | Cycle 3 | Map ID: | 403 |
| Neighborhood CD: | 3 |
Owner |
| Name: | KESERIC TTEE, NORMAN W | Owner ID: | 289359 |
| Mailing Address: | DEBORAH KAY TELEW, TTEE 3621 MEERKERK LN GREENBANK, WA 98253 | % Ownership: | 100.0000000000% |
| | | Exemptions: | |
Taxes and Assessment Details
Values
| (+) Improvement Homesite Value: | + | $0 | |
| (+) Improvement Non-Homesite Value: | + | $392,140 | |
| (+) Land Homesite Value: | + | $0 | |
| (+) Land Non-Homesite Value: | + | $410,000 | |
| (+) Curr Use (HS): | + | $0 | $0 |
| (+) Curr Use (NHS): | + | $0 | $0 |
| | | -------------------------- | |
| (=) Market Value: | = | $802,140 | |
| (–) Productivity Loss: | – | $0 | |
| | | -------------------------- | |
| (=) Subtotal: | = | $802,140 | |
| (+) Senior Appraised Value: | + | $0 | |
| (+) Non-Senior Appraised Value: | + | $802,140 | |
| | | -------------------------- | |
| (=) Total Appraised Value: | = | $802,140 | |
| (–) Senior Exemption Loss: | – | $0 | |
| (–) Exemption Loss: | – | $0 | |
| | | -------------------------- | |
| (=) Taxable Value: | = | $802,140 | |
Taxing Jurisdiction
| Owner: | KESERIC TTEE, NORMAN W | | |
| % Ownership: | 100.0000000000% | | |
| Total Value: | $802,140 | | |
| Tax Area: | 312 - APPRAISER-Cpvl Schl Dist, outside Cpvl, improved, greater than 1 acre |
| CF | Conservation Futures | 0.0316035091 | $802,140 | $802,140 | $25.35 | | |
| CEM2 | Cemetery #2 | 0.0095056933 | $802,140 | $802,140 | $7.62 | | |
| FIRE5 | Fire & Rescue Dist #5 C Whidbey GEN | 1.2008080668 | $802,140 | $802,140 | $963.22 | | |
| FIRE5BOND | Fire & Rescue Dist #5 C Whidbey BOND | 0.1400090713 | $802,140 | $802,140 | $112.31 | | |
| HOBOND | Hospital BOND | 0.1910887512 | $802,140 | $802,140 | $153.28 | | |
| HOGEN | Hospital GEN | 0.3902502903 | $802,140 | $802,140 | $313.04 | | |
| CE | County Current Expense | 0.3708482477 | $802,140 | $802,140 | $297.47 | | |
| CR | County Roads | 0.4584763726 | $802,140 | $802,140 | $367.76 | | |
| ISLANDEMS | Hospital GEN (EMS) | 0.5000000000 | $802,140 | $802,140 | $401.07 | | |
| LIB | Library Sno-Isle GEN | 0.3153421757 | $802,140 | $802,140 | $252.95 | | |
| LIBCAP | Library Sno-Isle BOND (Cap Fac Imp Area) | 0.0543427938 | $802,140 | $802,140 | $43.59 | | |
| POCOUP | Port of Coupeville GEN | 0.1093371703 | $802,140 | $802,140 | $87.70 | | |
| POCOUPIDD | Port of Coupeville IDD | 0.3409740022 | $802,140 | $802,140 | $273.51 | | |
| COUPSDTECH | School 204 CP (TECH) | 0.7545480007 | $802,140 | $802,140 | $605.25 | | |
| SCH204MO | School 204 Enrichment | 0.6716186034 | $802,140 | $802,140 | $538.73 | | |
| ST | State School | 1.3035497053 | $802,140 | $802,140 | $1,045.63 | | |
| ST2 | State School Part 2 | 0.8169543533 | $802,140 | $802,140 | $655.31 | | |
| | Total Tax Rate: | 7.6592568070 | | | | | |
| | | | | Taxes w/Current Exemptions: | $6,143.79 | | |
| | | | | Taxes w/o Exemptions: | $6,143.79 | | |
Improvement / Building
| Improvement #1: | RESIDENTIAL | State Code: | Y | 2241.0 sqft | Value: | $392,140 |
| Bathrooms: | 1.5 | Bedrooms: | 2 | | Ceiling: | DRYWALL PAINTED | Cooling: | HEAT PUMP/CONV/V | | Exterior Wall/Cover: | PLY/HARDBOARD T-111 | Floor Covering: | HARDWOOD/CARP 80-20 | | Floor Structure: | WOOD W/SUBFLOOR | Foundation: | CONCRETE | | Interior Finish: | DRYWALL PAINT | Plumbing Fixture Cnt: | 9 | | Roof Slope: | 4" IN 12" | Roof Structure/Cover: | CJ ASPHALT |
|
| | Type | Description | Class CD | Sub Class CD | Year Built | Area |
| | BAS | BASE/MAIN FLOOR | 3 | 0 | 1974 | 1513.0 |
| | UPS | UPPER STORY | 3 | 0 | 1974 | 728.0 |
| | OWP | OPEN WOOD PORCH W/STEPS | 3 | 0 | 1974 | 48.0 |
| | OWP | OPEN WOOD PORCH W/STEPS | 3 | 0 | 1974 | 48.0 |
| | OWP | OPEN WOOD PORCH W/STEPS | 3 | 0 | 1974 | 586.0 |
| | DGR | DETACHED GARAGE | 3 | 0 | 1974 | 1680.0 |
| | UTY | STORAGE/UTILITY | 3 | 0 | 1974 | 360.0 |
Sketch
Property Image
Land
| 1 | 32 | AC (03.01-09.99) | 5.0000 | 0.00 | 0.00 | 0.00 | 1.00 | $410,000 | $0 |
Roll Value History
| 2026 | N/A | N/A | N/A | N/A | N/A |
| 2025 | $392,140 | $410,000 | $0 | $802,140 | $802,140 |
| 2024 | $396,853 | $390,000 | $0 | $786,853 | $786,853 |
| 2023 | $401,562 | $350,000 | $0 | $751,562 | $751,562 |
| 2022 | $367,894 | $350,000 | $0 | $717,894 | $717,894 |
| 2021 | $323,604 | $280,000 | $0 | $603,604 | $603,604 |
| 2020 | $315,976 | $240,000 | $0 | $555,976 | $555,976 |
| 2019 | $205,364 | $230,000 | $0 | $435,364 | $435,364 |
| 2018 | $205,895 | $200,000 | $0 | $405,895 | $405,895 |
| 2017 | $204,460 | $120,000 | $0 | $324,460 | $324,460 |
| 2016 | $206,554 | $120,000 | $0 | $326,554 | $326,554 |
| 2015 | $208,647 | $130,000 | $0 | $338,647 | $338,647 |
| 2014 | $210,739 | $125,000 | $0 | $335,739 | $335,739 |
| 2013 | $218,388 | $121,500 | $0 | $339,888 | $339,888 |
| 2012 | $220,540 | $121,500 | $0 | $342,040 | $342,040 |
| 2011 | $222,692 | $135,000 | $0 | $357,692 | $357,692 |
| 2010 | $229,404 | $135,000 | $0 | $364,404 | $364,404 |
| 2009 | $228,248 | $195,000 | $0 | $423,248 | $423,248 |
| 2008 | $230,979 | $168,750 | $0 | $399,729 | $399,729 |
| 2007 | $230,553 | $155,000 | $0 | $385,553 | $385,553 |
Deed and Sales History
| 1 | 04/22/2019 | QCD | Quit Claim Deed | KESERIC JTWROS, NORMAN W | KESERIC TTEE, NORMAN W | | | $0.00 | 38091 | 4461467 |
| 2 | 05/21/2015 | WD | Warranty Deed | JOHNSON TRUSTEE, DOREEN Q | KESERIC JTWROS, NORMAN W | | | $372,500.00 | 19716 | 4379086 |
| 3 | 04/23/2013 | TRUSTEED | Trustee's Deed | JOHNSON, DOREEN Q | JOHNSON TRUSTEE, DOREEN Q | | | $0.00 | 11627 | 4341798 |
| 4 | 04/23/2013 | TRUSTEED | Trustee's Deed | JOHNSON TRUSTEE, DOREEN Q | JOHNSON, DOREEN Q | | | $0.00 | 11626 | 4341796 |
| 5 | 11/26/2010 | QCD | Quit Claim Deed | JOHNSON, DOREEN Q | JOHNSON TRUSTEE, DOREEN Q | | | $0.00 | 2977 | 4285885 |
| 6 | 09/28/2004 | QCD | Quit Claim Deed | JOHNSON, DOREEN Q | JOHNSON, DOREEN Q | | | $0.00 | 44503 | 4113894 |
| 7 | 09/10/2004 | WD | Warranty Deed | STEADMAN, ANTHONY R | JOHNSON, DOREEN Q | | | $315,000.00 | 44306 | 4112779 |
| 8 | 03/01/1993 | WD | Warranty Deed | STEADMAN, ANTHONY R | STEADMAN, ANTHONY R | | | $149,500.00 | 30954 | 93004999 |
| 9 | 03/01/1993 | WD | Warranty Deed | LIPKE, FRED E | STEADMAN, ANTHONY R | | | $0.00 | 31358 | 93006965 |
| 10 | 09/01/1972 | CD | DNU - Correction Deed | LIPKE, EVELYN M | LIPKE, FRED E | | | $0.00 | 45313 | 0 |
| 11 | 01/01/1900 | OTHER | Other - Misc. Documents | Unknown | LIPKE, EVELYN M | | | $0.00 | 0 | 0 |
Payout Agreement
| No payout information available.. |