Property
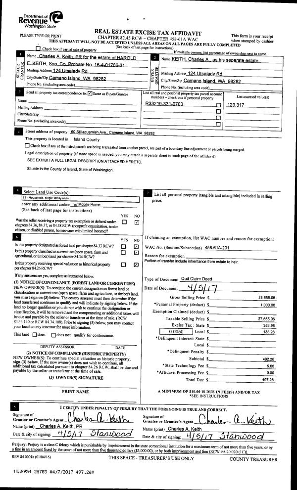
Account |
| Property ID: | 65805 | Abbreviated Legal Description: | 33 - IN GL2:BG NECR NW E660'TPB S100'E TO ML NLY ALG ML TP E OF TPB W TPB INCL ADJ TIDES EX TRIANGLE ALG NLN TGW EZ AF#86005450 |
| Geographic ID: | R23021-518-3750 | Agent Code: | |
| Type: | Real | | |
| Tax Area: | 312 - APPRAISER-Cpvl Schl Dist, outside Cpvl, improved, greater than 1 acre | Land Use Code | 11 |
| Open Space: | N | DFL | N |
| Historic Property: | N | Remodel Property: | N |
| Multi-Family Redevelopment: | N | | |
| Township: | 30 | Section: | 21 |
| Range: | R2 |
Location |
| Address: | 3604 SUNRISE VIEW LN GREENBANK, WA 98253 | Mapsco: | |
| Neighborhood: | Cycle 3 | Map ID: | 403 |
| Neighborhood CD: | 3 |
Owner |
| Name: | GULDEN, DANIEL | Owner ID: | 308621 |
| Mailing Address: | AMY GULDEN 3604 SUNRISE VIEW LN GREENBANK, WA 98253 | % Ownership: | 100.0000000000% |
| | | Exemptions: | |
Taxes and Assessment Details
Values
| (+) Improvement Homesite Value: | + | $0 | |
| (+) Improvement Non-Homesite Value: | + | $515,286 | |
| (+) Land Homesite Value: | + | $0 | |
| (+) Land Non-Homesite Value: | + | $726,000 | |
| (+) Curr Use (HS): | + | $0 | $0 |
| (+) Curr Use (NHS): | + | $0 | $0 |
| | | -------------------------- | |
| (=) Market Value: | = | $1,241,286 | |
| (–) Productivity Loss: | – | $0 | |
| | | -------------------------- | |
| (=) Subtotal: | = | $1,241,286 | |
| (+) Senior Appraised Value: | + | $0 | |
| (+) Non-Senior Appraised Value: | + | $1,241,286 | |
| | | -------------------------- | |
| (=) Total Appraised Value: | = | $1,241,286 | |
| (–) Senior Exemption Loss: | – | $0 | |
| (–) Exemption Loss: | – | $0 | |
| | | -------------------------- | |
| (=) Taxable Value: | = | $1,241,286 | |
Taxing Jurisdiction
| Owner: | GULDEN, DANIEL | | |
| % Ownership: | 100.0000000000% | | |
| Total Value: | $1,241,286 | | |
| Tax Area: | 312 - APPRAISER-Cpvl Schl Dist, outside Cpvl, improved, greater than 1 acre |
| CF | Conservation Futures | 0.0316035091 | $1,241,286 | $1,241,286 | $39.23 | | |
| CEM2 | Cemetery #2 | 0.0095056933 | $1,241,286 | $1,241,286 | $11.80 | | |
| FIRE5 | Fire & Rescue Dist #5 C Whidbey GEN | 1.2008080668 | $1,241,286 | $1,241,286 | $1,490.55 | | |
| FIRE5BOND | Fire & Rescue Dist #5 C Whidbey BOND | 0.1400090713 | $1,241,286 | $1,241,286 | $173.79 | | |
| HOBOND | Hospital BOND | 0.1910887512 | $1,241,286 | $1,241,286 | $237.20 | | |
| HOGEN | Hospital GEN | 0.3902502903 | $1,241,286 | $1,241,286 | $484.41 | | |
| CE | County Current Expense | 0.3708482477 | $1,241,286 | $1,241,286 | $460.33 | | |
| CR | County Roads | 0.4584763726 | $1,241,286 | $1,241,286 | $569.10 | | |
| ISLANDEMS | Hospital GEN (EMS) | 0.5000000000 | $1,241,286 | $1,241,286 | $620.64 | | |
| LIB | Library Sno-Isle GEN | 0.3153421757 | $1,241,286 | $1,241,286 | $391.43 | | |
| LIBCAP | Library Sno-Isle BOND (Cap Fac Imp Area) | 0.0543427938 | $1,241,286 | $1,241,286 | $67.45 | | |
| POCOUP | Port of Coupeville GEN | 0.1093371703 | $1,241,286 | $1,241,286 | $135.72 | | |
| POCOUPIDD | Port of Coupeville IDD | 0.3409740022 | $1,241,286 | $1,241,286 | $423.25 | | |
| COUPSDTECH | School 204 CP (TECH) | 0.7545480007 | $1,241,286 | $1,241,286 | $936.61 | | |
| SCH204MO | School 204 Enrichment | 0.6716186034 | $1,241,286 | $1,241,286 | $833.67 | | |
| ST | State School | 1.3035497053 | $1,241,286 | $1,241,286 | $1,618.08 | | |
| ST2 | State School Part 2 | 0.8169543533 | $1,241,286 | $1,241,286 | $1,014.07 | | |
| | Total Tax Rate: | 7.6592568070 | | | | | |
| | | | | Taxes w/Current Exemptions: | $9,507.33 | | |
| | | | | Taxes w/o Exemptions: | $9,507.33 | | |
Improvement / Building
| Improvement #1: | RESIDENTIAL | State Code: | Y | 1574.0 sqft | Value: | $515,286 |
| Bathrooms: | 2.5 | Bedrooms: | 2 | | Ceiling: | DRYWALL PAINTED | Cooling: | HEAT PUMP/CONV/V | | Exterior Wall/Cover: | WOOD SIDING | Floor Covering: | HARDWOOD 100% | | Floor Structure: | WOOD W/SUBFLOOR | Foundation: | CONCRETE | | Interior Finish: | DRYWALL PAINT | Plumbing Fixture Cnt: | 11 | | Roof Slope: | 3" IN 12" | Roof Structure/Cover: | BEAM ALUMINUM HEAVY |
|
| | Type | Description | Class CD | Sub Class CD | Year Built | Area |
| | BAS | BASE/MAIN FLOOR | 5 | 0 | 2017 | 1574.0 |
| | BGR | BASEMENT GARAGE | 5 | 0 | 2017 | 650.0 |
| | OWP | OPEN WOOD PORCH W/STEPS | 5 | 0 | 2017 | 204.0 |
| | OWP | OPEN WOOD PORCH W/STEPS | 5 | 0 | 2017 | 170.0 |
Sketch
Property Image
Land
| 1 | HB | HIGH BLUFF | 1.6652 | 72536.11 | 100.00 | 0.00 | 1.00 | $725,000 | $0 |
| 2 | 55 | TIDES | 0.0000 | 0.00 | 100.00 | 0.00 | 1.00 | $1,000 | $0 |
Roll Value History
| 2026 | N/A | N/A | N/A | N/A | N/A |
| 2025 | $515,286 | $726,000 | $0 | $1,241,286 | $1,241,286 |
| 2024 | $519,408 | $701,000 | $0 | $1,220,408 | $1,220,408 |
| 2023 | $511,162 | $651,000 | $0 | $1,162,162 | $1,162,162 |
| 2022 | $466,595 | $651,000 | $0 | $1,117,595 | $1,117,595 |
| 2021 | $408,985 | $301,000 | $0 | $709,985 | $709,985 |
| 2020 | $396,082 | $301,000 | $0 | $697,082 | $697,082 |
| 2019 | $298,814 | $376,000 | $0 | $674,814 | $674,814 |
| 2018 | $299,575 | $301,000 | $0 | $600,575 | $600,575 |
| 2017 | $78,882 | $201,000 | $0 | $279,882 | $279,882 |
| 2016 | $0 | $201,000 | $0 | $201,000 | $201,000 |
| 2015 | $0 | $201,000 | $0 | $201,000 | $201,000 |
| 2014 | $0 | $201,000 | $0 | $201,000 | $201,000 |
| 2013 | $0 | $196,600 | $0 | $196,600 | $196,600 |
| 2012 | $0 | $196,600 | $0 | $196,600 | $196,600 |
| 2011 | $0 | $196,600 | $0 | $196,600 | $196,600 |
| 2010 | $0 | $196,600 | $0 | $196,600 | $196,600 |
| 2009 | $0 | $261,801 | $0 | $261,801 | $261,801 |
| 2008 | $0 | $261,771 | $0 | $261,771 | $261,771 |
Deed and Sales History
| 1 | 05/15/2023 | WD | Warranty Deed | ENTER, BRUCE H | GULDEN, DANIEL | | | $1,300,000.00 | 56722 | 4559993 |
| 2 | 04/06/2017 | QCD | Quit Claim Deed | ENTER, BRUCE H | ENTER, BRUCE H | | | $0.00 | 28775 | 4420295 |
| 3 | 02/08/2008 | QCD | Quit Claim Deed | ENTER, BRUCE H | ENTER, BRUCE H | | | $0.00 | 80323 | 4221466 |
| 4 | 02/09/2006 | ESTSEPPROP | Establish Separate Property | ENTER, BRUCE H | ENTER, BRUCE H | | | $0.00 | 60565 | 4162093 |
| 5 | 02/08/2006 | WD | Warranty Deed | REES, DAVID A | ENTER, BRUCE H | | | $251,000.00 | 60564 | 4162092 |
| 6 | 01/01/1900 | OTHER | Other - Misc. Documents | Unknown | REES, DAVID A | | | $0.00 | 0 | 0 |
Payout Agreement
| No payout information available.. |