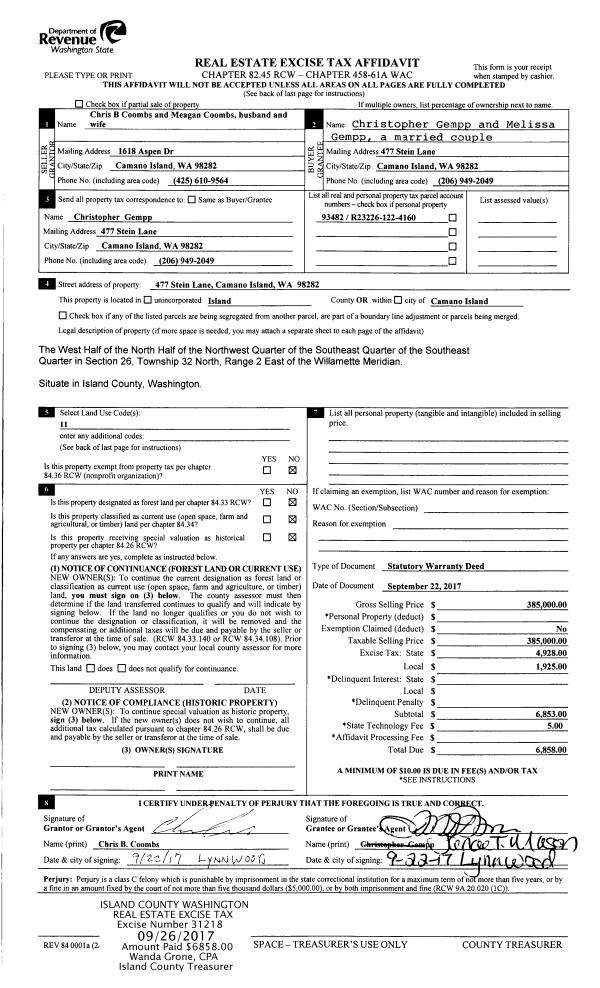
Property
Account |
| Property ID: | 65869 | Abbreviated Legal Description: | 18 - IN GL1: N216.7' OF GL1 EX S55' EX RD INCL ADJ TIDES TGW & SUB EZ AF#91008609 SITE PLAN REVIEW SPR #44-93 |
| Geographic ID: | R23022-120-0630 | Agent Code: | |
| Type: | Real | | |
| Tax Area: | 312 - APPRAISER-Cpvl Schl Dist, outside Cpvl, improved, greater than 1 acre | Land Use Code | 11 |
| Open Space: | N | DFL | N |
| Historic Property: | N | Remodel Property: | N |
| Multi-Family Redevelopment: | N | | |
| Township: | 30 | Section: | 22 |
| Range: | R2 |
Location |
| Address: | 3911 RESORT RD GREENBANK, WA 98253 | Mapsco: | |
| Neighborhood: | Cycle 3 | Map ID: | 404 |
| Neighborhood CD: | 3 |
Owner |
| Name: | 3911 RESORT LLC | Owner ID: | 315975 |
| Mailing Address: | 1415 ELLIOT PL, NW SUITE 100 WASHINGTON, DC 20007 | % Ownership: | 100.0000000000% |
| | | Exemptions: | |
Taxes and Assessment Details
Values
| (+) Improvement Homesite Value: | + | $0 | |
| (+) Improvement Non-Homesite Value: | + | $929,620 | |
| (+) Land Homesite Value: | + | $0 | |
| (+) Land Non-Homesite Value: | + | $776,610 | |
| (+) Curr Use (HS): | + | $0 | $0 |
| (+) Curr Use (NHS): | + | $0 | $0 |
| | | -------------------------- | |
| (=) Market Value: | = | $1,706,230 | |
| (–) Productivity Loss: | – | $0 | |
| | | -------------------------- | |
| (=) Subtotal: | = | $1,706,230 | |
| (+) Senior Appraised Value: | + | $0 | |
| (+) Non-Senior Appraised Value: | + | $1,706,230 | |
| | | -------------------------- | |
| (=) Total Appraised Value: | = | $1,706,230 | |
| (–) Senior Exemption Loss: | – | $0 | |
| (–) Exemption Loss: | – | $0 | |
| | | -------------------------- | |
| (=) Taxable Value: | = | $1,706,230 | |
Taxing Jurisdiction
| Owner: | 3911 RESORT LLC | | |
| % Ownership: | 100.0000000000% | | |
| Total Value: | $1,706,230 | | |
| Tax Area: | 312 - APPRAISER-Cpvl Schl Dist, outside Cpvl, improved, greater than 1 acre |
| CF | Conservation Futures | 0.0316035091 | $1,706,230 | $1,706,230 | $53.92 | | |
| CEM2 | Cemetery #2 | 0.0095056933 | $1,706,230 | $1,706,230 | $16.22 | | |
| FIRE5 | Fire & Rescue Dist #5 C Whidbey GEN | 1.2008080668 | $1,706,230 | $1,706,230 | $2,048.85 | | |
| FIRE5BOND | Fire & Rescue Dist #5 C Whidbey BOND | 0.1400090713 | $1,706,230 | $1,706,230 | $238.89 | | |
| HOBOND | Hospital BOND | 0.1910887512 | $1,706,230 | $1,706,230 | $326.04 | | |
| HOGEN | Hospital GEN | 0.3902502903 | $1,706,230 | $1,706,230 | $665.86 | | |
| CE | County Current Expense | 0.3708482477 | $1,706,230 | $1,706,230 | $632.75 | | |
| CR | County Roads | 0.4584763726 | $1,706,230 | $1,706,230 | $782.27 | | |
| ISLANDEMS | Hospital GEN (EMS) | 0.5000000000 | $1,706,230 | $1,706,230 | $853.12 | | |
| LIB | Library Sno-Isle GEN | 0.3153421757 | $1,706,230 | $1,706,230 | $538.05 | | |
| LIBCAP | Library Sno-Isle BOND (Cap Fac Imp Area) | 0.0543427938 | $1,706,230 | $1,706,230 | $92.72 | | |
| POCOUP | Port of Coupeville GEN | 0.1093371703 | $1,706,230 | $1,706,230 | $186.55 | | |
| POCOUPIDD | Port of Coupeville IDD | 0.3409740022 | $1,706,230 | $1,706,230 | $581.78 | | |
| COUPSDTECH | School 204 CP (TECH) | 0.7545480007 | $1,706,230 | $1,706,230 | $1,287.43 | | |
| SCH204MO | School 204 Enrichment | 0.6716186034 | $1,706,230 | $1,706,230 | $1,145.94 | | |
| ST | State School | 1.3035497053 | $1,706,230 | $1,706,230 | $2,224.16 | | |
| ST2 | State School Part 2 | 0.8169543533 | $1,706,230 | $1,706,230 | $1,393.91 | | |
| | Total Tax Rate: | 7.6592568070 | | | | | |
| | | | | Taxes w/Current Exemptions: | $13,068.46 | | |
| | | | | Taxes w/o Exemptions: | $13,068.46 | | |
Improvement / Building
| Improvement #1: | RESIDENTIAL | State Code: | Y | 2921.3 sqft | Value: | $696,182 |
| Bathrooms: | 2.75 | Bedrooms: | 2 | | Ceiling: | DRYWALL PAINTED | Exterior Wall/Cover: | WOOD SIDING | | Floor Covering: | CERAMIC TILE/CPT 40-60 | Floor Structure: | WOOD W/SUBFLOOR | | Foundation: | CONCRETE | Heating: | RADIANT FLOOR | | Interior Finish: | DRYWALL PAINT | Plumbing Fixture Cnt: | 16 | | Roof Slope: | 3" IN 12" | Roof Structure/Cover: | BEAM ALUMINUM HEAVY |
|
| | Type | Description | Class CD | Sub Class CD | Year Built | Area |
| | BAS | BASE/MAIN FLOOR | 5 | 0 | 1995 | 2921.3 |
| | OP2 | OPEN PORCH W/STEPS | 5 | 0 | 1995 | 1116.3 |
| | OP4 | OPEN PORCH W/CEILING-ROOF | 5 | 0 | 1995 | 61.2 |
| | OP4 | OPEN PORCH W/CEILING-ROOF | 5 | 0 | 1995 | 176.0 |
| | AGR | ATTACHED GARAGE | 5 | 0 | 1995 | 827.4 |
| | AGR | ATTACHED GARAGE | 5 | 0 | 2024 | 535.0 |
| Improvement #2: | RESIDENTIAL | State Code: | Y | 708.6 sqft | Value: | $233,438 |
| Bathrooms: | 1 | Bedrooms: | 1 | | Ceiling: | DRYWALL PAINTED | Exterior Wall/Cover: | WOOD SIDING | | Floor Covering: | CERAMIC TILE/CPT 40-60 | Floor Structure: | WOOD W/SUBFLOOR | | Foundation: | CONCRETE | Heating: | WALL HEAT ELECTRIC | | Interior Finish: | DRYWALL PAINT | Plumbing Fixture Cnt: | 6 | | Roof Slope: | 4" IN 12" | Roof Structure/Cover: | BEAM ALUMINUM HEAVY |
|
| | Type | Description | Class CD | Sub Class CD | Year Built | Area |
| | BAS | BASE/MAIN FLOOR | 4 | 0 | 1994 | 708.6 |
| | OP1 | OPEN PORCH SLAB | 4 | 0 | 1994 | 133.7 |
| | AGR | ATTACHED GARAGE | 4 | 0 | 1994 | 91.0 |
| | BIG | BUILT IN GARAGE | 4 | 0 | 1994 | 347.6 |
| | UB8 | BASEMENT UNFINISHED 8" | 4 | 0 | 1994 | 343.8 |
| | OWP | OPEN WOOD PORCH W/STEPS | 4 | 0 | 1994 | 265.9 |
Sketch
Property Image
Land
| 1 | HB | HIGH BLUFF | 5.0400 | 219542.40 | 161.00 | 0.00 | 1.00 | $775,000 | $0 |
| 2 | 55 | TIDES | 0.0000 | 0.00 | 161.00 | 0.00 | 1.00 | $1,610 | $0 |
Roll Value History
| 2026 | N/A | N/A | N/A | N/A | N/A |
| 2025 | $929,620 | $776,610 | $0 | $1,706,230 | $1,706,230 |
| 2024 | $940,921 | $726,610 | $0 | $1,667,531 | $1,667,531 |
| 2023 | $952,225 | $726,610 | $0 | $1,678,835 | $1,678,835 |
| 2022 | $872,496 | $726,610 | $0 | $1,599,106 | $1,599,106 |
| 2021 | $767,602 | $551,610 | $0 | $1,319,212 | $1,319,212 |
| 2020 | $746,790 | $501,610 | $0 | $1,248,400 | $1,248,400 |
| 2019 | $559,679 | $601,610 | $0 | $1,161,289 | $1,161,289 |
| 2018 | $561,337 | $501,610 | $0 | $1,062,947 | $1,062,947 |
| 2017 | $564,488 | $501,610 | $0 | $1,066,098 | $1,066,098 |
| 2016 | $571,129 | $501,610 | $0 | $1,072,739 | $1,072,739 |
| 2015 | $577,770 | $501,610 | $0 | $1,079,380 | $1,079,380 |
| 2014 | $584,412 | $501,610 | $0 | $1,086,022 | $1,086,022 |
| 2013 | $628,248 | $442,694 | $0 | $1,070,942 | $1,070,942 |
| 2012 | $635,982 | $442,694 | $0 | $1,078,676 | $1,078,676 |
| 2011 | $643,714 | $442,694 | $0 | $1,086,408 | $1,086,408 |
| 2010 | $655,496 | $442,694 | $0 | $1,098,190 | $1,098,190 |
| 2009 | $683,801 | $589,720 | $0 | $1,273,521 | $1,273,521 |
| 2008 | $692,258 | $589,701 | $0 | $1,281,959 | $1,281,959 |
| 2007 | $695,790 | $465,760 | $0 | $1,161,550 | $1,161,550 |
Deed and Sales History
| 1 | 03/18/2025 | BARGSLD | Bargain And Sale Deed | SETTY, RAJNISH | 3911 RESORT LLC | | | $0.00 | 62979 | 4583877 |
| 2 | 09/18/2017 | WD | Warranty Deed | FARQUHAR, BANNISTER W | SETTY, RAJNISH | | | $850,000.00 | 31113 | 4430315 |
| 3 | 02/01/1992 | WD | Warranty Deed | MAGNUSON, ADRIAN R | FARQUHAR, BANNISTER W | | | $175,000.00 | 20719 | 92003630 |
| 4 | 10/01/1989 | WD | Warranty Deed | KETTE, ROBERT W | MAGNUSON, ADRIAN R | | | $118,700.00 | 94343 | 89014207 |
| 5 | 04/01/1983 | QCD | Quit Claim Deed | KETTE, ROBERT W | KETTE, ROBERT W | | | $0.00 | 31823 | 411670 |
| 6 | 01/01/1900 | OTHER | Other - Misc. Documents | Unknown | KETTE, ROBERT W | | | $0.00 | 0 | 0 |
Payout Agreement
| No payout information available.. |