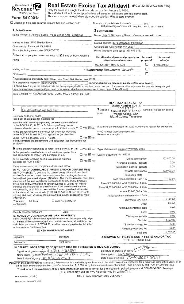
Property
Account |
| Property ID: | 658817 | Abbreviated Legal Description: | NE NE SW TGW & SUB EZ FR 270-2320 TGW & SUB EZ AF#95010466 |
| Geographic ID: | R32803-240-2330 | Agent Code: | |
| Type: | Real | | |
| Tax Area: | 712 - APPRAISER-S Whid Schl Dist, outside Langley, improved, greater than 1 acre | Land Use Code | 11 |
| Open Space: | N | DFL | N |
| Historic Property: | N | Remodel Property: | N |
| Multi-Family Redevelopment: | N | | |
| Township: | 28 | Section: | 03 |
| Range: | R3 |
Location |
| Address: | 7403 BARRED OWL WAY CLINTON, WA 98236 | Mapsco: | |
| Neighborhood: | Cycle 4 | Map ID: | 683 |
| Neighborhood CD: | 4 |
Owner |
| Name: | DEVRIES, TRAVIS J | Owner ID: | 278639 |
| Mailing Address: | MARK THRAPP 7403 BARRED OWL WAY CLINTON, WA 98236 | % Ownership: | 100.0000000000% |
| | | Exemptions: | |
Taxes and Assessment Details
Values
| (+) Improvement Homesite Value: | + | $0 | |
| (+) Improvement Non-Homesite Value: | + | $142,765 | |
| (+) Land Homesite Value: | + | $0 | |
| (+) Land Non-Homesite Value: | + | $400,000 | |
| (+) Curr Use (HS): | + | $0 | $0 |
| (+) Curr Use (NHS): | + | $0 | $0 |
| | | -------------------------- | |
| (=) Market Value: | = | $542,765 | |
| (–) Productivity Loss: | – | $0 | |
| | | -------------------------- | |
| (=) Subtotal: | = | $542,765 | |
| (+) Senior Appraised Value: | + | $0 | |
| (+) Non-Senior Appraised Value: | + | $542,765 | |
| | | -------------------------- | |
| (=) Total Appraised Value: | = | $542,765 | |
| (–) Senior Exemption Loss: | – | $0 | |
| (–) Exemption Loss: | – | $0 | |
| | | -------------------------- | |
| (=) Taxable Value: | = | $542,765 | |
Taxing Jurisdiction
| Owner: | DEVRIES, TRAVIS J | | |
| % Ownership: | 100.0000000000% | | |
| Total Value: | $542,765 | | |
| Tax Area: | 712 - APPRAISER-S Whid Schl Dist, outside Langley, improved, greater than 1 acre |
| CF | Conservation Futures | 0.0316035091 | $542,765 | $542,765 | $17.15 | | |
| FIRE3 | Fire & Rescue Dist #3 S Whidbey GEN | 1.2004855531 | $542,765 | $542,765 | $651.58 | | |
| HOBOND | Hospital BOND | 0.1910887512 | $542,765 | $542,765 | $103.72 | | |
| HOGEN | Hospital GEN | 0.3902502903 | $542,765 | $542,765 | $211.81 | | |
| CE | County Current Expense | 0.3708482477 | $542,765 | $542,765 | $201.28 | | |
| CR | County Roads | 0.4584763726 | $542,765 | $542,765 | $248.84 | | |
| ISLANDEMS | Hospital GEN (EMS) | 0.5000000000 | $542,765 | $542,765 | $271.38 | | |
| LIB | Library Sno-Isle GEN | 0.3153421757 | $542,765 | $542,765 | $171.16 | | |
| PORTWHID | Port of S Whidbey GEN | 0.1094540357 | $542,765 | $542,765 | $59.41 | | |
| SCH206BOND | School 206 BOND | 0.3161759235 | $542,765 | $542,765 | $171.61 | | |
| SCH206MO | School 206 Enrichment | 0.4547169547 | $542,765 | $542,765 | $246.80 | | |
| ST | State School | 1.3035497053 | $542,765 | $542,765 | $707.52 | | |
| ST2 | State School Part 2 | 0.8169543533 | $542,765 | $542,765 | $443.41 | | |
| SWHIDPRBD | P & R S Whidbey BOND | 0.0152817568 | $542,765 | $542,765 | $8.29 | | |
| SWHIDPRBD2 | P & R S Whidbey BOND2 | 0.0138911264 | $542,765 | $542,765 | $7.54 | | |
| SWHIDPRMT | P & R S Whidbey GEN | 0.2053334452 | $542,765 | $542,765 | $111.45 | | |
| | Total Tax Rate: | 6.6934522006 | | | | | |
| | | | | Taxes w/Current Exemptions: | $3,632.95 | | |
| | | | | Taxes w/o Exemptions: | $3,632.95 | | |
Improvement / Building
| Improvement #1: | RESIDENTIAL | State Code: | Y | 1172.5 sqft | Value: | $142,765 |
| Bathrooms: | 1 | Bedrooms: | 1 | | Ceiling: | TONGUE & GROOVE | Exterior Wall/Cover: | PLY/HARDBOARD T-111 | | Floor Covering: | VINYL/HARDWOOD 80-20 | Floor Structure: | SLAB ABOVE GRADE | | Foundation: | SLAB | Heating: | (NONE) | | Interior Finish: | DRYWALL PAINT | Plumbing Fixture Cnt: | 5 | | Roof Slope: | 10" IN 12" | Roof Structure/Cover: | BEAM ASPHALT |
|
| | Type | Description | Class CD | Sub Class CD | Year Built | Area |
| | BAS | BASE/MAIN FLOOR | 2 | 0 | 1997 | 1172.5 |
| | UTY | STORAGE/UTILITY | 2 | 0 | 1997 | 22.5 |
| | oOBD | Out Buildings | 2 | 0 | 1997 | 0.0 |
| | OWP | OPEN WOOD PORCH W/STEPS | 2 | 0 | 1997 | 192.0 |
| | OP4 | OPEN PORCH W/CEILING-ROOF | 2 | 0 | 1997 | 82.5 |
Sketch
Property Image
Land
| 1 | 35 | AC (10.00-30.99) | 10.0000 | 435600.00 | 0.00 | 0.00 | 1.00 | $400,000 | $0 |
Roll Value History
| 2026 | N/A | N/A | N/A | N/A | N/A |
| 2025 | $142,765 | $400,000 | $0 | $542,765 | $542,765 |
| 2024 | $150,005 | $360,000 | $0 | $510,005 | $510,005 |
| 2023 | $151,885 | $360,000 | $0 | $511,885 | $511,885 |
| 2022 | $139,518 | $350,000 | $0 | $489,518 | $489,518 |
| 2021 | $123,191 | $250,000 | $0 | $373,191 | $373,191 |
| 2020 | $113,343 | $250,000 | $0 | $363,343 | $363,343 |
| 2019 | $85,228 | $160,000 | $0 | $245,228 | $245,228 |
| 2018 | $85,490 | $150,000 | $0 | $235,490 | $235,490 |
| 2017 | $86,015 | $150,000 | $0 | $236,015 | $236,015 |
| 2016 | $105,828 | $200,000 | $0 | $305,828 | $305,828 |
| 2015 | $107,113 | $200,000 | $0 | $307,113 | $307,113 |
| 2014 | $29,443 | $180,000 | $0 | $209,443 | $209,443 |
| 2013 | $29,443 | $180,000 | $0 | $209,443 | $209,443 |
| 2012 | $29,443 | $150,000 | $0 | $179,443 | $179,443 |
| 2011 | $29,443 | $150,000 | $0 | $179,443 | $179,443 |
| 2010 | $29,443 | $150,000 | $0 | $179,443 | $179,443 |
| 2009 | $32,820 | $219,639 | $0 | $252,459 | $252,459 |
| 2008 | $30,824 | $200,000 | $0 | $230,824 | $230,824 |
| 2007 | $31,594 | $200,000 | $0 | $231,594 | $231,594 |
Deed and Sales History
| 1 | 02/23/2017 | WD | Warranty Deed | SMITH, BERNARD K | DEVRIES, TRAVIS J | | | $225,000.00 | 28194 | 4417757 |
| 2 | 04/01/1991 | QCD | Quit Claim Deed | SMITH, JOHN W | SMITH, BERNARD K | | | $0.00 | 11195 | 91005077 |
| 3 | 01/01/1900 | OTHER | Other - Misc. Documents | Unknown | SMITH, JOHN W | | | $0.00 | 40299 | 420618 |
Payout Agreement
| No payout information available.. |