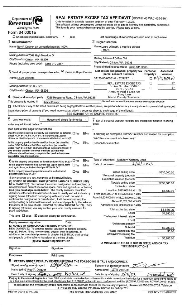
Property
Account |
| Property ID: | 65887 | Abbreviated Legal Description: | 2 - S5 AC OF N20 AC OF GL2 TGW N5 AC OF S12-1/2 AC OF GL2 EX W20' INCL ADJ TIDES |
| Geographic ID: | R23022-177-0600 | Agent Code: | |
| Type: | Real | | |
| Tax Area: | 312 - APPRAISER-Cpvl Schl Dist, outside Cpvl, improved, greater than 1 acre | Land Use Code | 11 |
| Open Space: | N | DFL | N |
| Historic Property: | N | Remodel Property: | N |
| Multi-Family Redevelopment: | N | | |
| Township: | 30 | Section: | 22 |
| Range: | R2 |
Location |
| Address: | 3865 RESORT RD GREENBANK, WA 98253 | Mapsco: | |
| Neighborhood: | Cycle 3 | Map ID: | 404 |
| Neighborhood CD: | 3 |
Owner |
| Name: | REESE JTWROS, MARK C. | Owner ID: | 306890 |
| Mailing Address: | CYNTHIA B. REESE JTWROS 3865 RESORT RD GREENBANK, WA 98253 | % Ownership: | 100.0000000000% |
| | | Exemptions: | |
Taxes and Assessment Details
Values
| (+) Improvement Homesite Value: | + | $0 | |
| (+) Improvement Non-Homesite Value: | + | $342,229 | |
| (+) Land Homesite Value: | + | $0 | |
| (+) Land Non-Homesite Value: | + | $979,000 | |
| (+) Curr Use (HS): | + | $0 | $0 |
| (+) Curr Use (NHS): | + | $0 | $0 |
| | | -------------------------- | |
| (=) Market Value: | = | $1,321,229 | |
| (–) Productivity Loss: | – | $0 | |
| | | -------------------------- | |
| (=) Subtotal: | = | $1,321,229 | |
| (+) Senior Appraised Value: | + | $0 | |
| (+) Non-Senior Appraised Value: | + | $1,321,229 | |
| | | -------------------------- | |
| (=) Total Appraised Value: | = | $1,321,229 | |
| (–) Senior Exemption Loss: | – | $0 | |
| (–) Exemption Loss: | – | $0 | |
| | | -------------------------- | |
| (=) Taxable Value: | = | $1,321,229 | |
Taxing Jurisdiction
| Owner: | REESE JTWROS, MARK C. | | |
| % Ownership: | 100.0000000000% | | |
| Total Value: | $1,321,229 | | |
| Tax Area: | 312 - APPRAISER-Cpvl Schl Dist, outside Cpvl, improved, greater than 1 acre |
| CF | Conservation Futures | 0.0316035091 | $1,321,229 | $1,321,229 | $41.76 | | |
| CEM2 | Cemetery #2 | 0.0095056933 | $1,321,229 | $1,321,229 | $12.56 | | |
| FIRE5 | Fire & Rescue Dist #5 C Whidbey GEN | 1.2008080668 | $1,321,229 | $1,321,229 | $1,586.54 | | |
| FIRE5BOND | Fire & Rescue Dist #5 C Whidbey BOND | 0.1400090713 | $1,321,229 | $1,321,229 | $184.98 | | |
| HOBOND | Hospital BOND | 0.1910887512 | $1,321,229 | $1,321,229 | $252.47 | | |
| HOGEN | Hospital GEN | 0.3902502903 | $1,321,229 | $1,321,229 | $515.61 | | |
| CE | County Current Expense | 0.3708482477 | $1,321,229 | $1,321,229 | $489.98 | | |
| CR | County Roads | 0.4584763726 | $1,321,229 | $1,321,229 | $605.75 | | |
| ISLANDEMS | Hospital GEN (EMS) | 0.5000000000 | $1,321,229 | $1,321,229 | $660.61 | | |
| LIB | Library Sno-Isle GEN | 0.3153421757 | $1,321,229 | $1,321,229 | $416.64 | | |
| LIBCAP | Library Sno-Isle BOND (Cap Fac Imp Area) | 0.0543427938 | $1,321,229 | $1,321,229 | $71.80 | | |
| POCOUP | Port of Coupeville GEN | 0.1093371703 | $1,321,229 | $1,321,229 | $144.46 | | |
| POCOUPIDD | Port of Coupeville IDD | 0.3409740022 | $1,321,229 | $1,321,229 | $450.50 | | |
| COUPSDTECH | School 204 CP (TECH) | 0.7545480007 | $1,321,229 | $1,321,229 | $996.93 | | |
| SCH204MO | School 204 Enrichment | 0.6716186034 | $1,321,229 | $1,321,229 | $887.36 | | |
| ST | State School | 1.3035497053 | $1,321,229 | $1,321,229 | $1,722.29 | | |
| ST2 | State School Part 2 | 0.8169543533 | $1,321,229 | $1,321,229 | $1,079.38 | | |
| | Total Tax Rate: | 7.6592568070 | | | | | |
| | | | | Taxes w/Current Exemptions: | $10,119.62 | | |
| | | | | Taxes w/o Exemptions: | $10,119.62 | | |
Improvement / Building
| Improvement #1: | RESIDENTIAL | State Code: | Y | 2752.0 sqft | Value: | $342,229 |
| Bathrooms: | 3.5 | Bedrooms: | 4 | | Ceiling: | DRYWALL PAINTED | Exterior Wall/Cover: | WOOD SIDING | | Floor Covering: | HARDWOOD/CARP 60-40 | Floor Structure: | WOOD W/SUBFLOOR | | Foundation: | CONCRETE | Heating: | FHA GAS | | Interior Finish: | DRYWALL PAINT | Plumbing Fixture Cnt: | 14 | | Roof Slope: | 8" IN 12" | Roof Structure/Cover: | CJ ASPHALT |
|
| | Type | Description | Class CD | Sub Class CD | Year Built | Area |
| | BAS | BASE/MAIN FLOOR | 3 | 0 | 1995 | 2008.0 |
| | DGR | DETACHED GARAGE | 3 | 0 | 1995 | 580.0 |
| | UPS | UPPER STORY | 3 | 0 | 1995 | 744.0 |
| | ATU | ATTIC UNFINISHED | 3 | 0 | 1995 | 256.0 |
| | ATU | ATTIC UNFINISHED | 3 | 0 | 1995 | 256.0 |
| | OWP | OPEN WOOD PORCH W/STEPS | 3 | 0 | 1995 | 236.5 |
| | OWC | OPEN WOOD PORCH W/STEPS/ROOF/C | 3 | 0 | 1995 | 272.0 |
| | OWC | OPEN WOOD PORCH W/STEPS/ROOF/C | 3 | 0 | 1995 | 144.0 |
| | OWC | OPEN WOOD PORCH W/STEPS/ROOF/C | 3 | 0 | 1995 | 168.0 |
| | UTY | STORAGE/UTILITY | 3 | 0 | 1995 | 400.0 |
Sketch
Property Image
Land
| 1 | 55 | TIDES | 0.4591 | 20000.00 | 400.00 | 0.00 | 1.00 | $4,000 | $0 |
| 2 | HB | HIGH BLUFF | 9.7800 | 426016.80 | 400.00 | 0.00 | 1.00 | $975,000 | $0 |
Roll Value History
| 2026 | N/A | N/A | N/A | N/A | N/A |
| 2025 | $342,229 | $979,000 | $0 | $1,321,229 | $1,321,229 |
| 2024 | $346,841 | $929,000 | $0 | $1,275,841 | $1,275,841 |
| 2023 | $351,447 | $904,000 | $0 | $1,255,447 | $1,255,447 |
| 2022 | $322,411 | $904,000 | $0 | $1,226,411 | $1,226,411 |
| 2021 | $283,987 | $804,000 | $0 | $1,087,987 | $1,087,987 |
| 2020 | $277,352 | $704,000 | $0 | $981,352 | $981,352 |
| 2019 | $221,567 | $804,000 | $0 | $1,025,567 | $1,025,567 |
| 2018 | $222,226 | $804,000 | $0 | $1,026,226 | $1,026,226 |
| 2017 | $223,541 | $804,000 | $0 | $1,027,541 | $1,027,541 |
| 2016 | $226,178 | $804,000 | $0 | $1,030,178 | $1,030,178 |
| 2015 | $228,811 | $804,000 | $0 | $1,032,811 | $1,032,811 |
| 2014 | $231,449 | $804,000 | $0 | $1,035,449 | $1,035,449 |
| 2013 | $296,207 | $804,000 | $0 | $1,100,207 | $1,100,207 |
| 2012 | $300,000 | $500,000 | $0 | $800,000 | $800,000 |
| 2011 | $235,759 | $881,322 | $0 | $1,117,081 | $1,117,081 |
| 2010 | $238,242 | $881,322 | $0 | $1,119,564 | $1,119,564 |
Deed and Sales History
| 1 | 12/01/2022 | QCD | Quit Claim Deed | REESE TTEE, MARK C | REESE JTWROS, MARK C. | | | $0.00 | 55301 | 4554471 |
| 2 | 06/10/2022 | QCD | Quit Claim Deed | REESE, MARK C | REESE TTEE, MARK C | | | $0.00 | 53414 | 4546499 |
| 3 | 06/09/2010 | QCD | Quit Claim Deed | WILMINGTON TRUST RETIREMENT | REESE, MARK C | | | | 1407 | 4275239 |
| 4 | 10/28/2008 | OTHER | Other - Misc. Documents | REESE, MARK C | WILMINGTON TRUST RETIREMENT | | | | 81036 | 4238986 |
| 5 | 03/26/2003 | OTHER | Other - Misc. Documents | NYHAGEN, MELVERN J | COY TRUSTEE OF NYHAGEN TRUST, | | | $0.00 | 69779 | 0 |
| 6 | 06/01/1995 | REC | Real Estate Contract | NYHAGEN, MELVERN J | NYHAGEN, MELVERN J | | | $163,023.00 | 51960 | 95009103 |
| 7 | 11/01/1993 | WD | Warranty Deed | NYHAGEN, MELVERN J | NYHAGEN, MELVERN J | | | $0.00 | 34822 | 93025165 |
| 8 | 04/01/1992 | WD | Warranty Deed | COY, FRANK M | NYHAGEN, MELVERN J | | | $300,000.00 | 21215 | 92005879 |
| 9 | 11/01/1968 | EXECUTORD | Executor Deed | ESTES, MYRNA F | COY, FRANK M | | | $37,500.00 | 33443 | 0 |
| 10 | 01/01/1900 | OTHER | Other - Misc. Documents | Unknown | ESTES, MYRNA F | | | $0.00 | 0 | 0 |
Payout Agreement
| No payout information available.. |