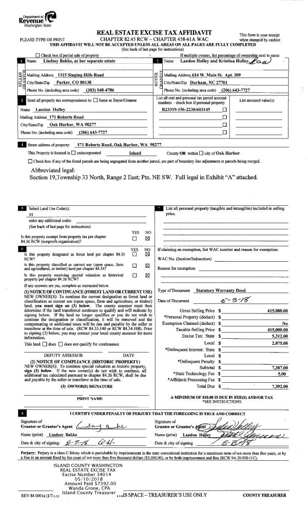
Property
Account |
| Property ID: | 65896 | Abbreviated Legal Description: | 10 - IN GL2: S 10AC OF N 15AC OF GL2 EX W20' INCL ADJ TIDES |
| Geographic ID: | R23022-220-0570 | Agent Code: | |
| Type: | Real | | |
| Tax Area: | 312 - APPRAISER-Cpvl Schl Dist, outside Cpvl, improved, greater than 1 acre | Land Use Code | 11 |
| Open Space: | N | DFL | N |
| Historic Property: | N | Remodel Property: | N |
| Multi-Family Redevelopment: | N | | |
| Township: | 30 | Section: | 22 |
| Range: | R2 |
Location |
| Address: | 3835 RESORT RD GREENBANK, WA 98253 | Mapsco: | |
| Neighborhood: | Cycle 3 | Map ID: | 404 |
| Neighborhood CD: | 3 |
Owner |
| Name: | THOMPSON III TTEE, AUSTIN B | Owner ID: | 317033 |
| Mailing Address: | DOROTHY H THOMPSON TTEE 3835 RESORTS RD GREENBANK, WA 98253 | % Ownership: | 100.0000000000% |
| | | Exemptions: | |
Taxes and Assessment Details
Values
| (+) Improvement Homesite Value: | + | $0 | |
| (+) Improvement Non-Homesite Value: | + | $648,744 | |
| (+) Land Homesite Value: | + | $0 | |
| (+) Land Non-Homesite Value: | + | $979,000 | |
| (+) Curr Use (HS): | + | $0 | $0 |
| (+) Curr Use (NHS): | + | $0 | $0 |
| | | -------------------------- | |
| (=) Market Value: | = | $1,627,744 | |
| (–) Productivity Loss: | – | $0 | |
| | | -------------------------- | |
| (=) Subtotal: | = | $1,627,744 | |
| (+) Senior Appraised Value: | + | $0 | |
| (+) Non-Senior Appraised Value: | + | $1,627,744 | |
| | | -------------------------- | |
| (=) Total Appraised Value: | = | $1,627,744 | |
| (–) Senior Exemption Loss: | – | $0 | |
| (–) Exemption Loss: | – | $0 | |
| | | -------------------------- | |
| (=) Taxable Value: | = | $1,627,744 | |
Taxing Jurisdiction
| Owner: | THOMPSON III TTEE, AUSTIN B | | |
| % Ownership: | 100.0000000000% | | |
| Total Value: | $1,627,744 | | |
| Tax Area: | 312 - APPRAISER-Cpvl Schl Dist, outside Cpvl, improved, greater than 1 acre |
| CF | Conservation Futures | 0.0316035091 | $1,627,744 | $1,627,744 | $51.44 | | |
| CEM2 | Cemetery #2 | 0.0095056933 | $1,627,744 | $1,627,744 | $15.47 | | |
| FIRE5 | Fire & Rescue Dist #5 C Whidbey GEN | 1.2008080668 | $1,627,744 | $1,627,744 | $1,954.61 | | |
| FIRE5BOND | Fire & Rescue Dist #5 C Whidbey BOND | 0.1400090713 | $1,627,744 | $1,627,744 | $227.90 | | |
| HOBOND | Hospital BOND | 0.1910887512 | $1,627,744 | $1,627,744 | $311.04 | | |
| HOGEN | Hospital GEN | 0.3902502903 | $1,627,744 | $1,627,744 | $635.23 | | |
| CE | County Current Expense | 0.3708482477 | $1,627,744 | $1,627,744 | $603.65 | | |
| CR | County Roads | 0.4584763726 | $1,627,744 | $1,627,744 | $746.28 | | |
| ISLANDEMS | Hospital GEN (EMS) | 0.5000000000 | $1,627,744 | $1,627,744 | $813.87 | | |
| LIB | Library Sno-Isle GEN | 0.3153421757 | $1,627,744 | $1,627,744 | $513.30 | | |
| LIBCAP | Library Sno-Isle BOND (Cap Fac Imp Area) | 0.0543427938 | $1,627,744 | $1,627,744 | $88.46 | | |
| POCOUP | Port of Coupeville GEN | 0.1093371703 | $1,627,744 | $1,627,744 | $177.97 | | |
| POCOUPIDD | Port of Coupeville IDD | 0.3409740022 | $1,627,744 | $1,627,744 | $555.02 | | |
| COUPSDTECH | School 204 CP (TECH) | 0.7545480007 | $1,627,744 | $1,627,744 | $1,228.21 | | |
| SCH204MO | School 204 Enrichment | 0.6716186034 | $1,627,744 | $1,627,744 | $1,093.22 | | |
| ST | State School | 1.3035497053 | $1,627,744 | $1,627,744 | $2,121.85 | | |
| ST2 | State School Part 2 | 0.8169543533 | $1,627,744 | $1,627,744 | $1,329.79 | | |
| | Total Tax Rate: | 7.6592568070 | | | | | |
| | | | | Taxes w/Current Exemptions: | $12,467.31 | | |
| | | | | Taxes w/o Exemptions: | $12,467.31 | | |
Improvement / Building
| Improvement #1: | RESIDENTIAL | State Code: | Y | 3334.0 sqft | Value: | $648,744 |
| Bathrooms: | 3.5 | Bedrooms: | 3 | | Ceiling: | DRYWALL PAINTED | Cooling: | HEAT PUMP/CONV/V | | Exterior Wall/Cover: | CEMENT FIBER | Floor Covering: | CARPET/VINYL 60-40 | | Floor Structure: | WOOD W/SUBFLOOR | Foundation: | CONCRETE | | Interior Finish: | DRYWALL PAINT | Plumbing Fixture Cnt: | 16 | | Roof Slope: | 4" IN 12" | Roof Structure/Cover: | CJ ASPHALT |
|
| | Type | Description | Class CD | Sub Class CD | Year Built | Area |
| | BAS | BASE/MAIN FLOOR | 4 | 0 | 2020 | 3334.0 |
| | AGR | ATTACHED GARAGE | 4 | 0 | 2020 | 735.0 |
| | OWP | OPEN WOOD PORCH W/STEPS | 4 | 0 | 2020 | 252.0 |
| | OWR | OPEN WOOD PORCH W/STEPS/ROOF | 4 | 0 | 2020 | 451.0 |
| | OCP | OPEN CARPORT | 4 | 0 | 2020 | 576.0 |
| | UTY | STORAGE/UTILITY | 4 | 0 | 2020 | 510.0 |
Sketch
Property Image
Land
| 1 | HB | HIGH BLUFF | 9.8200 | 427759.20 | 400.00 | 0.00 | 1.00 | $975,000 | $0 |
| 2 | 55 | TIDES | 0.0000 | 0.00 | 400.00 | 0.00 | 1.00 | $4,000 | $0 |
Roll Value History
| 2026 | N/A | N/A | N/A | N/A | N/A |
| 2025 | $648,744 | $979,000 | $0 | $1,627,744 | $1,627,744 |
| 2024 | $653,853 | $929,000 | $0 | $1,582,853 | $1,582,853 |
| 2023 | $658,963 | $904,000 | $0 | $1,562,963 | $1,562,963 |
| 2022 | $603,846 | $904,000 | $0 | $1,507,846 | $1,507,846 |
| 2021 | $535,773 | $804,000 | $0 | $1,339,773 | $1,339,773 |
| 2020 | $73,043 | $704,000 | $0 | $777,043 | $777,043 |
| 2019 | $149,967 | $804,000 | $0 | $953,967 | $953,967 |
| 2018 | $150,441 | $804,000 | $0 | $954,441 | $954,441 |
| 2017 | $151,354 | $804,000 | $0 | $955,354 | $955,354 |
| 2016 | $153,248 | $804,000 | $0 | $957,248 | $957,248 |
| 2015 | $155,141 | $804,000 | $0 | $959,141 | $959,141 |
| 2014 | $157,035 | $804,000 | $0 | $961,035 | $961,035 |
| 2013 | $158,929 | $804,000 | $0 | $962,929 | $962,929 |
| 2012 | $179,487 | $881,322 | $0 | $1,060,809 | $1,060,809 |
| 2011 | $181,433 | $922,608 | $0 | $1,104,041 | $1,104,041 |
| 2010 | $193,770 | $922,608 | $0 | $1,116,378 | $1,116,378 |
| 2009 | $201,097 | $1,228,814 | $0 | $1,429,911 | $1,429,911 |
| 2008 | $203,543 | $1,228,814 | $0 | $1,432,357 | $1,432,357 |
| 2007 | $205,194 | $970,196 | $0 | $1,175,390 | $1,175,390 |
Deed and Sales History
| 1 | 06/19/2025 | QCD | Quit Claim Deed | THOMPSON III, AUSTIN BASSETT | THOMPSON III TTEE, AUSTIN B | | | $0.00 | 63857 | 4587193 |
| 2 | 06/28/2018 | WD | Warranty Deed | FAN, MING | THOMPSON III, AUSTIN BASSETT | | | $880,000.00 | 34887 | 4447526 |
| 3 | 03/09/2012 | WD | Warranty Deed | BUCK, JOHN AND CHRISTINE | FAN, MING | | | $775,000.00 | 7126 | 4311703 |
| 4 | 10/08/2007 | QCD | Quit Claim Deed | COY, FRANK M | BUCK, JOHN AND CHRISTINE | | | $0.00 | 73514 | 4214680 |
| 5 | 01/01/1993 | QCD | Quit Claim Deed | COY, FRANK M | COY, FRANK M | | | $0.00 | 30076 | 93000370 |
| 6 | 04/01/1977 | TRUSTEED | Trustee's Deed | CLARK, ANDREW A | COY, FRANK M | | | $38,000.00 | 71538 | 0 |
| 7 | 01/01/1900 | OTHER | Other - Misc. Documents | Unknown | CLARK, ANDREW A | | | $0.00 | 0 | 0 |
Payout Agreement
| No payout information available.. |