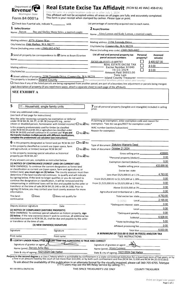
Property
Account |
| Property ID: | 659022 | Abbreviated Legal Description: | THE COURTYARD CONDO APT D-3 1/31 INT |
| Geographic ID: | S6423-00-0000D-3 | Agent Code: | |
| Type: | Real | | |
| Tax Area: | 100 - APPRAISER-OH Schl Dist, in OH | Land Use Code | 14 |
| Open Space: | N | DFL | N |
| Historic Property: | N | Remodel Property: | N |
| Multi-Family Redevelopment: | N | | |
| Township: | | Section: | |
| Range: | |
Location |
| Address: | 730 SE 8TH AVE BLDG D APT 201 OAK HARBOR, WA 98277 | Mapsco: | |
| Neighborhood: | 12*OH-courtyard | Map ID: | 88 |
| Neighborhood CD: | 12*OHctyrd |
Owner |
| Name: | MCCOLLUM, MEGAN | Owner ID: | 316222 |
| Mailing Address: | 730 SE 8TH AVE, UNIT D102 OAK HARBOR, WA 98277 | % Ownership: | 100.0000000000% |
| | | Exemptions: | |
Taxes and Assessment Details
Values
| (+) Improvement Homesite Value: | + | $0 | |
| (+) Improvement Non-Homesite Value: | + | $189,617 | |
| (+) Land Homesite Value: | + | $0 | |
| (+) Land Non-Homesite Value: | + | $110,000 | |
| (+) Curr Use (HS): | + | $0 | $0 |
| (+) Curr Use (NHS): | + | $0 | $0 |
| | | -------------------------- | |
| (=) Market Value: | = | $299,617 | |
| (–) Productivity Loss: | – | $0 | |
| | | -------------------------- | |
| (=) Subtotal: | = | $299,617 | |
| (+) Senior Appraised Value: | + | $0 | |
| (+) Non-Senior Appraised Value: | + | $299,617 | |
| | | -------------------------- | |
| (=) Total Appraised Value: | = | $299,617 | |
| (–) Senior Exemption Loss: | – | $0 | |
| (–) Exemption Loss: | – | $0 | |
| | | -------------------------- | |
| (=) Taxable Value: | = | $299,617 | |
Taxing Jurisdiction
| Owner: | MCCOLLUM, MEGAN | | |
| % Ownership: | 100.0000000000% | | |
| Total Value: | $299,617 | | |
| Tax Area: | 100 - APPRAISER-OH Schl Dist, in OH |
| CF | Conservation Futures | 0.0316035091 | $299,617 | $299,617 | $9.47 | | |
| CEM1 | Cemetery #1 | 0.0040320932 | $299,617 | $299,617 | $1.21 | | |
| COH | City of Oak Harbor | 2.3001546061 | $299,617 | $299,617 | $689.17 | | |
| OAKBOND | City of Oak Harbor BOND | 0.1926904192 | $299,617 | $299,617 | $57.73 | | |
| HOBOND | Hospital BOND | 0.1910887512 | $299,617 | $299,617 | $57.25 | | |
| HOGEN | Hospital GEN | 0.3902502903 | $299,617 | $299,617 | $116.93 | | |
| CE | County Current Expense | 0.3708482477 | $299,617 | $299,617 | $111.11 | | |
| ISLANDEMS | Hospital GEN (EMS) | 0.5000000000 | $299,617 | $299,617 | $149.81 | | |
| LIB | Library Sno-Isle GEN | 0.3153421757 | $299,617 | $299,617 | $94.48 | | |
| NWHIDPRMT | P & R N Whidbey GEN | 0.2004466701 | $299,617 | $299,617 | $60.06 | | |
| SCH201MO | School 201 Enrichment | 1.8559231640 | $299,617 | $299,617 | $556.07 | | |
| ST | State School | 1.3035497053 | $299,617 | $299,617 | $390.57 | | |
| ST2 | State School Part 2 | 0.8169543533 | $299,617 | $299,617 | $244.77 | | |
| | Total Tax Rate: | 8.4728839852 | | | | | |
| | | | | Taxes w/Current Exemptions: | $2,538.63 | | |
| | | | | Taxes w/o Exemptions: | $2,538.63 | | |
Improvement / Building
| Improvement #1: | RESIDENTIAL | State Code: | Y | 986.8 sqft | Value: | $189,617 |
| Bathrooms: | 1.75 | Bedrooms: | 2 | | Ceiling: | DRYWALL PAINTED | Exterior Wall/Cover: | VINYL | | Floor Covering: | CARPET/VINYL 80-20 | Floor Structure: | WOOD W/SUBFLOOR | | Foundation: | CONCRETE | Heating: | WALL HEAT ELECTRIC | | Interior Finish: | DRYWALL PAINT | Plumbing Fixture Cnt: | 9 | | Roof Slope: | 4" IN 12" | Roof Structure/Cover: | CJ ASPHALT |
|
| | Type | Description | Class CD | Sub Class CD | Year Built | Area |
| | BAS | BASE/MAIN FLOOR | 3 | 0 | 1991 | 986.8 |
| | OWR | OPEN WOOD PORCH W/STEPS/ROOF | 3 | 0 | 1991 | 16.3 |
| | UTY | STORAGE/UTILITY | 3 | 0 | 1991 | 15.4 |
| | OWR | OPEN WOOD PORCH W/STEPS/ROOF | 3 | 0 | 1991 | 49.8 |
| | OCP | OPEN CARPORT | 3 | 0 | 1991 | 162.0 |
| | oPV1 | PV/ASPH 2" | 3 | 0 | 1991 | 0.0 |
Sketch
Property Image
Land
| 1 | 61 | MULTIPLE RESIDENCES | 0.0452 | 1969.14 | 0.00 | 0.00 | 1.00 | $110,000 | $0 |
Roll Value History
| 2026 | N/A | N/A | N/A | N/A | N/A |
| 2025 | $189,617 | $110,000 | $0 | $299,617 | $299,617 |
| 2024 | $191,980 | $110,000 | $0 | $301,980 | $301,980 |
| 2023 | $184,893 | $90,000 | $0 | $274,893 | $274,893 |
| 2022 | $169,784 | $65,000 | $0 | $234,784 | $234,784 |
| 2021 | $149,814 | $65,000 | $0 | $214,814 | $214,814 |
| 2020 | $145,573 | $30,000 | $0 | $175,573 | $175,573 |
| 2019 | $102,832 | $75,000 | $0 | $177,832 | $177,832 |
| 2018 | $103,142 | $65,000 | $0 | $168,142 | $168,142 |
| 2017 | $67,582 | $19,000 | $0 | $86,582 | $86,582 |
| 2016 | $68,484 | $19,000 | $0 | $87,484 | $87,484 |
| 2015 | $69,386 | $19,000 | $0 | $88,386 | $88,386 |
| 2014 | $70,286 | $19,000 | $0 | $89,286 | $89,286 |
| 2013 | $71,186 | $19,000 | $0 | $90,186 | $90,186 |
| 2012 | $82,643 | $29,400 | $0 | $112,043 | $112,043 |
| 2011 | $82,643 | $29,400 | $0 | $112,043 | $112,043 |
| 2010 | $84,243 | $29,028 | $0 | $113,271 | $113,271 |
| 2009 | $87,818 | $60,760 | $0 | $148,578 | $148,578 |
| 2008 | $88,882 | $64,484 | $0 | $153,366 | $153,366 |
| 2007 | $89,945 | $49,000 | $0 | $138,945 | $138,945 |
Deed and Sales History
| 1 | 04/21/2025 | WD | Warranty Deed | GOMSRUD, PAMELA K | MCCOLLUM, MEGAN | | | $270,000.00 | 63236 | 4584903 |
| 2 | 05/21/2005 | WD | Warranty Deed | THE FRANCES LEE CARPENTER REVO | GOMSRUD, PAMELA K | | | $113,500.00 | 52459 | 4135949 |
| 3 | 01/21/2005 | 5 | DNU - Marriage License/Name Change | CARPENTER, FRANCES L | THE FRANCES LEE CARPENTER REVO | | | $0.00 | 50554 | 4125722 |
| 4 | 07/07/2004 | WD | Warranty Deed | BOATMAN, MARGARET L | CARPENTER, FRANCES L | | | $95,500.00 | 43397 | 4108111 |
| 5 | 06/01/1991 | WD | Warranty Deed | ISLAND, CONST & | BOATMAN, MARGARET L | | | $58,900.00 | 12243 | 91009565 |
| 6 | 01/01/1900 | OTHER | Other - Misc. Documents | Unknown | ISLAND, CONST & | | | $0.00 | 6258 | 90021570 |
Payout Agreement
| No payout information available.. |